Рекомендации по развитию спортивной инфраструктуры общеобразовательных организаций с использованием технологий быстровозводимых конструкций

Редакция от 16.02.2012 — Действует с 01.12.2014

РЕКОМЕНДАЦИИ
ПО РАЗВИТИЮ СПОРТИВНОЙ ИНФРАСТРУКТУРЫ ОБЩЕОБРАЗОВАТЕЛЬНЫХ ОРГАНИЗАЦИЙ С ИСПОЛЬЗОВАНИЕМ ТЕХНОЛОГИЙ БЫСТРОВОЗВОДИМЫХ КОНСТРУКЦИЙ

Рекомендации по развитию спортивной инфраструктуры общеобразовательных организаций с использованием технологий быстровозводимых конструкций (далее - Рекомендации) разработаны ООО "Спортивные сооружения" при консультативной поддержке специалистов Министерства спорта Российской Федерации и Ассоциации предприятий спортивной индустрии.

ООО "Спортсооружения" в рамках ежегодного конкурса на лучший проект спортивного сооружения для массового спорта награждена Дипломом Министерства спорта Российской Федерации "За применение современных энергоэффективных экологичных технологий в сочетании с технологией максимальной индустриализации процесса строительства" при проектировании и возведении универсальных спортивных комплексов на основе арочных каркасно-тентовых конструкций (вручение Диплома состоялось 27 марта 2013 года в Москве на расширенном заседании коллегии Минспорта России под председательством Министра спорта Виталия Мутко).

Рекомендации разработаны в рамках Перечня поручений Президента Российской Федерации В.В. Путина по итогам заседания Совета при Президенте Российской Федерации по развитию физической культуры и спорта 24 марта 2014 года в части разработки комплекса мер, направленных на развитие инфраструктуры для занятий физической культурой и спортом во всех образовательных организациях, реализующих основные общеобразовательные программы, до 2020 года.

Рекомендации подготовлены с целью оказания помощи органам исполнительной власти субъектов Российской Федерации и муниципальным органам, осуществляющим управление в сфере образования, а также общеобразовательным организациям в деятельности по созданию условий для занятий физической культурой и спортом обучающихся (развитию спортивной инфраструктуры образовательных организаций), в том числе с учетом решения задач Всероссийского физкультурно-спортивного комплекса ГТО (далее - ВФСК ГТО).

Рекомендации предлагается рассматривать в комплексе с "Рекомендациями по развитию сети плоскостных физкультурно-спортивных сооружений при общеобразовательных учреждениях, в том числе межшкольных физкультурно-спортивных сооружений" (письмо Минобрнауки России от 16 февраля 2012 г. N 19-33), "Рекомендациями по безопасности эксплуатации физкультурно-спортивных сооружений общеобразовательных учреждений, спортивного оборудования и инвентаря при организации и проведении физкультурно-оздоровительных и спортивно-массовых мероприятий с обучающимися (письмо Минобрнауки России от 18 октября 2013 г. N ВК-710/09) и "Примерным перечнем и характеристиками современного спортивного оборудования и инвентаря для оснащения спортивных залов и сооружений государственных и муниципальных общеобразовательных учреждений" (письмо Минобрнауки России от 16 мая 2012 г. N МД-520/19).

I. Введение

Современный мир вступил в период глобальных перемен в использовании новых технологий и человеческих ресурсов.

Стремительный рост интенсивности и информатизации жизни, наукоемкости труда выставляет сегодня соответствующие требования как к социальному, духовному и общекультурному воспитанию человека, так и к уровню модернизации инфраструктуры для развития всех сфер его жизнедеятельности.

В настоящее время в государственной политике Российской Федерации расставлены приоритетные акценты в вопросах здоровьесбережения населения страны и, в первую очередь, укрепления здоровья подрастающего поколения.

Создание условий, обеспечивающих возможность для детей и молодежи вести здоровый образ жизни и систематически заниматься физической культурой и спортом, - основная цель Стратегии развития физической культуры и спорта в Российской Федерации на период до 2020 года.

Вопрос сохранения и укрепления здоровья детей и подростков нашел также свое отражение в числе основных задач "Национальной стратегии действий в интересах детей на 2012 - 2017 годы" и в национальной образовательной инициативе "Наша новая школа", которая является сегодня стратегическим ориентиром модернизации общего образования.

Для достижения целей и задач, определенных данными государственными документами, а также задач ВФСК ГТО необходима модернизация всей системы физического воспитания в образовательных организациях страны, в том числе развитие их физкультурно-спортивной базы. В числе прочих мероприятий в этом направлении подразумевается и внедрение новых проектов общеобразовательных организаций с обязательным включением объектов спорта (спортивных залов различного назначения, в том числе тренажерных, бассейнов, пр.), или проектов отдельных физкультурно-спортивных сооружений (многопрофильных и комплексных плоскостных и крытых спортивных сооружений) на территории существующих общеобразовательных организаций.

1.1 Основными принципами развития спортивной инфраструктуры общеобразовательных организаций (создания новых проектов) сегодня являются:

многофункциональность (универсальность) физкультурно-спортивных сооружений, - создание оптимальных условий для организации и проведения занятий различного формата по физической культуре с обучающимися, в том числе сдачи норм ВФСК ГТО;

экономичность, простота, комфортность и функциональность в эксплуатации;

современность конструктивных решений физкультурно-спортивных сооружений и эстетическая привлекательность (дизайн интерьеров и экстерьеров, яркая окраска, использование современных материалов, пр.);

возможность использования физкультурно-спортивных сооружений всеми возрастными группами обучающихся с целью их максимального привлечения к физической культуре и спорту;

использование новейших строительных технологий и вариативных ресурсов проектных решений для сокращения сроков возведения физкультурно-спортивных сооружений при соблюдении всех норм и качества строительства;

возможность ориентации на виды спорта, наиболее популярные в конкретном субъекте Российской Федерации, муниципальном образовании, общеобразовательной организации;

безопасность эксплуатации (в том числе безопасность конструкций, материалов, лакокрасочных покрытий и пр.), включая срок максимальный безопасной эксплуатации;

мобильность в эксплуатации (возможность трансформации помещений, компактность проектного решения, простота сборки (разборки) и установки необходимого спортивного оборудования, пр.);

ремонтодоступность, антивандальность конструкций;

шаговая доступность межшкольных физкультурно-спортивных сооружений для проведения физкультурно-спортивных занятий с обучающимися.

1.2 Основными критериями, рекомендуемыми при составлении технического задания на проект физкультурно-спортивного сооружения для конкретной общеобразовательной организации, являются:

общее количество обучающихся в общеобразовательной организации (в том числе количество обучающихся по уровням общего образования и по полу);

содержание реализуемых в общеобразовательной организации учебных программ по предмету "Физическая культура", программ внеурочной деятельности физкультурно-спортивной и оздоровительной направленности (включая основные направления деятельности школьного спортивного клуба), дополнительных образовательных программ в области физической культуры и спорта;

количество классов-комплектов в общеобразовательной организации, средняя наполняемость классов и количество часов, отведенных на предмет "Физическая культура";

виды спорта, приоритетные в конкретной общеобразовательной организации, муниципальном образовании, субъекте Российской Федерации;

количество планируемых спортивных залов и сооружений;

размеры спортивных залов и сооружений;

климатические условия района строительства и финансовые возможности.

1.3 При организации работы по развитию спортивной инфраструктуры общеобразовательных организаций рекомендуется использование следующих законодательных, нормативных правовых и иных документов:

Федеральный закон от 29.12. 2012 г. N 273-ФЗ "Об образовании в Российской Федерации".

Федеральный закон от 4.12.2007 г. N 329-ФЗ "О физической культуре и спорте в Российской Федерации".

Стратегия развития физической культуры и спорта в Российской Федерации на период до 2020 года (Утверждена распоряжением Правительства Российской Федерации от 7 августа 2009 г. N 1101-р).

Указ Президента Российской Федерации от 1 июня 2012 г. N 761 "О Национальной стратегии действий в интересах детей на 2012-2017 годы".

План действий по модернизации общего образования на 2012 - 2016 годы, утвержденный распоряжением Правительства Российской Федерации от 07.09.2010 N 1507-р.

Приказ Министерства образования и науки Российской Федерации от 6 октября 2009 г. N 373 "Об утверждении и введении в действие федерального государственного образовательного стандарта начального общего образования".

Приказ Министерства образования и науки Российской Федерации от 17 декабря 2010 г. N 1897 "Об утверждении федерального государственного образовательного стандарта основного общего образования.

Приказ Министерства образования и науки Российской Федерации от 17 мая 2012 г. N 413 "Об утверждении федерального государственного образовательного стандарта среднего (полного) общего образования".

Приказ Министерства образования и науки Российской федерации от 28 декабря 2010 г. N 2106 "Об утверждении федеральных требований к образовательным учреждениям в части охраны здоровья обучающихся, воспитанников".

Постановление Главного государственного санитарного врача Российской Федерации от 29 декабря 2010 г. N 189 "Об утверждении СанПиН 2.4.2.2821-10 "Санитарно-эпидемиологические требования к условиям и организации обучения в общеобразовательных учреждениях".

СанПиН 2.1.2.1188. Программное осуществление государственного санитарно-эпидемиологического надзора за эксплуатацией плавательных бассейнов.

Свод правил СП 118.13330.2012 "Общественные здания и сооружения. Актуализированная редакция СНиП 31-06-2009, СНиП 31-05-2003".

Свод правил СП 31-112-2004. "Свод правил по проектированию и строительству. Физкультурно-спортивные залы". Часть 2 (одобрен и рекомендован к применению в качестве нормативного документа в строительстве письмом Госстроя России от 30 апреля 2004 г. N ЛБ-322/9 и Федеральным агентством по физической культуре, спорту и туризму приказом от 26 февраля 2005 г. N 24).

Свод правил СП 31-115-2006. "Открытые плоскостные физкультурно-спортивные сооружения".

Свод правил СП 52.13330. 2011. "Свод правил. Естественное и искусственное освещение".

МГСН 4.08-97 "Массовые типы физкультурно-оздоровительных учреждений".

ГОСТ Р 52024-2003. "Услуги физкультурно-оздоровительные и спортивные. Общие требования". ГОССТАНДАРТ России.

ГОСТ Р 52025-2003. Государственный стандарт Российской Федерации. "Услуги физкультурно-оздоровительные и спортивные. Требования безопасности потребителей".

"Рекомендации по развитию сети плоскостных физкультурно-спортивных сооружений при общеобразовательных учреждениях, в том числе межшкольных физкультурно-спортивных сооружений" (письмо Минобрнауки России от 16 февраля 2012 г. N 19-33).

"Рекомендации по безопасности эксплуатации физкультурно-спортивных сооружений общеобразовательных учреждений, спортивного оборудования и инвентаря при организации и проведении физкультурно-оздоровительных и спортивно-массовых мероприятий с обучающимися (письмо Минобрнауки России от 18 октября 2013 г. N ВК-710/09).

"Примерный перечень и характеристики современного спортивного оборудования и инвентаря для оснащения спортивных залов и сооружений государственных и муниципальных общеобразовательных учреждений" (письмо Минобрнауки России от 16 мая 2012 г. N МД-520/19).

Приказ Министерства регионального развития Российской Федерации от 27.12.2011 N 613 "Об утверждении Методических рекомендаций по разработке норм и правил по благоустройству территорий муниципальных образований".

II. Технологии быстровозводимых конструкций, их преимущества, виды и возможности применения при развитии школьной спортивной инфраструктуры

Строительство физкультурно-спортивных объектов (физкультурно-оздоровительных комплексов) достаточно дорогостоящий процесс. Вместе с тем мотивация к ведению здорового и активного образа жизни становится все более популярной, как среди взрослого населения страны, так в детско-юношеской и молодежной среде. Востребованность в спортивных сооружениях растет и, в первую очередь, в них нуждаются образовательные организации. Для того, чтобы минимизировать период времени между планированием постройки, инвестициями и готовым объектом, возможно использование технологий быстровозводимых пространственных конструкций, которые в нашей стране становятся все более популярными.

Технологии строительства из подобных конструкций имеют целый ряд преимуществ:

- способность перекрывать большие пространства без промежуточных опор при минимальных затратах материала, решая при этом задачи экономичности на новом, ранее невозможном уровне;

- высокая скорость выполнения работ (2 - 3 месяца);

- гарантированное качество материалов, изготовленных в заводских условиях;

- возможность создания любых архитектурных форм без усложнения конструкций;

- простота и удобство сборки;

- снижение затрат на проведение работ (за счет снижения трудоемкости строительства на 40 - 70% в сравнении с традиционным строительством);

- экономия на нулевом цикле (работы по возведению фундамента требуют в 2 раза меньше затрат);

- снижение стоимости доставки.

Все эти преимущества привели к тому, что в настоящее время на долю быстровозводимых конструкций в различных странах приходится от 5 до 20% от общего объема строительства.

Быстровозводимые сооружения подразделяются на две группы - бескаркасные и каркасные (в том числе каркасно-тентовые).

Бескаркасные сооружения состоят из крупноузловых элементов, совмещающих несущие и ограждающие функции. Основной конструктивный элемент здания - секция, которая, как правило, состоит из двух стеновых панелей и одной кровельной. Стеновые панели могут иметь оконные, дверные, воротные и технологические проемы. Плиты покрытия опираются на стеновые панели, роль колонн выполняют ребра наружного слоя стеновых панелей.

Каркасные быстровозводимые сооружения напоминают "конструктор", элементы которого производятся в заводских условиях. Из элементов собирается каркас, который укрепляют на фундаменте, а затем обшивают ограждающими материалами. В зависимости от материала, каркасные быстровозводимые сооружения подразделяют на деревянные, железобетонные и металлические

Каркасно-тентовые имеют жесткий металлический или деревянный каркас. Подобный остов создан в форме арок, базирующихся на столбчатый или ленточный железобетонный фундамент (конфигурация арок отличается в зависимости от проекта и может иметь различную форму). Остов ангара обычно покрывается несколькими слоями тента, а в помещениях, рассчитанных на более холодный климат - утеплителем. Срок годности подобного материала - от 10 до 25 лет. При желании, есть возможность оборудовать такой объект приточно-вытяжной вентиляцией, а также сделать окна (обычно они создаются из прозрачного материала). Система отопления подбирается индивидуально и может быть выполнена в виде переносного или стационарного устройства. Освещение обеспечивается или за счет естественного освещения, или при помощи стационарных светильников (в вечернее время суток).

Тентовые структуры, как одно из направлений архитектуры высоких технологий, в настоящее время заняли свое самостоятельное место и претендует на то, чтобы стать ее вершиной. Уже сейчас они, как никакие другие, являются формой освоения высоких технологий, позволяющих получать оригинальные индивидуальные решения. Применение той или иной формы тентовой структуры создает новый, эксклюзивный архитектурный образ с присущими только ему внешними и внутренними пространственными параметрами.

В современных условиях любой спортивный объект или спортивно-оздоровительный комплекс должен эффективно использоваться в течение всего года, вне зависимости от погодных условий, что особо актуально для школ.

Это условие возможно обеспечить путем строительства новых универсальных спортивных модулей для существующих, строящихся и реконструируемых общеобразовательных организаций, или реконструкции (расширении) уже существующей спортивной инфраструктуры. Такие легкие, надежные всепогодные модули могут быть быстро возведены на территории школы из каркасно-тентовых конструкций.

Использование современных материалов, пропускающих естественный свет, делает указанные конструкции идеальными как для проведения уроков физической культуры и внеурочных занятий, так и для различных спортивных массовых мероприятий, а также позволяет значительно снизить затраты общеобразовательных организаций на их эксплуатацию. Кроме того, материалы пропускают ультрафиолетовые лучи, что способствует созданию благоприятного для здоровья обучающихся микроклимата.

Основные плюсы сооружений из каркасно-тентовых конструкций:

- экономичность по сравнению с традиционными зданиями;

- универсальность, - сооружение может быть приспособлено под широкий диапазон применений;

- долговечность, - срок службы до 20 - 25 лет;

- быстрота и простота возведения;

- современный дизайн и внешний вид;

- оптимальное (в части затрат) решение для школ, институтов, спортивных клубов, пр.;

- особая способность модификации, - существует версия конструкций, учитывающих открывание боковых сторон сооружения (реализуется эффект открытого поля под навесом, что можно использовать для общеобразовательных организаций в южных районах России).

Основные технические характеристики:

- условия эксплуатации и расчеты - в соответствии с СНиП 23-01-99 и СНиП 2.01.07-85;

- пожарная безопасность - группа огнестойкости здания - V (трудносгораемые);

- морозостойкость - до - 500 С°;

- водонепроницаемые, не подвержены коррозии;

- срок службы - при использовании тканей ПВХ с двухсторонним лаковым покрытием PVDF срок службы может быть увеличен до 20 - 25 лет и более (при правильной эксплуатации и обслуживании);

- слои тентового покрытия - спортивные сооружения поставляются в двухслойном (утепленного типа) или в трехслойном исполнении (со слоем утеплителя между внешним и внутренним тентами);

- светопропускная способность материала покрытия - позволяет солнечным лучам на 80% проникать в помещение, что способствует обогреву спортивного сооружения в дневное время зимой и экономии на освещении помещений.

- инженерные сети и оборудование - проектируются и осуществляются в соответствии с техническим заданием конкретного заказчика.

Возможности применения сооружений из каркасно-тентовых конструкций в части развития спортивной инфраструктуры:

- универсальные спортивные комплексы (физкультурно-оздоровительные комплексы) с различным набором помещений для занятий физической культурой и спортом;

- плавательные бассейны;

- катки

- многофункциональные спортивные залы: баскетбольные, волейбольные, мини-футбольные и пр. площадки;

- физкультурно-спортивные сооружения с полем искусственного льда;

- гимнастические манежи;

- игровые площадки;

- теннисные корты;

- конные манежи;

- пр.

III. Арочные каркасно-тентовые сооружения для многофункциональных спортивных залов

В настоящее время часто при строительстве спортивных сооружений из каркасно-тентовых конструкций применяются быстровозводимые конструкции из деревоклееных арок с двойной оболочкой. Это отличная альтернатива капитальным сооружениям, т.к. позволяет с высокой эффективностью реализовывать проекты по строительству спортивных сооружений различной направленности не только для образовательных организаций, но и для массового и профессионального спорта. Эти сооружения возможно возвести в короткие сроки (менее чем за 100 дней) с высоким качеством и допустимыми экономическими показателями.

Основная область применения деревянных клееных конструкций - покрытие малых, средних и больших пролетов спортивных залов и бассейнов.

Каркасно-тентовые сооружения на основе деревоклееных арок можно использовать и как автономное спортивное сооружение на территории школы, и как пристройку к зданию существующей общеобразовательной организации (к ее физкультурно-спортивному блоку).

Клееные деревянные конструкции имеют ряд преимуществ, как с точки зрения эстетики, функциональности, возможности разноплановых дизайнерских решений, так и с позиции технических показателей (малый объемный вес, высокая удельная прочность, химическая и сейсмостойкость, малый коэффициент теплопроводности).

Деревянные клееные арки с двойной оболочкой являются наиболее элегантными, престижными и экологичными конструкциями, в которых используются деревянные клееные арки, изготовленные из высококачественной древесины, обработанной огне-био-защитный составом и склеенной по особой технологии. Сверху эти арки обтягиваются энергосберегающим двухслойным полотном. Конструкция комплектуется всеми необходимыми инженерными системами (отопление, вентиляция, освещение), спортивным покрытием и необходимым спортивным оборудованием (в соответствии с назначением спортивного помещения).

3.1 Преимущества деревоклееных арок и мембраны перед другими типами перекрытия.

1. Прочность и безопасность.

Клееные деревянные конструкции не коробятся и практически не подвержены усадке, растрескиванию. Клееное дерево не боится изменений температурно-влажностных условий благодаря чему на Западе 80 % аквапарков и бассейном используют ее в качестве несущих конструкций. Их мембрана выдерживает колоссальные ветровые и снеговые нагрузки за счет мощного внутреннего армирования.

2. Огнестойкость.

Мембрана отвечает самым высоким требованиям пожарной безопасности и соответствует следующим группам: Г1, РП1, В2.

Несущая балка из клееных деревянных конструкций, при соответствующей обработке, обладает наилучшими противопожарными свойствами. Стандартный брус не горит, а тлеет. Скорость обугливания около 0,7 мм/мин, а низкая теплопроводность обеспечивает устойчивость конструкции при пожаре в течение длительного времени. А уже при наличии слоя золы в 2 см практически не тлеет, т. к. этот слой является хорошим теплоизолятором.

Таким образом, клееный брус способен при температуре 600-900 градусов сохранять свои несущие свойства не менее 45 минут - в то время как незащищенная металлическая балка начинает "течь" уже через 4 минуты, а бетонная балка крошится после 15 минут воздействия открытого огня.

3. Высокая сейсмостойкость.

Мембрана является единым цельным полотном и обладает высокой прочностью на разрыв, выдерживая большие нагрузки на растяжение, также в ней отсутствует остаточная деформация, поэтому даже при сильной сейсмической активности она не дает конструктивных разрывов (как, например, металл или поликарбонат). При сочетании мембраны и деревянного клееного каркаса (который можно спроектировать для зон с интенсивностью землетрясений до 9 баллов) создается надежная конструкция для сейсмоопасных районов.

4. Влагостойкость.

Мембрана не дает конструктивные протечки, как это часто бывает с сэндвич панелями. Клееное дерево не имеет таких свойств обычного дерева, которые приводят к его деградации. В сооружениях, построенных с использованием клееного бруса, полностью отсутствуют щели и трещины, а угловые соединения точны и влагонепроницаемы.

5. Отсутствие конденсата.

В клеточном строении дерева происходит постоянный воздухообмен. Влажность внутри помещения поддерживается сама собой, водяные пары поглощаются при избытке и выделяются при недостатке влаги.

6. Экономия на фундаменте.

Суммарный вес 2-х параллельных мембран составляет менее 2 кг. Для сравнения - вес сэндвич панели (150 мм) составляет 34 кг. А каркас из дерева в пять раз легче бетона и в два раза легче металлических конструкций. В результате - существенная экономия на фундаменте.

7. Экономия электроэнергии.

Мембрана светопрозрачна более чем на 90 %. Это дает большую экономию электроэнергии на освещение.

8. Экономия на обогреве.

Новый конструктив 2-х слойной мембраны по принципу вентилируемой кровли дает существенную экономию на обогрев по сравнению с другими типами перекрытия. В результате:

- отсутствуют мостики холода в местах примыкания кровли к аркам;

- снижаются теплопотери на 15 - 20 %;

- каркас (деревоклееный) вентилируется;

- не образовывается конденсат.

Кроме того, деревоклееные конструкции не имеют себе равных по теплоизоляционным свойствам. Стены строения толщиной в 20 см выдерживают любые морозы.

9. Быстрый монтаж.

Высокая степень заводской готовности мембраны и каркаса позволяет выполнить монтаж за считанные дни.

10. Ремонтопригодность.

При механическом повреждении мембраны (например, вандализм) мембрана ремонтируется за считанные минуты с использованием специального клея и сварки.

11. Длительность срока эксплуатации мембраны.

Долговечность конструкций из клееной древесины благодаря высокой химической стойкости превышает 50 лет, в то время как сталь и железобетон в условиях агрессивных сред разрушаются уже через 10 - 15 лет. Клееная древесина не подвержена деформации, ее не коробит, она не трескается, так как в клееном брусе нет недостатков древесины.

12. Эстетическая привлекательность.

Использование технических мембран - это самый современный тренд в архитектуре спортивных сооружений. Данная технология позволяет создавать эстетически привлекательные объекты, которые становятся украшением регионов и идеально вписываются в ландшафт. А в сочетании с природной естественностью дерева, конструкция становится эстетически безупречной.

13. Экологичность.

Известно, что утеплитель, который используется в сэндвич-панелях, имеет ограниченный срок службы и со временем начинает "рассыпаться", теряя теплоизоляционные свойства. При использовании двухслойной мембраны утеплителем является лучший изолятор - воздух, который не имеет срока годности и абсолютно экологичен.

Дерево обеспечивает максимально комфортный для человека микроклимат. Современные клеевые составы, используемые при производстве клееных деревянных конструкций, также экологичны и имеют все необходимые сертификаты гигиенической безопасности.

IV. Требования по проектированию и строительству спортивной инфраструктуры общеобразовательных организаций

В раздел включены выдержки из Свода правил СП 118.13330.2012 "Общественные здания и сооружения" (далее - Свод правил).

Свод правил СП 118.13330.2012 "Общественные здания и сооружения" (далее - Свод правил) является актуализированной редакцией объединенных СНиП 31-06-2009 Общественные здания и сооружения и СНиП 31-05-2003 Общественные здания административного назначения.

5.31 Общую площадь физкультурно-спортивных залов и помещений (без учета вспомогательных помещений при них) следует принимать из расчета на одного занимающегося, м2, не менее:

общеобразовательное учреждение (основная и средняя (полная) школа) 1,2;
образовательные учреждения профессионального образования 1,0;
образовательное учреждение послевузовского профессионального образования 0,2.

Устройство физкультурно-спортивных залов и вспомогательных помещений при них определяются в соответствии с требованиями СанПиН 2.4.2.2821, СанПиН 2.1.2.1188.

Необходимость устройства бассейна и физкультурно-спортивных помещений другого назначения устанавливается заданием на проектирование.

Физкультурно-спортивные залы и открытые физкультурно-спортивные сооружения общеобразовательных учреждений (Приложение Ж (рекомендуемое) Свода правил)

Физкультурно­спортивные объекты и их размеры Состав и площади (м2) при количестве классов (чел)
Основная школа. Средняя школа
1 класс в параллели 2 класса в параллели 3 класса в параллели 1 класс в параллели 2 класса в параллели 3 класса в параллели Более 3 классов в параллели
9 (225 чел.) 18 (450 чел. 21 (524 чел.) 11 (275 чел.) 22 (550 чел.) 33 (825 чел.) Более 33 классов (более 900 чел.)
Ж1. Физкультурно-спортивные залы и помещения
- спортивный зал 48,0 x 30,0 м (h 8м) - - - - - - 1440
- спортивный зал 42,0 x 24,0 м (h 6м) - - - - 1008 1008 -
- спортивный зал 30,0 x 18,0 м (h 7 м) - 540 540 540 - - -
- спортивный зал 24,0 x 12,0 м (h 288 - - - - - -
- зал для гимнастики, подвижных игр, хореографии, фитнес-аэробики 21 x 15,0 м (h 8м) - 315 315 - 315 315 315
- тренажерный зал 12,0 x 12,0 м (h 4м) - - - 144 144 144 144
- зал для занятий с детьми, отнесенными по состоянию здоровья к специальной медицинской группе 12,0 x 12,0 м (h 4м) 144 144 144 144 144 144 144
Итого: 432 999 999 828 1611 1611 2043
Ж2. Открытые плоскостные физкультурно-спортивные сооружения
- школьный стадион (круговая беговая дорожка не менее 250,0 м, совмещенная с прямой беговой дорожкой не менее 110,0 м, комбинированное поле для спортивных игр с двумя секторами для прыжков) 4200 4200 4200 4200 4200 5260 5260
- площадка для спортивных игр (48,0 х 36,0 м) - - 1728 1728 1728 1728 1728
- площадка для спортивных игр (42,0 х 24,0 м) 1008 1008 - - - - -
- теннисный корт (36,0 х 18,0 м) - - - - 648 648 648
- площадка для подвижных игр и общеразвивающих упражнений 200 200 400 200 400 600 600
Итого: 5408 5408 6328 6128 6976 8236 8236

Примечания:

1. Устройство физкультурно-спортивных залов и состав вспомогательных помещений при них определяются по СП 31-112-2004 (части 1 и 2), санитарно-гигиенические требования к ним даны в СанПиН 2.4.2.2821 и СанПиН 2.1.2.1188.

2. Устройство бассейнов и условия их эксплуатации определяются в соответствии с заданием на проектирование и требованиями соответствующих санитарно-эпидемиологических правил и нормативов к устройству плавательных бассейнов и качеству воды, состав вспомогательных помещений при них определяются по СП 31-113-2004.

Приложение 1

ПРИНЦИП КОНСТРУКТИВНОГО РЕШЕНИЯ

Приложение 2

ВАРИАНТЫ ТИПОВЫХ ПРОЕКТОВ СПОРТИВНЫХ СООРУЖЕНИЙ С ПРИМЕНЕНИЕМ КАРКАСНО-ТЕНТОВЫХ КОНСТРУКЦИЙ

Вариант 1

Многофункциональный спортивный зал-трансформер 26 х 52 м со встроенным административно-бытовым комплексом Реализован в г. Серпухов в 2010 г., ФОК "Звезда"; в с. Бабаюрт Республика Дагестан - 2012 г.

Планировочное решение для спортивного зала-трансформера 26 х 52 м со встроенным АБК, трибунами

Виды спорта: мини-футбол, волейбол, баскетбол, спортивная борьба, гимнастика, фитнес

Вариант 2

Универсальный физкультурно-оздоровительный комплекс 26 х 44 м с пристроенным административно-бытовым комплексом (АБК)

Виды спорта: мини-футбол, волейбол, баскетбол, спортивная борьба, гимнастика, фитнес

Планировочное решение для универсального спортивного комплекса, включающего 3 игровые зоны

Виды спорта: мини-футбол, волейбол, баскетбол, фитнес, спортивная борьба

Схема физкультурно-оздоровительного комплекса 69 х 82 м, включающего универсальные спортплощадки 32 х 44 м и 20 х 40 м

3D- визуализация варианта спортивного зала с пристроенным АБК

Вариант 3

Универсальный спортивный зал-пристрой 18 х 36 м

Реализован в Московской области (п. Икша 2004 г., с/п Федоскинское 2007 г., с. Палицы-2009 г.), г. Нижний Новгород - 2010 г.

Планировочное решение для спортивного зала-пристроя 18 х 36

Виды спорта: теннис, волейбол, баскетбол, спортивная борьба, гимнастика, фитнес

Вариант 4

Многофункциональный спортивный зал-пристрой 22 х 44 м

Проект получил положительное заключение государственной экспертизы и реализован: в г. Елабуга в 2008 г., в 2009 г. - в н.п. Хлыстово Танайского сельского поселения ЕМР, в 2014 году - с. Танайка

Елабужского муниципального района Республики Татарстан.

3D-визуализация варианта спортивного зала-пристроя

Планировочное решение для спортивного зала-пристроя 22 х 44

Виды спорта: мини-футбол, волейбол, баскетбол, спортивная борьба, гимнастика, фитнес

Вариант 5

Многофункциональный спортивный зал 26 х 42 м со встроенным АБК

Реализован в 2010 г., с. Старый Буян, Красноярский район, Самарская область СОК "Радуга", Государственного бюджетного учреждения "Школа высшего спортивного мастерства N 4"

Виды спорта: мини-футбол, волейбол, баскетбол, спортивная борьба, гимнастика, фитнес

Планировочное решение

Деревоклееная конструкция 26 x 42м для перекрытия универсального спортивного зала со встроенным АБК

Вариант 6

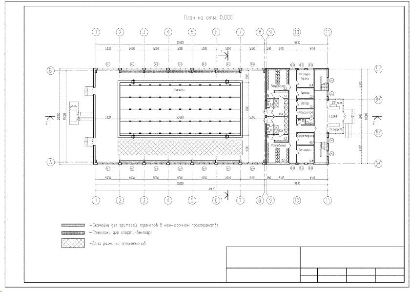
БАССЕЙН 19 х 48,17м (1189 м2) с пристроенным 2-х этажным АБК (468,8 м2), чаша бассейна 11 х 25 х 2м (275 м2), для тренировочных и оздоровительных занятий

Пропускная способность в смену - 25 чел.

Планировочное решение
БАССЕЙН с пристроенным 2-х этажным АБК

Планировочное решение. Вид сбоку
БАССЕЙН с пристроенным 2-х этажным АБК

3D-визуализация бассейна с пристроенным 2-х этажным АБК

Вариант 7

Каток 31 х 60 (1860 м2) с искусственным льдом, с пристроенным 2-х этажным АБК (732,5 м2) для тренировочных занятий и массовых катаний

максимальная пропускная способность в смену:

- количество катающихся - 50 чел., количество зрителей - 120 чел.;

- в режиме массового катания - 100 чел.

Планировочное решение для катка 31 х 60 с искусственным льдом, с пристроенным 2-х этажным АБК

Планировочное решение. Вид сбоку для катка 31 х 60 с искусственным льдом, с пристроенным 2-х этажным АБК

3D-визуализация катка с пристроенным 2-х этажным АБК