Система проектной документации для строительства. Правила выполнения рабочей документации наружных сетей водоснабжения и канализации. ГОСТ 21.704-2011

(утв. Приказом Росстандарта от 11.10.2012 N 484-СТ)
Редакция от 25.11.2016 — Действует с 01.07.2017

Данный документ не поддерживается в сервисе Норматив.


МЕЖГОСУДАРСТВЕННЫЙ СТАНДАРТ

СИСТЕМА ПРОЕКТНОЙ ДОКУМЕНТАЦИИ ДЛЯ СТРОИТЕЛЬСТВА

ПРАВИЛА ВЫПОЛНЕНИЯ РАБОЧЕЙ ДОКУМЕНТАЦИИ НАРУЖНЫХ СЕТЕЙ ВОДОСНАБЖЕНИЯ И КАНАЛИЗАЦИИ

SYSTEM OF DESIGN DOCUMENTS FOR CONSTRUCTION. RULES FOR EXECUTION OF WORKING DOCUMENTATION OF OUTSIDE NETWORKS OF WATER SUPPLY AND SEWERAGE

ГОСТ 21.704-2011

(в ред. Изменения N 1, утв. Приказом Росстандарта от 25.11.2016 N 1801-ст)

Дата введения
1 мая 2013 года

Предисловие

Цели, основные принципы и основной порядок проведения работ по межгосударственной стандартизации установлены ГОСТ 1.0-92 "Межгосударственная система стандартизации. Основные положения" и ГОСТ 1.2-2009 "Межгосударственная система стандартизации. Стандарты межгосударственные, правила и рекомендации по межгосударственной стандартизации. Правила разработки, принятия, применения, обновления и отмены".

Сведения о стандарте

1. Разработан Открытым акционерным обществом "Центр методологии нормирования и стандартизации в строительстве" (ОАО "ЦНС").

2. Внесен Техническим комитетом ТК 465 "Строительство".

3. Принят Межгосударственной научно-технической комиссией по стандартизации, техническому нормированию и оценке соответствия в строительстве (МНТКС) (Протокол от 8 декабря 2011 г. N 39).

За принятие проголосовали:

Краткое наименование страны по МК (ИСО 3166) 004-97Код страны по МК (ИСО 3166) 004-97Сокращенное наименование национального органа государственного управления строительством
АзербайджанAZГосстрой
АрменияAMМинистерство градостроительства
КазахстанKZАгентство по делам строительства и жилищно-коммунального хозяйства
КыргызстанKGГосстрой
МолдоваMDМинистерство строительства и регионального развития
Российская ФедерацияRUДепартамент архитектуры, строительства и градостроительной политики Министерства регионального развития
ТаджикистанTJАгентство по строительству и архитектуре при Правительстве
УзбекистанUZГосархитектстрой
УкраинаUAМинистерство регионального развития, строительства и ЖКХ

4. Приказом Федерального агентства по техническому регулированию и метрологии от 11 октября 2012 г. N 484-ст межгосударственный стандарт ГОСТ 21.704-2011 введен в действие в качестве национального стандарта Российской Федерации с 1 мая 2013 г.

5. Взамен ГОСТ 21.604-82.

Информация о введении в действие (прекращении действия) настоящего стандарта публикуется в ежемесячно издаваемом информационном указателе "Национальные стандарты".

Информация об изменениях к настоящему стандарту публикуется в ежегодно издаваемом информационном указателе "Национальные стандарты", а текст изменений и поправок - в ежемесячно издаваемом информационном указателе "Национальные стандарты". В случае пересмотра или отмены настоящего стандарта соответствующая информация будет опубликована в ежемесячно издаваемом информационном указателе "Национальные стандарты".

1. Область применения

Настоящий стандарт устанавливает состав и правила выполнения рабочей документации наружных сетей водоснабжения и канализации объектов строительства различного назначения.

2. Нормативные ссылки (в ред. Изменения N 1, утв. Приказом Росстандарта от 25.11.2016 N 1801-ст)

ГОСТ 2.317-2011 Единая система конструкторской документации. Аксонометрические проекции

ГОСТ 21.101-97 <*> Система проектной документации для строительства. Основные требования к проектной и рабочей документации

<*> В Российской Федерации действует ГОСТ Р 21.1101-2013.

ГОСТ 21.110-2013 Система проектной документации для строительства. Спецификация оборудования, изделий и материалов

ГОСТ 21.114-2013 Система проектной документации для строительства. Правила выполнения эскизных чертежей общих видов нетиповых изделий

ГОСТ 21.204-93 Система проектной документации для строительства. Условные графические обозначения и изображения элементов генеральных планов и сооружений транспорта

ГОСТ 21.205-93 Система проектной документации для строительства. Условные обозначения элементов санитарно-технических систем

ГОСТ 21.206-2012 Система проектной документации для строительства. Условные обозначения трубопроводов

ГОСТ 21.302-2013 Система проектной документации для строительства. Условные графические обозначения в документации по инженерно-геологическим изысканиям

Примечание - При пользовании настоящим стандартом целесообразно проверить действие ссылочных стандартов в информационной системе общего пользования - на официальном сайте Федерального агентства по техническому регулированию и метрологии в сети Интернет или по ежегодному информационному указателю "Национальные стандарты", который опубликован по состоянию на 1 января текущего года, и по выпускам ежемесячного информационного указателя "Национальные стандарты" за текущий год. Если ссылочный стандарт заменен (изменен), то при пользовании настоящим стандартом следует руководствоваться заменяющим (измененным) стандартом. Если ссылочный стандарт отменен без замены, то положение, в котором дана ссылка на него, применяется в части, не затрагивающей эту ссылку.

3. Общие положения

3.1. Рабочую документацию наружных сетей водоснабжения и канализации выполняют в соответствии с требованиями настоящего стандарта, ГОСТ 21.101 и других взаимосвязанных стандартов Системы проектной документации для строительства (СПДС).

3.2. В состав рабочей документации наружных сетей водоснабжения и канализации (далее - сети) включают:

- рабочие чертежи, предназначенные для производства строительных и монтажных работ (основной комплект рабочих чертежей марки НВК);

- спецификацию оборудования, изделий и материалов по ГОСТ 21.110;

- локальную смету (при необходимости).

3.3. Основной комплект рабочих чертежей марки НВК при необходимости может быть разделен на основные комплекты рабочих чертежей марки НВ (наружные сети водоснабжения) и НК (наружные сети канализации).

3.4. В состав основных комплектов рабочих чертежей марок НВ, НК и НВК включают:

- общие данные по рабочим чертежам;

- чертежи (планы, профили и элементы) сетей;

- схемы напорных сетей.

3.5. Буквенно-цифровые обозначения сетей и соответствующих трубопроводов присваивают по ГОСТ 21.205.

Пример - В2, К2

Если требуется показать, что участок сети канализации является напорным, то буквенно-цифровое обозначение дополняют прописной буквой "Н".

Пример - К4Н

3.6. Элементам сетей присваивают обозначения, состоящие, как правило, из марок, приведенных в таблице 1, и порядковых номеров элементов в пределах каждой сети, например, Д1, Д2, ПГ7, ПГ8.

Таблица 1

Наименование элемента сетиМарка
Колодец или камера с пожарным гидрантомПГ
ДождеприемникД
Точка разрыва, присоединение без колодцаТ
Угол поворотаУП
Неподвижная опора (для надземных трубопроводов)Н
(в ред. Изменения N 1, утв. Приказом Росстандарта от 25.11.2016 N 1801-ст) 

Колодцам и камерам, не указанным в таблице 1, присваивают порядковые номера без марок. Нумерацию элементов сетей начинают от источника водоснабжения (для сетей водоснабжения) или границы проектирования.

3.7. В наименованиях выпусков канализации на планах и фрагментах планов указывают слово "Выпуск" и обозначение соответствующей сети канализации, например, "Выпуск К1".

3.8. Длины трубопроводов, расстояния между колодцами, точками разрыва и углами поворотов, отметки высот указывают в метрах с точностью до двух знаков после запятой. Диаметры и толщины стенок трубопроводов указывают в миллиметрах.

Числовое значение углов поворота указывают в градусах с точностью до одной минуты, а при необходимости - до одной секунды. Числовое значение уклона указывают в процентах или промилле.

Система координат и высотных отметок, принимаемая в рабочих чертежах наружных сетей водоснабжения и канализации, должна соответствовать системе координат и высотных отметок, принятой в рабочих чертежах генерального плана. (в ред. Изменения N 1, утв. Приказом Росстандарта от 25.11.2016 N 1801-ст)

3.9. На планах сетей условные графические обозначения различных способов прокладки сетей принимают по ГОСТ 21.204 (таблица 5). (в ред. Изменения N 1, утв. Приказом Росстандарта от 25.11.2016 N 1801-ст)

Трубопроводы и их элементы на чертежах указывают условными графическими обозначениями по ГОСТ 21.206. Видимые участки проектируемых трубопроводов изображают сплошной толстой основной линией, невидимые (например, в перекрытых каналах) - штриховой линией той же толщины. (в ред. Изменения N 1, утв. Приказом Росстандарта от 25.11.2016 N 1801-ст)

Допускается обозначать невидимые трубопроводы (например, подземные, в перекрытых каналах) сплошной толстой основной линией при отсутствии на чертежах видимых участков трубопроводов с необходимым пояснением в общих данных по рабочим чертежам или на соответствующих чертежах. (в ред. Изменения N 1, утв. Приказом Росстандарта от 25.11.2016 N 1801-ст)

Существующие и проектируемые здания и сооружения, существующие сети водоснабжения и канализации, существующие и проектируемые инженерные сети другого назначения, влияющие на прокладку проектируемых сетей, изображают сплошной тонкой линией. (в ред. Изменения N 1, утв. Приказом Росстандарта от 25.11.2016 N 1801-ст)

3.10. Буквенно-цифровые обозначения систем водоснабжения и канализации и соответствующих трубопроводов принимают по ГОСТ 21.205 и указывают на чертежах и схемах в соответствии с ГОСТ 21.206. Пример нанесения буквенно-цифровых обозначений приведен на рисунке 1.

Рисунок 1

3.11. При указании номинального диаметра арматуры на чертежах и схемах перед размерным числом приводят условное обозначение "DN".

При указании номинального диаметра (условного прохода) трубопроводов и их элементов на чертежах и схемах перед размерным числом приводят знак (допускается условное обозначение "DN") в соответствии с рисунками 2 а, 2 в. При указании наружного диаметра и толщины стенки перед размерным числом наносят знак (см. рисунок 2 б).

Рисунок 2

3.12. Условные графические обозначения элементов систем водоснабжения и канализации принимают по ГОСТ 21.205.

3.13. Условные графические обозначения видов грунтов, особенностей их залегания, консистенции и степени влажности, используемые на продольных профилях сетей, принимают по ГОСТ 21.302.

3.14. Рекомендуемые масштабы изображений на чертежах приведены в таблице 2.

Таблица 2

Наименование изображенияМасштаб
1. Ситуационный план сетейБез масштаба
2. Планы сетей1:500; 1:1000; 1:2000; 1:5000
3. Узлы планов сетей1:20; 1:50
4. Профили сетей: 
- по горизонтали1:200; 1:500; 1:1000; 1:2000; 1:5000
(в ред. Изменения N 1, утв. Приказом Росстандарта от 25.11.2016 N 1801-ст)
- по вертикали1:100; 1:200; 1:500
5. Схемы напорных сетейБез масштаба
6. Разрезы, узлы и местные виды схем напорных сетей1:10; 1:20; 1:50; 1:100
7. Эскизные чертежи общих видов нетиповых изделий1:5; 1:10; 1:20; 1:50; 1:100

Масштаб изображений указывают в графе 4 основной надписи, выполняемой по форме 3 ГОСТ 21.101.

Если на листе приведено несколько изображений, выполненных в разных масштабах, масштаб указывают в скобках рядом с наименованием каждого изображения.

Масштабы изображения продольного профиля трубопровода по горизонтали и по вертикали указывают слева от профиля (над боковиком таблицы).

3.15. Изображения плана и продольного профиля сетей допускается делить на несколько участков, располагаемых на отдельных листах. В этом случае на каждом листе, где показаны участки плана или профиля, приводят схему целого изображения с разбивкой его на участки. На схеме указывают номера листов, на которых размещены участки плана или профиля, и штриховкой обозначают участок изображения, показанный на данном листе.

Участку плана или профиля присваивают наименование, в котором указывают, например, привязку к пикетам.

Пример - План ПК0 - ПК50 + 10,00; Профиль В2 ПК0-ПК75 + 40,00

4. Общие данные по рабочим чертежам

4.1. В состав общих данных по рабочим чертежам наружных сетей водоснабжения и канализации в дополнение к сведениям, предусмотренным ГОСТ 21.101, включают:

- ситуационный план сетей (при необходимости);

- основные показатели сетей водоснабжения и канализации.

4.2. Ведомость спецификаций, предусмотренную ГОСТ 21.101, в составе общих данных по рабочим чертежам наружных сетей водоснабжения и канализации не выполняют.

4.3. Ситуационный план сетей выполняют без масштаба, при этом проектируемый участок сетей выделяют толстой основной линией.

4.4. Основные показатели сетей водоснабжения и канализации приводят в таблице, которую выполняют по форме 1.

Форма 1

Основные показатели сетей водоснабжения и канализации

4.5. В общих указаниях в дополнение к сведениям, предусмотренным ГОСТ 21.101, приводят:

- ссылки на нормативные документы, по которым произведен расчет сетей;

- инженерно-геологическую характеристику;

- особые требования к сетям (например, взрывобезопасность, степень коррозионной активности грунтов оснований и др.);

- требования к изготовлению, монтажу, испытанию, антикоррозионной защите и тепловой изоляции трубопроводов.

В общих указаниях не следует повторять технические требования, помещенные на других листах основного комплекта рабочих чертежей марок НВ, НК или НВК, и приводить описание технических решений, принятых в рабочих чертежах.

5. Чертежи сетей

5.1. Планы сетей

5.1.1. Для разработки планов сетей в качестве подосновы используют рабочие чертежи генерального плана, автомобильных и железных дорог или топографические планы. Подоснову чертежа выполняют тонкой основной линией.

5.1.2. На планах сетей наносят и указывают:

- существующие и проектируемые здания и сооружения, сети водоснабжения и канализации, инженерные сети другого назначения, влияющие на прокладку проектируемых сетей;

- координаты сетей или их привязки к координационным осям зданий (сооружений) или постоянным базисам;

- числовые значения углов поворотов (кроме углов 90°);

- диаметры проектируемых трубопроводов до и после точек их изменения;

- сооружения на сети (например, колодцы, камеры, дождеприемники, дюкеры, переходы по эстакадам и под автомобильными дорогами, железнодорожными, крановыми и трамвайными путями) с соответствующими их обозначениями или нумерацией.

На планах магистральных сетей, при необходимости, указывают номера пикетов (ПК) и привязки элементов сетей к ближайшим пикетам.

5.1.3. Пример оформления плана сетей приведен на рисунке А.1 (Приложение А).

5.1.4. Допускается вместо плана сетей выполнять отдельные фрагменты этого плана, размещая их под изображениями соответствующих профилей сетей.

5.1.5. Наименование плана сетей водоснабжения и канализации указывают сокращенно: "План сетей". При раздельном выполнении планов сетей водоснабжения и канализации их наименования указывают полностью.

Пример - План сетей водоснабжения; План сетей канализации

5.1.6. Пример оформления фрагмента плана сетей приведен на рисунке Б.1 (Приложение Б).

5.2. Продольные профили сетей

5.2.1. Продольные профили сетей изображают в виде разверток по осям трубопроводов.

5.2.2. Над профилем указывают:

- надземные сооружения (например, эстакады, насосные станции);

- глубину заложения трубопроводов от планировочной поверхности земли до низа трубопровода - для напорных трубопроводов и до лотка трубопровода - для самотечных.

5.2.3. На продольный профиль наносят:

- поверхность земли (проектную - тонкой сплошной линией, натурную - тонкой штриховой линией);

- уровень грунтовых вод - тонкой штрихпунктирной линией;

- существующие и проектируемые пересекаемые автомобильные дороги, железнодорожные, трамвайные и крановые пути, кюветы, подземные инженерные сооружения и сети, влияющие на прокладку проектируемых трубопроводов, - с указанием их габаритных размеров и высотных отметок;

- данные о грунтах. В зависимости от протяженности трубопровода и характера напластования данные о грунтах приводят условными обозначениями в соответствии с таблицами 4 и 5 ГОСТ 21.302 - либо колонками в отдельных точках (в местах заложения инженерно-геологических выработок), либо по всей трассе трубопровода;

- проектируемый трубопровод, колодцы, дождеприемники, камеры и подземные части зданий и сооружений, связанные с проектируемым трубопроводом;

- футляры на трубопроводах с указанием диаметров, длин и привязок их к оси дорог или проектируемым сетям и сооружениям.

Трубопроводы изображают двумя линиями, если их диаметры в соответствующем масштабе равны 2 мм и более.

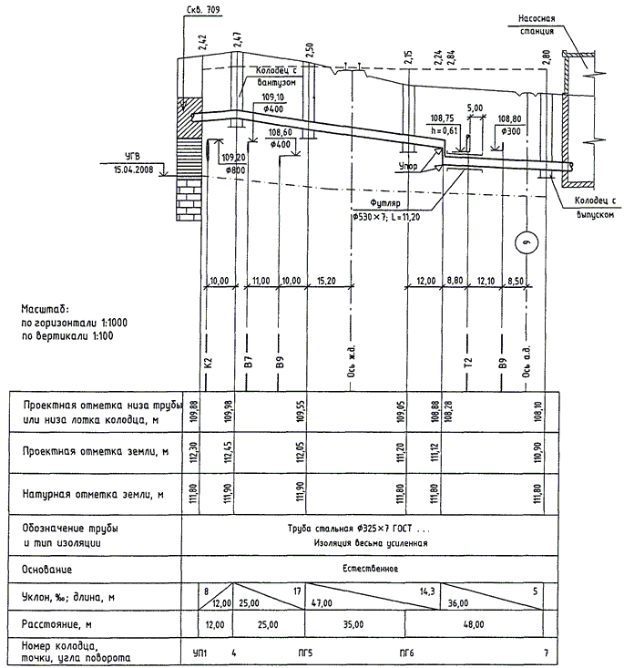
5.2.4. Перечень вышеуказанных данных для прокладки трубопровода приводят в таблице (сетке), помещаемой под продольным профилем. Боковик таблицы для подземной прокладки сетей выполняют по форме 2.

Форма 2

(в ред. Изменения N 1, утв. Приказом Росстандарта от 25.11.2016 N 1801-ст)

При надземной прокладке трубопроводов, например, по эстакадам или отдельно стоящим опорам, боковик таблицы выполняют по форме 3. (в ред. Изменения N 1, утв. Приказом Росстандарта от 25.11.2016 N 1801-ст)

Форма 3

(в ред. Изменения N 1, утв. Приказом Росстандарта от 25.11.2016 N 1801-ст)

Примечание. В графе "Уклон, ; длина, м" прямолинейные участки трубопровода показывают линиями с наклоном, соответствующим наклону участка на профиле, при этом над линией указывают числовое значение уклона, под линией - длину участка с этим уклоном.

Допускается дополнять таблицу другими данными (например, пикеты, развернутый план трассы, схема сети, высота опор), характеристикой грунтов в основании трубопровода (например, просадочность, набухание, коррозионность), а также приводить шкалу отметок.

5.2.5. Отметки сетей проставляют в характерных точках, в местах пересечений с автомобильными дорогами, железнодорожными, крановыми и трамвайными путями, инженерными коммуникациями и сооружениями, влияющими на прокладку проектируемых сетей.

5.2.6. В наименовании продольного профиля указывают обозначение сети, например, "Профиль В2".

5.2.7. Пример оформления продольного профиля напорной сети при подземной прокладке приведен на рисунке В.1 (приложение В). (в ред. Изменения N 1, утв. Приказом Росстандарта от 25.11.2016 N 1801-ст)

Пример оформления продольного профиля самотечной сети при подземной прокладке приведен на рисунке В.2 (приложение В). (в ред. Изменения N 1, утв. Приказом Росстандарта от 25.11.2016 N 1801-ст)

Пример оформления продольного профиля сети при надземной прокладке приведен на рисунке В.3 (приложение В). (в ред. Изменения N 1, утв. Приказом Росстандарта от 25.11.2016 N 1801-ст)

5.3. Схемы напорных сетей

5.3.1. Схемы напорных сетей выполняют в плане без масштаба.

Допускается выполнять схемы напорных сетей в масштабах, предусмотренных для планов сетей (см. таблицу 2), а также, при необходимости, в аксонометрической прямоугольной изометрической проекции по ГОСТ 2.317 без искажения по осям x, y, z.

5.3.2. На схемах напорных сетей наносят и указывают:

- трубопроводы и длины их участков, диаметры труб и, при необходимости, толщины стенок, фасонные части, арматуру, упоры, неподвижные опоры, опуски труб и другие элементы трубопроводов; (в ред. Изменения N 1, утв. Приказом Росстандарта от 25.11.2016 N 1801-ст)

- колодцы с размерами в плане и привязкой осей труб к внутренним поверхностям стенок колодцев;

- секущие плоскости поперечных разрезов и их нумерацию (обозначения) - для трубопроводов надземной прокладки; (в ред. Изменения N 1, утв. Приказом Росстандарта от 25.11.2016 N 1801-ст)

- позиционные обозначения элементов трубопровода.

5.3.3. На схемах напорных сетей изображают:

- трубопроводы - очень толстой сплошной линией (в 1,5 - 2 раза толще сплошной толстой основной линии);

- элементы трубопроводов и трубопроводную арматуру - условными графическими обозначениями в соответствии с 3.9, 3.12;

- колодцы, камеры, другие сооружения и конструкции - сплошной тонкой линией в виде упрощенных контурных очертаний.

5.3.4. При необходимости на листах со схемами напорных сетей приводят разрезы, узлы или местные виды элементов сети в масштабе в соответствии с таблицей 2.

На схеме напорной сети надземной прокладки показывают разбивку, привязку и типы всех опор трубопроводов или приводят таблицу (произвольной формы) с указанием типа опор и расстояний между ними для каждого диаметра труб. (в ред. Изменения N 1, утв. Приказом Росстандарта от 25.11.2016 N 1801-ст)

5.3.5. Допускается выполнение рабочих чертежей напорных сетей без схемы, но с обязательным выполнением схем колодцев с привязкой осей труб к внутренним поверхностям стенок колодцев.

5.3.6. В наименованиях схем напорных сетей указывают обозначения систем.

В основной надписи наименования схем напорных сетей указывают полностью, например: "Схемы сетей В2, К4Н", над схемами - сокращенно, например: "В2", "К4Н".

5.3.7. Пример выполнения схемы напорной сети приведен на рисунке Г.1 (Приложение Г).

6. Эскизные чертежи общих видов нетиповых изделий

6.1. Эскизные чертежи общих видов нетиповых изделий (далее - эскизные чертежи) выполняют в соответствии с требованиями ГОСТ 21.114.

6.2. Эскизные чертежи разрабатывают на изделия, конструкции, устройства, предусмотренные соответствующими основными комплектами рабочих чертежей наружных сетей, при отсутствии их серийного производства, типовых чертежей, стандартов или других документов на эти изделия.

6.3. На каждое нетиповое изделие выполняют отдельный эскизный чертеж. Исключение составляет группа изделий, обладающих общими конструктивными признаками, на которые допускается выполнять групповой чертеж.

6.4. Эскизному чертежу присваивают самостоятельное обозначение, состоящее из обозначения соответствующего основного комплекта рабочих чертежей согласно ГОСТ 21.101, через точку, шифра "Н" и порядкового номера эскизного чертежа.

Пример - 2345-11-НВК.Н1

7. Спецификация оборудования, изделий и материалов

7.1. Спецификацию оборудования, изделий и материалов наружных сетей водоснабжения и канализации (далее - спецификация) составляют по ГОСТ 21.110. (в ред. Изменения N 1, утв. Приказом Росстандарта от 25.11.2016 N 1801-ст)

7.2. Спецификацию основного комплекта марки НВК составляют по разделам:

- наружные сети водоснабжения;

- наружные сети канализации.

Наименование каждого раздела записывают в виде заголовка в графе "Наименование и техническая характеристика" и подчеркивают.

7.3. Элементы сетей (оборудование, изделия и материалы) в разделах спецификации записывают для каждой сети по группам в следующей последовательности:

- оборудование;

- элементы сооружений на сетях (колодцев, камер, лотков, дождеприемников и др.) из сборных конструкций;

- трубопроводная арматура;

- другие изделия;

- закладные конструкции (отборные устройства для установки контрольно-измерительных приборов);

- трубопроводы;

- конструкции теплоизоляционные;

- материалы.

Трубопроводы в разделах спецификации записывают по каждому диаметру.

Оборудование, трубопроводную арматуру, другие элементы сетей, трубопроводы размещают в спецификации в порядке возрастания их основных параметров (типа, марки, диаметра и т.п.).

7.4. В спецификацию не включают отдельные виды изделий (отводы, переходы, тройники, крестовины, фланцы, болты, гайки, шайбы, прокладки) и материалы, номенклатура и количество которых определяется строительно-монтажной организацией, исходя из действующих технологических и производственных норм.

7.5. В спецификации принимают следующие единицы измерения:

- оборудование и изделия - шт.;

- трубопроводы - м;

- элементы трубопроводов (фасонные части) - шт.;

- материалы изоляционные - м3;

- материалы покрытий и защиты - м2;

- другие материалы - кг или т.

7.6. Спецификацию оборудования, изделий и материалов оформляют в виде отдельного документа, которому присваивают обозначение, состоящее из обозначения соответствующего комплекта рабочих чертежей согласно 3.2, 3.3 и, через точку, шифра "СО". (в ред. Изменения N 1, утв. Приказом Росстандарта от 25.11.2016 N 1801-ст)

Примеры

1 2345-11-НВК.СО

2 2345-12-НВ.СО (в ред. Изменения N 1, утв. Приказом Росстандарта от 25.11.2016 N 1801-ст)

Приложение А
(справочное)

ПРИМЕР ВЫПОЛНЕНИЯ ПЛАНА СЕТЕЙ ВОДОСНАБЖЕНИЯ И КАНАЛИЗАЦИИ

Рисунок А.1

Приложение Б
(справочное)

ПРИМЕР ВЫПОЛНЕНИЯ ФРАГМЕНТА ПЛАНА СЕТЕЙ ВОДОСНАБЖЕНИЯ И КАНАЛИЗАЦИИ

Рисунок Б.1

Приложение В
(справочное)

ПРИМЕРЫ ВЫПОЛНЕНИЯ ПРОФИЛЕЙ СЕТЕЙ

(в ред. Изменения N 1, утв. Приказом Росстандарта от 25.11.2016 N 1801-ст)

Рисунок В.1 - Пример оформления продольного профиля напорной сети при подземной прокладке

Рисунок В.2 - Пример выполнения профиля самотечной сети

Рисунок В.3 - Пример выполнения профиля напорной сети при надземной прокладке

Приложение Г
(справочное)

ПРИМЕР ВЫПОЛНЕНИЯ СХЕМЫ НАПОРНОЙ СЕТИ

Рисунок Г.1