Система проектной документации для строительства. Правила выполнения рабочей документации систем отопления, вентиляции и кондиционирования. ГОСТ 21.602-2016

(утв. Приказом Росстандарта от 25.11.2016 N 1802-СТ)
Редакция от 25.11.2016 — Действует с 01.07.2017

МЕЖГОСУДАРСТВЕННЫЙ СТАНДАРТ

СИСТЕМА ПРОЕКТНОЙ ДОКУМЕНТАЦИИ ДЛЯ СТРОИТЕЛЬСТВА

ПРАВИЛА ВЫПОЛНЕНИЯ РАБОЧЕЙ ДОКУМЕНТАЦИИ СИСТЕМ ОТОПЛЕНИЯ, ВЕНТИЛЯЦИИ И КОНДИЦИОНИРОВАНИЯ

SYSTEM OF DESIGN DOCUMENTS FOR CONSTRUCTION. RULES FOR EXECUTION OF HEATING, VENTILATION AND AIR CONDITIONING WORKING DOCUMENTATION

ГОСТ 21.602-2016

Дата введения
1 июля 2017 года

Предисловие

Цели, основные принципы и основной порядок проведения работ по межгосударственной стандартизации установлены в ГОСТ 1.0-2015 "Межгосударственная система стандартизации. Основные положения" и ГОСТ 1.2-2015 "Межгосударственная система стандартизации. Стандарты межгосударственные, правила и рекомендации по межгосударственной стандартизации. Правила разработки, принятия, обновления и отмены"

Сведения о стандарте

1 РАЗРАБОТАН Акционерным обществом "Центр технического и сметного нормирования в строительстве" (АО "ЦНС")

2 ВНЕСЕН Техническим комитетом по стандартизации ТК 465 "Строительство"

3 ПРИНЯТ Межгосударственным советом по стандартизации, метрологии и сертификации (протокол от 22 ноября 2016 г. N 93-П)

За принятие проголосовали:

Краткое наименование страны по МК (ИСО 3166) 004-97 Код страны по МК (ИСО 3166) 004-97 Сокращенное наименование национального органа по стандартизации
Азербайджан AZ Азстандарт
Армения AM Минэкономики Республики Армения
Грузия GE Грузстандарт
Киргизия KG Кыргызстандарт
Россия RU Росстандарт

4 Приказом Федерального агентства по техническому регулированию и метрологии от 25 ноября 2016 г. N 1802-ст межгосударственный стандарт ГОСТ 21.602-2016 введен в действие в качестве национального стандарта Российской Федерации с 1 июля 2017 г.

5 ВЗАМЕН ГОСТ 21.602-2003

Информация об изменениях к настоящему стандарту публикуется в ежегодном информационном указателе "Национальные стандарты", а текст изменений и поправок - в ежемесячном информационном указателе "Национальные стандарты". В случае пересмотра (замены) или отмены настоящего стандарта соответствующее уведомление будет опубликовано в ежемесячном информационном указателе "Национальные стандарты". Соответствующая информация, уведомление и тексты размещаются также в информационной системе общего пользования - на официальном сайте Федерального агентства по техническому регулированию и метрологии в сети Интернет (www.gost.ru)

1. Область применения

Настоящий стандарт устанавливает состав и правила оформления рабочей документации систем отопления, вентиляции и кондиционирования зданий и сооружений различного назначения.

2. Нормативные ссылки

В настоящем стандарте использованы нормативные ссылки на следующие межгосударственные стандарты:

ГОСТ 2.317-2011 Единая система конструкторской документации. Аксонометрические проекции

ГОСТ 21.001-2013 Система проектной документации для строительства. Общие положения

ГОСТ 21.101-97 <*> Система проектной документации для строительства. Основные требования к проектной и рабочей документации

<*> В Российской Федерации действует ГОСТ Р 21.1101-2013.

ГОСТ 21.110-2013 Система проектной документации для строительства. Спецификация оборудования, изделий и материалов

ГОСТ 21.112-87 Система проектной документации для строительства. Подъемно-транспортное оборудование. Условные изображения

ГОСТ 21.114-2013 Система проектной документации для строительства. Правила выполнения эскизных чертежей общих видов нетиповых изделий

ГОСТ 21.205-2016 Система проектной документации для строительства. Условные обозначения элементов трубопроводных систем зданий и сооружений

ГОСТ 21.206-2012 Система проектной документации для строительства. Условные обозначения трубопроводов

ГОСТ 21.208-2013 Система проектной документации для строительства. Автоматизация технологических процессов. Обозначения условные приборов и средств автоматизации в схемах

ГОСТ 21.501-2011 Система проектной документации для строительства. Правила выполнения рабочей документации архитектурных и конструктивных решений

Примечание - При пользовании настоящим стандартом целесообразно проверить действие ссылочных стандартов в информационной системе общего пользования - на официальном сайте Федерального агентства по техническому регулированию и метрологии в сети Интернет или по ежегодному информационному указателю "Национальные стандарты", который опубликован по состоянию на 1 января текущего года, и по соответствующим ежемесячным информационным указателям, опубликованным в текущем году. Если ссылочный стандарт заменен (изменен), то при пользовании настоящим стандартом следует руководствоваться заменяющим (измененным) стандартом. Если ссылочный стандарт отменен без замены, то положение, в котором дана ссылка на него, применяется в части, не затрагивающей эту ссылку.

3. Термины и определения

В настоящем стандарте применены термины по ГОСТ 21.001, ГОСТ 21.110, ГОСТ 21.114, а также следующие термины с соответствующими определениями:

3.1 система: Комплекс функционально связанных между собой оборудования, установок (блоков), устройств, изделий, трубопроводов и (или) воздуховодов.

3.2 система вентиляции и кондиционирования воздуха: Инженерная система здания, обеспечивающая технологический процесс поддержания в помещениях заданного воздухообмена и (или) микроклимата.

3.3 система отопления: Инженерная система здания, обеспечивающая искусственный обогрев помещений в целях возмещения в них тепловых потерь и поддержания на заданном уровне требуемого температурного режима.

3.4 чертеж систем: Чертеж, определяющий относительное расположение функционально связанных между собой оборудования, установок (блоков), трубопроводов и (или) воздуховодов и других частей проектируемых систем.

3.5 установка: Условное наименование комплекса взаимосвязанного оборудования и (или) устройств и, при необходимости, трубопроводов (воздуховодов), присоединенных к оборудованию установки системы.

3.6 чертеж установок: Чертеж, содержащий упрощенное изображение установок, определяющий их конструкцию, размеры, взаимное расположение и обозначение элементов установок и другие необходимые данные.

4. Общие положения

4.1 Рабочую документацию систем отопления, вентиляции и кондиционирования выполняют в соответствии с требованиями настоящего стандарта, ГОСТ 21.101 и других взаимосвязанных стандартов Системы проектной документации для строительства (СПДС).

4.2 В состав рабочей документации систем отопления, вентиляции и кондиционирования (далее - системы) включают:

- рабочие чертежи, предназначенные для производства строительно-монтажных работ (далее - основной комплект рабочих чертежей марки ОВ);

- эскизные чертежи общих видов нетиповых изделий, конструкций, устройств, монтажных блоков (далее - эскизные чертежи общих видов нетиповых изделий);

- спецификацию оборудования, изделий и материалов;

- опросные листы и габаритные чертежи (при необходимости);

- локальную смету (при необходимости).

4.3 В состав основного комплекта рабочих чертежей марки ОВ включают:

- общие данные по рабочим чертежам;

- чертежи (планы и разрезы) систем;

- схемы систем;

- чертежи (планы и разрезы) и схемы установок систем.

В состав основного комплекта рабочих чертежей марки ОВ допускается включать:

- прямоугольные изометрические проекции систем, полученные визуализацией электронной модели здания (сооружения);

- рабочие чертежи встроенных тепловых пунктов при диаметре ввода теплоносителя до 150 мм.

4.4 Рабочие чертежи систем очистки пылевоздушных смесей и пылеудаления допускается выполнять в виде отдельного основного комплекта рабочих чертежей марки ПУ (пылеудаление).

4.5 Системам и установкам систем вентиляции, кондиционирования и воздушного отопления присваивают обозначение, состоящее из марки, принимаемой по таблице 1, и порядкового номера системы (установки) в пределах марки.

Таблица 1

Наименование системы (установки системы) Марка
С механическим побуждением:  
- приточная система вентиляции <*> П
- вытяжная система вентиляции <*> В
- воздушная (воздушно-тепловая) завеса У
- отопительный агрегат (воздухонагреватель) А
- система кондиционирования воздуха <*> К
- приточная система противодымной вентиляции <*> ДП
- вытяжная система противодымной вентиляции <*> ДВ
- система пылеудаления <*> ПУ
С естественным побуждением:  
- приточная система вентиляции ПЕ
- вытяжная система вентиляции ВЕ
- приточная система противодымной вентиляции ДПЕ
- вытяжная система противодымной вентиляции ДВЕ

<*> Установкам систем присваивают те же обозначения, что и системам, в которые они входят.

Пример - П1, В1, ВЕ1, К1

4.6 Элементам систем присваивают обозначения, состоящие из марки, принимаемой по таблице 2, и порядкового номера элемента в пределах марки.

Таблица 2

Наименование элемента Марка
Стояк системы отопления Ст
Главный стояк системы отопления ГСт
Горизонтальная ветвь ГВ
Компенсатор КП
Крепление (опора) КР
Лючок для замеров параметров воздуха ЛП
Лючок для чистки воздуховодов ЛВ
Местный отсос О

Пример - Ст1, Ст2, ЛП1, ЛВ1, О1

Допускается индексация стояков систем отопления прописными буквами в пределах обозначения стояка.

Пример - Ст2А, Ст2Б

При необходимости элементам систем, не включенным в таблицу 2, присваивают обозначения, состоящие из обозначения системы по 4.5 и через дефис порядкового номера элемента в пределах системы.

Пример - К3-1, К3-2

4.7 Трубопроводы и их элементы на чертежах указывают условными графическими обозначениями и/или упрощенными изображениями по ГОСТ 21.206. Трубопроводы на схемах указывают условными графическими обозначениями.

4.8 Буквенно-цифровые обозначения трубопроводов принимают по ГОСТ 21.205 и указывают на чертежах и схемах в соответствии с ГОСТ 21.206. Пример нанесения буквенно-цифровых обозначений приведен на рисунке 1.

Рисунок 1

4.9 Размер диаметра трубопровода или воздуховода и размеры сечения прямоугольного воздуховода наносят на полке линии-выноски.

В случае, когда буквенно-цифровое обозначение трубопровода или системы наносят на полке линии-выноски, допускается указывать под полкой линии-выноски диаметр трубопровода или диаметр (размеры сечения) воздуховода (см. рисунки 2 в, 2 г).

При указании номинального диаметра (условного прохода) арматуры на чертежах и схемах перед размерным числом приводят условное обозначение "DN".

При указании номинального диаметра трубопроводов, воздуховодов и их элементов на чертежах и схемах перед размерным числом приводят знак "" в соответствии с рисунком 2 а или условное обозначение "DN" в соответствии с рисунком 2 б. При указании наружного диаметра и толщины стенки перед размерным числом приводят знак "" (см. рисунок 2 в).

Рисунок 2

При указании размеров сечений прямоугольных воздуховодов, нанесенных на планах систем и расположенных в горизонтальной плоскости, сначала приводят ширину воздуховода и после знака "x" - его высоту.

4.10 Условные графические обозначения оборудования, арматуры, других элементов систем отопления, вентиляции и кондиционирования принимают по ГОСТ 21.205.

4.11 Условные графические изображения основного подъемно-транспортного оборудования принимают по ГОСТ 21.112 и выполняют в масштабе чертежа. Подъемно-транспортное оборудование, условные графические изображения которого в указанном стандарте не приведены, изображают упрощенно по аналогии, учитывая конструктивные особенности конкретного оборудования.

4.12 Условные обозначения приборов, средств автоматизации и линий связи, буквенные обозначения измеряемых величин и функциональных признаков приборов принимают по ГОСТ 21.208.

4.13 Рекомендуемые масштабы изображений на чертежах приведены в таблице 3.

Таблица 3

Наименование изображения Масштаб
1 План-схема размещения установок систем 1:400; 1:800
2 Планы и разрезы систем 1:50; 1:100; 1:200
3 Схемы систем в аксонометрической проекции 1:50; 1:100; 1:200
4 Планы и разрезы установок систем 1:50; 1:100
5 Фрагменты планов и разрезов систем 1:50; 1:100
6 Узлы планов и разрезов систем 1:20; 1:50
7 Узлы планов и разрезов установок систем 1:20
8 Узлы при детальном изображении 1:2; 1:5; 1:10
9 Узлы схем систем в аксонометрической проекции 1:10; 1:20; 1:50
10 Эскизные чертежи общих видов нетиповых изделий 1:5; 1:10; 1:20; 1:50; 1:100

4.14 Обозначения уклонов на разрезах и схемах наносят в соответствии с ГОСТ 21.101, при этом числовое значение уклона указывают в виде десятичной дроби с точностью до третьего знака после запятой.

5. Общие данные по рабочим чертежам

5.1 В состав общих данных по рабочим чертежам систем отопления, вентиляции и кондиционирования в дополнение к сведениям, предусмотренным ГОСТ 21.101, включают:

- план-схему размещения установок систем;

- характеристику систем;

- основные показатели систем ОВ.

5.2 Ведомость спецификаций, предусмотренную ГОСТ 21.101, в составе общих данных по рабочим чертежам марки ОВ не выполняют.

5.3 На план-схеме размещения установок систем наносят:

- контур здания (сооружения);

- координационные оси здания (сооружения) и общие размеры между крайними координационными осями;

- установки систем;

- тепловой пункт;

- ввод теплоносителя.

Установки систем и тепловой пункт на план-схеме изображают точками диаметром 1 - 2 мм с указанием на полке линии-выноски обозначения установки и в круглых скобках - номера листа, на котором приведен чертеж установки.

Наименование план-схемы размещения установок систем указывают сокращенно "План-схема".

Пример выполнения план-схемы размещения установок систем приведен на рисунке А.1 (приложение А).

5.4 Характеристику систем выполняют в виде таблицы по форме 1.

Форма 1

Характеристика систем

Продолжение формы 1

Окончание формы 1

Примечание - Размеры граф формы 1 рекомендуемые.

При отсутствии в системах отдельных видов оборудования из таблицы исключают соответствующие графы.

Если таблицу делят на части, то в начале каждой последующей части помещают графу "Обозначение системы".

В типовых проектах характеристику воздухонагревателей и, при необходимости, другого оборудования указывают для принятых расчетных температур наружного воздуха.

5.5 Основные показатели систем ОВ приводят в виде таблицы по форме 2. При необходимости в таблицу включают дополнительные графы (например, удельный расход теплоты).

Форма 2

Основные показатели систем ОВ

Примечание - Размеры граф формы 2 рекомендуемые.

5.6 В общих указаниях в дополнение к сведениям, указанным в ГОСТ 21.101, приводят:

- ссылки на нормативные документы, по которым выполнены расчеты систем отопления, вентиляции и кондиционирования;

- расчетные параметры наружного и внутреннего воздуха;

- данные о теплоносителе, холодоносителе (наименование, расход, параметры);

- требования к изготовлению, монтажу, испытанию, антикоррозионной защите, тепловой и противопожарной изоляции, огнезащитному покрытию воздуховодов и трубопроводов, а также состав изоляционных конструкций;

- особые требования к установкам (взрывобезопасность, кислотостойкость и т.п.).

В общих указаниях не следует повторять технические требования, помещенные на других листах основного комплекта рабочих чертежей марки ОВ, и приводить описание технических решений, принятых в рабочих чертежах.

6. Чертежи и схемы систем

6.1. Планы и разрезы систем

6.1.1 Изображения - планы, разрезы и выносные элементы (фрагменты и узлы планов и разрезов) на чертежах систем выполняют в масштабах по таблице 3.

6.1.2 Планы систем отопления (теплоснабжения установок) допускается совмещать с планами систем вентиляции и кондиционирования. Разрезы систем отопления, как правило, совмещают с разрезами систем вентиляции и кондиционирования.

6.1.3 На планах, разрезах и их фрагментах оборудование, установки, воздуховоды, трубопроводы и другие элементы систем изображают толстой основной линией.

Строительные конструкции и технологическое оборудование, а также пограничные (соседние) инженерные коммуникации, влияющие на прокладку трубопроводов (воздуховодов) систем, на планах, разрезах и их фрагментах изображают упрощенно тонкой линией.

6.1.4 Дефлекторы, крышные вентиляторы и другие элементы систем, расположенные на кровле здания, наносят, как правило, утолщенной штрихпунктирной линией (наложенная проекция) на плане систем одноэтажного здания или верхнего этажа многоэтажного здания (рисунок 3). При этом сложные вентиляционные установки (например, кондиционеры, приточные и/или вытяжные установки), расположенные на кровле здания, следует выполнять на отдельном плане кровли.

Рисунок 3

6.1.5 При сложном многоярусном расположении воздуховодов и других элементов систем вентиляции и кондиционирования в пределах одного этажа для наглядности их взаимосвязей выполняют планы на различных уровнях этого этажа.

6.1.6 Трубопроводы, выполненные условными графическими обозначениями (в одну линию) и расположенные друг над другом в одной плоскости (рисунок 4 а), на планах систем условно изображают параллельными линиями в соответствии с рисунком 4 б.

Рисунок 4

6.1.7 Элементы систем отопления и теплоснабжения установок, кроме оборудования, на планах и разрезах чертежей систем указывают условными графическими обозначениями, элементы систем вентиляции и кондиционирования, а также оборудование систем отопления и теплоснабжения установок (например, отопительные агрегаты, насосы) - в виде упрощенных графических изображений.

6.1.8 На фрагментах и узлах планов, разрезов трубопроводы, арматуру и другие устройства изображают упрощенно или условными графическими обозначениями в зависимости от масштаба чертежа и диаметра трубопровода. Трубопроводы, у которых на чертеже диаметры равны 2 мм и более, изображают упрощенно двумя линиями. При выполнении трубопровода упрощенно двумя линиями арматуру и другие устройства изображают также упрощенно с учетом их габаритных размеров и расположения в пространстве.

6.1.9 На планах и разрезах систем наносят и указывают:

а) координационные оси здания (сооружения) и расстояния между ними (для жилых зданий - расстояния между осями секций);

б) строительные конструкции, технологическое оборудование, имеющее местные отсосы, а также пограничные (соседние) инженерные коммуникации и оборудование, влияющие на прокладку трубопроводов (воздуховодов) систем, на планах, разрезах и их фрагментах изображают упрощенно тонкой линией;

в) отметки чистых полов этажей и основных площадок;

г) размерные привязки установок систем, воздуховодов, основных трубопроводов, технологического оборудования, неподвижных опор и компенсаторов к координационным осям или элементам конструкций здания (сооружения);

д) обозначения систем (установок систем);

е) буквенно-цифровые обозначения трубопроводов;

ж) диаметры (сечения) воздуховодов и трубопроводов;

и) обозначения стояков, компенсаторов, горизонтальных ветвей систем отопления;

к) отопительные приборы с указанием на полках линий-выносок количества секций радиаторов, количества и длины ребристых труб, количества труб в регистре и длины регистра из гладких труб или обозначения регистра (для других отопительных приборов указывают аналогичные сведения). При установке у отопительного прибора автоматического терморегулятора под полкой линии-выноски допускается указывать расчетный показатель по шкале настройки (рисунок 5).

Рисунок 5

На планах, кроме того, указывают наименования помещений и под ними в прямоугольнике - категории помещений по взрывопожарной и пожарной опасности, а на разрезах - отметки уровней осей трубопроводов и круглых воздуховодов, низа прямоугольных воздуховодов, опорных конструкций установок систем, верха выхлопных воздуховодов вытяжных систем. Для жилых зданий наименования помещений и категории помещений по взрывопожарной и пожарной опасности не указывают.

Допускается наименования помещений и категории помещений по взрывопожарной и пожарной опасности приводить в экспликации помещений по форме 2 ГОСТ 21.501. В этом случае на планах вместо наименований помещений проставляют их номера. Для жилых зданий экспликацию помещений, как правило, не выполняют.

6.1.10 В типовых проектах (типовых проектных решениях) зданий и сооружений для двух и более расчетных температур наружного воздуха и (или) для двух и более этажей номер этажа, расчетную температуру наружного воздуха, данные по отопительным приборам, указанным на планах, приводят в таблицах (рисунок 6). Таблицы располагают за пределами контура плана напротив изображений отопительных приборов.

Рисунок 6

При наличии на чертеже нескольких таблиц допускается наименования граф приводить только на одной из них (рисунок 7).

Рисунок 7

В типовых проектах (типовых проектных решениях) зданий и сооружений для двух и более расчетных температур наружного воздуха диаметры трубопроводов и соответствующие расчетные температуры наружного воздуха указывают на полках линии-выноски (рисунок 8).

Рисунок 8

6.1.11 На листе с планами систем вентиляции помещают таблицу местных отсосов от технологического оборудования по форме 3. Допускается таблицу местных отсосов приводить на отдельных листах.

Форма 3

Местные отсосы от технологического оборудования

Окончание формы 3

Примечание - Размеры граф формы 3 рекомендуемые.

6.1.12 В наименованиях планов систем указывают отметку чистого пола этажа, номер этажа или обозначение секущей плоскости.

Пример - План на отм. 0,000; План на отм. +3,600; План 4-го этажа.

В наименованиях разрезов систем указывают обозначение соответствующей секущей плоскости.

Пример - Разрез 1 - 1

При выполнении части плана в наименовании указывают оси, ограничивающие эту часть плана.

Пример - План на отм. 0,000 между осями 1 - 8 и А - Д

При раздельном выполнении планов систем отопления и планов систем вентиляции и кондиционирования в наименованиях планов указывают также обозначения или наименования систем.

Пример - Система отопления. План на отм. 0,000

Примеры выполнения планов и разрезов систем приведены на рисунках Б.1 - Б.3 (приложение Б).

6.2. Схемы систем

6.2.1 Схемы систем и узлы схем выполняют в аксонометрической косоугольной фронтальной изометрической проекции в масштабах по таблице 3. Допускается выполнять схемы в прямоугольной изометрической проекции по ГОСТ 2.317.

6.2.2 На схемах элементы систем, как правило, указывают условными графическими обозначениями. При необходимости отдельные элементы системы на схеме, выполняемой в аксонометрической проекции, изображают упрощенно в виде контурных очертаний.

Трубопроводы, воздуховоды и другие элементы систем на схемах изображают толстой основной линией.

6.2.3 При большой протяженности и (или) сложном расположении воздуховодов и трубопроводов допускается изображать их с разрывом в виде пунктирной линии. Места разрывов воздуховодов и трубопроводов обозначают строчными буквами (рисунок 9).

Рисунок 9

6.2.4 На схемах систем отопления (теплоснабжения установок) наносят и указывают:

а) трубопроводы и их диаметры;

б) графическое обозначение изолированных участков трубопровода (при необходимости);

в) буквенно-цифровые обозначения трубопроводов;

г) отметки уровней осей трубопроводов;

д) уклоны трубопроводов;

е) размеры горизонтальных участков трубопроводов (при наличии разрывов);

ж) неподвижные опоры, компенсаторы и нетиповые крепления с указанием на полке линии-выноски обозначения элемента и под полкой - обозначения документа <*>;

и) запорно-регулирующую арматуру с указанием на полке линии-выноски диаметра (типа) арматуры и под полкой - обозначения арматуры по каталогу (обозначения документа);

к) стояки (горизонтальные ветви) систем отопления и их обозначения;

л) отопительные приборы и сведения о них в соответствии с перечислением к) 6.1.9. Для несложных систем отопления сведения об отопительных приборах на схеме не приводят [например, на схеме системы отопления здания несложной формы с однорядной (в плане и по высоте) установкой отопительных приборов];

м) обозначения установок систем (на схемах систем теплоснабжения установок);

н) закладные конструкции (отборные устройства для установки контрольно-измерительных приборов) с указанием обозначения конструкции и документа. Закладные конструкции на трубопроводах и других элементах систем указывают точками диаметром 2 мм;

п) контрольно-измерительные приборы (при необходимости) и другие элементы систем в соответствии с 4.12.

<*> При наличии на схеме нескольких элементов с одинаковым обозначением допускается указывать обозначение документа только для одного из них.

6.2.5 В наименовании схемы системы отопления для двух и более систем в здании указывают номер системы. В основной надписи наименования схемы указывают полностью.

Пример - Схема системы отопления 1.

В наименовании схемы системы теплоснабжения установок указывают обозначения установок. В основной надписи наименования схем систем отопления и теплоснабжения установок указывают полностью.

Пример - Схема системы теплоснабжения установок А1, А2, У1, У2.

Над схемами наименования схем систем отопления и теплоснабжения установок указывают сокращенно.

Примеры

1 Система отопления 1.

2 Система теплоснабжения установок А1, А2, У1, У2.

Примеры выполнения схемы системы отопления и схемы теплоснабжения установок приведены на рисунках В.1 и В.2 (приложение В).

6.2.6 Допускается вместо аксонометрических схем систем отопления приводить развернутые расчетные схемы систем.

Для жилых зданий допускается выполнять схемы систем отопления только на подземную часть или технический этаж здания. Для надземной части здания выполняют схемы стояков и, при необходимости, схему разводки по чердаку.

6.2.7 На листе, где изображены схемы систем отопления и теплоснабжения установок, как правило, приводят:

- схемы узлов управления системами отопления и теплоснабжения установок. В наименованиях узлов управления системами отопления и теплоснабжения установок указывают номер узла.

Примеры

Узел управления 1.

Узел управления 2;

- таблицу размеров компенсаторов по форме 4;

- узлы схем систем отопления и теплоснабжения установок.

Форма 4

Размеры компенсаторов

На схемах узлов управления системами отопления и теплоснабжения установок, а также на узлах схем систем отопления и теплоснабжения установок для запорно-регулирующей арматуры указывают на полке линии-выноски диаметр (тип) арматуры и под полкой - обозначение арматуры по каталогу (обозначение документа).

При необходимости к схеме узла управления системами отопления и теплоснабжения установок выполняют спецификацию по форме 7 ГОСТ 21.101.

Примеры выполнения схемы узла управления системами отопления и теплоснабжения установок и узла схемы систем отопления и теплоснабжения установок приведены соответственно на рисунках В.3 и В.4 (приложение В).

6.2.8 На схемах систем вентиляции и кондиционирования наносят и указывают:

- воздуховоды, их диаметры (сечения) и количество проходящего воздуха (L), в кубических метрах в час (рисунок 10);

- трубопроводы теплохолодоносителя или хладагента и их диаметры (при необходимости);

- оборудование систем и установок;

- контуры технологического оборудования, имеющего местные отсосы (в сложных случаях);

- графическое обозначение изолированных участков воздуховодов, трубопроводов (при необходимости);

- графическое обозначение участков воздуховода с огнезащитным покрытием;

- буквенно-цифровые обозначения трубопроводов;

- отметки уровней осей круглых и низа прямоугольных воздуховодов, осей трубопроводов;

- лючки для замеров параметров воздуха и чистки воздуховодов с указанием на полке линии-выноски обозначения лючка (см. 4.6) и под полкой - обозначения документа <*> (рисунок 11);

Рисунок 11

- местные отсосы с указанием их наименования и обозначения на полке линии-выноски и обозначения документа <*> - под полкой. Под условным графическим обозначением местного отсоса от технологического оборудования указывают номер позиции по таблице местных отсосов от технологического оборудования (см. 6.1.11). Для встроенных местных отсосов, поставляемых комплектно с технологическим оборудованием, обозначение местного отсоса и обозначение документа не указывают;

- регулирующие устройства, воздухораспределители, крепления (опоры) и другие элементы систем вентиляции и кондиционирования с указанием на полке линии-выноски обозначения элемента системы и под полкой - обозначения документа <*>. При этом для нетиповых изделий на полке линии-выноски указывают наименование и буквенно-цифровое обозначение изделия (8.4) и под полкой - обозначение эскизного чертежа;

- закладные конструкции (отборные устройства для установки контрольно-измерительных приборов) в соответствии с перечислением н) 6.2.4;

- контрольно-измерительные приборы (при необходимости) в соответствии с 4.12.

<*> При наличии на схеме нескольких элементов с одинаковым обозначением допускается указывать обозначение документа только для одного из них.

6.2.9 В наименованиях схем систем вентиляции и кондиционирования указывают обозначения систем. В основной надписи наименования схем систем вентиляции и кондиционирования указывают полностью.

Пример - Схемы систем П5, В8, К3.

Над схемами наименования схем систем вентиляции и кондиционирования указывают сокращенно.

Пример - П5, В8, К3.

Примеры выполнения схем систем вентиляции и кондиционирования приведены на рисунках Г.1 и Г.2 (приложение Г).

7. Чертежи установок систем

7.1 Чертежи установок систем отопления, вентиляции и кондиционирования (далее - чертежи установок) выполняют при наличии в установке двух и более составных частей (элементов установки), необходимости показа способов крепления составных частей установки между собой или к опорным конструкциям, отсутствии типовых монтажных чертежей или монтажных чертежей предприятия-изготовителя. В остальных случаях чертежи установок не выполняют.

7.2 Чертежи тепловых пунктов, выполняемые в составе основного комплекта рабочих чертежей марки ОВ (см. 4.3), рассматривают в качестве чертежей установок. Каждому тепловому пункту присваивают обозначение, состоящее из марки "ТП" и порядкового номера в пределах марки.

Пример - ТП1, ТП2.

7.3 Изображения (планы, разрезы и узлы) на чертежах установок (тепловых пунктов) выполняют в масштабах по таблице 3.

7.4 На планах и разрезах элементы установок (тепловых пунктов) изображают упрощенно. При необходимости показа способов крепления составных частей установки или их соединения между собой соответствующие элементы изображают детально, как правило, на узлах планов и разрезов.

7.5 Правила изображения трубопроводов, арматуры и других устройств на планах, разрезах и узлах установок (тепловых пунктов) принимают по 6.1.8.

7.6 На планах, разрезах и узлах установок (тепловых пунктов) оборудование, конструкции установок, трубопроводы, арматуру и другие устройства изображают толстой основной линией, строительные конструкции - тонкой линией.

Воздуховоды, расположенные над оборудованием (конструкциями) установки, на планах изображают, как правило, утолщенной штрихпунктирной линией (наложенная проекция).

7.7 На планах и разрезах установок (тепловых пунктов) наносят и указывают:

- координационные оси здания (сооружения) и расстояния между ними;

- отметки чистых полов этажей (площадок);

- размерные привязки установок к координационным осям или к элементам конструкций здания (сооружения);

- основные размеры и отметки уровней элементов установок;

- буквенно-цифровые обозначения трубопроводов;

- диаметры (сечения) воздуховодов и трубопроводов;

- позиционные обозначения оборудования, арматуры, закладных конструкций и других устройств.

На планах и разрезах указывают и элементы установок (тепловых пунктов), и строительные конструкции.

7.8 Примеры выполнения планов и разрезов установок приведены на рисунках Д.1 и Д.2 (приложение Д).

7.9 В состав чертежей теплового пункта кроме планов, разрезов и узлов, как правило, включают принципиальную схему теплового пункта (далее - схема).

7.9.1 Схему выполняют без соблюдения масштаба, действительное пространственное расположение оборудования и трубопроводов учитывают приближенно.

Оборудование, трубопроводы, арматуру и другие устройства на схеме указывают условными графическими обозначениями. При необходимости оборудование на схеме изображают упрощенными внешними очертаниями. Закладные конструкции (отборные устройства для установки контрольно-измерительных приборов) на схеме указывают точками диаметром 2 мм.

Проектируемые трубопроводы, арматуру и другие устройства на схеме изображают сплошной толстой основной линией. Оборудование, а также трубопроводы, арматуру и другие устройства, поставляемые комплектно с оборудованием или действующие, изображают сплошной тонкой линией.

7.9.2 На схеме наносят и указывают:

- оборудование, трубопроводы, арматуру и другие устройства;

- контрольно-измерительные приборы в соответствии с 4.12 (при необходимости);

- буквенно-цифровые обозначения трубопроводов;

- диаметры трубопроводов;

- позиционные обозначения оборудования, арматуры, закладных конструкций и других устройств;

- направление потока транспортируемой среды.

7.9.3 На листе, где изображена принципиальная схема, приводят, при необходимости, узлы схемы и текстовые пояснения.

7.10 Элементам установок присваивают позиционные обозначения, состоящие из обозначения установки по 4.4 и через точку порядкового номера элемента в пределах установки.

Пример - П1.1, П1.2, В5.1, В5.2.

7.11 Элементам теплового пункта присваивают позиционные обозначения, состоящие из его обозначения по 7.2 и через точку порядкового номера элемента в пределах каждого теплового пункта.

Пример - ТП1.1, ТП1.2, ТП2.1, ТП2.2.

7.12 На чертежах установок (тепловых пунктов) приводят, при необходимости, технические требования к их монтажу.

7.13 К чертежам установок (тепловых пунктов) составляют спецификацию по форме 7 ГОСТ 21.101, которую помещают, как правило, на листе, где изображены планы установок. Допускается выполнять спецификацию на отдельных листах.

Над спецификацией, помещенной на листе с изображениями установок, приводят ее наименование, например "Спецификация установок П1, П2, А1, А2".

7.14 В спецификацию к чертежам установок (тепловых пунктов) включают оборудование, конструкции установок, арматуру, закладные конструкции и другие устройства, а также трубопроводы по каждому диаметру.

Элементы трубопроводов (отводы, переходы, тройники, крестовины, фланцы, болты, гайки, шайбы, прокладки) в спецификацию не включают.

7.15 В графе "Поз." указывают позиционное обозначение оборудования, арматуры, закладных конструкций и других устройств в пределах установки.

Для трубопроводов графу не заполняют.

В графе "Наименование" для каждой установки записывают буквенно-цифровое обозначение по 4.5, 7.2 в виде заголовка и подчеркивают.

7.16 В спецификации элементы записывают по группам в следующей последовательности:

- оборудование;

- арматура;

- другие изделия;

- закладные конструкции;

- трубопроводы по каждому диаметру.

7.17 В основной надписи перед наименованиями изображений указывают наименования и буквенно-цифровые обозначения установок по 4.5 и 7.2.

Примеры

1 Установки систем П1, В1.

2 Тепловой пункт ТП1.

8. Эскизные чертежи общих видов нетиповых изделий

8.1 Эскизные чертежи общих видов нетиповых изделий (далее - эскизные чертежи) выполняют и обозначают по ГОСТ 21.114 с учетом требований настоящего стандарта.

8.2 Эскизные чертежи разрабатывают на несложные в изготовлении нетиповые изделия (конструкции, устройства, монтажные блоки (кроме отопительно-вентиляционного оборудования индивидуального изготовления), конструкции креплений трубопроводов, воздуховодов и т.п.) при отсутствии их серийного производства, типовой документации, стандартов или других документов на эти изделия.

8.3 Эскизный (групповой эскизный) чертеж определяет исходную конструкцию нетипового изделия, содержит упрощенное изображение, основные параметры и технические требования к изделию в объеме исходных данных (задания), необходимых для разработки конструкторской документации.

Объем исходных данных, необходимых для разработки конструкторской документации нетипового изделия, устанавливает разработчик эскизного чертежа в соответствии с ГОСТ 21.114.

8.4 В наименовании нетипового изделия указывают буквенно-цифровое обозначение в пределах каждого вида нетипового изделия. В наименование изделия, как правило, не включают сведения о назначении изделия и его местоположении.

Пример - Регистр из гладких труб ГТ1, Крепление КР2, Отсос О1.

8.5 Эскизные чертежи выполняют в масштабах по таблице 3. Допускается выполнять эскизные чертежи без точного соблюдения масштаба, если это не искажает наглядности изображения и не затрудняет чтение чертежа.

8.6 Пример выполнения эскизного чертежа общего вида нетипового изделия приведен на рисунке Е.1 (приложение Е).

9. Спецификация оборудования, изделий и материалов

9.1 Спецификацию оборудования, изделий и материалов (далее - спецификация) выполняют и обозначают по ГОСТ 21.110 с учетом требований настоящего стандарта.

9.2 Спецификацию или ее части составляют по разделам:

- отопление;

- теплоснабжение установок систем;

- вентиляция или вентиляция и кондиционирование (при его наличии).

9.3 Элементы систем (оборудование, изделия) и материалы в разделах спецификации записывают по группам в следующей последовательности:

- в разделах "Отопление" и "Теплоснабжение установок систем":

- отопительное оборудование,

- трубопроводная арматура,

- другие элементы систем,

- закладные конструкции (отборные устройства для установки контрольно-измерительных приборов),

- трубопроводы,

- теплоизоляционные конструкции,

- материалы.

Трубопроводы в разделах спецификации записывают по каждому диаметру.

Элементы трубопроводов, номенклатуру и количество которых определяют по действующим технологическим и производственным нормам, в спецификацию не включают. К таким элементам могут быть отнесены отводы, переходы, тройники, крестовины, фланцы, болты, гайки, шайбы, прокладки и т.п.;

- в разделе "Вентиляция" ("Вентиляция и кондиционирование"):

- оборудование вентиляционное и кондиционирования,

- другие элементы систем,

- закладные конструкции,

- воздуховоды,

- конструкции теплоизоляционные,

- материалы.

Воздуховоды в разделе спецификации записывают по каждому диаметру (сечению).

Элементы систем (оборудование, изделия) и материалы в пределах указанных групп размещают в порядке возрастания их основных параметров (например, типа, марки, диаметра, сечения).

9.4 В спецификации принимают следующие единицы измерений:

- оборудование (установки), арматура, воздухораспределители, заслонки, местные отсосы (укрытия), опоры (крепления) трубопроводов и воздуховодов, закладные конструкции (отборные устройства для установки контрольно-измерительных приборов) и другие элементы систем - шт.;

- радиаторы - секций/кВт (шт./кВт);

- конвекторы, трубы ребристые, регистры из гладких труб - шт./кВт;

- трубопроводы и воздуховоды - м;

- материалы изоляционные - м3;

- материалы покрытий и защиты - м2;

- другие материалы - кг.

10. Опросные листы и габаритные чертежи

10.1 Опросные листы и габаритные чертежи выполняют в соответствии с данными изготовителей оборудования и комплектуют их в виде отдельного выпуска с наименованием "Опросные листы".

Выпуску "Опросные листы" присваивают самостоятельное обозначение, состоящее из обозначения основного комплекта рабочих чертежей марки ОВ и через точку шифра "ОЛ". Обозначение указывают на титульном листе выпуска опросных листов.

Пример - 2345-11-ОВ.ОЛ.

10.2 Каждому опросному листу (габаритному чертежу) присваивают порядковый номер или, при необходимости, самостоятельное обозначение, состоящее из обозначения основного комплекта рабочих чертежей и через точку шифра "ОЛ" и порядкового номера опросного листа (габаритного чертежа) в пределах данного основного комплекта.

Пример - 2345-11-ОВ.ОЛ1.

10.3 Если опросных листов (габаритных чертежей) два и более, после титульного листа выпуска опросных листов помещают содержание. Содержание выполняют по форме 2 ГОСТ 21.101. Содержанию присваивают обозначение, состоящее из обозначения выпуска опросных листов и через дефис шифра "С".

Пример - 2345-11-ОВ.ОЛ-С.

Листы содержания оформляют основной надписью. На первом листе содержания основную надпись выполняют по форме 5 и на последующих листах - по форме 6 ГОСТ 21.101. В графе 5 основной надписи указывают "Содержание".

В графах содержания (форма 2 ГОСТ 21.101) указывают:

- в графе "Обозначение" - обозначение или порядковый номер опросного листа (габаритного чертежа);

- в графе "Наименование" - наименование опросного листа (габаритного чертежа) в полном соответствии с наименованием, указанным на опросном листе (габаритном чертеже);

- в графе "Примечание" - сведения об изменениях, вносимых в опросные листы (габаритные чертежи).

10.4 В наименовании опросного листа (габаритного чертежа) указывают обозначение или порядковый номер в пределах выпуска.

10.5 Изменения в опросные листы (габаритные чертежи) вносят в соответствии с ГОСТ 21.101 с учетом дополнительных требований настоящего стандарта.

Изменения в опросные листы (габаритные чертежи) вносят самостоятельно в пределах каждого опросного листа (габаритного чертежа).

Сведения об изменениях, вносимых в опросные листы (габаритные чертежи), приводят в графе "Примечание" содержания выпуска опросных листов.

10.6 Выпуск опросных листов записывают в разделе "Прилагаемые документы" ведомости ссылочных и прилагаемых документов, входящей в общие данные по рабочим чертежам основного комплекта марки ОВ.

Приложение А
(справочное)

ПРИМЕР ВЫПОЛНЕНИЯ ПЛАН-СХЕМЫ РАЗМЕЩЕНИЯ УСТАНОВОК СИСТЕМ

План-схема

Рисунок А.1

Приложение Б
(справочное)

ПРИМЕРЫ ВЫПОЛНЕНИЯ ПЛАНОВ И РАЗРЕЗОВ СИСТЕМ

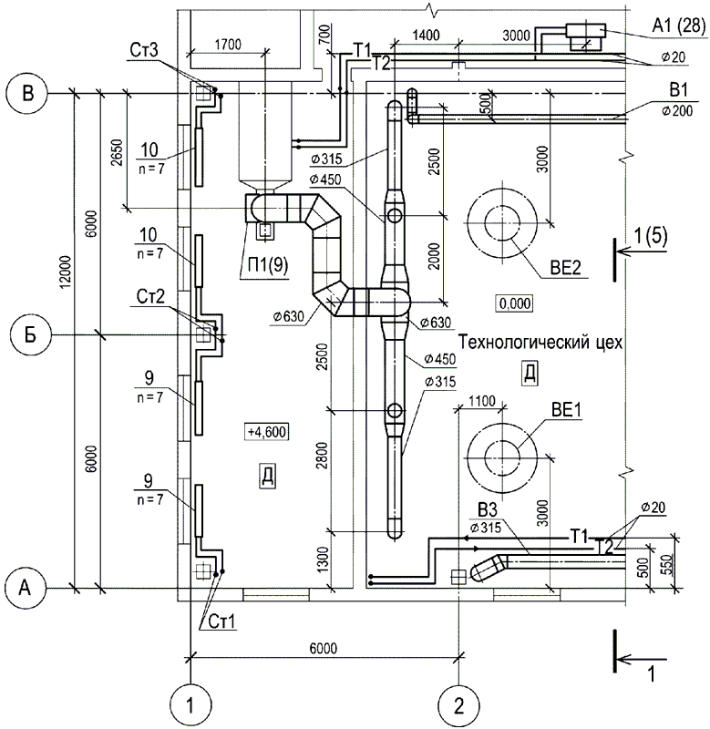
План 2-2

Рисунок Б.1 - Пример выполнения плана систем отопления и вентиляции

План 3-3

Рисунок Б.2 - Пример выполнения плана систем отопления и вентиляции

Разрез 1-1

Рисунок Б.3 - Пример выполнения разреза систем

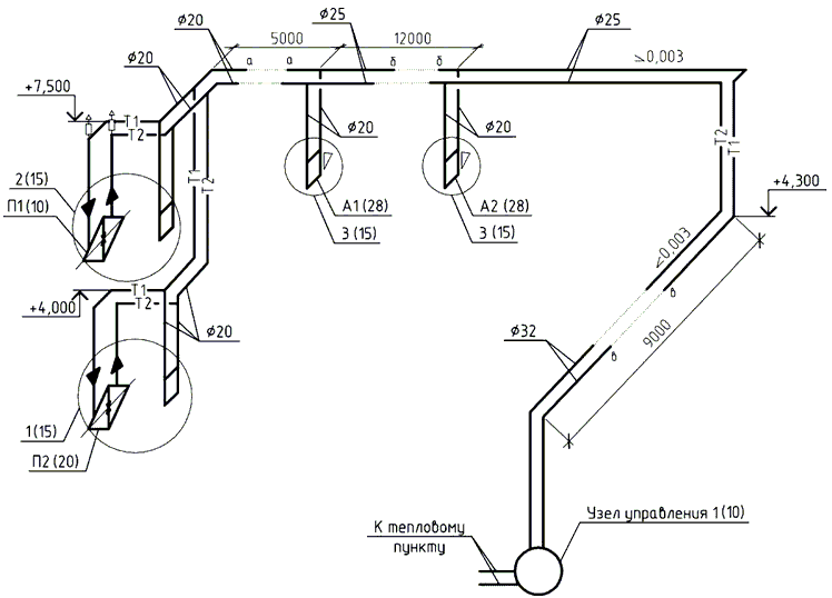
Приложение В
(справочное)

ПРИМЕРЫ ВЫПОЛНЕНИЯ СХЕМ СИСТЕМ ОТОПЛЕНИЯ И ТЕПЛОСНАБЖЕНИЯ УСТАНОВОК

Система отопления

Рисунок В.1 - Пример выполнения схемы системы отопления

Система теплоснабжения установок А1, А2, П1, П2

Рисунок В.2 - Пример выполнения схемы системы теплоснабжения установок

Узел управления 1

Рисунок В.3 - Пример выполнения схемы узла управления системами отопления и теплоснабжения установок

Рисунок В.4 - Пример выполнения узла схемы системы теплоснабжения установок

Приложение Г
(справочное)

ПРИМЕРЫ ВЫПОЛНЕНИЯ СХЕМ СИСТЕМ ВЕНТИЛЯЦИИ

Рисунок Г.1 - Пример выполнения схемы приточной системы вентиляции

Рисунок Г.2 - Пример выполнения схемы вытяжной системы вентиляции

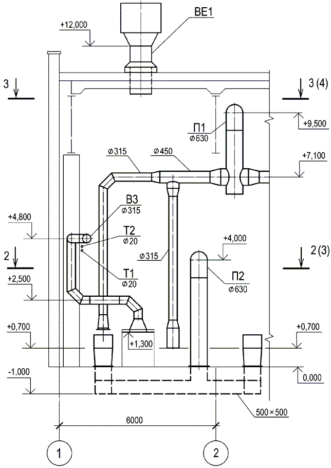
Приложение Д
(справочное)

ПРИМЕРЫ ВЫПОЛНЕНИЯ ЧЕРТЕЖЕЙ УСТАНОВОК СИСТЕМ

План на отм. +4,600

Рисунок Д.1 - Пример выполнения плана установки

Рисунок Д.2 - Пример выполнения разреза установки

Приложение Е
(справочное)

ПРИМЕР ВЫПОЛНЕНИЯ ЭСКИЗНОГО ЧЕРТЕЖА ОБЩЕГО ВИДА НЕТИПОВОГО ИЗДЕЛИЯ

Рисунок Е.1