Конструкции строительные. Светопрозрачные ограждающие конструкции и заполнения проемов. Метод испытаний на огнестойкость. ГОСТ р 53308-2009

(утв. Приказом Ростехрегулирования от 18.02.2009 N 84-СТ)
Редакция от 18.02.2009 — Документ утратил силу, см. «Приказ Росстандарта от 07.06.2024 N 725-СТ»

НАЦИОНАЛЬНЫЙ СТАНДАРТ РОССИЙСКОЙ ФЕДЕРАЦИИ

КОНСТРУКЦИИ СТРОИТЕЛЬНЫЕ

СВЕТОПРОЗРАЧНЫЕ ОГРАЖДАЮЩИЕ КОНСТРУКЦИИ И ЗАПОЛНЕНИЯ ПРОЕМОВ

МЕТОД ИСПЫТАНИЙ НА ОГНЕСТОЙКОСТЬ

Building structures. Fire-resistance tests methods

ГОСТ Р 53308-2009

Дата введения
1 мая 2009 года

Предисловие

Цели и принципы стандартизации в Российской Федерации установлены Федеральным законом от 27 декабря 2002 г. N 184-ФЗ "О техническом регулировании", а правила применения национальных стандартов Российской Федерации - ГОСТ Р 1.0-2004 "Стандартизация в Российской Федерации. Основные положения".

Сведения о стандарте

1. Разработан ФГУ ВНИИПО МЧС России, ГУП ЦНИИСК им. Кучеренко Госстроя России при участии ФГУП ЦНС Госстроя России.

2. Внесен Техническим комитетом по стандартизации ТК 274 "Пожарная безопасность".

3. Утвержден и введен в действие Приказом Федерального агентства по техническому регулированию и метрологии от 18 февраля 2009 г. N 84-ст.

4. Введен впервые.

Информация об изменениях к настоящему стандарту публикуется в ежегодно издаваемом информационном указателе "Национальные стандарты", а текст изменений и поправок - в ежемесячно издаваемых информационных указателях "Национальные стандарты". В случае пересмотра (замены) или отмены настоящего стандарта соответствующее уведомление будет опубликовано в ежемесячно издаваемом информационном указателе "Национальные стандарты". Соответствующая информация, уведомление и тексты размещаются также в информационной системе общего пользования - на официальном сайте Федерального агентства по техническому регулированию и метрологии в сети Интернет.

1. Область применения

1.1. Настоящий стандарт устанавливает метод испытания на огнестойкость (в том числе и для целей сертификации):

- наружных ненесущих (фасадных) стен, перегородок, фрагментов горизонтальных конструкций (покрытий и перекрытий) со светопропускающими элементами;

- дверей, ворот, люков (далее - дверей) со светопропускающими элементами площадью более 25% от площади проема в свету, а также окон, предназначенных для заполнения проемов в противопожарных преградах.

1.2. Настоящий стандарт применяется совместно с ГОСТ 30247.0, ГОСТ 30247.1, ГОСТ 30247.2-97.

1.3. Настоящий стандарт не распространяется на испытания дверей шахт лифтов.

2. Нормативные ссылки

В настоящем стандарте использованы нормативные ссылки на следующие стандарты:

ГОСТ 12.1.004-91*. Система стандартов безопасности труда. Пожарная безопасность. Общие требования

ГОСТ 12.1.019-79*. Система стандартов безопасности труда. Электробезопасность. Общие требования и номенклатура видов защиты

ГОСТ 12.1.033-81. Пожарная безопасность. Термины и определения

ГОСТ 30247.0-94. Конструкции строительные. Методы испытаний на огнестойкость. Общие требования

ГОСТ 30247.1-94. Конструкции строительные. Методы испытаний на огнестойкость. Несущие и ограждающие конструкции

ГОСТ 30247.2-97. Конструкции строительные. Методы испытаний на огнестойкость. Двери и ворота

СТ СЭВ 383.87. Пожарная безопасность в строительстве. Термины и определения.

Примечание. При пользовании настоящим стандартом целесообразно проверить действие ссылочных стандартов в информационной системе общего пользования - на официальном сайте Федерального агентства по техническому регулированию и метрологии в сети Интернет или по ежегодно издаваемому информационному указателю "Национальные стандарты", который опубликован по состоянию на 1 января текущего года, и по соответствующим ежемесячно издаваемым информационным указателям, опубликованным в текущем году. Если ссылочный стандарт заменен (изменен), то при пользовании настоящим стандартом следует руководствоваться заменяющим (измененным) стандартом. Если ссылочный стандарт отменен без замены, то положение, в котором дана ссылка на него, применяется в части, не затрагивающей эту ссылку.

3. Термины и определения

В настоящем стандарте применены следующие термины с соответствующими определениями:

3.1. светопрозрачная ограждающая конструкция: Конструкция (стена, перегородка и т.д.) со светопропускающими элементами, предназначенная для ограждения или разделения объемов (помещений) здания.

3.2. светопрозрачное заполнение проема: Конструкция (дверь) со светопропускающими элементами, служащая для заполнения проемов в стенах, перегородках, покрытиях, перекрытиях.

3.3. светопропускающий элемент: Элемент конструкции, обеспечивающий естественное освещение объема или помещения и имеющий коэффициент светопропускания больше нуля при нормальных условиях эксплуатации.

4. Сущность метода

Сущность метода испытаний заключается в определении времени от начала одностороннего теплового воздействия при стандартном температурном режиме на образец для испытаний (далее - образец) до наступления одного из нормируемых предельных состояний по огнестойкости в соответствии с настоящим стандартом.

5. Предельные состояния

При испытаниях образцов светопрозрачных ограждающих конструкций и заполнений проемов различают следующие предельные состояния.

5.1. Потеря несущей способности R вследствие обрушения конструкции или возникновения предельных деформаций в соответствии с ГОСТ 30247.1-94.

5.2. Потеря целостности E вследствие:

а) появления устойчивого пламени на необогреваемой поверхности образца длительностью 10 с и более;

б) воспламенения или возникновения тления со свечением ватного тампона в результате воздействия огня или горячих газов, проникающих через зазоры, щели, отверстия, притворы, лабиринты и т.п.;

в) образования в конструкции образца сквозных отверстий (щелей) с размерами, позволяющими щупу диаметром (6 +/- 1) мм проникать и перемещаться вдоль отверстия (щели) на расстояние не менее 150 мм, или щупу диаметром (25 +/- 1) мм беспрепятственно проникать в сквозные отверстия.

5.3. Потеря теплоизолирующей способности I вследствие:

а) повышения температуры на необогреваемой поверхности конструкции в среднем более чем на 140 °C или в любой контролируемой точке этой поверхности более чем на 180 °C в сравнении с температурой конструкции до испытания;

б) достижения температуры 300 °C (независимо от начальной температуры конструкции до испытания) на необогреваемой поверхности коробки конструкции заполнения проема или рамы светопрозрачной ограждающей конструкции, примыкающих к основным строительным конструкциям.

5.4. Потеря теплоизолирующей способности W вследствие достижения допустимой величины плотности потока теплового излучения, равной 3,5 кВт/м2 (с отклонением +/- 5%), измерения проводятся на расстоянии 0,5 м от необогреваемой поверхности конструкции.

5.5. При нормировании пределов огнестойкости светопрозрачных ограждающих конструкций и заполнений проемов используют следующие предельные состояния:

- для ненесущих наружных (фасадных) стен, окон - потеря целостности E;

- для перегородок и дверей - потеря целостности E и теплоизолирующей способности I, W;

- для покрытий - потеря несущей способности R и целостности E;

- для перекрытий - потеря несущей способности R, целостности E и теплоизолирующей способности I.

6. Стендовое оборудование и измерительная аппаратура

6.1. Для проведения испытаний используются:

- испытательная установка (печь) с системой подачи и сжигания топлива - по ГОСТ 30247.0;

- система дымовых каналов с регулирующим устройством, обеспечивающая избыточное давление в огневой камере печи;

- монтажное приспособление для установки испытываемого образца на печи, обеспечивающее соблюдение условий крепления образца;

- система измерения и регистрации температуры и давления;

- система измерения плотности потока теплового излучения.

6.2. Конструкция печи должна обеспечивать возможность теплового воздействия на светопрозрачную ограждающую конструкцию или заполнение проема с одной стороны.

6.3. Монтажное приспособление (часть ограждающей конструкции), в которое установлена светопрозрачная ограждающая конструкция или заполнение проема, должно иметь предел огнестойкости выше, чем у испытываемого образца.

7. Температурный режим и давление в печи

7.1. Температурный режим в печи должен соответствовать требованиям ГОСТ 30247.0.

7.2. Давление в печи должно соответствовать требованиям ГОСТ 30247.1.

8. Образцы для испытаний

8.1. Размеры образцов

Образцы для испытаний должны иметь проектные размеры.

Если образцы проектных размеров испытать не представляется возможным, то допускается испытывать образцы следующих размеров:

- для вертикальных конструкций: высота - (2800 +/- 5) мм, ширина - (2600 +/- 5) мм;

- для горизонтальных конструкций, опирающихся по двум сторонам: длина - (4000 +/- 5) мм, ширина - (2000 +/- 5) мм;

- для горизонтальных конструкций, опирающихся по четырем сторонам: длина - (4000 +/- 5) мм, ширина - (2800 +/- 5) мм.

8.2. Количество образцов

Для испытания конструкции одного типа должны быть изготовлены два одинаковых образца.

8.3. Комплектность образцов

8.3.1. Образцы для испытаний должны быть изготовлены, укомплектованы и собраны в соответствии с технической документацией, а также оснащены всеми устройствами (если таковые имеются), которые используются в реальной конструкции.

8.3.2. Комплект поставки образца должен включать:

- чертежи (эскизы) с указанием размеров основных узлов и деталей, расположения теплоизоляционных материалов (если таковые имеются), уплотнений, воздушных лабиринтов, зазоров и т.п.;

- спецификацию используемых в конструкции материалов с указанием соответствующей нормативно-технической документации (ГОСТ, ТУ, МРТУ, инструкции и др.);

- техническое описание конструкции, включающее наименование, тип (марку), назначение изделия, характеристики светопропускающего заполнения, теплоизоляции, обшивки, облицовки и др.;

- фактические условия крепления образца;

- инструкцию по монтажу.

9. Подготовка испытаний

9.1. Установка и крепление образца должны производиться в конструкцию, используемую на практике. Если конструкция не определена технической документацией, образец устанавливается в монтажное приспособление, изготовленное из негорючего материала (бетона, кирпича) с учетом 6.3.

9.2. Монтажное приспособление может иметь один или два проема, используемых для установки образцов (например однопольных дверей, люков, окон и т.п.) при условии соблюдения необходимых разрывов между ними (не менее двух толщин монтажного приспособления).

9.3. При использовании минеральных вяжущих для монтажного образца его испытание может быть проведено только по истечении нормативного времени отверждения вяжущего.

9.4. Конструкции, имеющие в проектном положении уклон более 30°, следует испытывать в вертикальном положении, остальные - в горизонтальном.

9.5. Образец монтируется заказчиком в соответствии с инструкцией по монтажу.

9.6. При испытаниях дверей их полотна запираются только на защелку. Не допускается запирать двери на замок.

9.7. До начала испытания на смонтированных образцах дверей должно быть проведено не менее 10 циклов открывания-закрывания полотен.

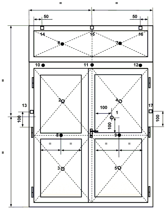
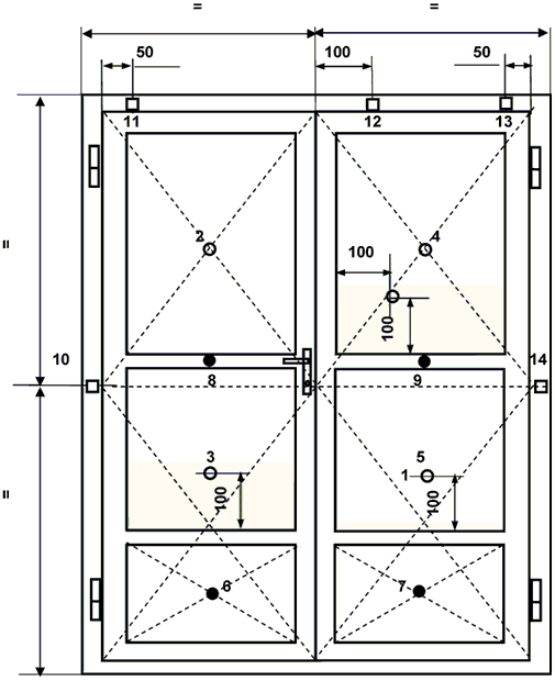
9.8. Для измерения температуры на необогреваемой поверхности образца должны быть установлены термоэлектрические преобразователи (далее - термопары) с классом допуска 2 по ГОСТ 6616-94. Схемы установки термопар на образцах различных типов конструкций приведены в соответствии с Приложением А.

9.8.1. Для определения среднеарифметического значения температуры необходимы следующие условия расположения термопар.

Среднеарифметическое значение температуры определяется пятью термопарами 1 - 5, обозначенными на рисунках А.1 - А.12 (Приложение А) значком "" и расположенными:

- термопара 1 - в центре площади образца;

- термопары 2 - 5 - в центре каждой четверти площади образца.

Термопары должны располагаться на расстоянии (100 +/- 5) мм от любого стыка, ребра жесткости, рамы или импоста полотна двери или сквозной детали.

При испытаниях двухпольных распашных или откатных дверей и ворот с полотнами одинаковой ширины центральная термопара смещается на (100 +/- 5) мм вправо (влево), вверх (вниз) от притвора между полотнами.

При испытаниях конструкций дверей или ворот, содержащих отдельные элементы (например, фрамугу) площадью остекления >= 0,1 м2, термопары должны быть равномерно распределены по всей поверхности этих элементов с плотностью - одна термопара на 1,0 м2, но не менее двух на всей площади элемента. Показания этих термопар учитываются при расчете среднеарифметического значения температуры.

Если общая площадь отдельного элемента конструкции двери или ворот меньше 0,1 м2, то показания установленных термопар при определении среднеарифметического значения температуры не учитываются.

9.8.2. Для определения максимального значения температуры необходимы следующие условия расположения термопар.

Максимальное значение температуры определяется термопарами, обозначенными на рисунках А.1 - А.12 (Приложение А) значками "", "" и расположенными:

- согласно 9.8.1;

- по середине высоты фрамуги с учетом 9.8.1 (рисунки А.8, А.9, Приложение А, термопары 6, 7; рисунок А.10, Приложение А, термопара 6);

- для одно- и двухпольных дверей, установленных в светопрозрачную перегородку, по середине ширины, на равных расстояниях по высоте светопрозрачных элементов (рисунок А.9, Приложение А, термопары 8 - 13);

- для одно- и двухпольных дверей, установленных в светопрозрачную перегородку, по середине каждого светопрозрачного элемента (рисунок А.10, Приложение А, термопары 7 - 12; рисунок А.11, Приложение А, термопары 8 - 13);

- по середине высоты вертикальных промежуточных профилей каркаса (рисунок А.1, Приложение А, термопары 6, 7; рисунок А.2, Приложение А, термопара 8; рисунок А.3, Приложение А, термопара 10; рисунок А.9, Приложение А, термопары 14, 18; рисунок А.10, Приложение А, термопары 16, 17; рисунок А.11, Приложение А, термопары 18, 19);

- по середине ширины горизонтальных промежуточных профилей каркаса (рисунок А.2, Приложение А, термопара 7; рисунок А.3, Приложение А, термопара 15; рисунок А.8, Приложение А, термопара 11; рисунок А.9, Приложение А, термопара 16; рисунок А.10, Приложение А, термопара 19; рисунок А.11, Приложение А, термопара 23 с учетом 9.8.1);

- по середине узла пересечения вертикальных и горизонтальных промежуточных профилей каркаса (рисунок А.2, Приложение А, термопары 6, 9; рисунок А.3, Приложение А, термопары 9, 11);

- для одно- и двухпольных дверей на верхней горизонтальной части коробки в (50 +/- 5) мм от внутренних углов проема в свету (рисунок А.8, Приложение А, термопары 10, 12; рисунок А.9, Приложение А, термопары 15, 17; рисунок А.10, Приложение А, термопары 18, 20; рисунок А.11, Приложение А, термопары 22, 24);

- для одно- и двухпольных дверей по середине верхнего импоста каждого из полотен двери (рисунок А.5, Приложение А, термопара 6; рисунок А.6, Приложение А, термопары 8, 9; рисунок А.7, Приложение А, термопары 6, 7; рисунок А.8, Приложение А, термопары 8, 9; рисунок А.10, Приложение А, термопара 21; рисунок А.11, Приложение А, термопары 20, 21);

- по середине каждого светопрозрачного элемента конструкции (рисунок А.4, Приложение А, термопары 6 - 8);

- по середине площади глухой части конструкции (рисунки А.3, А.5, Приложение А, термопара 7; рисунок А.6, Приложение А, термопары 6, 7; рисунок А.10, Приложение А, термопары 13 - 15);

- по середине высоты, в четвертях глухой части конструкции (рисунок А.3, Приложение А, термопары 6, 8).

В расчет принимаются показания переносной термопары (Приложение Б), служащей для определения температуры в любой точке необогреваемой поверхности конструкции, в которой ожидается наибольшее повышение температуры.

9.8.3. Для определения температуры на раме (коробке) необходимы следующие условия расположения термопар.

Значение температуры определяется термопарами, обозначенными на рисунках А.1 - А.12 (Приложение А) значком "" и расположенными:

а) по середине высоты каждой из двух вертикальных частей рамы (коробки) (рисунки А.1, А.5, А.7, Приложение А, термопары 8, 12; рисунки А.2, А.6, Приложение А, термопары 10, 14; рисунок А.3, Приложение А, термопары 12, 16; рисунок А.8, Приложение А, термопары 13, 17; рисунок А.9, Приложение А, термопары 19, 23; рисунок А.10, Приложение А, термопары 22, 26; рисунок А.11, Приложение А, термопары 25, 29; рисунок А.12, Приложение А, термопары 6, 10);

б) по середине на (100 +/- 5) мм вправо, влево от среднего притвора рабочего полотна двухпольной двери или ворот с одинаковой шириной полотен верхней горизонтальной части рамы (коробки, фрамуги, если таковая имеется) (рисунки А.1, А.5, А.7, Приложение А, термопара 10; рисунки А.2, А.6, Приложение А, термопара 12; рисунок А.3, Приложение А, термопара 14; рисунок А.4, Приложение А, термопара 11; рисунок А.8, Приложение А, термопара 15; рисунок А.9, Приложение А, термопара 21; рисунок А.10, Приложение А, термопара 24; рисунок А.11, Приложение А, термопара 27; рисунок А.12, Приложение А, термопара 8);

в) на верхней горизонтальной части рамы в (50 +/- 5) мм от внутренних углов проема в свету (рисунок А.1, Приложение А, термопары 9, 11; рисунок А.2, Приложение А, термопары 11, 13; рисунок А.3, Приложение А, термопары 13, 15; рисунок А.4, Приложение А, термопары 10, 12; рисунок А.8, Приложение А, термопары 14, 16; рисунок А.9, Приложение А, термопары 20, 22; рисунок А.10, Приложение А, термопары 23, 25; рисунок А.11, Приложение А, термопары 26, 28);

г) на верхней горизонтальной части коробки, дверей, ворот, люков в (50 +/- 5) мм от внутренних углов проема в свету (рисунки А.5, А.7, Приложение А, термопары 9, 11; рисунок А.6, Приложение А, термопары 11, 13; рисунок А.12, Приложение А, термопары 7, 9).

В каждой из указанных выше точек центр термопары должен располагаться на расстоянии (15 +/- 2) мм от места соединения рамы (коробки) со стандартной ограждающей конструкцией.

Если у однопольной двери расстояние между термопарами, указанными в 9.8.3 б и 9.8.3 г, составляет менее 550 мм, то термопара по 9.8.3 б не устанавливается (рисунок А.13, Приложение А).

Если часть рамы (коробки) или вся рама (коробка) оштукатуривается, то термопары на нее не устанавливаются.

9.9. Для измерения величины плотности потока теплового излучения должны быть установлены приемники теплового излучения.

9.9.1. При испытании вертикальных конструкций со светопрозрачными элементами приемники теплового излучения должны быть установлены таким образом, чтобы их оси были перпендикулярны плоскости образца. Один из приемников теплового излучения должен быть расположен на расстоянии (500 +/- 10) мм от геометрического центра необогреваемой поверхности конструкции. Другие - на таком же расстоянии элементов, где ожидается наибольшая величина теплового излучения (Приложение В).

9.9.2. При испытании горизонтальных конструкций со светопрозрачными элементами приемники теплового излучения не устанавливаются.

9.10. Температура окружающей среды и скорость движения воздуха в испытательном помещении измеряются на расстоянии (1000 +/- 10) мм от необогреваемой поверхности образца.

9.11. Термопары могут устанавливаться с использованием термостойкого клея или механического крепления (винтами, заклепками, подпружиненными скобами). Каждая термопара должна закрываться накладкой из негорючего материала размером ((30 x 30 x 2) +/- 0,5) мм. При этом не допускается наличие следов клея между поверхностью образца и спаем термопары, а механические крепления не должны способствовать передаче тепла от поверхности к спаю термопары.

9.12. Если на металлические или деревянные поверхности образца тонким слоем нанесено декоративное покрытие (например, краска), то в местах установки спая термопар его следует полностью удалить.

10. Проведение испытаний

10.1. Испытания проводятся согласно ГОСТ 30247.0.

10.2. В процессе испытаний следует регистрировать:

- температуру в печи - по ГОСТ 30247.0;

- давление в печи - по ГОСТ 30247.1;

- температуру на необогреваемой поверхности образца согласно 9.8;

- изменение плотности теплового излучения по 9.9;

- время и характер изменения светопропускания светопрозрачного элемента;

- время появления и характер развития в образце трещин, отверстий, щелей (зазоров), отколов, через которые пламя и (или) горячие газы из печи могут проникать на необогреваемую сторону;

- время, место и характер состояния материалов конструкции;

- деформации несущих конструкций;

- время начала разрушения конструкции или ее частей;

- время частичного или полного обрушения конструкции;

- время и место появления пламени на необогреваемой стороне образца и длительность устойчивого пламени;

- время воспламенения (тление со свечением) ватного тампона.

Рамку с тампоном размером ((100 x 100 x 20) +/- 2) мм (Приложение Г) массой от 3 до 4 г подносят к местам, где ожидается проникновение пламени или продуктов горения, и в течение 10 с удерживают на расстоянии (30 +/- 5) мм от поверхности образца. Повторное использование тампона не допускается.

10.3. Испытания проводят до наступления одного из предельных состояний по огнестойкости. Испытание может быть продолжено после наступления предельного состояния потери теплоизолирующей способности I для выявления фактического значения времени наступления предельного состояния потери целостности E.

10.4. Если за время, заявленное для данной конструкции, предельные (предельное) состояния (состояние) достигнуты не были, то испытание может быть продолжено до выявления фактической огнестойкости.

10.5. Если испытание заканчивается до наступления нормированных предельных состояний, то причина окончания должна быть указана в отчете. В этом случае величиной предела огнестойкости конструкции является время продолжительности проведения испытания.

10.6. Испытание может быть остановлено, если существует опасность для обслуживающего персонала или угроза разрушения, поломки приборов и оборудования, что также фиксируется в отчете.

11. Оценка результатов испытаний

11.1. Результаты испытаний оценивают по времени достижения предельных состояний по разделу 5.

11.2. Потеря несущей способности по 5.1.

11.3. При оценке достижения образцом предельного состояния потери целостности E обугливание ватного тампона без тления со свечением не учитывается.

11.4. При оценке достижения образцом предельного состояния потери теплоизолирующей способности I:

- величину превышения первоначальной температуры на необогреваемой поверхности образца на 140 °C определяют как среднеарифметическое значение показаний термопар, установленных в соответствии с 9.8.1;

- величину превышения первоначальной температуры на необогреваемой поверхности образца на 180 °C определяют по показаниям термопар, установленных в соответствии с 9.8.2;

- достижение температуры 300 °C на необогреваемой поверхности рамы (коробки) конструкции определяют по показаниям термопар, установленных согласно 9.8.3;

- достижение плотности потока теплового излучения W, равного 3,5 кВт/м2, определяют согласно 9.9.1.

11.5. При оценке достижения предельного состояния потери целостности E для светопрозрачных конструкций, к которым не предъявляются требования по теплоизолирующей способности I, W, 5.2 б не применяется.

11.6. Фактический предел огнестойкости конструкций наружных ненесущих (фасадных) стен, перегородок, фрагментов покрытий и перекрытий, окон определяют по ГОСТ 30247.0.

11.7. Фактический предел огнестойкости конструкций дверей определяют по ГОСТ 30247.2.

12. Обозначение предела огнестойкости

Предел огнестойкости конструкции обозначается по ГОСТ 30247.0.

Пример обозначения предела огнестойкости, достигаемого по предельному состоянию потери теплоизолирующей способности вследствие достижения критической плотности теплового излучения, W-EIW 30.

13. Область распространения результатов испытаний

13.1. Результаты испытаний, полученные для образца с определенным количеством точек крепления рамы (коробки) к ограждающей конструкции, могут быть распространены на конструкции с большим количеством точек крепления. Если количество точек крепления меньше определенного количества - такие конструкции должны испытываться отдельно.

13.2. В конструкциях дверей, ворот, люков количество таких элементов, как защелки, петли, "пассивные", "активные" ригели и т.п., может увеличиваться, уменьшение количества таких элементов не допускается.

13.3. Результаты испытаний, полученные для неокрашенных конструкций, могут быть распространены на окрашенные любой краской.

13.4. Результаты испытаний, представленные в отчете (протоколе), действительны для дверей и люков данного типа с отклонениями их габаритных размеров по высоте и ширине от плюс 10% до минус 30% с округлением в сторону увеличения до размера, кратного 50 мм, в сторону уменьшения до размера, кратного 100 мм.

14. Отчет об испытаниях

14.1. Отчет об испытаниях (протокол испытания) должен содержать следующую информацию:

- наименование и адрес организации, проводящей испытание;

- наименование и адрес организации - изготовителя конструкции;

- дату проведения испытаний;

- наименование изделия, товарный знак и маркировку образца с указанием шифра технической документации на конструкцию;

- код ОКП (ТН ВЭД) на изделие;

- заявленные предельные состояния (предельное состояние) конструкции;

- наименование нормативного документа, содержащего метод испытания;

- описание, чертежи (эскизы) конструкции образца, представленные заказчиком;

- описание фрагмента, в который устанавливается конструкция;

- данные о технических характеристиках материалов, примененных при изготовлении образца;

- инструкцию по монтажу;

- сведения о выдержке образца;

- акт отбора образца (при проведении сертификационного испытания);

- направление теплового воздействия на образец;

- условия окружающей среды при проведении испытания;

- сведения об испытательном оборудовании и средствах измерения параметров;

- схему установки термопар и приемников потока теплового излучения;

- значение давления в огневой камере печи;

- изменение температуры во времени в огневой камере печи;

- изменения температур в местах установки термопар и переносной термопары;

- изменения плотности потоков теплового излучения, измеренных на расстоянии (500 +/- 10) мм от необогреваемой поверхности конструкции;

- наблюдения в процессе испытания с приложением фотоматериалов;

- оценку результатов испытания;

- фактический предел огнестойкости образца;

- область распространения полученных результатов;

- обозначение предела огнестойкости;

- срок действия отчета об испытании.

14.2. Отчет (протокол) является документом, указывающим огнестойкость конструкции, образец которой прошел испытания. Отчет действует определенный период времени, в течение которого не были произведены изменения:

- технической документации, конструкции, комплектности изделия;

- организации и технологии производства;

- метода испытания.

В случае если вышеуказанные изменения имели место, то сообщение об этом должно быть направлено заказчиком в лабораторию, проводившую испытания. На основании анализа влияния этих изменений на огнестойкость конструкций испытательная лаборатория принимает решение о продолжении действия отчета (протокола) об испытании.

15. Техника безопасности

При испытании дверей на огнестойкость должны соблюдаться требования безопасности и производственной санитарии согласно ГОСТ 12.1.004; ГОСТ 12.1.019; ГОСТ 30247.0.

Приложение А
(обязательное)

СХЕМЫ УСТАНОВКИ ТЕРМОПАР НА ОБРАЗЦАХ РАЗЛИЧНЫХ ТИПОВ КОНСТРУКЦИЙ

, , - места установки термопар

Рисунок А.1. Схема установки термопар на необогреваемой поверхности перегородки или перекрытия

, , - места установки термопар

Рисунок А.2. Схема установки термопар на необогреваемой поверхности перегородки

, , - места установки термопар

Рисунок А.3. Схема установки термопар на необогреваемой поверхности перегородки

, , - места установки термопар

Рисунок А.4. Схема установки термопар на необогреваемой поверхности перегородки

, , - места установки термопар

Рисунок А.5. Схема установки термопар на необогреваемой поверхности однопольного дверного блока

, , - места установки термопар

Рисунок А.6. Схема установки термопар на необогреваемой поверхности двухпольного дверного блока

, , - места установки термопар

Рисунок А.7. Схема установки термопар на необогреваемой поверхности двухпольного дверного блока

, , - места установки термопар

Рисунок А.8. Схема установки термопар на необогреваемой поверхности двухпольного дверного блока с фрамугой

, , - места установки термопар

Рисунок А.9. Схема установки термопар на необогреваемых поверхностях перегородки и вмонтированного в нее однопольного дверного блока со светопропускающими элементами

, , - места установки термопар

Рисунок А.10. Схема установки термопар на необогреваемых поверхностях перегородки и вмонтированного в нее однопольного дверного блока со светопропускающими и глухими элементами

, , - места установки термопар

Рисунок А.11. Схема установки термопар на необогреваемых поверхностях перегородки и вмонтированного в нее двухпольного дверного блока со светопропускающими и глухими элементами

, , - места установки термопар

Рисунок А.12. Схема установки термопар на необогреваемой поверхности люка

1, 3 - термопары, устанавливаемые обязательно;
2 - термопара не устанавливается, если размеры между термопарами меньше указанных на рисунке

Рисунок А.13. Количество термопар, устанавливаемых в зависимости от ширины полотна

Приложение Б
(обязательное)

КОНСТРУКЦИЯ ПЕРЕНОСНОЙ ТЕРМОПАРЫ

1 - двухканальная керамическая трубка;
2 - медный диск толщиной 0,5 мм;
3 - термопарные провода диаметром 0,7 мм

Рисунок Б.1. Конструкция переносной термопары

Приложение В
(обязательное)

СХЕМА УСТАНОВКИ ПРИЕМНИКА ПОТОКА ТЕПЛОВОГО ИЗЛУЧЕНИЯ

T - направление нагрева; 1 - железобетонная стена;
2 - приемник потока теплового излучения;
3 - светопрозрачная конструкция

Рисунок В.1. Схема установки приемника потока теплового излучения при испытании на огнестойкость светопрозрачной конструкции

Приложение Г
(обязательное)

РАМКА ДЛЯ ЗАКРЕПЛЕНИЯ ВАТНОГО ТАМПОНА

1 - ручка; 2 - зажим (открыто); 3 - ватный тампон;
4 - поверхность опытного образца

Рисунок Г.1. Рамка для закрепления ватного тампона