Материалы строительные. Метод испытаний на возгораемость под воздействием малого пламени. ГОСТ р 56027-2014

(утв. Приказом Росстандарта от 26.05.2014 N 447-СТ)
Редакция от 26.05.2014 — Действует с 01.09.2014

НАЦИОНАЛЬНЫЙ СТАНДАРТ РОССИЙСКОЙ ФЕДЕРАЦИИ

МАТЕРИАЛЫ СТРОИТЕЛЬНЫЕ

МЕТОД ИСПЫТАНИЙ НА ВОЗГОРАЕМОСТЬ

ПОД ВОЗДЕЙСТВИЕМ МАЛОГО ПЛАМЕНИ

Building materials. Small-flame test

ISO 11925-2:2010 (NEQ)

ГОСТ Р 56027-2014

Дата введения
1 сентября 2014 года

Предисловие

1. Разработан Федеральным государственным бюджетным учреждением "Всероссийский ордена "Знак Почета" научно-исследовательский институт противопожарной обороны" МЧС России (ФГБУ "ВНИИПО" МЧС России).

2. Внесен Техническим комитетом по стандартизации ТК 274 "Пожарная безопасность".

3. Утвержден и введен в действие Приказом Федерального агентства по техническому регулированию и метрологии от 26 мая 2014 г. N 447-ст.

4. Настоящий стандарт разработан с учетом основных нормативных положений международного стандарта ИСО 11925-2:2010 "Испытание на определение реакции на огонь. Воспламеняемость строительных изделий при непосредственном воздействии пламени. Часть 2. "Испытание единичным источником пламени" (ISO 11925-2:2010 "Reaction to fire tests - Ignitability of building products subjected to direct impingement of flame - Part 2: Single-flame source test", NEQ).

5. Введен впервые.

Правила применения настоящего стандарта установлены в ГОСТ Р 1.0-2012 (раздел 8). Информация об изменениях к настоящему стандарту публикуется в ежегодном (по состоянию на 1 января текущего года) информационном указателе "Национальные стандарты", а официальный текст изменений и поправок - в ежемесячном информационном указателе "Национальные стандарты". В случае пересмотра (замены) или отмены настоящего стандарта соответствующее уведомление будет опубликовано в ближайшем выпуске информационного указателя "Национальные стандарты". Соответствующая информация, уведомление и тексты размещаются также в информационной системе общего пользования - на официальном сайте Федерального агентства по техническому регулированию и метрологии в сети Интернет (gost.ru).

1. Область применения

1.1. Настоящий стандарт устанавливает требования к методу испытания строительных материалов на возгораемость под воздействием малого пламени.

1.2. Настоящий стандарт распространяется на все виды однородных и многослойных строительных материалов, а также на лакокрасочные покрытия, кровельные мастики, мастичные покрытия и другие материалы строительного назначения.

2. Нормативные ссылки

В настоящем стандарте использованы нормативные ссылки на следующие стандарты:

ГОСТ 12.1.005-88 Система стандартов безопасности труда. Общие санитарно-гигиенические требования к воздуху рабочей зоны

ГОСТ 745-2003 Фольга алюминиевая для упаковки. Технические условия

ГОСТ 12026-76 Бумага фильтровальная лабораторная. Технические условия

ГОСТ 20448-90 Газы углеводородные сжиженные топливные для коммунально-бытового потребления. Технические условия

Примечание. При пользовании настоящим стандартом целесообразно проверить действие ссылочных стандартов в информационной системе общего пользования - на официальном сайте Федерального агентства по техническому регулированию и метрологии в сети Интернет или по ежегодному информационному указателю "Национальные стандарты", который опубликован по состоянию на 1 января текущего года, и по выпускам ежемесячного информационного указателя "Национальные стандарты" за текущий год. Если заменен ссылочный стандарт, на который дана недатированная ссылка, то рекомендуется использовать действующую версию этого стандарта с учетом всех внесенных в данную версию изменений. Если заменен ссылочный стандарт, на который дана датированная ссылка, то рекомендуется использовать версию этого стандарта с указанным выше годом утверждения (принятия). Если после утверждения настоящего стандарта в ссылочный стандарт, на который дана датированная ссылка, внесено изменение, затрагивающее положение, на которое дана ссылка, то это положение рекомендуется применять без учета данного изменения. Если ссылочный стандарт отменен без замены, то положение, в котором дана ссылка на него, рекомендуется применять в части, не затрагивающей эту ссылку.

3. Термины и определения

В настоящем стандарте применены следующие термины с соответствующими определениями:

3.1. Возгораемость: способность веществ и материалов к устойчивому пламенному горению после воздействия источника зажигания в условиях специальных испытаний.

3.2. Горение: экзотермическая реакция окисления вещества, сопровождающаяся по крайней мере одним из трех факторов: пламенем, свечением, выделением дыма.

3.3. Многослойные материалы: материалы, состоящие из двух и более слоев однородных материалов (например, гипсокартонные листы, алюминиевый композитный материал и др.).

3.4. Однородные материалы: материалы, состоящие из одного вещества или равномерно распределенной смеси различных веществ (например, древесина, вспененные пластические материалы, полистиролбетон, древесностружечные плиты и др.).

3.5. Пламенное горение: горение веществ и материалов, сопровождающееся пламенем.

3.6. Устойчивое пламенное горение: непрерывное пламенное горение материала в течение более 3 с.

4. Определение возгораемости строительных материалов

4.1. Общие положения

4.1.1. Метод испытания на возгораемость под воздействием малого пламени предназначен для оценки группы горючих легковозгораемых строительных материалов.

4.1.2. В настоящем стандарте использованы принципиальные положения по определению возгораемости строительных материалов под воздействием малого пламени, а также описание устройства, принцип действия и другие сведения, необходимые для правильной эксплуатации установки.

4.1.3. Метод испытания заключается в воздействии на вертикально расположенный образец источника зажигания - пламени газовой горелки в течение 15 с или 30 с. Испытания проводят в двух режимах: воздействие пламенем горелки на поверхность образца и с нижней кромки образца. По результатам испытаний фиксируют наличие пламенного горения образца, длину распространения пламени по поверхности (внутри) образца и затраченное на это время, наличие горящих капель расплава образца и воспламенение фильтровальной бумаги, расположенной под образцом.

4.2. Оборудование для испытаний

4.2.1. Камера сгорания (рисунок А.1) представляет собой шкаф, изготовленный из листов нержавеющей стали, с двумя дверьми (рисунок А.1, позиция 4) из огнестойкого стекла, с фронтальной и одной из боковых сторон. Часть дна камеры сгорания и низ боковых стенок камеры (рисунок А.1, позиция 2) изготовлены из сетки с размерами ячеек 25 мм (материал сетки - проволока из жаростойкой стали диаметром 1,5 мм), что обеспечивает свободный и равномерный доступ воздуха. Скорость воздушного потока измеряется в вытяжной трубе камеры (рисунок А.1, позиция 1) и должна быть в диапазоне от 0,6 до 0,8 м/с. Камера сгорания располагается под вентиляционным зонтом.

4.2.2. Держатель образца (рисунок Б.1) располагается в центре камеры сгорания и состоит из двух рам П-образной формы. Рамы держателя скрепляются между собой с помощью винтов, что обеспечивает стабильную фиксацию образца (рисунок Б.1, позиция 1) в течение времени всего испытания. В зависимости от типа испытуемого материала для проведения испытаний необходимо два вида держателей под размеры образцов 250 x 90 мм и 250 x 180 мм.

Держатель образца (рисунок Д.1, позиция 2) используют для испытаний многослойных материалов.

4.2.3. Вертикальная стойка (рисунок В.1, позиция 3) с основанием - металлической плитой толщиной 3 мм, установленной на дно камеры сгорания (рисунок А.1, позиция 3), обеспечивает крепление держателя образца таким образом, чтобы образец располагался вертикально, а нижний - открытый край держателя с образцом находился в зоне воздействия пламени горелки. Расстояние между нижней кромкой образца и основанием вертикальной стойки должно быть (85 +/- 10) мм при воздействии пламени горелки на поверхность образца. При воздействии пламени горелки с нижней кромки образца расстояние должно быть (125 +/- 10) мм.

4.2.4. Газовая горелка (рисунок В.1, позиция 5) закреплена на основании вертикальной стойки и сконструирована таким образом, что устанавливается как в вертикальном положении, так и под углом 45° к поверхности образца, и имеет механизм перемещения (рисунок В.1, позиция 4) в вертикальном и горизонтальном направлениях. Газовая горелка подсоединяется гибким шлангом через вентиль, регулирующий расход газа, к баллону с пропан-бутановой фракцией. Давление газа должно находиться в диапазоне от 10 до 50 кПа.

4.2.5. Устройство для измерения времени (секундомер) с диапазоном измерения от 0 до 60 мин и погрешностью не более 1 с.

4.2.6. Термоанемометр, предназначенный для измерения скорости воздушного потока, с диапазоном измерения от 0,2 до 5,0 м/с и точностью +/- 0,1 м/с.

4.2.7. Линейка металлическая с диапазоном измерения от 0 до 500 мм и ценой деления 1 мм.

4.2.8. Штангенциркуль с диапазоном измерения от 0 до 125 мм и ценой деления +/- 0,1 мм.

4.2.9. Шаблоны для подготовки образцов - две металлические плиты толщиной не менее 1 мм и размерами 250 x 90 мм и 250 x 180 мм.

4.2.10. Бумага фильтровальная по ГОСТ 12026 плотностью (75 +/- 3) г/м2 и с массовой долей золы менее 0,1%.

4.2.11. Поддон (рисунок В.1, позиция 6) размерами 50 x 100 мм и глубиной 10 мм, изготовлен из алюминиевой фольги по ГОСТ 745, толщиной не менее 0,2 мм. Поддон помещают под держателем образца и заменяют между испытаниями.

4.3. Порядок подготовки образцов

4.3.1. Образцы для испытаний вырезают с помощью шаблона. Для испытания одного вида материала изготовляют 12 образцов размерами 250 x 90 мм с погрешностью +/- 1 мм. Толщина образцов должна соответствовать толщине материала, применяемого в реальных условиях, но не более 60 мм. Если толщина материала составляет более 60 мм, необходимо срезать часть материала с нелицевой стороны, чтобы толщина составляла 60 мм. При изготовлении образцов экспонируемая поверхность не должна подвергаться обработке.

4.3.2. Для анизотропных материалов изготовляют два комплекта образцов (например, по утку и по основе). При классификации материала принимают худший результат испытания.

4.3.3. Для многослойных материалов с различными поверхностными слоями изготовляют два комплекта образцов в целях экспонирования обеих поверхностей. При классификации материала принимают худший результат испытания.

4.3.4. Кровельные мастики, мастичные покрытия и лакокрасочные покрытия наносят на алюминиевую фольгу (толщина фольги - не более 0,2 мм). При этом лакокрасочные покрытия следует наносить не менее четырех слоев с расходом каждого слоя в соответствии с технической документацией на материал.

4.3.5. Образцы для испытаний и фильтровальную бумагу кондиционируют при температуре (20 +/- 5) °C и относительной влажности воздуха (65 +/- 5)% до достижения постоянной массы, но не менее 72 ч.

4.4. Порядок проведения испытаний

4.4.1. Испытания проводят в помещении при температуре (23 +/- 5) °C и относительной влажности воздуха (50 +/- 20)%.

4.4.2. Настраивают скорость воздушного потока в вытяжной трубе камеры согласно 4.2.1.

4.4.3. Закрепляют испытуемый образец в держатель и контролируют взаимное расположение образца и горелки согласно 4.2.3.

4.4.4. Устанавливают газовую горелку вертикально (рисунок Г.1, позиция 1), зажигают и с помощью вентиля регулируют расход газа таким образом, чтобы длина пламени составляла (20 +/- 1) мм. Устанавливают горелку под углом 45° относительно вертикальной оси. Необходимо контролировать, чтобы длина пламени оставалась неизменной в течение всего времени проведения испытаний.

4.4.5. Не более чем за 3 мин до начала испытания извлекают из помещения для кондиционирования два листа фильтровальной бумаги размерами 50 x 100 мм и помещают их горизонтально на дно поддона из алюминиевой фольги.

4.4.6. Помещают поддон на металлическую плиту под образцом таким образом, чтобы независимо от толщины материала фрагменты и капли образца (при наличии) падали на фильтровальную бумагу.

4.4.7. Перемещают газовую горелку к образцу и включают секундомер в момент контакта пламени с поверхностью или нижней кромкой образца. При воздействии на поверхность образца (рисунок Г.1, позиция 2) пламя горелки подводится на расстоянии 40 мм от нижней кромки образца, при воздействии пламенем с нижней кромки образца - к центральной точке на нижнем торце (рисунок Г.1, позиция 3).

4.4.8. Испытания начинают проводить в режиме воздействия пламенем газовой горелки с поверхности образца в течение 15 с. Общая продолжительность испытания составляет 60 с.

При невыполнении условий 4.6.2 следующее испытание проводят на новом образце в режиме воздействия пламенем газовой горелки с нижней кромки образца в течение 15 с. Аналогичную процедуру повторяют на последующих образцах при времени воздействия пламенем газовой горелки в течение 30 с. Общая продолжительность одного испытания составляет 120 с.

4.4.9. Если в процессе испытания наблюдают плавление и коробление образцов без пламенного горения, то следует провести повторные испытания 12 образцов размерами 180 x 250 мм и классифицировать материал согласно 4.6.

4.4.10. У многослойных образцов (рисунок Д.1, позиция 1) испытаниям подвергают поочередно каждый слой, если:

- слои состоят из различных материалов;

- слои из одного материала имеют общую толщину более 10 мм;

- слои из одного материала имеют различное расположение относительно друг друга.

При классификации образца принимают худший результат испытания из всех слоев.

4.4.11. Все образцы должны быть испытаны за время не более 30 мин после извлечения их из помещения для кондиционирования.

4.5. Оценка результатов испытаний

В процессе проведения испытаний измеряют:

- время воздействия пламени газовой горелки на образец;

- длину распространения пламени по поверхности (внутри) образца и затраченное на распространение пламени время.

В процессе проведения испытаний также регистрируют:

- наличие пламенного горения образца;

- наличие горящих капель расплава образца;

- воспламенение фильтровальной бумаги;

- другие результаты наблюдений.

4.6. Классификация

4.6.1. Горючие строительные материалы в зависимости от результатов испытаний относят или не относят к группе горючих легковозгораемых материалов.

4.6.2. Строительные материалы относят к группе горючих легковозгораемых материалов, если при испытаниях (в любом режиме воздействия горелки) выполняется хотя бы одно из следующих условий:

- распространение пламени по поверхности (внутри) образца на расстояние 150 мм и более за время:

- не более 60 с при воздействии на образец пламенем газовой горелки в течение 15 с,

- не более 120 с при воздействии на образец пламенем газовой горелки в течение 30 с;

- наличие горящих капель расплава образца;

- воспламенение фильтровальной бумаги.

4.6.3. Строительные материалы, не удовлетворяющие указанным условиям, не относят к группе горючих легковозгораемых материалов.

4.6.4. Воспламенение фильтровальной бумаги от горящих фрагментов (осколков) образца не является условием для классификации материала.

5. Оформление протокола испытаний

В протоколе испытания (Приложение Ж) приводят следующие сведения:

- наименование испытательной лаборатории;

- наименование и адрес заказчика, изготовителя (поставщика) материала;

- условия в помещении (температура, °C; относительная влажность, %);

- описание материала или изделия, техническая документация, торговая марка;

- состав, толщина, плотность, масса и способ изготовления образцов;

- для многослойных материалов - толщина и характеристика материала каждого слоя;

- параметры, регистрируемые при испытаниях;

- классификация;

- результаты дополнительных наблюдений (поведение материала при испытаниях);

- исполнители.

6. Требования безопасности

Помещение, в котором проводят испытания, должно быть оборудовано приточно-вытяжной вентиляцией. Рабочее место оператора должно удовлетворять санитарно-гигиеническим требованиям по ГОСТ 12.1.005. Лица, допущенные в установленном порядке к испытаниям, должны быть ознакомлены с техническим описанием и инструкцией по эксплуатации испытательного оборудования.

Приложение А
(обязательное)

ОБЩИЙ ВИД КАМЕРЫ СГОРАНИЯ

1 - вытяжная труба камеры; 2 - сетка из жаростойкой стали; 3 - дно камеры сгорания; 4 - дверь из огнестойкого стекла

Рисунок А.1. Общий вид камеры сгорания

Приложение Б
(обязательное)

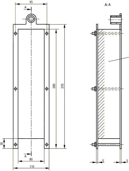
ДЕРЖАТЕЛЬ ОБРАЗЦА

1 - образец

Рисунок Б.1. Держатель образца

Приложение В
(обязательное)

ВЗАИМНОЕ РАСПОЛОЖЕНИЕ ДЕРЖАТЕЛЯ ОБРАЗЦА И ГАЗОВОЙ ГОРЕЛКИ

1 - держатель образца; 2 - образец; 3 - вертикальная стойка с основанием; 4 - механизм перемещения газовой горелки; 5 - газовая горелка; 6 - поддон из алюминиевой фольги

Рисунок В.1. Взаимное расположение держателя образца и газовой горелки

Приложение Г
(обязательное)

РАСПОЛОЖЕНИЕ ГАЗОВОЙ ГОРЕЛКИ ПРИ ПОДГОТОВКЕ И ПРОВЕДЕНИИ ИСПЫТАНИЙ

а

б

в

а - положение газовой горелки при регулировке расхода газа; б - положение газовой горелки при воздействии пламенем с поверхности образца; в - положение газовой горелки при воздействии пламенем с нижней кромки образца

Рисунок Г.1. Расположение газовой горелки при подготовке и проведении испытаний

Приложение Д
(обязательное)

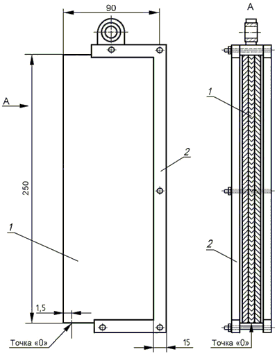
ДЕРЖАТЕЛЬ ДЛЯ ИСПЫТАНИЙ МНОГОСЛОЙНЫХ ОБРАЗЦОВ

1 - многослойный образец; 2 - держатель образца; точка "0" - место воздействия пламенем газовой горелки (центральная точка каждого слоя нижней кромки образца)

Рисунок Д.1. Держатель для испытаний многослойных образцов

Приложение Е
(обязательное)

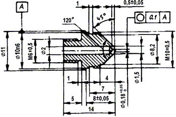
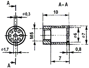
КОНСТРУКЦИЯ ГАЗОВОЙ ГОРЕЛКИ

1 - дроссельная трубка; 2 - газовое сопло; 3 - трубка горелки; 4 - стабилизатор пламени; 5 - выемка Рисунок Е.1. Общий вид газовой горелки

Рисунок Е.2. Газовое сопло горелки

Рисунок Е.3. Стабилизатор пламени горелки

1 - зона смешения газов; 2 - зона диффузии; 3 - зона выхода газа; 4 - воздушная камера

Рисунок Е.4. Трубка газовой горелки

Приложение Ж
(рекомендуемое)

ФОРМА ПРОТОКОЛА ИСПЫТАНИЙ ПО ОПРЕДЕЛЕНИЮ ВОЗГОРАЕМОСТИ СТРОИТЕЛЬНЫХ МАТЕРИАЛОВ

Наименование организации, выполняющей испытания

ПРОТОКОЛ N _____ ОПРЕДЕЛЕНИЯ ВОЗГОРАЕМОСТИ СТРОИТЕЛЬНЫХ МАТЕРИАЛОВ ОТ "__" ____________ Г.

1. Заказчик (изготовитель):

2. Наименование материала (марка, ГОСТ, ТУ и т.д.):

3. Характеристики материала (плотность, толщина, состав, число слоев, цвет):

4. Условия в помещении (температура, °C; относительная влажность, %):

5. Наименование методики испытаний:

6. Испытательное и измерительное оборудование (заводской номер, марка, свидетельство о поверке, диапазон измерения, срок действия):

Экспериментальные данные:

N испытания Воздействие пламенем газовой горелки на образец Распространение пламени по поверхности (внутри) образца Наличие горящих капель расплава, +/- Воспламенение фильтровальной бумаги, +/-
Режим Время, с Длина, мм Время, с
1 Поверхность образца 15        
2        
3        
4 Нижняя кромка образца 15        
5        
6        
7 Поверхность образца 30        
8        
9        
10 Нижняя кромка образца 30        
11        
12        

Примечание.

Вывод: по результатам испытаний образец относится (не относится) <*> к группе горючих легковозгораемых материалов.

<*> Ненужное зачеркнуть.

Исполнители: