Система проектной документации для строительства. Правила выполнения рабочей документации внутреннего электрического освещения. ГОСТ 21.608-2021

(утв. Приказом Росстандарта от 10.12.2021 N 1760-СТ)
Редакция от 10.12.2021 — Действует с 01.01.2022

Данный документ приведен с учетом Поправки, опубликованной в "ИУС", N 7, 2023.


МЕЖГОСУДАРСТВЕННЫЙ СТАНДАРТ

СИСТЕМА ПРОЕКТНОЙ ДОКУМЕНТАЦИИ ДЛЯ СТРОИТЕЛЬСТВА

ПРАВИЛА ВЫПОЛНЕНИЯ РАБОЧЕЙ ДОКУМЕНТАЦИИ ВНУТРЕННЕГО ЭЛЕКТРИЧЕСКОГО ОСВЕЩЕНИЯ

System of design documents for construction. Rules for execution of working documents of interior electric lighting

ГОСТ 21.608-2021

Дата введения
1 января 2022 года

Предисловие

Цели, основные принципы и общие правила проведения работ по межгосударственной стандартизации установлены ГОСТ 1.0 "Межгосударственная система стандартизации. Основные положения" и ГОСТ 1.2 "Межгосударственная система стандартизации. Стандарты межгосударственные, правила и рекомендации по межгосударственной стандартизации. Правила разработки, принятия, обновления и отмены"

Сведения о стандарте

1 РАЗРАБОТАН Акционерным обществом "Центр технического и сметного нормирования в строительстве" (АО "ЦНС")

2 ВНЕСЕН Техническим комитетом по стандартизации ТК 465 "Строительство"

3 ПРИНЯТ Межгосударственным советом по стандартизации, метрологии и сертификации (протокол от 14 июля 2021 г. N 59)

За принятие проголосовали:

Краткое наименование страны по МК (ИСО 3166) 004-97 Код страны по МК (ИСО 3166) 004-97 Сокращенное наименование национального органа по стандартизации
Азербайджан AZ Азстандарт
Армения AM ЗАО "Национальный орган по стандартизации и метрологии" Республики Армения
Беларусь BY Госстандарт Республики Беларусь
Киргизия KG Кыргызстандарт
Россия RU Росстандарт
Таджикистан TJ Таджикстандарт
Узбекистан UZ Узстандарт

4 Приказом Федерального агентства по техническому регулированию и метрологии от 10 декабря 2021 г. N 1760-ст межгосударственный стандарт ГОСТ 21.608-2021 введен в действие в качестве национального стандарта Российской Федерации с 1 января 2022 г.

5 ВЗАМЕН ГОСТ 21.608-2014

Информация о введении в действие (прекращении действия) настоящего стандарта и изменений к нему на территории указанных выше государств публикуется в указателях национальных стандартов, издаваемых в этих государствах, а также в сети Интернет на сайтах соответствующих национальных органов по стандартизации.

В случае пересмотра, изменения или отмены настоящего стандарта соответствующая информация будет опубликована на официальном интернет-сайте Межгосударственного совета по стандартизации, метрологии и сертификации в каталоге "Межгосударственные стандарты"

1 Область применения

Настоящий стандарт устанавливает состав и правила оформления рабочей документации внутренних сетей электрического освещения помещений зданий и сооружений различного назначения.

2 Нормативные ссылки

В настоящем стандарте использованы нормативные ссылки на следующие межгосударственные стандарты:

ГОСТ 2.301 Единая система конструкторской документации. Форматы

ГОСТ 2.302 Единая система конструкторской документации. Масштабы

ГОСТ 2.702 Единая система конструкторской документации. Правила выполнения электрических схем

ГОСТ 2.710 Единая система конструкторской документации. Обозначения буквенно-цифровые в электрических схемах

ГОСТ 21.001 Система проектной документации для строительства. Общие положения

ГОСТ Р 21.1101-2013 отменен. Взамен него с 01.01.2021 введен в действие ГОСТ Р 21.101-2020.

ГОСТ 21.101-97 <*> Система проектной документации для строительства. Основные требования к проектной и рабочей документации

<*> В Российской Федерации утратил силу. Действует ГОСТ Р 21.1101-2013 "Система проектной документации для строительства. Основные требования к проектной и рабочей документации".

ГОСТ 21.110 Система проектной документации для строительства. Спецификация оборудования, изделий и материалов

ГОСТ 21.114 Система проектной документации для строительства. Правила выполнения эскизных чертежей общих видов нетиповых изделий

ГОСТ 21.210 Система проектной документации для строительства. Условные графические изображения электрооборудования и проводок на планах

Примечание - При пользовании настоящим стандартом целесообразно проверить действие ссылочных стандартов и классификаторов на официальном интернет-сайте Межгосударственного совета по стандартизации, метрологии и сертификации (www.easc.by) или по указателям национальных стандартов, издаваемым в государствах, указанных в предисловии, или на официальных сайтах соответствующих национальных органов по стандартизации. Если на документ дана недатированная ссылка, то следует использовать документ, действующий на текущий момент, с учетом всех внесенных в него изменений. Если заменен ссылочный документ, на который дана датированная ссылка, то следует использовать указанную версию этого документа. Если после принятия настоящего стандарта в ссылочный документ, на который дана датированная ссылка, внесено изменение, затрагивающее положение, на которое дана ссылка, то это положение применяется без учета данного изменения. Если ссылочный документ отменен без замены, то положение, в котором дана ссылка на него, применяется в части, не затрагивающей эту ссылку.

3 Термины и определения

В настоящем стандарте применены термины по ГОСТ 21.001, а также следующий термин с соответствующим определением:

3.1 цифровая информационная модель; ЦИМ: Объектно-ориентированная параметрическая трехмерная модель, представляющая в цифровом виде физические, функциональные и прочие характеристики объекта (или его отдельных частей) в виде совокупности информационно-насыщенных элементов.

4 Общие положения

4.1 Рабочую документацию внутреннего электрического освещения помещений зданий и сооружений выполняют в соответствии с требованиями настоящего стандарта и других взаимосвязанных стандартов системы проектной документации для строительства (СПДС).

4.2 В состав рабочей документации внутреннего электрического освещения зданий и сооружений включают:

- рабочие чертежи, предназначенные для проведения строительно-монтажных работ (основной комплект рабочих чертежей марки ЭО);

- эскизные чертежи общих видов нетиповых конструкций (при необходимости);

- спецификацию оборудования, изделий и материалов;

- опросные листы и габаритные чертежи (при необходимости);

- локальную смету (при необходимости).

4.3 В состав основного комплекта рабочих чертежей марки ЭО включают:

- общие данные по рабочим чертежам;

- планы расположения электрического оборудования и прокладки электрических сетей;

- принципиальные схемы питающей и распределительной сетей (при необходимости);

- принципиальные схемы магистральных и групповых щитков освещения;

- принципиальные схемы дистанционного управления освещением (при необходимости);

- схемы подключения комплектных распределительных устройств напряжением до 1000 В (при необходимости);

- кабельный журнал для питающей и распределительной сетей (при необходимости);

- чертежи узлов установки осветительных приборов и электрооборудования при отсутствии типовых (при необходимости).

4.4 Основной комплект рабочих чертежей марки ЭО допускается оформлять в виде отдельных документов с присвоением им базовой марки основного комплекта и добавлением через точку порядкового номера документа, обозначаемого арабскими цифрами, например общие данные по рабочим чертежам (ЭО.1), принципиальная схема распределительной сети (ЭО.2).

4.5 При небольших объемах документации разрешается объединять рабочие чертежи марки ЭО с рабочими чертежами других электротехнических марок в один основной комплект рабочих чертежей и присваивать одну марку. Например, при объединении чертежей марки ЭО с рабочими чертежами марки ЭМ разрешается присваивать объединенному основному комплекту марку ЭОМ или марку преобладающих рабочих чертежей комплекта.

4.6 Рабочая документация на бумажном носителе и в виде электронных документов может быть выполнена на основе информационной модели здания или сооружения.

4.7 Масштабы изображений на чертежах следует выбирать из ряда по ГОСТ 2.302.

4.8 При использовании системы автоматизированного проектирования (САПР), либо информационного моделирования объектов строительства при создании цифровой информационной модели здания (ЦИМ), разрешается в дополнение к приведенным в ГОСТ 2.302 масштабам использовать допускаемые: уменьшения 1:n или увеличения n:1 масштаба (где n - рациональное число).

4.9 Условные изображения и обозначения электрооборудования и проводок на схемах и планах расположения электрического оборудования и прокладки электрических сетей следует выполнять в основном черным цветом. Допускается выполнять условные обозначения или их отдельные элементы другими цветами.

4.10 Ведомости и таблицы могут располагаться: на листах с планами расположения; на следующих листах в качестве последующих листов чертежей или в виде отдельного документа (при оформлении основного комплекта рабочих чертежей отдельными документами). Ведомость на плане расположения помещают над основной надписью, как правило, в верхнем углу листа.

5 Общие данные по рабочим чертежам

5.1 В состав общих данных по рабочим чертежам включают общие указания. В общих указаниях в дополнение к сведениям, предусмотренным ГОСТ 21.101, приводят итоговые данные: суммарную площадь освещаемых помещений здания, установленную мощность осветительной установки, число светильников.

Для жилых домов итоговые данные не приводят.

5.2 Ведомость спецификаций, предусмотренную ГОСТ 21.101, в составе общих данных по рабочим чертежам марки ЭО не выполняют.

6 Рабочие чертежи и схемы

6.1 Планы расположения электрического оборудования и прокладки электрических сетей

6.1.1 В качестве подосновы для планов расположения принимают планы помещений, выполненные в основных комплектах рабочих чертежей других марок (как правило, марки АР). Масштабы этих планов должны обеспечивать четкое графическое изображение электрических сетей и электрического оборудования.

6.1.2 На планах расположения наносят, приводят или показывают:

- координационные оси здания и сооружения и расстояния между ними;

- строительные конструкции и технологическое оборудование в виде упрощенных контурных очертаний сплошными тонкими линиями;

- наименования помещений, их площади, категории по взрывопожарной и пожарной опасности (кроме жилых зданий). Площадь проставляют в нижнем правом углу помещения и подчеркивают. Категорию помещения по взрывопожарной и пожарной опасности проставляют под его наименованием в прямоугольнике. Рекомендуется наименования помещений, их площади и категории приводить в ведомости помещений по форме 1 (приложение А). В этом случае на планах вместо наименований помещений проставляют их номера в окружности диаметром 12 - 15 мм или овале. Для жилых зданий ведомость помещений, как правило, не выполняют;

- нормируемую освещенность от общего освещения (за исключением жилых помещений) <*>;

- светильники (в жилых домах - места их установки), их число, типы, число и мощность ламп в светильниках, высоту установки светильников (кроме потолочных) - при необходимости;

- привязочные размеры для светильников или рядов светильников к элементам строительных конструкций или координационным осям здания (при необходимости). Привязочные размеры разрешается не проставлять, если места установки светильников понятны без указания их размеров или если привязочные размеры приведены на чертежах интерьеров. В этом случае должна быть дана ссылка на соответствующие чертежи;

- комплектные распределительные устройства на напряжение до 1000 В, относящиеся к сети внутреннего освещения (распределительные щиты, щиты станций управления, распределительные пункты, ящики и шкафы управления, вводно-распределительные устройства) и их обозначения;

- групповые щитки освещения и их обозначения;

- ссылки на чертежи принципиальных схем магистральных и групповых щитков освещения (при необходимости);

- понижающие трансформаторы;

- выключатели, штепсельные розетки (в жилых домах - включая розетки для электроплит и других бытовых электроприемников);

- линии питающей, распределительной, групповой сетей и сети управления освещением (в жилых домах - включая линии для электроплит и других бытовых электроприемников), их обозначения и, при необходимости, сечение, марку, способ прокладки;

- другое электрическое оборудование, относящееся к внутреннему освещению.

<*> Не приводят на плане, если выполняют ведомость помещений.

Порядок записи и примеры приведения условных обозначений на планах расположения электрического оборудования и прокладки электрических сетей приведены в таблице Б.1.

6.1.3 При большом числе линий распределительной сети, групповой сети и сети управления освещением указанные сети и относящееся к ним электрическое оборудование допускается изображать на отдельных планах расположения и указывать электропроводки различных сетей в виде одной линии.

6.1.4 Электрическое оборудование и проводки на планах расположения указывают условными графическими изображениями по ГОСТ 21.210.

6.1.5 Пример оформления плана расположения электрического оборудования и прокладки электрических сетей здания приведен на рисунке В.1. Пример заполнения ведомости помещений приведен на рисунке Г.1.

6.1.6 К плану расположения электрического оборудования и прокладки электрических сетей здания выполняют:

- ведомость узлов установки электрического оборудования по форме 2 (приложение А) - при необходимости;

- ведомость данных о групповых щитках по форме 3 (приложение А) - при необходимости;

- ведомость осветительного оборудования по форме 4 (приложение А).

Пример выполнения ведомости узлов установки электрического оборудования приведен на рисунке Д.1. Пример оформления данных о групповых щитках приведен на рисунке Е.1. Пример заполнения ведомости осветительного оборудования приведен на рисунке Ж.1.

В случае приведения данных о групповых щитках по форме 2 разрешается не приводить принципиальную электрическую схему для соответствующего электрического щита.

6.1.7 При наличии в здании одинаковых по размеру помещений (участков помещений) с одинаковыми техническими решениями освещения электрическое оборудование, электрические сети и другие элементы на планах расположения допускается изображать не для всех, а для части помещений. Допускается также приводить фрагменты планов расположения для отдельных типовых помещений.

6.2 Принципиальные схемы

6.2.1 Принципиальные схемы питающей и распределительной сетей, магистральных и групповых щитков освещения выполняют в однолинейном изображении согласно требованиям ГОСТ 2.702 и настоящего стандарта.

6.2.2 При использовании САПР либо информационного моделирования объектов строительства при создании ЦИМ здания разрешается выполнять принципиальные схемы питающей и распределительной сетей, магистральных и групповых щитков освещения в табличном виде по форме 5 (приложение А).

6.2.3 Боковики принципиальных схем питающей и распределительной сетей выполняют по форме 6 (приложение А), магистральных и групповых щитков освещения - по форме 7 (приложение А). Для магистральных и групповых щитков освещения допускается в боковике указывать только необходимые данные.

Допускается выполнять боковики схем питающей и распределительной сетей, магистральных и групповых щитков освещения по другим формам при условии, что в них содержатся все технические данные, предусмотренные формами 6 и 7.

6.2.4 Принципиальные схемы питающей и распределительной сетей допускается выполнять с учетом расположения электрического оборудования по частям и этажам здания.

Пример оформления принципиальной схемы питающей и распределительной сети многоэтажного здания приведен на рисунке И.1. Поясняющие надписи на схеме приводят, как указано в приложении К.

6.2.5 Принципиальные схемы питающей и распределительной сетей жилых домов допускается разбивать на отдельные схемы (схему вводно-распределительного устройства, схему линий питающей и распределительной сетей). При этом на схеме линий питающей и распределительной сетей допускается изображать щитки и другие аппараты не для всех этажей, а только для одного типового этажа, не изображать коммутационные аппараты на этажных и квартирных щитках и расчетные данные указывать в табличной форме.

Пример оформления принципиальной схемы группового щитка освещения приведен на рисунке Л.1.

Пример оформления принципиальной схемы питающей и распределительной сетей приведен на рисунке М.1.

Пример оформления принципиальной схемы группового щитка освещения в табличном виде приведен на рисунке Н.1.

6.2.6 Принципиальные схемы дистанционного управления освещением и схемы подключения комплектных распределительных устройств на напряжение до 1000 В выполняют с учетом требований ГОСТ 2.702.

Указанные схемы допускается включать в состав рабочих чертежей основных комплектов других электротехнических марок.

6.3 Кабельный журнал

6.3.1 Кабельный журнал для питающей и распределительной сетей выполняют по форме 8 (приложение А). Буквенно-цифровые обозначения начала и конца кабелей наносят в соответствии с ГОСТ 2.710.

Пример заполнения кабельного журнала приведен на рисунке П.1.

6.3.2 Кабельный журнал для питающей и распределительной сетей разрешается не заполнять, если все необходимые данные указаны на принципиальной схеме питающей и распределительной сетей.

6.4 Узлы установки осветительных приборов и электрооборудования

6.4.1 Чертежи узлов установки осветительных приборов и электрооборудования (далее - узлы установки) должны содержать информацию, необходимую для правильного монтажа вышеуказанного оборудования.

6.4.2 Узлы установки выполняют в случаях, когда в качестве кронштейна (конструкции) для установки осветительного прибора (электрооборудования) используется нетиповое изделие, изготовляемое на заказ или непосредственно на месте монтажа. В прочих случаях необходимость выполнения узлов установки определяется разработчиком в зависимости от сложности используемых крепежных конструкций и особенностей монтажа конкретных осветительных приборов и электрооборудования.

6.4.3 Узел установки должен содержать:

- изображение (виды, разрезы, сечения) осветительного прибора (электрооборудования), закрепленного с помощью кронштейна к элементу строительной конструкции;

- установочные, габаритные и другие необходимые размеры;

- наименование (обозначение) составных частей узла установки;

- спецификацию составных частей узла установки, составленную по форме 7 ГОСТ 21.101-97;

- технические требования и надписи, необходимые для понимания устройства узла установки (указания о выполнении сварочных работ, окраске эмалью и пр.).

6.4.4 Узлы установки, как правило, выполняют в масштабах по ГОСТ 2.302. Допускается выполнять узлы установки без точного соблюдения масштаба, если это не искажает наглядности изображения и не затрудняет чтения чертежа.

6.4.5 Узлы установки оформляют, как правило, на листах форматов А4 и А3 по ГОСТ 2.301.

7 Эскизные чертежи общих видов нетиповых конструкций

Эскизные чертежи общих видов нетиповых конструкций, предназначенных для установки осветительных приборов и электрооборудования, выполняют в соответствии с требованиями ГОСТ 21.114 в объеме, необходимом для разработки конструкторской документации.

8 Спецификация оборудования, изделий и материалов

8.1 Спецификацию оборудования, изделий и материалов (далее - спецификация) выполняют и обозначают по ГОСТ 21.110 с учетом требований настоящего стандарта.

8.2 Спецификацию составляют по разделам в последовательности:

- электрооборудование (распределительные и групповые щитки, автоматические выключатели и т.п.);

- осветительное оборудование (осветительные приборы, лампы и т.п.);

- кабельные изделия (кабель, провод и т.п.);

- кабеленесущие системы;

- электромонтажные устройства и изделия (кронштейны, ответвительные коробки, кабельные лотки и т.п.);

- материалы (трубы, прокат черных металлов и т.п.).

Состав и количество разделов спецификации допускается изменять по усмотрению разработчика.

Запись оборудования (изделий, материалов) в пределах одного раздела рекомендуется выполнять по группам однотипных элементов (в порядке возрастания типов, параметров, цифр, входящих в их обозначение).

9 Опросные листы и габаритные чертежи

9.1 Опросные листы и габаритные чертежи выполняют в соответствии с данными предприятий - изготовителей оборудования и комплектуют их в виде отдельного выпуска с наименованием "Опросные листы".

9.2 Выпуску "Опросные листы" присваивают самостоятельное обозначение, состоящее из обозначения основного комплекта рабочих чертежей марки ЭО и через точку шифра "ОЛ". Обозначение указывают на титульном листе выпуска опросных листов.

Пример - 2345-11-ЭО.ОЛ

9.3 Если опросных листов (габаритных чертежей) два и более, то после титульного листа выпуска "Опросные листы" помещают лист "Содержание". Содержанию присваивают обозначение, состоящее из обозначения выпуска опросных листов и через дефис шифра "С".

9.4 В наименовании опросного листа (габаритного чертежа) указывают наименование оборудования, которое в нем описывается, или его обозначение, или порядковый номер в пределах выпуска.

9.5 Изменения в опросные листы (габаритные чертежи) вносят самостоятельно в пределах каждого опросного листа (габаритного чертежа).

Сведения об изменениях, вносимых в опросные листы (габаритные чертежи), приводят в графе "Примечание" содержания выпуска опросных листов или в графе "Примечание" ведомости ссылочных и прилагаемых документов (если "Содержание" не выполняют).

9.6 Выпуск опросных листов записывают в разделе "Прилагаемые документы" ведомости ссылочных и прилагаемых документов, входящей в общие данные по рабочим чертежам основного комплекта марки ЭО.

Приложение А
(рекомендуемое)

ФОРМЫ ВЕДОМОСТЕЙ И БОКОВИКОВ К СХЕМАМ И УКАЗАНИЯ ПО ИХ ЗАПОЛНЕНИЮ

А.1 Ведомость помещений выполняют по форме 1.

Форма 1

Ведомость помещений

А.2 В графах ведомости помещений указывают:

- в графе "Номер помещения" - номера помещений в соответствии с нумерацией, указанной в основном комплекте рабочих чертежей марки АР;

- в графе "Наименование" - наименование помещения (технологического участка) в соответствии с наименованием, указанным в основном комплекте рабочих чертежей марки АР;

- в графе "Площадь, м2" - площадь помещения;

- в графе "Кат. пом. по взрывопожарной опасности" - категорию помещений по взрывопожарной и пожарной опасности. Категорию указывают для всех типов помещений производственных зданий и для помещений общественных зданий, в которых предусматривается нахождение горючих веществ и материалов согласно соответствующим нормативным документам;

- в графе "Класс зоны" для электроустановок, размещаемых во взрывоопасных и пожароопасных зонах внутри и вне помещений, - класс зоны;

- в графе "Кат. и группа взрывоопасной смеси" - категорию и группу взрывоопасных смесей для взрывоопасных зон (при необходимости);

- в графе "Нормируемая освещенность, Лк" - нормируемую освещенность от общего освещения (за исключением жилых помещений);

- в графе "Примечание" - дополнительные сведения.

А.3 Ведомость узлов установки электрического оборудования выполняют по форме 2.

Форма 2

Ведомость узлов установки электрического оборудования

А.4 В графах ведомости узлов установки электрического оборудования указывают:

- в графе "Поз." - позицию узла по плану расположения;

- в графе "Обозначение" - обозначение документа на узел установки электрического оборудования;

- в графе "Наименование" - наименование узла установки с указанием типа электрического оборудования;

- в графе "Кол." - количество узлов установки по плану расположения;

- в графе "Примечание" - дополнительные сведения.

А.5 Ведомость данных о групповых щитках выполняют по форме 3.

Форма 3

Данные о групповых щитках с автоматическими выключателями

А.6 В графах ведомости данных о групповых щитках указывают:

- в графе "Номер щитка" - номер щитка в проекте;

- в графе "Тип" - описание типа электрощита;

- в графе "Установленная мощность, кВА" - установленную мощность щита, разрешается приводить мощность щита в кВт;

- в графе "Номера автоматических выключателей - Однополюсные - Занятые" - позиционное обозначение однополюсных автоматических выключателей, к которым подключены потребители;

- в графе "Номера автоматических выключателей - Однополюсные - Резервные" - позиционное обозначение однополюсных автоматических выключателей, к которым не подключены потребители;

- в графе "Номера автоматических выключателей - Трехполюсные - Занятые" - позиционное обозначение трехполюсных автоматических выключателей, к которым подключены потребители;

- в графе "Номера автоматических выключателей - Трехполюсные - Резервные" - позиционное обозначение трехполюсных автоматических выключателей, к которым не подключены потребители;

- в графе "Ток расцепителя, А - На вводе" - значение тока расцепителя вводного автоматического выключателя щита;

- в графе "Ток расцепителя, А - На линиях" - значение тока расцепителя отходящих автоматических выключателей щита.

А.7 Ведомость осветительного оборудования выполняют по форме 4.

Форма 4

Ведомость осветительного оборудования

А.8 В графах ведомости осветительного оборудования указывают:

- в графе "Тип" - условное обозначение осветительного прибора одной марки. Обозначение, как правило, должно состоять из букв русского и (или) латинского алфавита и цифр;

- в графе "Марка" - марку осветительного прибора согласно данным изготовителя/поставщика;

- в графе "Код оборудования" - каталожный номер осветительного прибора согласно данным изготовителя/поставщика;

- в графе "Описание" - произвольное описание осветительного прибора, дающее представление о конструкции и способе монтажа осветительного прибора;

- в графе "Мощность, Вт" - мощность осветительного прибора согласно данным изготовителя/поставщика;

- в графе "Световой поток, Лм" - световой поток согласно данным изготовителя/поставщика;

- в графе "Цветовая темп., К" - цветовую температуру согласно данным изготовителя/поставщика (при необходимости);

- в графе "Источник света" - тип источника света согласно данным изготовителя/поставщика;

- в графе "Диммирование" - наличие функции диммирования согласно данным изготовителя/поставщика (при необходимости);

- в графе "Кол." - итоговое значение количества осветительных приборов на плане расположения (при необходимости).

Форма 5

Принципиальная схема группового щитка освещения в табличном виде

А.9 Боковик принципиальной схемы, питающей и распределительной сетей выполняют по форме 6.

Форма 6

А.10 Боковик принципиальной схемы магистрального и группового щитка освещения выполняют по форме 7.

Форма 7

А.11 Кабельный журнал для питающей и распределительной сетей выполняют по форме 8.

Форма 8

А.12 Формы 6 - 8 заполняют в соответствии с наименованиями граф.

А.13 Размеры граф ведомостей и боковиков при необходимости могут быть изменены по усмотрению разработчика.

Приложение Б
(рекомендуемое)

ПОРЯДОК ЗАПИСИ И ПРИМЕРЫ УСЛОВНЫХ ОБОЗНАЧЕНИЙ НА ПЛАНАХ РАСПОЛОЖЕНИЯ ЭЛЕКТРИЧЕСКОГО ОБОРУДОВАНИЯ И ПРОКЛАДКИ ЭЛЕКТРИЧЕСКИХ СЕТЕЙ

Таблица Б.1

Наименование Пример условного обозначения
1 Обозначение классов взрывоопасных и пожароопасных зон  
а) класс взрывоопасной зоны
категория и группа взрывоопасной смеси
б) класс взрывоопасной зоны
в) класс пожароопасной зоны
2 Сведения о светильниках указывают в следующем порядке:
количество - тип светильников в линии - количество ламп x мощность, Вт/высота установки, м
Примечание - Допускается не указывать: количество светильников при небольшом их числе в помещении; количество ламп для одноламповых светильников; высоту установки для потолочных светильников.
3 Светильник, используемый в качестве указателя (например, выхода)
4 Соответствие выключателей управляемым ими светильникам
5 Номер и цифры у светильников и штепсельных розеток, указывающие номера групп, к которым присоединяют светильники, линии светильников или штепсельные розетки
6 <*> Обозначение способов прокладки, марок проводников и сечений групповой сети в помещении указывают (через дефис) в следующем порядке; марка проводников - сечение, мм2 - способ прокладки (при необходимости) ВВГнг-LS-1(3x2,5)-Т20
7 <*> Надписи на линиях питающей и распределительной сети указывают в следующем порядке: номер линии - марка, количество и сечение проводников, мм2 - способ прокладки (при необходимости) H1-ВВГнг-LS-1(5x10)-Т40
8 <*> Надписи на линиях групповой сети указывают в следующем порядке: номер группы - марка, количество и сечение проводников - способ прокладки (при необходимости) N 1-ВВГнг-LS-1(3x2,5)-Т20
9 <*> При установке осветительных приборов на стене указывается высота установки от пола (при необходимости)
<*> На отдельных участках линий разрешается указывать не все, а только необходимые данные.

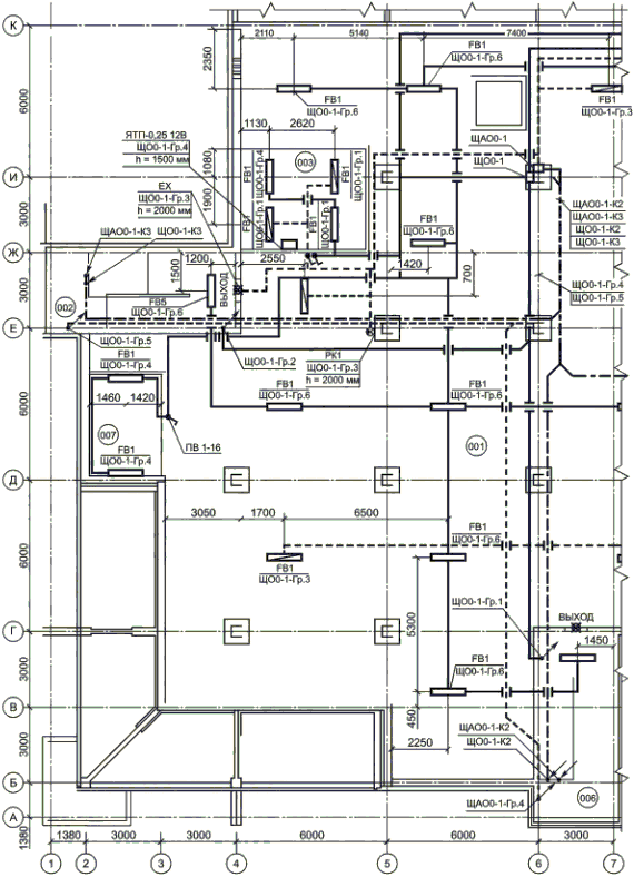
Приложение В
(справочное)

ПРИМЕР ОФОРМЛЕНИЯ ПЛАНА РАСПОЛОЖЕНИЯ ЭЛЕКТРИЧЕСКОГО ОБОРУДОВАНИЯ И ПРОКЛАДКИ ЭЛЕКТРИЧЕСКИХ СЕТЕЙ ДЛЯ ОБЩЕСТВЕННОГО ЗДАНИЯ

Рисунок В.1

Приложение Г
(справочное)

ПРИМЕР ЗАПОЛНЕНИЯ ВЕДОМОСТИ ПОМЕЩЕНИЙ

Ведомость помещений

Номер помещения Наименование Площадь, м2 Кат. пом. по взрывопожарной опасности Класс зоны Кат. и группа взрывоопасной смеси Нормируемая освещенность, лк Примечание
001 Подвал 663,6 Д - - 150  
002 Вход в подвал 21,2 Д - - 50  
003 Тепловой пункт 20,0 В4 П-IIа - 200  
004 Помещение ввода кабелей связи 8,1 В4 П-IIа - 50  
005 Узел ввода ВК 17,1 Д - - 50  
006 Вход в подвал 21,5 Д - - 50  
007 Помещение хранения люминесцентных ламп 11,6 В3 П-IIа - 50  

Рисунок Г.1

Приложение Д
(справочное)

ПРИМЕР ЗАПОЛНЕНИЯ ВЕДОМОСТИ УЗЛОВ УСТАНОВКИ ЭЛЕКТРИЧЕСКОГО ОБОРУДОВАНИЯ

Ведомость узлов установки электрического оборудования

Поз. Обозначение Наименование Кол. Примечание
1 5.407-4 лист 16 Установка кронштейнов 32  
    со светильниками с лампами    
    ДРЛ с шагом 3 м    
    светильники типа РСП 05-1000-Г23-004    
         
2 А625А-05-00-00 Установка светильника 6  
    ППД-200 на стенке    
         

Рисунок Д.1

Приложение Е
(справочное)

ПРИМЕР ЗАПОЛНЕНИЯ ВЕДОМОСТИ ДАННЫХ О ГРУППОВЫХ ЩИТКАХ

Данные о групповых щитках с автоматическими выключателями

Номер щитка Тип Установленная мощность, кВА Номера автоматических выключателей Ток расцепителя, А
Однополюсные Трехполюсные На вводе На линиях
Занятые Резервные Занятые Резервные
ЩАО0-1 Pragma, Cat. No. PRA29113. Навесное исполнение. IP31. Подвал 001 1,1 QF2 - QF6 QF7, QF8 QF1 - 25 6
ЩО0-1 Pragma, Cat. No. PRA29113. Навесное исполнение. IP31. Подвал 001 2,4 QF2 - QF7 QF8, QF9 QF1 - 25 6

Рисунок Е.1

Приложение Ж
(справочное)

ПРИМЕР ЗАПОЛНЕНИЯ ВЕДОМОСТИ ОСВЕТИТЕЛЬНОГО ОБОРУДОВАНИЯ

Ведомость осветительных приборов

Тип Марка Код оборудования Описание Мощность, Вт Световой поток, лк Цветовая темп., К Источник света Диммирование Кол.
EX CCA1001 LSSA0-1001-003-K03 Указатель выхода 3 40 3200 LED - 4
FB1 ARCTIC 1200 LED 1070000010 Накладной LED светильник IP65 60 3960 6000 LED - 69
FB2 ARCTIC 1500 LED 1070000020 Накладной LED светильник IP65 75 4950 6000 LED - 37
FB2E ARCTIC 1500 LED 1070000020 Накладной LED светильник IP65, с блоком аварийного питания на 1 час 75 4950 6000 LED - 4
FB3 PRS/S LED 1200X600 1060000050 Накладной светодиодный светильник для офисных помещений с равномерной засветкой рассеивателя и высокой энергоэффективностью 60 7400 6200 LED - 4
FB3E PRS/S LED 1200X600 1060000050 Накладной светодиодный светильник для офисных помещений с равномерной засветкой рассеивателя и высокой энергоэффективностью, с блоком аварийного питания на 1 час 60 7400 6200 LED - 1
FB4 STAR NBT LED 12 silver 4000K 1418000010 Светодиодный настенный/потолочный светильник 12 1000 4000 LED - 5
FB5 PRS/S LED 1200 1060000010 Накладной светодиодный светильник для офисных помещений с равномерной засветкой рассеивателя и высокой энергоэффективностью 60 4200 6200 LED - 15
PK1 BS-5101/3-4x1 INEXI SNEL LED 0201BS00288 Аварийный светильник со знаком пожарной безопасности "Пожарный кран" NPU-2424.14 4 1000 3200 LED - 9

Рисунок Ж.1

Приложение И
(справочное)

ПРИМЕР ОФОРМЛЕНИЯ ПРИНЦИПИАЛЬНОЙ СХЕМЫ ПИТАЮЩЕЙ И РАСПРЕДЕЛИТЕЛЬНОЙ СЕТИ МНОГОЭТАЖНОГО ЗДАНИЯ

Рисунок И.1

Приложение К
(рекомендуемое)

ПОЯСНЯЮЩИЕ НАДПИСИ НА ПРИНЦИПИАЛЬНОЙ СХЕМЕ ПИТАЮЩЕЙ И РАСПРЕДЕЛИТЕЛЬНОЙ СЕТЕЙ, ВЫПОЛНЯЕМОЙ С УЧЕТОМ РАСПОЛОЖЕНИЯ ЭЛЕКТРИЧЕСКОГО ОБОРУДОВАНИЯ ПО ЧАСТЯМ И ЭТАЖАМ ЗДАНИЯ

К.1 У комплектных распределительных устройств на напряжение до 1000 В:

- установленная мощность, кВт;

- расчетная нагрузка, кВт.

К.2 У групповых щитков:

,

где A - номер по плану расположения;

- потеря напряжения до щитка, %.

Пример -

К.3 На линиях питающей и распределительной сетей с расчетными данными (указывают конкретные величины):

В электронном документе текст соответствует официальному источнику.

,

где - маркировка линии;

- коэффициент мощности;

- расчетный ток, А;

l - длина участка питающей (распределительной) сети, м;

q - марка проводника; сечение, мм2;

- способ прокладки.

Пример -

К.4 На линиях питающей и распределительной сетей без расчетных данных:

.

Пример - 40-ВВГнг5x1,5-Т40

Приложение Л
(справочное)

ПРИМЕР ОФОРМЛЕНИЯ ПРИНЦИПИАЛЬНОЙ СХЕМЫ ГРУППОВОГО ЩИТКА ОСВЕЩЕНИЯ

Рисунок Л.1

Приложение М
(справочное)

ПРИМЕР ОФОРМЛЕНИЯ ПРИНЦИПИАЛЬНОЙ СХЕМЫ ПИТАЮЩЕЙ И РАСПРЕДЕЛИТЕЛЬНОЙ СЕТЕЙ

Рисунок М.1

Приложение Н
(справочное)

ПРИМЕР ОФОРМЛЕНИЯ ПРИНЦИПИАЛЬНОЙ СХЕМЫ ГРУППОВОГО ЩИТКА ОСВЕЩЕНИЯ В ТАБЛИЧНОМ ВИДЕ

Принципиальная схема групповой сети. Форма 5 ГОСТ 21.608
Данные распределительного устройства Аппарат на вводе распределительного устройства Данные об итоговых значениях нагрузок распред. устройства
Распределительное устройство ЩО0-1 Тип аппарата ВМ63-3С10 Установленная полная мощность распределительного устройства, кВА 2,4
Марка оболочки распред. устройства Pragma Номинальный ток, А 63
Код оболочки распред. устройства Cat. No. PRA29113 Уставка расцепителя, А 25 Ток от установленной мощности распределительного устройства, А 3,7
Способ монтажа Навесное исполнение Предельная коммутационная стойкость, кА 6,0
Степень защиты оболочки по ГОСТ 14254-96 IP31 Расчетная полная мощность распределительного устройства, кВА 2,4
Место установки распред. устройства Подвал 001 Тип защитной характеристики C
Кол. фаз питания распред. устройства 3 Кол. отключаемых полюсов аппарата 3 Ток от расчетной мощности распределительного устройства, А 3,7
Тип питающей сети ~ 220/380 В 3L, N, PE Уставка дифференциального тока, мА -
Электропитание осуществляется от распределительного устройства РП1 Обозначение QF1 Усредненный коэффициент спроса 1
    Ток в фазе A, А 2,8
Кол. модулей по 18 мм, устанавливаемых в распред. устройстве 13     Ток в фазе B, А 3,1
    Ток в фазе C, А 5,2
  Кабель, провод Труба Электроприемник
Аппарат отходящей линии (ввода); обозначение; тип;
, А; расцепитель или плавкая вставка, А; тип защитной характеристики; дифференциальный ток, мА
Кол. полюсов Обозначение Марка Кол. жил Сечение, мм2 Длина, м Обозначение Длина, м Обозначение или , кВт Фаза A: или , А Фаза B: или , А Фаза C: или , А Наименование, тип, обозначение чертежа принципиальной схемы
QF2, ВМ63-1С6,63,6, С, 6,0 кА 1 ЩО0-1-Гр.1 ВВГнг(А)-LS 3 1,5 40,9 П20 40 - 0,18 0,9     0,900 Рабочее освещение. Помещение ЛК-1-3, ЛК-1-2, ЛК-1-1, 006
QF3, ВМ63-1С6,63,6, С, 6,0 кА 1 ЩО0-1-Гр.2 ВВГнг(А)-LS 3 1,5 37,6 П20 37 - 0,18   0,9   0,900 Рабочее освещение. Помещение ЛК-2-2, ЛК-2-1, ЛК-2-3, 002
QF4, ВМ63-1С6,63,6, С, 6,0 кА 1 ЩО0-1-Гр.3 ВВГнг(А)-LS 3 1,5 36,1 П20 35 - 0,18     0,9 0,900 Рабочее освещение. Помещение ЛК-3-2, ЛК-3-1, 001
QF5, ВМ63-1С6,63,6, С, 6,0 кА 1 ЩО0-1-Гр.4 ВВГнг(А)-LS 3 1,5 39,7 П20 39 - 0,37 1,8     0,900 Рабочее освещение. Помещение 003, 007, 001
QF6, ВМ63-1С6,63,6, С, 6,0 кА 1 ЩО0-1-Гр.5 ВВГнг(А)-LS 3 2,5 42,4 П20 41 - 0,43   2,2   0,900 Рабочее освещение. Помещение 004, 005, 001
QF7, ВМ63-1С6,63,6, С, 6,0 кА 1 ЩО0-1-Гр.6 ВВГнг(А)-LS 3 2,5 102,6 П20 102 - 0,84     4,2 0,900 Рабочее освещение. Помещение 001, 002, 006
QF8. ВМ63-1С6,63,6, С, 6,0 кА 1                           Резерв
QF9. ВМ63-1С6,63,6, С, 6,0 кА 1                           Резерв

Рисунок Н.1

Приложение П
(справочное)

ПРИМЕР ЗАПОЛНЕНИЯ КАБЕЛЬНОГО ЖУРНАЛА ДЛЯ ПИТАЮЩЕЙ И РАСПРЕДЕЛИТЕЛЬНОЙ СЕТЕЙ

Маркировка кабеля Трасса Кабель
Начало Конец По проекту Проложен
Марка Количество кабелей, сечение жил, напряжение Длина, м Марка Количество кабелей, сечение жил, напряжение Длина, м
H001 +EE1=AC1.1 АВВГ 1(3x50+1x25) 25      
H002 +EE1=AC1.2 АВВГ 1(3x50+1x25) 25      
H003 +EE1=AC1.3 АВВГ 1(3x50+1x25) 25      
H004 +EE1=AC1.4 АВВГ 1(3x50+1x25) 25      

Рисунок П.1