Система проектной документации для строительства. Правила выполнения рабочей документации наружных сетей газоснабжения. ГОСТ 21.710-2021

(утв. Приказом Росстандарта от 24.08.2021 N 777-СТ)
Редакция от 24.08.2021 — Действует с 01.09.2021

Данный документ приведен с учетом Поправки, введенной в действие с 20.04.2022, Поправки, введенной в действие с 12.07.2023.


МЕЖГОСУДАРСТВЕННЫЙ СТАНДАРТ

СИСТЕМА ПРОЕКТНОЙ ДОКУМЕНТАЦИИ ДЛЯ СТРОИТЕЛЬСТВА

ПРАВИЛА ВЫПОЛНЕНИЯ РАБОЧЕЙ ДОКУМЕНТАЦИИ НАРУЖНЫХ СЕТЕЙ ГАЗОСНАБЖЕНИЯ

SYSTEM OF DESIGN DOCUMENTS FOR CONSTRUCTION. RULES FOR EXECUTION OF THE WORKING DOCUMENTATION OF EXTERNAL GAS PIPELINES

ГОСТ 21.710-2021

Дата введения
1 сентября 2021 года

Предисловие

Цели, основные принципы и общие правила проведения работ по межгосударственной стандартизации установлены ГОСТ 1.0 "Межгосударственная система стандартизации. Основные положения" и ГОСТ 1.2 "Межгосударственная система стандартизации. Стандарты межгосударственные, правила и рекомендации по межгосударственной стандартизации. Правила разработки, принятия, обновления и отмены"

Сведения о стандарте

1 РАЗРАБОТАН Акционерным обществом "Центр технического и сметного нормирования в строительстве" (АО "ЦНС")

2 ВНЕСЕН Техническим комитетом по стандартизации ТК 465 "Строительство"

3 ПРИНЯТ Межгосударственным советом по стандартизации, метрологии и сертификации (протокол от 19 марта 2021 г. N 138-П)

За принятие проголосовали:

Краткое наименование страны по МК (ИСО 3166) 004-97 Код страны по МК (ИСО 3166) 004-97 Сокращенное наименование национального органа по стандартизации
Азербайджан AZ Азстандарт
Армения AM ЗАО "Национальный орган по стандартизации и метрологии" Республики Армения
Беларусь BY Госстандарт Республики Беларусь
Казахстан KZ Госстандарт Республики Казахстан
Киргизия KG Кыргызстандарт
Россия RU Росстандарт
Узбекистан UZ Узстандарт

4 Приказом Федерального агентства по техническому регулированию и метрологии от 24 августа 2021 г. N 777-ст межгосударственный стандарт ГОСТ 21.710-2021 введен в действие в качестве национального стандарта Российской Федерации с 1 сентября 2021 г.

5 ВЗАМЕН ГОСТ 21.610-85

Информация о введении в действие (прекращении действия) настоящего стандарта и изменений к нему на территории указанных выше государств публикуется в указателях национальных стандартов, издаваемых в этих государствах, а также в сети Интернет на сайтах соответствующих национальных органов по стандартизации.

В случае пересмотра, изменения или отмены настоящего стандарта соответствующая информация будет опубликована на официальном интернет-сайте Межгосударственного совета по стандартизации, метрологии и сертификации в каталоге "Межгосударственные стандарты"

1 Область применения

Настоящий стандарт устанавливает состав и правила выполнения рабочей документации наружных газопроводов (подземных, надземных) сетей газораспределения или газопотребления для транспортирования природных, попутных нефтяных, искусственных и смешанных газов с избыточным давлением, не превышающим 1,2 МПа, используемых в качестве топлива и сырья.

2 Нормативные ссылки

В настоящем стандарте использованы нормативные ссылки на следующие межгосударственные стандарты:

ГОСТ 2.317 Единая система конструкторской документации. Аксонометрические проекции

ГОСТ 21.001 Система проектной документации для строительства. Общие положения

ГОСТ Р 21.1101-2013 отменен. Взамен него с 01.01.2021 введен в действие ГОСТ Р 21.101-2020.

ГОСТ 21.101-97 <*> - Система проектной документации для строительства. Основные требования к проектной и рабочей документации

<*> Утратил силу в Российской Федерации. Действует ГОСТ Р 21.1101-2013 "Система проектной документации для строительства. Основные требования к проектной и рабочей документации".

ГОСТ 21.110 Система проектной документации для строительства. Спецификация оборудования, изделий и материалов

ГОСТ 21.114 Система проектной документации для строительства. Правила выполнения эскизных чертежей общих видов нетиповых изделий

ГОСТ 21.205-2016 Система проектной документации для строительства. Условные обозначения элементов трубопроводных систем зданий и сооружений

ГОСТ 21.206-2012 Система проектной документации для строительства. Условные обозначения трубопроводов

ГОСТ 21.302 Система проектной документации для строительства. Условные графические обозначения в документации по инженерно-геологическим изысканиям

Примечание - При пользовании настоящим стандартом целесообразно проверить действие ссылочных стандартов и классификаторов на официальном интернет-сайте Межгосударственного совета по стандартизации, метрологии и сертификации (www.easc.by) или по указателям национальных стандартов, издаваемым в государствах, указанных в предисловии, или на официальных сайтах соответствующих национальных органов по стандартизации. Если на документ дана недатированная ссылка, то следует использовать документ, действующий на текущий момент, с учетом всех внесенных в него изменений. Если заменен ссылочный документ, на который дана датированная ссылка, то следует использовать указанную версию этого документа. Если после принятия настоящего стандарта в ссылочный документ, на который дана датированная ссылка, внесено изменение, затрагивающее положение, на которое дана ссылка, то это положение применяется без учета данного изменения. Если ссылочный документ отменен без замены, то положение, в котором дана ссылка на него, применяется в части, не затрагивающей эту ссылку.

3 Термины и определения

В настоящем стандарте применены термины по ГОСТ 21.001, а также следующие термины с соответствующими определениями:

3.1 наружный газопровод: Подземный и (или) надземный газопровод сети газораспределения или газопотребления, проложенный вне зданий, до внешней грани наружной конструкции здания.

3.2 подземный газопровод: Наружный газопровод, проложенный ниже уровня поверхности земли или по поверхности земли в обваловании.

3.3 надземный газопровод: Наружный газопровод, проложенный над поверхностью земли или по поверхности земли без обвалования.

3.4 сеть газораспределения: Единый производственно-технологический комплекс, включающий в себя наружные газопроводы, сооружения, технические и технологические устройства, расположенные на наружных газопроводах, и предназначенный для транспортирования природного газа от отключающего устройства, установленного на выходе из газораспределительной станции, до отключающего устройства, расположенного на границе сети газораспределения и сети газопотребления, в том числе сети газопотребления жилых зданий.

3.5 сеть газопотребления: Единый производственно-технологический комплекс, включающий в себя наружные и внутренние газопроводы, сооружения, технические и технологические устройства, газоиспользующее оборудование, размещенный на одной производственной площадке и предназначенный для транспортирования природного газа от отключающего устройства, расположенного на границе сети газораспределения и сети газопотребления, до отключающего устройства перед газоиспользующим оборудованием.

4 Общие положения

4.1 Рабочую документацию наружных газопроводов выполняют в соответствии с требованиями настоящего стандарта и других стандартов Системы проектной документации для строительства (СПДС), а также норм проектирования сетей газораспределения или газопотребления.

4.2 В состав рабочей документации наружных газопроводов включают:

- рабочие чертежи, предназначенные для производства строительных и монтажных работ (основной комплект рабочих чертежей марки (ГСН));

- эскизные чертежи общих видов нетиповых изделий, выполняемые по ГОСТ 21.114;

- спецификацию оборудования, изделий и материалов;

- локальную смету (при необходимости).

4.3 В состав основного комплекта рабочих чертежей марки ГСН включают:

- общие данные по рабочим чертежам;

- планы газопроводов;

- продольные профили газопроводов.

При большой насыщенности планов выполняют выносные элементы (фрагменты, узлы).

Для надземных газопроводов при необходимости выполняют разрезы, а также изображения (схемы) в аксонометрических проекциях по ГОСТ 2.317.

4.4 Газопроводы, элементы газопроводов, арматуру на чертежах указывают условными графическими обозначениями по ГОСТ 21.206 и ГОСТ 21.205 или упрощенными изображениями в масштабе чертежа.

При отсутствии на чертежах видимых участков газопроводов допускается обозначать проектируемые подземные газопроводы сплошной толстой основной линией с необходимыми пояснениями в общих данных по рабочим чертежам или на соответствующих листах чертежей.

Буквенно-цифровые обозначения газопроводов принимают по ГОСТ 21.205-2016 (таблица 20).

4.5 Длины газопроводов, расстояния между колодцами, опорами, углами поворотов, отметки уровней (высоты, глубины) указывают в метрах с двумя десятичными знаками, отделенными от целого числа запятой.

Диаметры и толщины стенок газопроводов указывают в миллиметрах и наносят на чертежах в соответствии с ГОСТ 21.206-2012 (пункт 3.11).

4.6 Угловые размеры указывают в градусах, минутах, а при необходимости - секундах, с обозначением единицы измерения, например, 4°; 4°30'; 12°45'30".

4.7 Числовое значение уклонов указывают в промилле без обозначения единицы измерения.

4.8 Система координат и высотных отметок, принимаемая в рабочих чертежах наружных газопроводов, должна соответствовать системе координат и высотных отметок, принятой на топографическом плане.

4.9 Некоторым элементам газопроводов присваивают обозначения, состоящие из марок, приведенных в таблице 1, и порядковых номеров элементов в пределах каждого газопровода, например, УП1, УП2.

Таблица 1

Наименование элемента газопровода Марка
Колодец ГК
П-образный компенсатор КП
Угол поворота УП
Неподвижная опора Н

4.10 Рекомендуемые масштабы изображений на чертежах приведены в таблице 2.

Таблица 2

Наименование изображения Масштаб
Планы газопроводов 1:200, 1:500, 1:1000, 1:2000
Продольные профили газопроводов:  
по горизонтали 1:200, 1:500, 1:1000, 1:2000
по вертикали 1:50, 1:100
Фрагменты и узлы 1:10, 1:20, 1:50; 1:100

Масштаб изображений указывают в графе 4 основной надписи, выполняемой по форме 3 ГОСТ 21.101-97 (приложение Д) <*>. Если на листе приведено несколько изображений, выполняемых в разных масштабах, масштаб указывают в круглых скобках рядом с наименованием каждого изображения.

Масштабы изображения продольного профиля газопровода по горизонтали и по вертикали указывают слева от профиля (над боковиком таблицы).

4.11 Изображения плана и продольного профиля газопровода допускается делить на несколько участков, располагаемых на отдельных листах. В графе 4 основной надписи, выполняемой по форме 3 ГОСТ 21.101-97 (приложение Д) <*> приводят наименование показываемого участка, например, с привязкой к пикетам.

<*> В Российской Федерации действует ГОСТ Р 21.1101-2013.

Пример - План ПК0 - ПК50+10,00; Профиль Г3 ПК0 - ПК75+40,00

5 Общие данные по рабочим чертежам

5.1 Общие данные по рабочим чертежам выполняют по ГОСТ 21.101.

5.2 Ведомость спецификаций, предусмотренную ГОСТ 21.101, в составе общих данных по рабочим чертежам наружных газопроводов не выполняют.

5.3 В общих указаниях, входящих в состав общих данных по рабочим чертежам, кроме сведений, предусмотренных ГОСТ 21.101, приводят категорию газопровода, требования по монтажу, испытаниям, условиям прокладки, лакокрасочному покрытию и защитному (изоляционному) покрытию.

6 Планы газопроводов

6.1 Для разработки планов газопроводов в качестве подосновы используют рабочие чертежи генеральных планов, автомобильных дорог и железнодорожных путей или топографические планы.

Рабочие чертежи на бумажном носителе и в виде электронных документов могут быть выполнены на основе цифровой модели местности.

6.2 На планах газопроводов наносят и указывают:

- существующие и проектируемые здания (сооружения) в виде упрощенных контурных очертаний сплошной тонкой линией;

- проектируемые и существующие газопроводы и их элементы в соответствии с 4.4;

- координатную привязку элементов газопроводов или их привязку к координационным осям зданий (сооружений), или к наружным стенам существующих зданий (сооружений). При необходимости на планах газопроводов указывают номера пикетов (ПК) и привязки элементов газопроводов к ближайшим пикетам;

- числовые значения углов поворотов (кроме углов 90°). Допускается указывать числовые значения углов поворотов только в графе "Развернутый план" таблицы под продольным профилем газопровода;

- инженерные сети другого назначения, влияющие на прокладку проектируемых газопроводов;

- диаметры и толщины проектируемых газопроводов до и после точек их изменения;

- сооружения на газопроводах, например, колодцы, конденсатосборники, контрольно-измерительные пункты, электрические перемычки, электроизолирующие соединения, установки электрохимической защиты;

- охранную зону газопроводов (при необходимости).

6.3 Планы газопроводов допускается размещать как на отдельных листах, так и совместно с продольными профилями газопроводов.

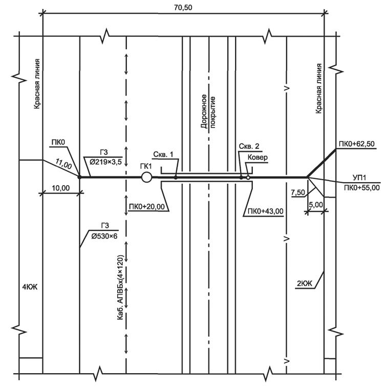
6.4 Пример выполнения плана газопроводов приведен на рисунке А.1 (приложение А).

7 Продольные профили газопроводов

7.1 Продольные профили газопроводов изображают в виде разверток по осям газопроводов.

7.2 На продольном профиле газопровода наносят и указывают:

- поверхность земли (проектную - сплошной толстой основной линией, фактическую - сплошной тонкой линией);

- уровень грунтовых вод - тонкой штрихпунктирной линией;

- пересекаемые автомобильные дороги, железнодорожные и трамвайные пути, кюветы, а также другие подземные и надземные сооружения в виде упрощенных контурных очертаний - сплошной тонкой линией, коммуникации, влияющие на прокладку проектируемых газопроводов, с указанием их габаритных размеров и высотных отметок;

- проектируемый газопровод - сплошной толстой основной линией. Газопроводы изображают двумя линиями, если их диаметры в соответствующем масштабе равны 2 мм и более;

- колодцы, коверы, эстакады, отдельно стоящие опоры и другие сооружения и конструкции газопроводов в виде упрощенных контурных очертаний наружных габаритов - сплошной тонкой линией;

- данные о грунтах. В зависимости от протяженности газопровода и характера напластования данные о грунтах рекомендуется приводить условными обозначениями в соответствии с ГОСТ 21.302 - колонками в отдельных точках (в местах заложения инженерно-геологических выработок) либо по всей трассе газопровода;

- отметки верха трубы для подземного газопровода и отметки низа трубы для надземного газопровода;

- глубину траншеи от проектной и фактической поверхности земли;

- футляры на газопроводах с указанием диаметров, длин и привязок их к оси дорог, к сооружениям, влияющим на прокладку проектируемых газопроводов, или к пикетам;

- обозначения инженерно-геологических выработок (разведочных скважин).

7.3 Под продольным профилем газопровода помещают таблицу с перечнем данных, необходимых для прокладки газопровода. Боковик таблицы для подземной прокладки газопровода выполняют по форме 1, для надземной прокладки - по форме 2.

Примечание - В графе "Уклон, ; длина, м" прямолинейные участки газопровода показывают линиями с наклоном, соответствующим наклону участка на профиле, при этом над линией указывают числовое значение уклона, под линией - длину участка с этим уклоном.

Допускается дополнять таблицы другими данными (например, пикеты, высота опор), характеристикой грунтов (например, просадочность, набухание, коррозионная агрессивность), а также приводить шкалу отметок.

7.4 Отметки дна траншеи под газопровод проставляют в характерных точках, например, в местах пересечений с автомобильными дорогами, железнодорожными и трамвайными путями, инженерными коммуникациями и сооружениями, влияющими на прокладку проектируемых газопроводов.

7.5 Пример выполнения продольного профиля подземного газопровода приведен на рисунке Б.1.

8 Спецификация оборудования, изделий и материалов

8.1 Спецификацию оборудования, изделий и материалов (далее - спецификация) к основному комплекту рабочих чертежей марки ГСН составляют и обозначают по ГОСТ 21.110 с учетом требований настоящего стандарта.

8.2 Элементы газопроводов (оборудование, изделия и материалы) в спецификации записывают для каждого газопровода, как правило, по группам в следующей последовательности:

- оборудование;

- элементы сооружений на газопроводах из сборных конструкций;

- трубопроводная арматура;

- другие изделия;

- закладные конструкции (отборные устройства для установки контрольно-измерительных приборов);

- трубы для газопроводов;

- изоляционные конструкции;

- материалы.

Оборудование, трубопроводную арматуру, другие элементы газопроводов размещают в группах спецификации в порядке возрастания их основных параметров (например: тип, марка, диаметр).

8.3 В спецификации принимают следующие единицы измерения:

- оборудование и изделия - шт.;

- трубы для газопроводов - м;

- элементы газопроводов (фасонные части) - шт.;

- изоляционные материалы - куб. м;

- материалы покрытий и защиты - кв. м;

- другие материалы - кг или т.

Приложение А
(справочное)

ПРИМЕР ВЫПОЛНЕНИЯ ПЛАНА ГАЗОПРОВОДА

Рисунок А.1

Приложение Б
(справочное)

ПРИМЕР ВЫПОЛНЕНИЯ ПРОДОЛЬНОГО ПРОФИЛЯ ГАЗОПРОВОДА

Рисунок Б.1