Изменение N 1 ГОСТ р 52289-2019 технические средства организации дорожного движения. Правила применения дорожных знаков, разметки, светофоров, дорожных ограждений и направляющих устройств

(утв. Приказом Росстандарта от 25.12.2024 N 2000-СТ)
Редакция от 25.12.2024 — Вступит в силу с 01.01.2026

Данный документ вводится в действие с 01.01.2026 с правом досрочного применения.


УТВЕРЖДЕНО
и введено в действие
Приказом Федерального агентства
по техническому регулированию
и метрологии
от 25.12.2024 N 2000-ст

Дата введения - 2026-01-01
с правом досрочного применения

ИЗМЕНЕНИЕ N 1
ГОСТ Р 52289-2019 ТЕХНИЧЕСКИЕ СРЕДСТВА ОРГАНИЗАЦИИ ДОРОЖНОГО ДВИЖЕНИЯ. ПРАВИЛА ПРИМЕНЕНИЯ ДОРОЖНЫХ ЗНАКОВ, РАЗМЕТКИ, СВЕТОФОРОВ, ДОРОЖНЫХ ОГРАЖДЕНИЙ И НАПРАВЛЯЮЩИХ УСТРОЙСТВ

Раздел 1. Первый абзац изложить в новой редакции: "Настоящий стандарт устанавливает правила применения технических средств организации дорожного движения: дорожных знаков, дорожной разметки, дорожных светофоров, а также боковых дорожных ограждений и направляющих устройств на автомобильных дорогах, улицах и дорогах городов, городских округов, городских и сельских поселений (далее, кроме раздела 8, - дорогах)".

Раздел 2. Заменить ссылку: "ГОСТ 23407" на "ГОСТ Р 58967";

дополнить ссылками:

"ГОСТ 32018 Изделия строительно-дорожные из природного камня. Технические условия

ГОСТ 32961 Дороги автомобильные общего пользования. Камни бортовые. Технические требования

СП 396.1325800.2018 Улицы и дороги населенных пунктов. Правила градостроительного проектирования".

Пункт 4.4. Первый абзац после слов "и светофоры" дополнить словами: "или их части,";

дополнить абзацем (после первого):

"На знаках 6.9.1, 6.9.2, 6.10.1 - 6.12 зачехление надписей и/или их частей допускается способом перечеркивания двумя диагональными пересекающимися в центре зачехляемой информации красными полосами. Ширину красных полос при этом принимают равной половине высоты прописной буквы, но не менее 100 мм (рисунок В.31)".

Пункт 4.5 изложить в новой редакции:

"4.5 Владельцам дорог и органам исполнительной власти, уполномоченным в области организации дорожного движения, по разрешению подразделения Госавтоинспекции на федеральном уровне допускается в экспериментальных целях применять технические средства организации дорожного движения, не предусмотренные действующими стандартами.

При этом владельцем дорог и органом исполнительной власти, уполномоченным в области организации дорожного движения, предоставляется следующая информация:

- цели и задачи эксперимента;

- сроки и перечень мест проведения эксперимента;

- ожидаемый результат;

- методика оценки эффективности технических средств организации дорожного движения и их восприятия участниками дорожного движения;

- техническая документация на техническое решение (изделие).

Для информирования участников дорожного движения о назначении такого технического средства устанавливают транспаранты и размещают на информационных ресурсах в сети Интернет соответствующую информацию, разъясняющую смысл проводимого эксперимента".

Пункт 5.1.2. Первый абзац изложить в новой редакции:

"5.1.2 Все устанавливаемые на дороге знаки, в том числе отображаемые на знаках переменной информации или табло переменной информации, должны соответствовать требованиям ГОСТ 32945 или ГОСТ Р 52290, размещаться на опорах по ГОСТ 32948, светофорных колонках или стойках и в процессе эксплуатации отвечать требованиям ГОСТ 33220 и ГОСТ Р 50597";

второй абзац. После слов "опорах освещения" дополнить словами: "и иных стационарных объектах".

Пункт 5.1.6 дополнить абзацем (после первого):

"Вне населенных пунктов знак 3.24 допускается дублировать на дорогах с одной полосой для движения в каждом направлении в местах концентрации дорожно-транспортных происшествий (ДТП) и для профилактики их возникновения на опасных участках";

третий абзац. После слов "только разметкой 1.2, или" дополнить словами: "имеющих конструктивно выделенную полосу, при невозможности соблюдения требований 5.1.7, а также на дорогах";

последний абзац изложить в новой редакции:

"В населенных пунктах знак 5.19.1 дублируют над проезжей частью на дорогах:

- с двухсторонним движением с двумя и более полосами для движения в данном направлении <***>;

- с односторонним движением с тремя и более полосами";

дополнить абзацами (после последнего):

"Вне населенных пунктов знак 5.19.1 дублируют над проезжей частью на всех дорогах.

Знак 5.19.1 над проезжей частью размещают не ближе оси крайней правой полосы движения относительно края проезжей части. При необходимости на оборотной стороне дублирующего знака 5.19.1 допускается размещать знак 5.19.2.

В населенных пунктах на регулируемых пешеходных переходах знак 5.19.1 допускается не дублировать. На нерегулируемых пешеходных переходах знак 5.19.1 допускается не дублировать при наличии устроенных искусственных неровностей, в том числе совмещенных с пешеходным переходом".

Пункт 5.1.8 дополнить абзацем (перед последним):

"Очередность размещения знаков одной группы на одной опоре (сверху вниз, слева направо), за исключением знаков дополнительной информации (табличек), рекомендуется определять порядковым номером знака в группе".

Пункт 5.1.14. Третий абзац. Заменить слова: "с табличками 8.6.1 - 8.6.9 и 8.17," на "с соответствующими табличками или без таковых,".

Пункт 5.1.16. Таблица 1. Графа "в населенных пунктах". Первая строка. Заменить слова: "Улицы и дороги местного значения, парковые дороги, проезды, улицы и дороги сельских поселений" на "Улицы и дороги местного значения, пешеходные улицы, площади, улицы и дороги сельских населенных пунктов";

сноска <1>. После слов "для движения в каждом направлении" дополнить словами:

"В населенных пунктах на улицах и дорогах с количеством полос не более двух в каждом направлении и на двухполосных дорогах с односторонним движением типоразмер 1 по ГОСТ 32945 допустим для знаков 3.27 - 3.30, 6.4 и примененных с ними знаков дополнительной информации (табличек)".

Пункт 5.1.17. Последний абзац изложить в новой редакции:

"На дорогах вне населенных пунктов знаки 1.1, 1.2, 1.22, 1.23, 5.19.1 и 5.19.2, а в населенных пунктах знаки 1.1, 1.2, а также знаки 1.22, 1.23, 5.19.1 и 5.19.2 на участках дорог, проходящих вдоль территории детских учреждений <*>, следует применять на щитах со световозвращающей флуоресцентной пленкой желто-зеленого цвета. Любые знаки на таких щитах (кроме знаков по 5.1.19 и знаков 2.1, 2.2, 2.4, 2.5) допускается применять в местах концентрации ДТП и для профилактики их возникновения на опасных участках";

дополнить сноской <*>:

"

<*> Здесь и далее под детскими учреждениями следует понимать объекты социальной инфраструктуры для детей: здания, строения, сооружения, необходимые для жизнеобеспечения детей, а также организации, деятельность которых осуществляется в целях обеспечения полноценной жизни, охраны здоровья, образования, отдыха и оздоровления, развития детей, удовлетворения их общественных потребностей".

Пункт 5.1.19 изложить в новой редакции:

"5.1.19. Временные дорожные знаки 1.8, 1.15, 1.16, 1.18 - 1.21, 1.33, 2.6, 3.11 - 3.16, 3.18.1 - 3.25, 6.22 с желтым фоном или знаки, установленные на переносных опорах, переносных или передвижных комплексах, а также отображаемые на знаках переменной информации или табло переменной информации, применяют в течение периода, вызвавшего необходимость временного изменения организации дорожного движения. При этом стационарные знаки, которые противоречат временным знакам, закрывают чехлами, исключающими возможность прочтения изображения знаков, или демонтируют".

Пункт 5.2.5. Первый абзац изложить в новой редакции:

"5.2.5. Знаки 1.1 "Железнодорожный переезд со шлагбаумом" и 1.2 "Железнодорожный переезд без шлагбаума" устанавливают перед всеми железнодорожными переездами, соответственно оборудованными или не оборудованными шлагбаумами. Знаки следует дублировать по 5.1.6. На дорогах с одной полосой для движения в каждом направлении знаки дублируют, если расстояние видимости переезда вне населенных пунктов менее 300 м, а в населенных пунктах - менее 100 м".

Пункт 5.2.7. Первый абзац изложить в новой редакции:

"5.2.7. Знаки 1.4.1 - 1.4.6 "Приближение к железнодорожному переезду" устанавливают вне населенных пунктов перед каждым железнодорожным переездом. В населенных пунктах знаки 1.4.1 - 1.4.6 допускается устанавливать в случае установки дублирующих и повторных знаков 1.1 или 1.2 по 5.1.6, 5.2.5 и 5.2.3 соответственно".

Пункт 5.2.14. Первый абзац. Заменить слово: "характерной" на "установленной".

Пункт 5.2.19 дополнить абзацем:

"В населенных пунктах при наличии знака 5.20 или 6.2.1 и разметки 1.25 знак 1.17 допускается не устанавливать".

Пункт 5.2.22. Первый абзац изложить в новой редакции:

"5.2.22. Знаки 1.20.1 - 1.20.3 "Сужение дороги" устанавливают вне населенных пунктов перед участками дорог, на которых ширина проезжей части уменьшается более чем на 0,5 м, в населенных пунктах - на одну полосу или более, а в местах производства работ - более чем на 0,5 м. Знак также устанавливают перед мостовыми сооружениями и тоннелями, если ширина проезжей части в пределах искусственного сооружения менее, чем на подходах к нему".

Пункт 5.2.23. Первый абзац. Заменить слова: "Допускается не устанавливать знак перед участками дорог с односторонним движением протяженностью менее 100 м" на "Допускается не устанавливать знак перед участками дороги (проезжей части) с двусторонним движением, если им предшествует участок с односторонним движением протяженностью менее 100 м".

Пункт 5.2.25. Первый абзац. Заменить слово: "учреждений <*>" на "учреждений", сноску <*> исключить;

третий абзац. Заменить слова: "от 20 до 30 м от опасного участка" на "не более 30 м от начала опасного участка".

Пункт 5.2.27. Пятый абзац. Исключить слова: ", при этом допускается использовать знак уменьшенного размера по ГОСТ Р 52290".

Пункт 5.2.36. Первый абзац после слов "радиусами 600 м и менее" дополнить словами: ", с расстояниями видимости в плане или профиле менее минимальных значений (таблица 4)";

дополнить абзацем:

"Знаки 1.34.1 и 1.34.2 не должны вводить в заблуждение участников дорожного движения относительно направления движения".

Пункт 5.2.38. Заменить ссылку: "по ГОСТ 23407" на "по ГОСТ Р 58967".

Пункт 5.2.39. Заменить слово: "устанавливают" на "допускается устанавливать".

Пункт 5.3.2. Первый абзац после слов "Знак 2.1 "Главная дорога" дополнить словами: "вне населенных пунктов";

второй абзац изложить в новой редакции:

"В населенных пунктах знак устанавливают перед каждым перекрестком на главной дороге. Знак допускается не устанавливать перед перекрестком, где главная дорога проходит в прямом направлении, а второстепенная дорога с односторонним движением начинается от данного перекрестка, а также на противоположной примыканию стороне перед примыканием второстепенной дороги к главной";

третий абзац. Заменить слова: "предварительно на расстоянии от 150 до 300 м до перекрестка и перед перекрестком (рисунок В.4а)" на "предварительный на расстоянии от 150 до 300 м до перекрестка с табличкой 8.1.1, а основной перед перекрестком (рисунок В.4а)".

Пункт 5.3.3. Второй абзац после слов "за 25 м от перекрестка либо со знаком 2.4 или 2.5" дополнить словами: "В населенных пунктах дорожный знак 2.2 допускается не устанавливать при наличии знаков 2.4 или 2.5".

Пункт 5.3.4. Первый абзац. Заменить слова: "на дорогах, обозначенными знаком 2.1" на "на главной дороге".

Пункт 5.4.19. Первый абзац. Заменить слово: "перекрестком" на "местами".

Пункт 5.4.21. Третий абзац изложить в новой редакции:

"Знак 3.20 устанавливают на участках дорог с необеспеченной видимостью встречного автомобиля по таблице 4";

дополнить абзацем (перед последним):

"Знак 3.20 допускается устанавливать в местах начала линий разметки 1.1, 1.3, а также 1.11 (со стороны сплошной линии, запрещающей обгон) вне зависимости от условий видимости".

Пункт 5.4.22. Четвертый абзац. Заменить слово: "допускается" на "следует применять";

шестой абзац. Заменить слова: "(рисунок В.21)" на "(рисунок В.21а);

дополнить словами:

"Допускается не устанавливать знак 3.24 с табличкой 8.2.1 в случае, если установленная скорость движения на участке дороги данного направления с искусственной неровностью не превышает максимально допустимую скорость для конструкции искусственной неровности".

Пункт 5.4.29. Заменить номера знаков: "3.32 - 3.34" на "3.32 - 3.35".

Пункт 5.5.2. Второй абзац исключить.

Пункт 5.5.4. Заменить слова: "левой полосой" на "серединой проезжей части данного направления".

Пункт 5.5.7. Первый абзац изложить в новой редакции:

"5.5.7 Знак 4.4.1 "Велосипедная дорожка" применяют для обозначения конструктивно отделенного от проезжей части и тротуара элемента дороги (либо отдельной дороги), предназначенного для движения велосипедистов и лиц, использующих для передвижения средства индивидуальной мобильности".

Пункт 5.5.11. Второй абзац исключить.

Пункт 5.6.7 дополнить абзацем:

"На Т-образном перекрестке знак 5.6 допускается не устанавливать в конце дороги или проезжей части, обозначенной знаком 5.5 и не имеющей продолжения".

Пункты 5.6.14, 5.6.15 изложить в новой редакции:

"5.6.14. Знак 5.12.1 "Конец дороги с полосой для маршрутных транспортных средств" устанавливают в конце дороги, обозначенной знаком 5.11.1.

5.6.15. Знак 5.12.2 "Конец дороги с полосой для велосипедистов" устанавливают в конце дороги с полосой, обозначенной знаком 5.11.2".

Пункт 5.6.18 дополнить абзацем (после третьего):

"При одностороннем движении или при наличии конструктивно выделенной разделительной полосы допускается устанавливать знак слева от полосы в случае, если она крайняя левая";

четвертый абзац. После слов "за каждым перекрестком" дополнить словами: "и выездом с прилегающей территории, имеющей сквозной проезд,";

пятый абзац. Исключить слова: ", признаки которых могут неоднозначно распознаваться водителями транспортных средств";

дополнить абзацем (после пятого):

"После выездов с прилегающих территорий, не имеющих сквозного проезда, знак 5.14.1 допускается не устанавливать при условии наличия разметки 1.23.1";

последний абзац исключить.

Пункт 5.6.21 исключить.

Пункт 5.6.22 изложить в новой редакции:

"5.6.22. Знаки 5.15.1 "Направления движения по полосам" и 5.15.2 "Направления движения по полосе" применяют для указания разрешенных направлений движения по каждой из полос, где требуется обеспечить использование полос в соответствии с интенсивностью движения транспортных средств по различным направлениям. Применение знаков 5.15.2 предпочтительно.

Основные знаки 5.15.1 и 5.15.2 устанавливают в начале разделения полос движения разметкой 1.1, а при ее отсутствии - от ближайшей границы пересекаемой проезжей части не менее чем за:

- 20 м - на дорогах с разрешенной максимальной скоростью движения не более 60 км/ч;

- 40 м - на дорогах с разрешенной максимальной скоростью движения более 60 км/ч.

Предварительные знаки 5.15.1 и 5.15.2 устанавливают на дорогах, имеющих три полосы и более для движения в данном направлении, на расстоянии от 50 до 150 м до места установки основных знаков. На других дорогах предварительные знаки допускается устанавливать при необходимости.

В населенных пунктах на дорогах с разрешенной максимальной скоростью движения транспортных средств не более 60 км/ч предварительные знаки 5.15.1 и 5.15.2 допускается не размещать. При необходимости их следует размещать на расстоянии не менее 20 м до места установки основных знаков.

Знак 5.15.1 располагают над серединой проезжей части данного направления, при этом наносят разметку 1.18 по 6.2.21.

Каждый из знаков 5.15.2 располагают над серединой полосы, для которой он предназначен.

Знак 5.15.1 вне населенных пунктов на дорогах, имеющих не более трех, а в населенных пунктах - не более двух полос движения в данном направлении, допускается размещать справа от дороги, при этом устанавливают и предварительный знак 5.15.1.

При наличии знаков 5.15.1 и 5.15.2 знаки 4.1.1 - 4.1.6 не применяют".

Пункт 5.6.28 дополнить подпунктом 5.6.28.1:

"5.6.28.1. Знак 5.15.9 "Начало полос" применяют для обозначения начала полос движения при одновременном увеличении числа полос в попутном направлении справа и слева. Знак устанавливают у начала отгона полос или переходной линии разметки".

Пункт 5.6.30. Второй абзац. Заменить слова: "при этом знак 5.19.1 устанавливают на такой разделительной полосе, если по ней организовано пешеходное движение вдоль проезжей части или пешеходный переход пересекает две и более разделительные полосы" на "при условии соблюдения требований 5.1.7";

пятый абзац изложить в новой редакции:

"На дорогах с двухсторонним движением знак 5.19.2 допускается размещать на оборотной стороне знака 5.19.1, а на дорогах с односторонним движением знаки 5.19.1, 5.19.2 должны быть размещены на оборотной стороне знаков 5.19.2, 5.19.1";

шестой абзац. Заменить слова: "на внешних границах пешеходных переходов" на "на пешеходных переходах";

последний абзац изложить в новой редакции:

"Знак 5.19.1 следует дублировать по 5.1.6".

Пункт 5.6.31 дополнить абзацами:

"Знак уменьшенного размера по ГОСТ Р 52290 допускается устанавливать на дворовых территориях и территориях, обозначенных знаком 5.21.

При обозначении искусственной неровности знаком 6.2.1 "Рекомендуемая скорость при проезде искусственной неровности" знак 5.20 не применяют (рисунок В.21б)".

Пункт 5.6.40. Первый абзац изложить в новой редакции:

"5.6.40. Знаки 5.27 "Зона с ограничениями стоянки", 5.29 "Зона регулируемой стоянки", 5.31 "Зона с ограничением максимальной скорости" и 5.41 "Зона с ограничением остановки" применяют для обозначения территории (участка дороги), в пределах которой регламентирована стоянка, ограничена максимальная скорость движения или остановка";

третий абзац после слов "максимальной скорости" дополнить словами: "и остановки".

Пункт 5.6.44. Первый абзац после слов "5.40 "Конец велосипедной зоны" дополнить словами: ", 5.42 "Конец зоны с ограничением остановки";

после знака "5.39" дополнить знаком: "5.41";

третий абзац дополнить знаками: после знака "5.38" - знаком "5.42", после знака "5.37" - знаком "5.41".

Пункт 5.6.45. Заменить знаки: "знаками 5.27 - 5.38" на "знаками 5.27 - 5.38, 5.41 и 5.42".

Пункт 5.7.3. Второй абзац исключить.

Пункт 5.7.3 дополнить подпунктом 5.7.3.1:

"5.7.3.1. Знак 6.2.1 "Рекомендуемая скорость при проезде искусственной неровности" применяют для обозначения искусственной неровности и информирования водителей транспортных средств о скорости, с которой рекомендуется двигаться при ее проезде. Знак применяют и устанавливают по 5.6.31".

Пункт 5.7.5. Третий абзац исключить;

последний абзац изложить в новой редакции:

"Знак 6.4 с изображением одного из символов табличек 8.6.1 - 8.6.9 применяют по 5.9.11, с изображением символа таблички 8.8 - по 5.9.13, а с изображением символа таблички 8.17 - по 5.9.24".

Пункт 5.7.18. Первый абзац. Заменить слова: "на регулируемых перекрестках, железнодорожных переездах" на "перед регулируемыми перекрестками, регулируемыми пешеходными переходами, железнодорожными переездами";

третий абзац дополнить словами:

"Высота установки знака сбоку от проезжей части должна быть (1,5 0,1) м";

четвертый абзац изложить в новой редакции:

"Если знак применяют самостоятельно, то расстояние от знака до светофора, шлагбаума или ближнего рельса определяют по 6.2.14";

дополнить абзацем:

"В населенных пунктах перед регулируемыми пешеходными переходами и регулируемыми перекрестками, за исключением перекрестков, имеющих по пути следования несколько пересечений проезжих частей, при наличии разметки 1.12 знак 6.16 допускается не применять".

Пункт 5.7.18 дополнить подпунктом 5.7.18.1:

"5.7.18.1. Знак 6.16.1 "Стоп-линия" следует применять по 5.7.18 при невозможности обеспечения требований по 5.1.7 для знака 6.16, а также в целях обеспечения беспрепятственного передвижения пешеходов".

Пункт 5.9.1. Третий абзац. Заменить слова: "за исключением знака 6.4" на "за исключением знаков 3.27 - 3.30 и 6.4".

Пункт 5.9.6. Первый абзац изложить в новой редакции:

"5.9.6 Таблички 8.2.2 - 8.2.6 "Зона действия" применяют с иными дорожными знаками:

- табличку 8.2.2 - для указания зоны действия знаков 3.27 - 3.30;

- табличку 8.2.3 - для указания конца зоны действия дорожных знаков;

- табличку 8.2.4 - для информирования водителей о нахождении их в зоне действия дорожных знаков;

- таблички 8.2.5 и 8.2.6 - для указания зоны действия знака, справа и (или) слева от него, для обозначения парковки совместно со знаком 6.4 или запрещения остановки или стоянки вдоль края проезжей части площади, фасада здания и т.п.".

Пункт 5.9.7 дополнить подпунктом 5.9.7.1:

"5.9.7.1. Таблички 8.3.4 и 8.3.5 "Направление действия" применяют для указания дороги или проезжей части, стороны дороги или проезжей части, на которую распространяется действие знака".

Пункт 5.9.8 изложить в новой редакции:

"5.9.8 Таблички 8.4.1 - 8.4.8 "Вид транспортного средства" применяют для указания вида транспортного средства, на который распространяется действие знака или светофора.

Таблички применяют для распространения действия знака:

- 8.4.1 - на грузовые автомобили, в том числе и с прицепом, с разрешенной максимальной массой более 3,5 т (если на табличке не указана масса) или с разрешенной максимальной массой более указанной на табличке;

- 8.4.2 - на грузовые автомобили или тракторы с прицепом или полуприцепом любого типа, а также на транспортные средства, буксирующие механические транспортные средства;

- 8.4.3.1 - на электромобили и гибридные автомобили, имеющие возможность зарядки от внешнего источника;

- 8.4.3.2 - на легковые автомобили, а также грузовые автомобили с разрешенной максимальной массой не более 3,5 т;

- 8.4.3.3 - на транспортные средства, используемые в качестве легкового такси;

- 8.4.4 - на автобусы;

- 8.4.5 - на тракторы и самоходные машины;

- 8.4.6 - на мотоциклы;

- 8.4.7.1 - на велосипеды и мопеды;

- 8.4.7.2 - на средства индивидуальной мобильности;

- 8.4.8 - на транспортные средства, обозначенные опознавательными знаками (информационными таблицами) "Опасный груз".

Табличка 8.4.7.1 распространяет действие светофора Т.3 на велосипедистов, 8.4.7.2 - на лиц, использующих для передвижения средства индивидуальной мобильности".

Пункт 5.9.10 изложить в новой редакции:

"5.9.10. Таблички 8.5.1 "Субботние, воскресные и праздничные дни", 8.5.2 "Рабочие дни", 8.5.3 "Дни недели", 8.5.4 - 8.5.8 "Время действия" применяют для указания дней недели или времени суток, месяцев, когда действует знак".

Пункт 5.9.22 дополнить подпунктом 5.9.22.1:

"5.9.22.1. Табличку 8.15.1 "Глухие пешеходы" применяют совместно со знаками 1.22, 5.19.1, 5.19.2 перед пешеходными переходами, расположенными в непосредственной близости от объектов, которые посещают глухие и слабослышащие".

Пункт 5.9.23 изложить в новой редакции:

"5.9.23. Таблички 8.16.1 "Влажное покрытие" и 8.16.2 "Влажное, заснеженное (обледенелое) покрытие" применяют совместно со знаками 1.15, 3.20, 3.22, 3.24 для указания, что действие знака распространяется только на период времени, когда покрытие проезжей части влажное, заснеженное (обледенелое)".

Пункт 5.9.25 изложить в новой редакции:

"5.9.25. Табличку 8.18 "Кроме инвалидов" применяют для указания, что действие знака не распространяется на транспортные средства, на которых установлен опознавательный знак "Инвалид".

Подраздел 5.9 дополнить пунктом 5.9.34:

"5.9.34. Табличку 8.27 "Без пропуска" применяют со знаками 3.1 - 3.4, 3.11, 3.12, 3.34 для информирования о возможности дальнейшего движения в зоне действия запрещающего знака при наличии соответствующего пропуска, выданного органом исполнительной власти, осуществляющим функции по оказанию государственных услуг и управлению государственным имуществом в сфере дорожного хозяйства, органами исполнительной власти субъекта Российской Федерации".

Пункт 6.2.1. Первый абзац. Заменить слова: "Горизонтальную разметку наносят на дорожные одежды" на "Горизонтальная разметка должна быть нанесена на всех дорогах с дорожными одеждами";

дополнить абзацем (после первого): "Разметку допускается применять и на других дорогах, когда это необходимо для обеспечения безопасности дорожного движения";

второй абзац изложить в новой редакции:

"Линии разметки 1.1, 1.3, 1.5, 1.6, 1.9, 1.11 наносят материалами и/или изделиями белого цвета. Для разделения транспортных потоков противоположных направлений линии разметки 1.1, 1.3, 1.5, 1.6, 1.9, 1.11 допускается наносить материалами и/или изделиями желтого цвета".

Пункт 6.2.2 изложить в новой редакции:

"6.2.2. Допускается не наносить горизонтальную разметку на дорогах при выполнении всех следующих условий:

- не проходят маршруты общественного транспорта и (или) движения школьных автобусов;

- ширина проезжей части менее 6 м;

- общая интенсивность движения транспорта менее 1000 авт./сут <**>".

Пункт 6.2.3. Первый абзац. Перечисление а) дополнить перечислениями (после первого):

"- на участках дорог, где применение разметок 1.5, 1.6, 1.11 невозможно по 6.2.8.1;

- в местах, где расстояние видимости для обоих направлений движения менее допустимых значений, определяемых по таблице 4 (рисунки В.6а, в, г);";

сноску <***> дополнить словами:

"Способы определения расстояния видимости в разных направлениях указаны на рисунках В.6а - г".

Пункт 6.2.4. Второй абзац изложить в новой редакции:

"При отсутствии вертикальной разметки 2.7 в местах, перечисленных в 6.3.10, и ширине проезжей части 6 м и более должна наноситься разметка 1.2 на участках дорог с бордюрным камнем на расстоянии от него от 0,1 до 0,2 м при возможности сохранения ширины полосы движения согласно требованиям документов по стандартизации Российской Федерации";

четвертый абзац. После слов "тросовых ограждений" дополнить словами: "и барьерных ограждений с отделяющейся балкой без консоли,";

заменить слово: "оси" на "лицевой поверхности".

Пункт 6.2.5. Второй абзац. Заменить слова: "или тремя полосами для движения в обоих направлениях при ширине полос более 3,75 м" на "полосами для движения в обоих направлениях при ширине полос 3,5 м и более, на дорогах с тремя полосами для движения в обоих направлениях,".

Пункт 6.2.6. Первый абзац. Заменить слова: "запрещена остановка" на "необходимо запретить остановку";

второй абзац. Заменить слова: "краевой линии" на "краевой линии разметки 1.2";

последний абзац дополнить словами: ", а в населенных пунктах также знаками 3.27, 5.41".

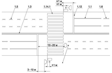
Пункт 6.2.8 дополнить подпунктом 6.2.8.1:

"6.2.8.1. Вне населенных пунктов протяженность участков дороги, обозначенных с применением разметок 1.5, 1.6, 1.11, где выезд на полосу для встречного движения разрешен, не может быть менее 200 м, за исключением дорог в горной местности, где на участке дороги, обозначенном знаком 1.14, допускается нанесение разметки 1.11, разрешающей обгон автомобиля, следующего на подъем, протяженностью не менее 100 м".

Пункт 6.2.9. Первый абзац. Перечисление а). Заменить слова: "в пределах перекрестка" на "в пределах перекрестков и иных пересечений проезжих частей"; заменить слово: "(рисунок В.9)" на "(рисунки В.9, В.10)";

второй абзац. Первое перечисление. Заменить значение: "(2,5 x 6,5 м) <*>" на "(2,25 x 6,5 м) <*>";

дополнить перечислением (после первого):

"- при поперечном размещении автомобилей относительно друг друга не менее 2,5 x 5,0 м для легковых и 3,5 x 8,5 м - для грузовых автомобилей без прицепов;".

Пункт 6.2.12. Первый абзац. Заменить слова: "краевой линии разметки" на "краевой линии разметки 1.2";

последний абзац дополнить словами: ", а в населенных пунктах также знаками 3.28, 5.27".

Пункт 6.2.13. Второй абзац изложить в новой редакции:

"Для разделения потоков транспортных средств противоположных направлений разметку наносят на участках дорог с двумя полосами движения в обоих направлениях с необеспеченной видимостью встречного автомобиля (таблица 4), где зоны с видимостью менее допустимой не перекрывают друг друга (рисунок В.6б), а также на двухполосных дорогах с двусторонним движением в местах, где расстояние видимости с одной стороны менее допустимого значения по таблице 4 (рисунок В.6а - г). Разметка наносится сплошной линией со стороны полосы движения транспортного средства, для которого видимость менее допустимой";

пятый абзац. Первое перечисление. Заменить слова: "(рисунки В.11а, б, В.13а, В.14)" на "(рисунки В.8а, В.11а, б, В.13а, В.14)";

второе перечисление. Заменить значения: "от 40 до 60 м" на "от 40 до 60 м <*>";

третье перечисление. Заменить значения: "от 20 до 40 м" на "от 20 до 40 м <*>";

дополнить сноской <*>:

"

<*> В населенных пунктах на дорогах с разрешенной максимальной скоростью движения не более 60 км/ч при расстоянии между соседними въездами (выездами) на прилегающие территории менее 100 м и интенсивностью на каждом из них, не превышающей 100 авт./ч, допускается уменьшение протяжения линий разметки 1.11 до 20 м (перед примыканием) и 10 м (после примыкания) соответственно, за исключением автомобильных дорог общего пользования федерального значения".

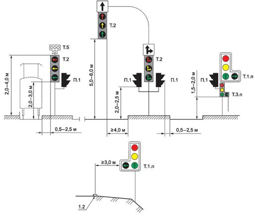
Пункт 6.2.14. Третий абзац. Заменить обозначение: "Т.1" на "Т.1 <*>";

дополнить сноской <*>:

"

<*> Здесь и далее обозначения светофоров по ГОСТ Р 52282-2004".

Пункт 6.2.15 изложить в новой редакции:

"6.2.15. Разметку 1.13 применяют для обозначения места остановки транспортных средств при наличии знака 2.4 "Уступите дорогу" или при въезде на перекресток, на котором организовано круговое движение и который обозначен знаком 4.3 "Круговое движение" по дороге, не являющейся главной, и наносят как можно ближе к границе пересекаемой проезжей части (рисунок В.10).

Разметку 1.13 допускается применять на перекрестках с круговым движением или их частях для обозначения места остановки транспортных средств перед пересечением с дорогой, являющейся главной. В таких случаях разметка 1.13 может применяться самостоятельно".

Пункт 6.2.17. Шестой абзац. Заменить слова: "(рисунок В.19)" на "(рисунок В.21а)".

Пункт 6.2.18. Первый, второй абзацы. После слов "велосипедной дорожки" дополнить словами: "или полосы для велосипедистов".

Пункт 6.2.19. Второй абзац. Заменить слово: "ограничивающая" на "ограничивающей";

дополнить словами: "При пересечении дорог разной категории ширину ограничивающей линии разметки принимают равной ширине линии сопрягающейся с ней разметки на дороге более высокой категории";

третий абзац дополнить словами: "или на концевых участках островка (не менее двух линий)";

четвертый абзац. Заменить обозначение: "1.16.1" на "1.16.1 - 1.16.3".

Пункт 6.2.21. Первый абзац. Исключить слова: "на перекрестке";

второй абзац изложить в новой редакции:

"Последовательно наносят две (три) или более стрел с расстоянием между ними от 20 до 30 м. Основание последней по ходу движения стрелы должно быть на уровне начала разметки 1.1, разделяющей потоки транспортных средств попутного направления, а при ее отсутствии - от ближайшей границы пересекаемой проезжей части не менее чем за:

- 20 м - на дорогах с разрешенной максимальной скоростью движения не более 60 км/ч;

- 40 м - на дорогах с разрешенной максимальной скоростью движения более 60 км/ч".

Пункт 6.2.22. Первый абзац. Второе перечисление изложить в новой редакции:

"- к разметке 1.1 или 1.11, разделяющей потоки транспортных средств противоположных направлений в сочетании с разметкой 1.6 (рисунки В.6а, б, В.18). В населенных пунктах разметку 1.19 допускается не применять";

четвертый абзац. Заменить слова: "наносят" на "допускается наносить"; "Последовательно" на "В этом случае последовательно".

Пункт 6.2.23. Первый абзац дополнить словами: "При необходимости допускается наносить разметку 1.20 и на других дорогах".

Пункт 6.2.24. Первый абзац дополнить словами: "При необходимости допускается наносить разметку 1.21 и на других дорогах".

Пункт 6.2.26. Второй абзац. Исключить слова: "При совместном применении разметки 1.23.1 с разметкой 1.23.3 на полосах, обозначенных знаком 5.14.1, вторые разметки 1.23.1 и 1.23.3 через 20 м не наносят (рисунок В.11а, б)".

Пункт 6.2.28. Последний абзац исключить.

Пункт 6.2.29. Первый абзац. Второе перечисление. Заменить слова: "(рисунок В.21)" на "(рисунок В.21а)".

Пункт 6.2.30 после слов "знак "Инвалид" дополнить словами: "(рисунок В.13а)".

Пункт 6.2.32. Второй абзац после слов "применять самостоятельно" дополнить словами: "(рисунок В.13а)".

Пункт 6.2.32 дополнить подпунктами 6.2.32.1 и 6.2.32.2:

"6.2.32.1. Разметку 1.24.6 допускается применять для дублирования знака 5.39.

Разметку 1.24.6 наносят в одном поперечном сечении со знаком 5.39.

6.2.32.2. Разметку 1.24.7 допускается применять для дублирования знака 8.9.3".

Пункт 6.2.33. Второй абзац. Заменить слова: "(рисунок В.21)" на "(рисунок В.21а, б)".

Пункт 6.2.35. Таблица 10. Графа "Разделение потоков противоположных направлений". Разметка 1.1. Для 3 полос движения заменить значение: "0,15" на "0,10";

разметка 1.3. Для 2 и 3 полос движения заменить значение: "-" на "0,10";

разметка 1.5, 1.6. Для 3 полос движения заменить значение: "0,15" на "-";

примечание. После слов "населенных пунктах" дополнить словами: "и на переходно-скоростных полосах вне населенных пунктов".

Пункт 6.3.2. Первый абзац изложить в новой редакции:

"6.3.2. Разметку 2.1.1 - 2.1.3 применяют для обозначения вертикальных элементов мостовых сооружений, опор освещения, деревьев, фронтальных ограждений и терминалов по ГОСТ 33127, тумб закрытого типа (демпфирующих) по ГОСТ 32759 или дорожных буферов и подобных препятствий, расположенных в пределах разделительной полосы или обочины и на расстоянии менее 1 м от нее, при отсутствии обочины - менее 1 м от края проезжей части, а также в других случаях, когда эти препятствия представляют опасность для движущихся транспортных средств".

Пункт 7.2.2. Первый абзац изложить в новой редакции:

"7.2.2. Светофорное регулирование с применением вызывной фазы для движения пешеходов вводят, если:

- наземный пешеходный переход расположен на дорогах с двухсторонним движением с двумя и более полосами для каждого направления, на дороге с односторонним движением - с числом полос три и более;

- невозможно обеспечить видимость пешеходов на пешеходном переходе по СП 396.1325800.2018 (пункт 7.3.6)".

Пункт 7.2.3 после слов "пересечения дороги с велосипедной дорожкой" дополнить словами: ", в том числе с применением вызывной фазы,".

Пункт 7.2.6. Первый абзац. Первое перечисление дополнить словами:

"или суммарная интенсивность транспортных средств, поворачивающих в одно направление, не более 600 ед./ч, а интенсивность движения пешеходов не более 150 пеш./ч;".

Пункт 7.3.1. Первый абзац изложить в новой редакции:

"7.3.1. Светофоры Т.1 и Т.1.г любых вариантов конструкции применяют на перекрестках или пересечениях проезжих частей в случае одновременного пропуска транспортных средств во всех разрешенных направлениях с данного подхода к перекрестку или пересечению проезжих частей и на регулируемых пешеходных переходах, расположенных между перекрестками".

Пункт 7.3.3. Первый абзац изложить в новой редакции:

"7.3.3. Светофоры Т.2 любых вариантов конструкции применяют для регулирования движения транспортных средств в определенных направлениях на перегонах и перекрестках";

второй абзац. Заменить слова: "При этих условиях" на "В этих случаях".

Пункт 7.3.6. Второй абзац исключить.

Пункт 7.3.8. Второе и четвертое перечисления исключить.

Пункт 7.4.3 дополнить абзацем:

"Вне населенных пунктов светофоры Т.8, применяемые по 7.3.9, допускается дублировать слева от проезжей части перед участками ее сужения при организации реверсивного движения по одной полосе".

Пункт 7.4.4. Заменить слова: "с тремя или более" на "с двумя или более".

Пункт 7.4.6. Первый абзац. Второе и третье перечисления. Заменить ссылку: "СП 42.1330" на "СП 42.13330".

Пункт 7.4.10. Первый абзац. Заменить значение: "2,0" на "2,5".

Подраздел 7.5 дополнить пунктом 7.5.8:

"7.5.8. Режим работы светофоров, предусматривающий регулируемое дополнительной секцией движение поворачивающих налево либо разворачивающихся транспортных средств и одновременное движение в прямом встречном направлении, запрещается".

Пункт 8.1.6. Второй абзац. Второе перечисление изложить в новой редакции:

"- на которых массивные препятствия расположены на разделительной полосе или на улицах и дорогах без бордюрного камня сбоку от проезжей части на расстоянии 4 м и менее от ее кромки <*>";

третье перечисление после слов "не менее 5 м" дополнить словами: "или оврагов глубиной более 5 м";

дополнить сноской <*>:

"

<*> Для защиты опор освещения и колонок светофоров допускается использовать бордюрный камень по ГОСТ 32961 или ГОСТ 32018".

Пункт 8.1.18. Первый абзац. После ссылки "по ГОСТ Р 58351" дополнить словами: "или терминал по ГОСТ 33128".

Пункт 8.1.29. Первый абзац. Перечисление б). Перечисление 2) перед словом "нерегулируемых" дополнить словом: "от";

перечисление 2). Третье перечисление исключить;

второй абзац изложить в новой редакции:

"Протяженность ограничивающих пешеходных ограждений допускается уменьшать, если в пределах 50 м находятся начало остановочной площадки, остановки маршрутных транспортных средств, парковка, въезды (выезды) на прилегающие территории и т.п.";

дополнить абзацем (после второго):

"При отсутствии возможности установки непрерывного ограждения на протяжении 30 м от указанных в перечислении б) пешеходных переходов ограждение не устанавливается";

дополнить абзацем (после последнего):

"При необходимости допускается применение комбинированных конструкций ограждений, состоящих из сетчатых ограничивающих пешеходных ограждений и удерживающих боковых ограждений для автомобилей любого типа на разделительной полосе в местах возможного появления пешеходов на проезжей части многополосных дорог и улиц".

Пункт 8.1.30. Второй абзац. Первое перечисление. Исключить слова: "между основной проезжей частью и местным проездом".

Пункт 8.1.32. Первый абзац после слов "обозначенных знаками 1.26, 1.27" дополнить словами: ", а также экодуков".

Пункт 8.2.2. Первый абзац. Исключить слова: ", при этом столбики группы П устанавливают на разделительной полосе, выделенной только разметкой 1.2".

Подраздел 8.2 дополнить пунктом 8.2.6:

"8.2.6. Дорожные пластины должны соответствовать требованиям и быть размещены в местах по ГОСТ Р 58350".

Приложение Б. Подраздел Б.5.

Знаки 5.33 "Пешеходная зона", 5.34 "Конец пешеходной зоны". Заменить изображения на:

"

5.33 5.34
Пешеходная зона Конец пешеходной зоны

";

дополнить знаками 5.15.9 "Начало полос", 5.41 "Зона с ограничением остановки", 5.42 "Конец зоны с ограничением остановки":

"

5.15.9
Начало полос

";

"

5.41 5.42
Зона с ограничением остановки Конец зоны с ограничением остановки

".

Подраздел Б.6 дополнить знаком 6.2.1 "Рекомендуемая скорость при проезде искусственной неровности":

"
6.2.1
Рекомендуемая скорость при проезде искусственной неровности";

знак 6.4 "Парковка (парковочное место)" дополнить изображением:

"
6.4
Парковка (парковочное место)";

Знак 6.10.1 <*> "Указатель направлений". Заменить изображение (1-й знак) на:

"
6.10.1 <*>
Указатель направлений";

знак 6.12 <*> "Указатель расстояний". Заменить изображение (2-й знак) на:

"
6.12 <*>
Указатель расстояний";

дополнить знаком 6.16.1 "Стоп-линия":

"
6.16.1
Стоп-линия".

Подраздел Б.8. Знаки 8.1.3 и 8.1.4 заменить на:

"

8.1.3 8.1.4

";

знак 8.16 "Влажное покрытие". Заменить номер: "8.16" на "8.16.1";

дополнить знаками 8.3.4 и 8.3.5 "Направление действия", 8.4.3.3 "Вид транспортного средства", 8.5.8 "Время действия", 8.15.1 "Глухие пешеходы", 8.16.2 "Влажное, заснеженное (обледенелое) покрытие" и 8.27 "Без пропуска":

"

8.3.4 8.3.5
Направление действия

";

" "
8.4.3.3 8.5.8
Вид транспортного средства"; Время действия";
" "
8.15.1 8.16.2
Глухие пешеходы"; Влажное, заснеженное (обледенелое) покрытие";
"
8.27
Без пропуска".

Приложение В. Рисунок В.6 дополнить рисунками в, г:

"

в

<*> Допускается вместо нанесения разметки 1.11 продлевать разметку 1.1.

в - видимость автомобиля C и C' на кривой в плане, ограниченная попутным автомобилем

A, - зоны видимости менее допустимых; M, - минимальные расстояния видимости, обеспечивающие безопасность движения при разрешенной максимальной скорости транспортных средств, установленной на данном участке дороги по таблице 4; C, C' - автомобиль, движущийся по внешней полосе на кривой в плане в начале и конце зоны ограниченной видимости; , - автомобиль, движущийся по внутренней полосе на кривой в плане в начале и конце зоны ограниченной видимости; , - автомобиль, движущийся впереди автомобиля , на расстоянии 10 м; B, B' - место расположения глаз водителя

г

<*> Допускается вместо нанесения разметки 1.11 продлевать разметку 1.1.

Примечание - Условия видимости автомобиля C на кривой в плане определяют путем проведения отрезка M, M' от места расположения глаз водителя B, B' в автомобиле , через край обочины (либо край проезжей части, при отсутствии обочины) E, E' до середины полосы движения (предназначенной для встречного движения). Для водителя автомобиля C условия видимости определяются аналогично.

г - видимость автомобиля C, ограниченная дорожными условиями на кривой в плане

M, M' - минимальные расстояния видимости встречного автомобиля для разрешенной максимальной скорости, установленной на данном участке дороги по таблице 4; D - точка начала обеспечения видимости автомобиля C из автомобиля C1; D' - точка начала ограничения видимости автомобиля C из автомобиля ".

Рисунок В.7 заменить на:

"

".

Рисунок В.8а заменить на:

"

а".

Рисунок В.11 заменить на:

"

а

б".

Рисунок В.13 заменить на:

"

а

б".

Рисунок В.18 заменить на:

"

".

Рисунок В.19 заменить на:

"

".

Рисунок В.20 заменить на:

"

".

Рисунок В.21 заменить на:

"

а

б

Рисунок В.21 - Примеры нанесения разметки 1.25".

Рисунок В.25 заменить на:

"

".

Рисунок В.26 заменить на:

"

".

Рисунок В.28а заменить на:

"


а".

Рисунок В.29а заменить на:

"


а".

Приложение В дополнить рисунком В.31:

"

В.31 - Пример зачехления надписей способом перечеркивания".

Приложение Г. Подраздел Г.1 дополнить изображениями разметок 1.24.6 и 1.24.7:

"

1.24.6 1.24.7

".

Подраздел Г.2. Разметки 2.1.1, 2.1.2 и 2.1.3 изложить в новой редакции:

"

2.1.1 2.1.2 2.1.3 2.1.1 2.1.2 2.1.3

".

Приложение Е дополнить изображением "ИС. лп":

"

Ис.лп".

Элемент стандарта "Библиография".

Позиция [3]. Заменить слова: "от 31 июля 2015 г. N 237" на "от 5 октября 2022 г. N 402".