Бассейны для плавания. Свод правил по проектированию и строительству. СП 31-113-2004

(утв. письмом Госстроя РФ от 30.04.2004 N ЛБ-322/9, приказом Росспорта от 26.02.2005 N 24)
Редакция от 26.02.2005 — Действует

СИСТЕМА НОРМАТИВНЫХ ДОКУМЕНТОВ В СТРОИТЕЛЬСТВЕ

СВОД ПРАВИЛ ПО ПРОЕКТИРОВАНИЮ И СТРОИТЕЛЬСТВУ

БАССЕЙНЫ ДЛЯ ПЛАВАНИЯ

Swimming pools

СП 31-113-2004

Предисловие

1 РАЗРАБОТАН Санкт-Петербургской государственной академией физической культуры им. П.Ф. Лесгафта (СПб. ГАФК) Росспорта и ФГУП "Научно-проектный институт учебно-воспитательных, торгово-бытовых и досуговых зданий" (Институт общественных зданий) в рамках выполнения п. 17 мероприятий подпрограммы "Физическое воспитание и оздоровление детей, подростков и молодежи в Российской Федерации (2002-2005 годы)" федеральной целевой программы "Молодежь России (2001-2005 годы)"

2 ВНЕСЕН Санкт-Петербургской государственной академией физической культуры им. П.Ф. Лесгафта

3 ПРЕДСТАВЛЕН Управлением архитектуры и Управлением стандартизации, технического нормирования и сертификации Госстроя России

4 УТВЕРЖДЕН приказами ректора Санкт-Петербургской государственной академии физической культуры им. П.Ф. Лесгафта от 9 февраля 2005 г. N 25 и директора ФГУП "Институт общественных зданий" от 23 апреля 2004 г. N 11

5 ОДОБРЕН И РЕКОМЕНДОВАН к применению в качестве нормативного документа в строительстве письмом Госстроя России 30 апреля 2004 г. N ЛБ-322/9 и Федеральным агентством по физической культуре, спорту и туризму приказом N 24 от 26 февраля 2005 г.

6 ВВЕДЕН ВПЕРВЫЕ

Введение

Развитие системы физкультурно-оздоровительных сооружений в нашей стране приобретает все большее значение. При этом возникает необходимость обеспечить доступность оздоровительных и спортивных занятий для всех возрастных групп населения, как здоровых людей, так и инвалидов.

Нормативный документ разработан в соответствии с Государственным контрактом с Росспортом N 209 от 10 декабря 2002 г. в рамках подпрограммы "Физическое воспитание и оздоровление детей, подростков и молодежи в Российской Федерации (2002-2005 годы)", п. 17 "Разработка архитектурно-планировочных стандартов для их применения при строительстве физкультурно-оздоровительных и спортивных сооружений с учетом обеспечения возможности их пользования детьми-инвалидами".

Свод правил выполнен в развитие СНиП 2.08.02-89* "Общественные здания и сооружения" и является документом федерального уровня. В нем рассматриваются функциональные и технологические требования к проектированию ванн бассейнов для спортивных и досугово-развлекательных занятий, доступных для спортивных и оздоровительных занятий. Документ разработан с учетом требований к ваннам и помещениям бассейнов, отраженных в правилах соревнований, на основе опыта проектирования и практики эксплуатации бассейнов различного назначения.

При разработке настоящего Свода правил учтены следующие условия организации пространственной среды в зданиях и помещениях:

габариты человека и групп людей в различных положениях с учетом особенностей различных возрастных групп здоровых людей и инвалидов;

функциональные и технологические (спортивные) процессы, связанные с индивидуальными физиологическими и социальными функциями человека, а также с работой тренажеров, оборудования и использованием инвентаря;

требования акустики, звукоизоляции залов;

нормы естественной и искусственной освещенности помещений, кратности обмена воздуха и т.п.;

качества и кратности обмена воды в ваннах бассейна;

рекомендации и перечни (каталоги) по типам и габаритам спортивного оборудования и инвентаря, санитарно-технического и электротехнического оборудования.

В тексте и графической части Свода правил частично использованы следующие материалы:

Проектирование бассейнов (Справочное пособие к СНиП 2.08.02-89). - М.: Стройиздат, 1991.

Нормали планировочных элементов жилых и общественных зданий:

Выпуск НП 5.3.2-76 Вспомогательные помещения спортивных сооружений. - М.: Стройиздат, 1976.

Рекомендации по проектированию окружающей среды, зданий и сооружений с учетом потребностей инвалидов и других маломобильных групп населения:

Выпуск 12. Общественные здания и сооружения. Спортивные сооружения. - М.: ГУП ЦПП, 1999.

Физкультурно-спортивные сооружения/Под ред. Л.В. Аристовой. - М: Спорт Академ Пресс, 1999.

Аристова Л.В. Физкультурно-спортивные сооружения для инвалидов: Учебное пособие. - М.: Советский спорт, 2002.

Ясный Г.В. Спортивные бассейны. - М.: Стройиздат, 1988.

Свод правил "Бассейны для плавания" разработан научно-творческим коллективом под руководством Л. В. Аристовой, профессора СПб. ГАФК им. П.Ф. Лесгафта.

Авторы СП 31-113: ответственные исполнители - канд. экон. наук Л.В. Аристова, канд. архит. AM. Гарнец (Институт общественных зданий), архит. Ю.Г. Жура (ВНИИФК) при участии канд. архит. Б.П. Анисимова (Институт общественных зданий), инж. Б.А. Арутюнова (Российская ассоциация спортивных сооружений).

Научный редактор - канд. архит. A.M. Гарнец.

Компьютерная графика - архит. К.В. Карпач (ЦНИИЭП жилища), канд. техн. наук В.Ф. Кротюк (Институт общественных зданий).

1. Область применения

1.1 Настоящий СП предназначен для технологического проектирования ванн бассейнов различного назначения: для спортивных занятий и тренировок по плаванию, прыжкам в воду, водному полу, синхронному плаванию и другим видам спорта, для физкультурно-оздоровительных занятий населения, для обучения плаванию детей и взрослых, а также для физкультурно-оздоровительных и реабилитационно-восстановительных занятий инвалидов (включая детей-инвалидов).

1.2 Положения настоящего документа распространяются на проектирование вновь строящихся и реконструируемых зданий и помещений, предназначенных для водных видов спорта и оздоровительных занятий.

1.3 Габариты и разметка игровых площадок и мест проведения соревнований (занятий), параметры зон безопасности (в том числе над игровым полем), установленные правилами проведения соответствующих видов соревнований, следует принимать как обязательные технологические требования.

Параметры физкультурно-спортивных залов с сопутствующими группами необходимых помещений, приведенные в настоящем Своде правил, являются функционально-технологической основой составления программы проектирования спортивных зданий и комплексов, которые следует проектировать по соответствующим строительным нормативным документам.

1.4 Положения документа используются также при определении единовременной наполняемости залов и проектировании вспомогательных помещений: для переодевания, хранения одежды и личной гигиены занимающихся; инвентарные при залах и т.п., дающих возможность полноценного функционирования физкультурно-спортивных залов.

1.5 Настоящий СП не включает: специальные залы для занятий инвалидов, в том числе детей; физкультурные залы образовательных учреждений (детских дошкольных учреждений и общеобразовательных учреждений); специализированные залы для занятий детских спортивных секций; а также зоны залов, где размещаются места для зрителей.

1.6 Положения Свода правил распространяются на проектирование залов со специально предусмотренными для размещения в них различными ваннами бассейнов, которые могут размещаться как в отдельно стоящих зданиях и в спортивных комплексах, так и при встраивании их в другие сооружения.

1.7 Свод правил содержит рекомендательные положения, нормы и правила. Положения данного документа становятся обязательными для всех участников проектно-строительного процесса при включении их в утверждаемое задание на проектирование.

2. Нормативные ссылки

В тексте Свода правил даны ссылки на следующие действующие нормативные документы:

СНиП 23-03-2003 Защита от шума

СНиП 23-05-95* Естественное и искусственное освещение

СНиП 35-01-2001 Доступность зданий и сооружений для маломобильных групп населения

СНиП 41.01-2003 Отопление, вентиляция и кондиционирование

СНиП 2.03.11-85 Защита строительных конструкций от коррозии

СНиП 2.04.01-85* Внутренний водопровод и канализация зданий

СНиП 2.04.02-84* Водоснабжение. Наружные сети и сооружения

СНиП 2.08.02-89* Общественные здания и сооружения (с изменениями N 1-5)

СНиП II-25-80 Деревянные конструкции

СП 35-101-2001 Проектирование зданий и сооружений с учетом доступности для маломобильных групп населения. Общие положения

СП 35-103-2001 Общественные здания и сооружения, доступные маломобильным посетителям

СанПиН 2.1.2.1188-03 Плавательные бассейны. Гигиенические требования к устройству, эксплуатации и качеству воды. Контроль качества

СанПиН 2.1.2.1331-03 Гигиенические требования к устройству, эксплуатации и качеству воды аквапарков

СанПиН 2.1.4.1074-01 Питьевая вода. Гигиенические требования к качеству воды централизованных систем питьевого водоснабжения. Контроль качества

СанПиН 2.1.5.980-00 Гигиенические требования к охране поверхностных вод

СП 2.1.5.1059-01 Гигиенические требования к охране подземных вод от загрязнения

СП 4723-88 Санитарные правила устройства и эксплуатации систем централизованного горячего водоснабжения

ГОСТ 464-79 Заземления для стационарных установок проводной связи, радиорелейных станций, радиотрансляционных узлов проводного вещания и антенн, систем коллективного приема телевидения. Нормы сопротивления

ПУЭ Правила устройства электроустановок

НПБ 88-2001* Установки пожаротушения и сигнализации. Нормы и правила проектирования

НПБ 104-03 Системы оповещения и управления эвакуацией людей при пожарах в зданиях и сооружениях

3. Общие положения

3.1 По своему назначению бассейны подразделяются на следующие виды:

плескательные - для приобщения к воде детей дошкольного возраста;

детские - для обучения плаванию детей младшего и среднего возраста;

учебные - для обучения плаванию детей старшего возраста и взрослых, для занятий детей младшего и среднего возраста при переходе из детской в основную ванну, а также для оздоровительного плавания людей старшего возраста;

бассейны для плавания, предназначенные для тренировок спортсменов и занятий обучающихся;

бассейны для прыжков в воду;

универсальные учебно-тренировочные бассейны, оборудованные для плавания, водного поло, прыжков в воду и предназначенные для обучения плаванию, оздоровительных занятий, тренировок, а также для проведения соревнований местного значения без зрителей или в присутствии ограниченного числа зрителей (до 600 мест в крытых и до 1200 мест в открытых сооружениях);

универсальные демонстрационные бассейны, рассчитанные на проведение крупных соревнований с числом мест более 600 в крытых и 1200 мест в открытых бассейнах.

3.2 Функционально сооружение бассейна объединяет одну или несколько ванн, помещения и устройства для обслуживания занимающихся, зрителей (преимущественно в универсальных и демонстрационных бассейнах), а также помещения с устройствами, обеспечивающими его техническую эксплуатацию.

Внутренняя планировка основных помещений бассейна должна соответствовать гигиеническому принципу поточности: продвижение посетителей осуществляется по функциональной схеме - гардероб, раздевальня, душевая, ножная ванна, ванна бассейна. Рекомендуется устраивать в раздевальной проходные кабины для переодевания с двумя входами (выходами), также должно быть предусмотрено, чтобы посетитель не мог пройти к ванне, минуя душевую.

Функциональная схема комплексного бассейна приведена на рисунке 3.1 <*>.

<*> Рисунки, на которые даны ссылки в тексте, приведены в приложении В.

3.3 Положения Свода правил определяют необходимые параметры, организацию функциональных зон и оборудование помещений бассейнов в зданиях для физкультурно-оздоровительных и реабилитационных занятий с учетом обеспечения требований необходимой доступности для людей с ограниченными возможностями различных возрастов.

Проектируемые помещения, здания и сооружения бассейнов могут быть приспособлены в соответствии с требованиями СНиП 35-01, СП 35-101 и СП 35-103 для пользования также людьми с ограниченными физическими возможностями различных возрастов (инвалидами) при соответствующей записи в задании на проектирование.

3.4 Выбор земельного участка для размещения бассейна должен быть согласован с органами Госсанэпиднадзора России.

3.5 Проектируемые бассейны для плавания должны соответствовать нормам, стандартам и требованиям пожарной безопасности зданий и сооружений, утвержденным в установленном порядке.

3.6 При устройстве открытых бассейнов площади отведенного участка озеленяют не менее чем на 35 % кустарником или низкорослыми деревьями. По периметру участка предусматривают ветро- и пылезащитные полосы древесных и кустарниковых насаждений и не менее 20 м - со стороны магистральных дорог с интенсивным движением.

Удаление ванн открытого бассейна от красной линии должно быть не менее 15 м; от территории больниц, детских школьных и дошкольных учреждений, а также жилых домов и автостоянок - не менее 100 м.

3.7 Аквапарки (бассейны или комплекс бассейнов, имеющий в своем составе водные аттракционы: горки, искусственные волны, течения, водопады, фонтаны, гидро- и аэромассажные устройства и т.п., зоны отдыха и другие функциональные объекты) должны размещаться на обособленной территории в жилой, парковой или рекреационной зоне.

3.8 Размещение автостоянок при аквапарке для посетителей регламентируется требованиями санитарных правил по санитарно-защитным зонам и санитарной классификацией предприятий, сооружений и иных объектов.

3.9 Ванны для оздоровительного плавания, купания, общеразвивающих упражнений и игр в воде, а также для обучения не умеющих плавать, со вспомогательными помещениями для их обслуживания, могут проектироваться в отдельно стоящих зданиях, входить в состав зданий спортивных бассейнов, а также быть пристроенными или встроенными в общественные здания в соответствии с действующими строительными нормами и правилами.

4. Параметры и оборудование ванн бассейнов

4.1 Ванны спортивные

Ванны для плавания

4.1.1 Для спортивного плавания, а также для попеременного использования по различным видам спорта следует применять специализированные и универсальные ванны следующих размеров и пропускной способности, указанных в таблице 4.1.

Схемы продольных профилей ванн (для спортивного плавания и универсальных) показаны на рисунке 4.1.

Таблица 4.1

Назначение ванны Размер ванны, м Глубина воды в глубокой части ванны, м Пропускная способность ванны, чел. в смену
длина <*> ширина
Спортивное плавание 50 25 <**> Исходя из уклона дна, принимаемого не менее 0,01, но не более 0,045, для олимпийских игр и чемпионатов мира глубина 2,0 м (минимум) 120
50 21 96
25 16 48
25 11 32
25 8,5 24
Водное поло 33,33 21 >= 1,8 25 (80 для других целей)
Прыжки в воду 22,4 10,6 3,8-4,5 12
15 12,5    

<*> Отклонение в длине ванн (в том числе универсальных) допускается только в сторону увеличения в пределах до 0,03 м в ванных длиной 50 м, 0,02 м - в ванных длиной 33,33 м, 0,015 м - в ванных длиной 25 м.

<**> Принимается в демонстрационных бассейнах или при достаточных обоснованиях для удовлетворения потребности в массовом оздоровительном плавании.

4.1.2 Высоту залов ванн для спортивного плавания (от поверхности обходной дорожки до низа выступающих конструкций) без устройств для прыжков и мест для зрителей принимают при длине ванны 50 и 33,33 м не менее 6 м; при длине ванны 25 м - 5,4 м.

4.1.3 Ширина дорожки для спортивного плавания принимается равной 2,5 м. За крайними дорожками до стенок ванны предусматриваются свободные полосы воды шириной по 0,5 м, или по 2,5 м в случаях проведения олимпийских игр или чемпионатов мира.

Для проведения олимпийских игр предусматривается 8 дорожек, а также ванны длиной 50 м, а для проведения чемпионатов мира по плаванию - длиной 25 м. Ванны обеспечиваются сенсорными панелями автоматически действующего оборудования на стартовой торцевой стенке и на поворотном торце. Расстояние между осями соседних дорожек должно быть не менее 2,5 м. Если ванны для спортивного плавания и для прыжков находятся в одном помещении, то минимальное расстояние между ними должно быть 5,0 м.

4.1.4 В основу расчета пропускной способности бассейна положена пропускная способность одной дорожки. Поэтому для дорожек длиной 25 м она принимается 8 человек, а для 50-метровых 12 человек. При организации занятий поперек ванны или на дорожках уменьшенной ширины для ванны 50 x 25 м расчет следует вести на 20 поперечных дорожек с общей пропускной способностью 160 человек, а для ванны 50 x 21 м - на 10 продольных дорожек шириною по 2 м, т.е. на 120 пловцов.

Ванна 25 x 16 м может быть разделена на восемь дорожек шириною по 2 м с общей пропускной способностью 64 человека; в ванне 25 x 11 м может быть 6 дорожек по 1,8 м (пропускная способность 48 человек), а ванна 25 x 8,5 м может принять на 5 дорожках 40 пловцов.

Пропускная способность учебных детских ванн, не разделяемых на дорожки, исчисляется исходя из методики занятий, предусматривающей группу в 20 человек.

Пропускная способность при игре в водное поло на "полномерной" площадке 30 x 20 м - 25, а в 25-метровых ваннах - 15 человек.

На каждой платформе вышки и на каждом трамплине могут одновременно заниматься 6 прыгунов, но пропускная способность полного комплекта прыжковых устройств (вышки с платформами 10; 7,5; 5; 3 м, по два трамплина высотою 3 и 1 м) с учетом разновременности прыжков принимается в 30 человек.

4.1.5 Указатели поворота должны быть установлены на закрепленных стойках, расположенных в 5 м от каждой торцевой стенки. Поперек бассейна на высоте от 1,8 до 2,5 м от поверхности воды подвешиваются веревки с флажками. На расстоянии 15 м от каждой торцевой стенки делаются четкие отметки на обеих боковых стенках бассейна и, по возможности, на каждом разделителе дорожек (рисунок 4.2).

4.1.6 Веревка фальстарта должна быть подвешена поперек бассейна на высоте не менее 1,2 м над уровнем воды на стойках, закрепленных в 15 м от старта. Веревка должна прикрепляться к стойкам с помощью механизма быстрого высвобождения. При сбрасывании веревка должна перекрывать все дорожки.

4.1.7 Разметка осей дорожек должна быть темного контрастного цвета и наноситься на дно бассейна по центру каждой дорожки: ширина 0,2-0,3 м, длина 46,0 м при 50-метровых бассейнах; 21,0 м в 25-метровых бассейнах.

Каждая линия разметки должна оканчиваться за 2 м до торцевой стенки четкой поперечной линией длиной 1 м и той же шириной, что и продольная линия. На торцевые стенки также наносятся линии разметки осей, мишени той же ширины, что и вдоль дорожек. Они должны идти от бордюра до дна бассейна. Поперечная линия длиной 0,5 м наносится на глубине 0,3 м от поверхности воды, считая от центра поперечной линии.

4.1.8 Когда в качестве торцевой стенки используется плавучая переборка, она должна простираться на всю ширину ванны и представлять собой твердую, гладкую, нескользкую, устойчивую вертикальную поверхность. Сенсорные панели могут устанавливаться на нее не глубже чем 0,8 м ниже уровня воды и не выше 0,3 м над уровнем воды. Ни выше, ни ниже уровня воды не должно быть никаких непредвиденных отверстий, в которые могли бы попасть руки, ноги или пальцы рук и ног пловца. Конструкция переборки должна обеспечивать возможность ее свободного передвижения, не приводящего к каким-либо течениям или турбуленции воды.

Оборудование ванн для плавания

4.1.9 Переливные желоба (пенные корытца) служат для поддержания постоянного уровня воды, удаления загрязненного верхнего слоя, а также для гашения волн, возникающих при плавании. Схемы профилей продольных стенок ванн приведены на рисунке 4.3.

Существуют два типа переливных желобов: с бортом в плоскости воды и обходной дорожки и с бортами, поднимающимися над водой. В первом типе вода, переливаясь через валик - поручень высотой 5-6 см, попадает на обходную дорожку, где сбрасывается в решетчатый трап, установленный на расстоянии 30-35 см от края ванны. Во втором варианте сток воды обеспечивается в продольный профиль дна желоба, имеющего уклон 0,01-0,2 к трапам, которые устанавливаются через каждые 3-5 м.

Желоба первого типа делаются по всему периметру ванны, при этом по торцам устанавливают стационарные или съемные экраны для отталкивания при поворотах и регистрации финиша. Первый тип лучше гасит волны, более прост и экономичен, так как уменьшает высоту стенок ванны на 30-35 см и, совмещая конструкции борта и обходной дорожки, позволяет сократить общий пролет зала на толщину бортов (примерно на 1 м), что весьма существенно в небольших массовых бассейнах.

Переливные желоба второго типа гигиеничнее, так как загрязненная вода не попадает на обходную дорожку. Однако они исключают возможность установки крючьев для поплавков и стандартного поручня и устанавливаются поэтому только по продольным бортам ванны.

4.1.10 В крытых ваннах длиною 50 и 25 м, предназначенных в основном для спортивного плавания, продольные стенки ванны рекомендуется проектировать по варианту "а" рисунка 4.3. В открытых ваннах круглогодичного действия профиль стенок ванн по варианту "а", как правило, не принимается.

Решетка переливного желоба при вариантах "а" и "б" устраивается заподлицо с поверхностью обходной дорожки.

Верхняя плоскость стенки при варианте "г" и проступи ступеней для выхода из воды при варианте "б" выполняются нескользкими.

Кромка борта стенки при варианте "а", кромка переливного желоба при вариантах "г" и "д", а также ребра ступеней для выхода из воды при варианте "б" выполняются закругленными.

В ваннах для обучения не умеющих плавать стенку рекомендуется проектировать по варианту "д", но можно применять и вариант "г", в этом случае толщину стенки поверху допускается уменьшать с 0,5 до 0,25 м.

4.1.11 По обеим продольным стенкам ванн для спортивного плавания, а также универсальных ванн следует предусматривать уступ для отдыха 0,1-0,15 м. Уступ для отдыха устраивается в местах, где глубина воды более 1,2 м.

В специализированных ваннах для прыжков в воду вдоль стенки, по которой расположены прыжковые устройства, устраиваются пологие ступени для выхода из воды, а уступ для отдыха под ними не предусматривается (рисунок 4.3, б).

4.1.12 В ваннах для спортивного плавания по одной или обеим торцевым стенкам (при глубине воды у стенки не менее 1,8 м) следует предусматривать стартовые тумбочки высотой 0,50-0,75 м над уровнем воды.

Каждая стартовая тумбочка нумеруется с четырех сторон арабскими цифрами, которые должны быть хорошо видны. Дорожка N 1 располагается с правой стороны, если стоять на старте лицом к ванне бассейна, за исключением 50-метровых заплывов, в которых могут стартовать с противоположного конца. Сенсорные панели могут нумероваться сверху.

Стартовые тумбочки располагаются по оси каждой дорожки для спортивного плавания. Бетонные тумбочки облицовываются глазурованными плитками. В демонстрационных бассейнах применяются инвентарные цельнометаллические тумбочки с электронным устройством для фиксации старта и времени прохождения дистанции. Схемы стартовых тумбочек с поручнями и торцевых стенок ванн приведены на рисунке 4.4.

В ваннах для учебно-тренировочных занятий вместо стартовых тумбочек допускается по всей длине торцевой стенки предусматривать стартовый мостик. Рабочая поверхность тумбочки (мостика) выполняется нескользкой. У тумбочек высотою 0,55 м и более от поверхности обходной дорожки предусматривается ступенька.

Для старта в плавании на спине под тумбочкой в плоскости стенки ванны устанавливаются металлические ручки - поручни. Поручни бывают горизонтальными, вертикальными, комбинированными и устанавливаются на 0,4-0,6 м над водой. Диаметр сечения поручней для старта в плавании на спине - 0,03- 0,04 м.

В случаях когда продольные стенки выполняются по варианту "а", профиль торцевой стенки предусматривается по варианту I (см. рисунок 4.4). В случаях когда продольные стенки выполняются по варианту "г" (см. рисунок 4.3), торцевая стенка предусматривается по варианту II или III (см. рисунок 4.4). Уступ для отдыха по торцевым стенкам ванн не предусматривается. Торцевые стенки ванн для спортивного плавания в надводной части на высоту не менее 0,3 м и в подводной части на глубину не менее 0,8 м выполняются нескользкими.

Прочный и жесткий экран (стационарный или съемный), предусматриваемый при варианте I, устанавливается по всей длине стенки, заподлицо с нею и имеет нескользкую поверхность (обращенную к ванне).

4.1.13 Размещение закладных устройств и разметка ванны для спортивного плавания приведены на рисунке 4.2. Для проведения оздоровительного плавания можно предусматривать дополнительные ниши с крюками для крепления поплавков разметки дорожек в ванне:

50 x 25 м - для дорожек шириной 2,5 м, расположенных по поперечной оси ванны;

50 x 21 м - для 10 дорожек шириной 2 м;

25 x 16 м - для 8 дорожек шириной 1,9 м;

25 x 11 м - для 6 дорожек шириной 1,75 м;

25 x 8,5 м - для 5 дорожек шириной 1,6 м каждая.

Закладные устройства должны быть не выступающими из плоскости стенок ванны и обходной дорожки. Полосы разметки осей дорожек контрастно выделяются на фоне стенок и дна; отклонение от приведенных на рисунке размеров может быть в пределах не более ±0,05 м.

При продольных стенках, не выступающих над уровнем воды (рисунок 4.3, вариант "а"), гнезда под стойкой для шнуров повторного старта и с сигнальными флажками устанавливаются на обходной дорожке за переливным желобом.

Для навески поплавков, разделяющих поверхность воды в стенках ванны, устанавливаются ниши размером 15 x 15 см с крючьями или кольцами. Если занятия проводятся поперек ванн (например, в ванне 50 x 25 м) или же на дорожках уменьшенной ширины, следует предусматривать дополнительные ниши и закладные устройства для навески поплавков.

4.1.14 Во всех ваннах следует предусматривать лестницы для входа в воду и выхода из воды. В ваннах для спортивного плавания длиной 50 м следует предусматривать по три, длиной 25 и 33,33 м по две лестницы с каждой продольной стороны, располагая их в нишах, не выступающих из плоскости стенок ванн.

В ваннах для прыжков в воду допускается устройство одной лестницы или ступени по всей ширине (п. 4.1.31).

Схема лестницы для выхода из воды в ваннах для спортивного плавания и водного поло приведена на рисунке 4.4. Ниши для лестниц размером в плане 0,8-1 x 0,2-0,25 м должны доходить только до уступа для отдыха, а при глубине воды более 70 см - ниже уступа, доходить до дна для использования при чистке и ремонте ванны. Нижняя часть лестницы от уступа до дна может не утапливаться в нишу или быть съемной. Поручни лестницы делаются разновысокими для удобного пользования посетителей разных возрастов. Лестницы-стремянки должны быть надежно защищены от коррозии и делаются обычно из нержавеющих труб диаметром 40 мм. Ширина лестницы - 0,6 м, расстояние между ступенями - 0,3 м. Лестницы располагаются не ближе 3 и не далее 5 м от торцевых стенок; в случае устройства смотровых окон или выплывов они размещаются дальше от торцевой стены, чем смотровое окно или выплыв.

4.1.15 Высоту залов с ваннами для прыжков в воду, а также залов с универсальными ваннами (в пределах прыжковой части) следует принимать по рисунку 4.5. Высота залов демонстрационных бассейнов определяется, кроме того, высотой трибуны.

Прыжки в воду

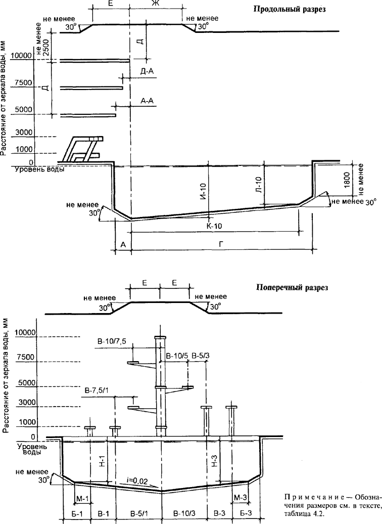
4.1.16 Размеры ванн для прыжков в воду и расстановки устройств для прыжков следует принимать в соответствии с заданным составом устройств, руководствуясь параметрами и габаритами, приведенными на рисунках 4.5, 4.6 и в таблице 4.2.

Таблица 4.2

Нормируемые расстояния между устройствами для прыжков в воду

Буквенные обозначения и наименование размеров, приведенных на рисунке 4.5 Доски трамплинов Платформы вышек
Высота <**>; длина; ширина <***>, м
1; 5; 0,5 3; 5; 0,5 1; 4,5; 0,6 3; 5; 0,8 5; 6; 1,5 7,5; 6; 1,5 10; 6; 2
А - от оси <*> назад до стенки ванны   А-1     А-3     А-1пл     А-3пл     А-5     А-7,5     А-10  
  1,5-1,8     1,5-1,8     0,75     1,25     1,25-1,5     1,5     1,5  
А-А - от оси назад до края нижележащей платформы - - - -   А-А5/1     А-А7,5/3(1)     А-А10/5(3;1)  
  0,75     0,75-1,5     0,75-1,5  
Б - от оси до боковой стенки ванны   Б-1     Б-3   Б-1пл     Б-3пл     Б-5     Б-7,5     Б-10  
  2,5-3,0     3,5     2,3     2,9     4,25     4,5     5,25  
В - между осями соседних устройств   В-1     В-3; В-3,1   - -   В-5/3(1)     В-7,5/5(3;1)     В-10/7,5(5;3;1)  
  1,9-2,4     1,9-2,4     2,1     2,5     2,75  
Г - от оси вперед до стенки ванны   Г-1     Г-3     Г-1пл     Г-3пл     Г-5     Г-7,5     Г-10  
  9,0     10,25     8,0     9,5     10,25     11,0     13,5  
Д - высота от поверхности платформы (доски трамплина) до выступающих конструкций потолка или вышележащей платформы, размещенной на одной с нею вертикальной оси   Д-1     Д-3     Д-1пл     Д-3пл     Д-5     Д-7,5     Д-10  
  5,0     5,0     3,0     3,0   3,0-3,4   3,2-3,4     3,4  
Е - от оси назад и в стороны, на которых должна быть выдержана высота Д   Е-1     Е-3     Е-1пл     Е-3пл     Е-5     Е-7,5     Е-10  
  2,5     2,5     2,75     2,75л     2,75     2,75     2,75  
Ж - от оси вперед, на котором должна быть выдержана высота Д   Ж-1     Ж-3     Ж-1пл     Ж-3пл     Ж-5     Ж-7,5     Ж-10  
  5,0     5,0     5,0     5,0     5,0     5,0     6,0  
И - глубина воды по оси устройства для прыжков   И-1     И-3     И-1пл     И-3пл     И-5     И-7,5     И-10  
  3,4-3,8     3,8-4,0     3,4     3,8     3,8-4,2     4,2-5,0     4,5-5,5  
К/Л - расстояние вперед от оси и глубина воды на этом расстоянии   К/Л-1     К/Л-3     К/Л-1пл     К/Л-3пл     К/Л-5     К/Л-7,5     К/Л-10  
  6/3,3-3,7     6/3,7-3,9     6/3,3     6/3,3-3,7     6/3,7-3,9     8/4,0-4,4     12/4,25-4,75  
М/Н - расстояние от оси и глубина воды на этом расстоянии   М/Н-1     М/Н-3     M/H-1пл     М/Н-3пл     М/Н-5     М/Н-7,5     М/Н-10  
  2,5/3,3-3,7     3,25/3,7-3,9     2,05/3,3     2,65/3,3-3,7     4,25/3,7-3,9     4,5/4,0-4,4     5,25/4,25-4,75  

<*> За ось, от которой ведется отсчет, принимается вертикаль, проходящая через передний край данного устройства для прыжков, по его продольной оси.

<**> Допустимые отклонения высоты устройств для прыжков по поверхности воды: ±0,1 м для трамплинов и ±0,1 м для платформы вышки.

<***> При ширине платформ вышек, превышающей минимальную (указанную в настоящей таблице), требуемые расстояния "В" следует увеличивать на половину дополнительной ширины платформы (платформ).

Примечание - Над чертой - условные обозначения; под чертой - размер. В ваннах, специализированных для прыжков в воду и в универсальных ваннах длиной 50 м, предназначенных для соревнований российского и более высокого уровня по прыжкам в воду, следует принимать наибольшие размеры из приведенных в настоящей таблице.

Размер стороны специализированных ванн для прыжков (для использования их для занятий пловцов), где установлены прыжковые устройства, рекомендуется принимать равным 25 м.

4.1.17 В универсальных ваннах длиной 25 м вышки высотой 10 м и 7,5 м не устраиваются. Комплект устройств для прыжков в этих ваннах определяется в зависимости от ширины ванны, в соответствии с нормативными расстояниями между устройствами. Схемы расстановки устройств для прыжков в воду и стартовых тумбочек в универсальных ваннах показаны на рисунке 4.6.

4.1.18 Пропускную способность каждого устройства для прыжков принимают равной 6 человек в смену, при этом платформы вышки, расположенные друг над другом, следует принимать при расчете за одно устройство.

4.1.19 Устройства для прыжков должны иметь стационарные лестницы с поручнями, а у задней и боковой стороны платформы вышки должны быть перила высотой 1,2 м с отступом от переднего края на 0,8 м. Люки - выходы лестниц, также должны быть огорожены. Допускается, кроме лестниц, предусматривать лифты.

4.1.20 Рабочие поверхности платформ вышек должны иметь нескользкое покрытие из древесины твердых лиственных пород, а передние кромки платформ не должны быть закругленными.

В местах установки трамплинов следует предусматривать закладные детали для их крепления.

4.1.21 Трамплин для прыжков должен быть не менее 4,8 м в длину и 0,5 м в ширину и иметь нескользкую поверхность.

Трамплины должны быть снабжены легко регулируемыми опорными устройствами для изменения амплитуды колебания доски для прыжков.

Вертикальное расстояние от платформы, на которой расположены опорные устройства, до верха доски для прыжков должно составлять 0,365 м. Расстояние от переднего края опорного устройства (длина которого равна 0,676 м) до переднего края поддерживающей платформы должно быть не более 0,68 м. Если передний край платформы выступает за эту точку, то выступающую часть поверхности следует загнуть вниз в пропорции: 1 часть вертикальная к 3 частям горизонтальным.

4.1.22 Трамплины размещаются с одной или с обеих сторон от платформы. При синхронных прыжках предпочтительно, чтобы не менее двух трамплинов одинаковой высоты располагались бок о бок и чтобы никакие препятствия не загораживали вид между прыгунами во все время прыжка.

4.1.23 Платформа для прыжков должна быть жесткой и горизонтальной.

Минимальные ширина и длина платформ при высоте от уровня воды должны быть:

Платформа 0,6-1 м: ширина 0,6 м длина 5 м
-"- 2,6-3 м: -"- 0,6 м -"- 5 м
(предпочтительно 1,5 м)
-"- 5,0 м: -"- 1,5 м -"- 6 м
-"- 7,5 м: -"- 1,5 м -"- 6 м
-"- 10 м: -"- 3 м -"- 6 м

На платформе 10-метровой вышки шириной менее 3 м обязательна установка перил с каждой стороны, на расстоянии не менее 3 м от переднего края платформы. Рекомендуется для обычного использования включать съемную секцию перил, которую можно удалять при синхронных прыжках.

4.1.24 Предпочтительная толщина переднего края платформы должна быть 0,2 м, но не более 0,3 м, и он может быть вертикальным или наклонным под углом не более 10° от вертикали внутрь.

Поверхность и передний край платформы должны быть полностью покрыты упругим нескользким материалом. Каждую из поверхностей надо покрывать отдельно, чтобы образовался четкий угол 90°.

4.1.25 Проекция переднего края платформы 10-метровой и 7,5-метровой вышки должна выступать не менее чем на 1,5 м вглубь бассейна. Для вышек 2,6 - 3,0 м и 5-метровых допустима величина 1,25 м, а для вышек 0,6 - 1,0 м допустима величина 0,75 м.

Там, где платформа располагается непосредственно под другой платформой, проекция верхней платформы должна выступать над нижней минимум на 0,75 м (предпочтительно 1,25 м).

4.1.26 Задняя и боковые стороны платформы (кроме платформы метровой вышки) должны быть огорожены перилами с минимальным просветом 1,8 м между парами. Минимальная высота перил должна быть 1 м, и они должны иметь по крайней мере две перемычки, расположенные за пределами платформы, начиная с 0,8 м от переднего края платформы.

К каждой платформе должна вести соответствующая лестница (не из перекладин). Желательно не располагать платформы непосредственно одну над другой.

4.1.27 Проектная нагрузка от платформ и опорных устройств трамплинов на опорную часть вышки Р = 350 кгс/м.

Помимо требований статики, а также требований удобства и безопасности пользователя, следует соблюдать следующие ограничения относительно платформ и опорных устройств трамплинов:

собственная частота колебаний платформ - 10,0 Гц;

собственная частота колебаний вышки - 3,5 Гц;

колебание всей конструкции - 3,5 Гц.

4.1.28 Пространственная деформация переднего края платформы как результат Pх = Pу + Рz = 100 кгс должна составлять максимум 1 мм. Этим требованиям в наибольшей степени отвечает армированная железобетонная конструкция. Одновременно со статическими расчетами для всей конструкции должна быть обеспечена надежность ее динамического поведения.

4.1.29 В ваннах для прыжков в воду и в глубокой части универсальных ванн, предназначаемой для прыжков, уклон дна следует принимать согласно рисунку 4.5. В остальных ваннах уклон дна к местам выпуска воды следует принимать не менее 0,01, но не более 0,045; допускаются уклоны в поперечном направлении.

4.1.30 В комплекте устройств для прыжков могут предусматриваться дополнительно по одному трамплину на высоте 1 и 3 м. Платформа на высоте 7,5 м предусматривается только в составе 10-метровой вышки.

4.1.31 В специализированных ваннах для прыжков для выхода из воды допускается устройство одной лестницы или 3-4 ступеней шириной 30 см и высотой 16 см, расположенных под прыжковыми устройствами на всей ширине ванны. Схема лестницы для выхода из воды в ваннах для спортивного плавания и водного поло приведена на схеме "б" рисунка 4.3.

Водное поло

4.1.32 Размеры игрового поля для водного поло должны равняться 30 x 20 м для мужчин и 25 x 17 м для женщин. Глубина воды в границах игрового поля должна быть не менее 1,8 м. Пропускная способность - 25 человек в смену.

Допускается уменьшение размеров поля до 20 x 8 м и глубины - до 1 м. Пропускная способность такого поля - 15 человек в смену. Разметка поля для водного поло показана на рисунке 4.7.

4.1.33 По обе стороны игрового поля для водного поло следует обеспечить четкую разметку для обозначения линий ворот, 2-, 4- и 7-метровых линий от линии ворот и линии середины расстояния между линиями ворот. Эта разметка должна быть ясно видна в течение всей игры. Она может быть постоянной и съемной. Обычно рекомендуются следующие цвета для этой разметки: линия ворот и линия середины поля - белые; 2-метровая линия - красная; 4-метровая линия - желтая; 7-метровая линия - зеленая. На конце игрового поля, в 2 м от угла игрового поля (напротив официального табло), должен быть нанесен красный или иной яркого цвета знак.

Граница игрового поля по обоим концам находится на расстоянии 0,3 м за линией ворот. Минимальное расстояние от линии ворот до стенки бассейна должно быть 1 м, а для международных соревнований - не менее 1,5 м.

В центре поля на дне ванны устанавливается блок опускания поплавка под мяч.

Закладные устройства должны предусматриваться не выступающими из плоскости стенок и дна ванны.

4.1.34 Стойки ворот и перекладина с прямоугольными сечениями 0,075 м должны быть изготовлены из дерева, металла или синтетического материала (пластика), совпадать с линией ворот и быть окрашенными в белый цвет. По обеим сторонам игрового пространства стойки ворот должны быть жестко и перпендикулярно закреплены и должны располагаться на равных расстояниях от боковых сторон и на расстоянии не менее 0,3 м впереди от края игрового поля или от какого-либо иного заграждения. Ворота крепятся к поплавкам, ограничивающим игровое поле, подвешиваются к тросу с лебедкой, а в небольших ваннах крепятся к стенкам.

Не допускается создание какого-либо места для стояния или отдыха вратаря, кроме дна бассейна.

4.1.35 Расстояние между внутренними поверхностями стоек ворот должно быть 3,0 м. Нижняя сторона перекладины должна находиться на высоте 0,9 м над уровнем воды при глубине бассейна 1,5 м и более, и на высоте 2,4 м над уровнем дна бассейна, если глубина воды меньше 1,5 м.

К рамам ворот крепятся нежесткие сетки, закрывающие все пространство ворот и оставляющие не более 0,3 м свободного пространства за линией ворот.

4.1.36 Следует предусмотреть достаточное пространство, чтобы судьи имели свободный проход от края до края игрового поля. Следует также предусмотреть пространство у линий ворот для судей "на воротах".

Синхронное плавание

4.1.37 Для соревнований по синхронному плаванию требуются две зоны, каждая длиной 10 м и шириной 3 м. Каждая зона должна располагаться близко к стенке бассейна, причем 10-метровая сторона должна идти параллельно стенке на расстоянии не более 1,5 м от нее. Одна из этих зон должна иметь глубину не менее 3,0 м, а другая - не менее 2,5 м.

4.1.38 Для соревнований по упражнениям требуется зона не менее 12 x 25 м, внутри которой часть 12 x 12 м должна иметь минимальную глубину 2,5 м. Глубина остальной части не менее 1,8 м.

4.1.39 Там, где глубина воды более 2,0 м, возле стенки глубина может быть 2,0 м и далее понижаться с уклоном так, чтобы максимальная глубина находилась на расстоянии не более 1,2 м от стенки бассейна.

4.1.40 Зоны для синхронного плавания могут занимать ту же зону бассейна, которая используется для соревнований по плаванию.

Если отсутствует разметка дорожек, указанная в п.4.1.3, дно бассейна должно быть помечено контрастными линиями в одном направлении по длине бассейна.

Вода должна быть достаточно прозрачна, чтобы видно было дно бассейна (см. требования п. 10.5).

4.1.41 Габариты бассейнов для занятий аквааэробикой определяются заданием на проектирование с учетом перечня видов занятий, осуществляемых в бассейнах на основании таблицы 4.3. Все рекомендации по планировочным размерам и другим параметрам ванн закрытых бассейнов применимы к открытым бассейнам.

4.1.42 Рекомендуемая глубина зоны аквааэробики в ваннах для занятий детей от 14 лет и взрослых - 1,2 м.

В универсальных ваннах с переменной глубиной, используемых для спортивно-оздоровительного плавания и аквааэробики, оздоровительного плавания и аквааэробики, рекомендуется выделять зону занятий аквааэробикой с минимальной глубиной 1,2 м и уклоном дна не более 10 %. Площадь зоны определяется численностью занимающихся в группе из расчета 5 м2на человека. Рекомендуемая минимальная площадь зоны 100 м2.

4.1.43 Дно ванн бассейнов аквааэробики и универсальных ванн в зонах занятий аквааэробикой должно быть нескользким и не иметь выступов и зазоров. Вдоль борта ванн бассейнов аквааэробики и универсальных ванн в зонах занятий аквааэробикой рекомендуется предусмотреть поручень.

4.1.44 Зону занятий аквааэробикой в универсальных ваннах спортивно-оздоровительного плавания и аквааэробики с перепадом уклонов дна рекомендуется выделять поплавками или флажками. Для крепления поплавков следует предусмотреть дополнительные закладные устройства, не выступающие из плоскости стенок ванны. Для крепления стоек для шнуров с флажками предусматриваются гнезда на обходной дорожке.

Таблица 4.3

Рекомендуемые параметры ванн и залов бассейнов для занятий аквааэробикой

Тип ванны Габариты ванны в плане, м Глубина ванны, м Глубина зоны аквааэробики, м Пропускная способность при занятиях, чел. Примечания
Специализированная ванна для аквааэробики Площадь 100 м2 1,2 1,2 20 Ванна произвольной формы. Габариты ванны не нормируются
Универсальные ванны:          
спортивно-оздоровительного плавания и аквааэробики 25,0 x 11,0 1,2-1,8 1,2-1,3 24 Рекомендуемые габариты зала 30 x 80 м и h = 5,4 м
25,0 x 16,0 1,2-1,8 1,2-1,3 32 Рекомендуемые габариты зала 30 x 24 м и h = 5,4 м
оздоровительного плавания и аквааэробики 16,6 x 6,0 1,2-1,45 1,2-1,3 12 Рекомендуемые габариты зала 24 x 12 м и h = 5,4 м
16,6 x 8,0 1,2-1,45 1,2-1,3 16 Рекомендуемые габариты зала 24 x 15 м и h = 5,4 м

Обходные дорожки

4.1.45 Обходные дорожки предназначаются для построений, упражнений и отдыха спортсменов, размещения тренеров и судей, проведения парадов открытия и награждения участников соревнований. По периметру ванн следует предусматривать обходную дорожку шириной не менее 1,5 м у крытых и не менее 2 м у открытых ванн (считая от внешней грани стенки ванны).

Ширина обходной дорожки у торцевой стенки ванны со стартовыми тумбочками принимается не менее 3 м; ширина обходной дорожки вдоль стенок с устройствами для прыжков принимается с учетом габаритов этих устройства и обеспечения подходов к ним, но не менее 4 м в ваннах с не выступающими над водой стенками и 3,5 м - с выступающими стенками. При расположении ванны для спортивного плавания и ванны для прыжков в воду торцами друг к другу обходную дорожку между ними принимают шириной 5 м. Ширину обходных дорожек 25-метровых ванн, размещаемых в залах длиной 30 м (в строительных осях), допускается уменьшать до 1 м у торцевых стенок без стартовых тумбочек; до 2,2 м - у торцевых стенок со стартовыми тумбочками.

Примечание - При обходных дорожках с шириной более 1,5 м допускаются сужения до 0,6 м на не больше чем 1 м длины дорожки для опоры, раковины для питьевой воды (в виде фонтанчика), поручней лестницы и т.д.

Площадь обходных дорожек вокруг ванн и между ними (для обслуживания ванн и подхода к ним) без учета возможных мест для отдыха может составлять 33-50 % общей площади поверхности воды.

4.1.46 Вдоль обходной дорожки крытых ванн предусматриваются стационарные скамьи шириной не менее 0,3 м. Для теплых сидений вдоль стен дорожка расширяется минимум на 0,8 м, включая само устройство для сидения.

Теплые места для сидения следует рассчитывать в количестве 30-40 % числа мест гардероба; одно место для сидения равно 0,6 м по длине скамьи.

4.1.47 Поверхность обходной дорожки должна быть нескользкой и иметь уклон 0,01-0,02 в сторону трапов.

В залах крытых ванн поверхность обходной дорожки и скамей должна обогреваться. В пониженной части обходной дорожки у ванн для обучения не умеющих плавать обогрев, как правило, не предусматривается.

Схема конструкции обходной дорожки крытых ванн приведена на рисунке 4.3.

4.1.48 На обходных дорожках ванн для прыжков в воду и универсальных ванн в непосредственной близости к прыжковым устройствам следует располагать душевые установки из расчета 1 сетка на 10 прыгунов. Душ может располагаться в открытых кабинах или без кабин. Температура воды - 36-40 °С.

По внешнему периметру обходных дорожек открытых ванн следует предусматривать стационарное ограждение, исключающее доступ к ваннам посторонних лиц.

Смотровые окна

4.1.49 Смотровые окна для наблюдения тренера за движениями пловцов под водой, для фото-киносъемок и телерепортажей устраиваются, как правило, в крытых ваннах при длине 50 м и в специализированных ваннах для прыжков в воду.

Смотровые окна рекомендуется принимать высотой 0,4-0,5 м и шириной 1-2 м. Смотровые окна для наблюдения за прыгунами рекомендуется проектировать на расстоянии 3-3,5 м от стенки ванны, у которой размещены устройства для прыжков, а для наблюдения за пловцами - в продольных стенах ванн не ближе 1 - 1,5 м от торцевой стены (рисунок 4.8).

Лампы подводного освещения размещаются в иллюминаторах между смотровыми окнами на глубине 0,65-1 м от уровня воды на расстоянии примерно 4 м друг от друга.

Для доступа к смотровым окнам и иллюминаторам следует предусматривать подходы шириной не менее 1,2-1,5 м и высотой не менее 1,8 м.

В конструкциях подводных иллюминаторов и смотровых окнах рекомендуется применение закаленного стекла.

4.1.50 В бассейнах с крытыми ваннами длиной 50 м следует предусматривать возможность осмотра и ремонта стенок и дна ванн с наружной стороны из проходных (высотой 1,8 м) или полупроходных (высотой 1,2 м) боковых галерей и подполья.

Залы подготовительных занятий ("сухого плавания")

4.1.51 В зданиях бассейнов с ваннами для спортивного плавания и прыжков в воду следует, как правило, предусматривать залы для подготовительных занятий. В бассейнах с ваннами для спортивного плавания размером 25 x 8,5 м залы для подготовительных занятий можно не предусматривать.

4.1.52 Размеры залов для подготовительных занятий принимаются:

18 x 9 м высотой 5,4 м - при ваннах длиной 25 м;

24 x 12 м высотой 6 м - при ваннах длиной 50 м;

24 x 12 м высотой 7,2 м - при ваннах для прыжков в воду и универсальных ваннах длиной 50 м для плавания и прыжков в воду.

Примерные схемы планов расстановки оборудования в залах для подготовительных занятий приведены на рисунке 4.12.

4.2 Ванны для физкультурно-оздоровительных занятий

4.2.1 Для оздоровительного плавания людей различных возрастов, для купания, общеразвивающих упражнений и игр в воде, а также для обучения не умеющих плавать следует принимать размеры и пропускную способность ванн в зависимости от вида проводимых в них занятий по таблице 4.4.

Таблица 4.4

Вид занятий Размеры, м <*> Пропускная способность, чел.
длина ширина глубина <**>
в мелкой части в глубокой части
Оздоровительное и спортивное плавание (по дорожкам) 25 16 1,2 1,8 64
11 48
8,5 40
Оздоровительное плавание (свободное) <***> 25 11 1,2 1,45 48
8,5 40
20 10 40
16,67 8,0 24
6,0 18
Купание, общеразвивающие упражнения и игры в воде <***> Произвольных размеров и формы с площадью зеркала воды не менее 90 м2 1 1,25 Из расчета 5 м2 зеркала воды на 1 чел.

<*> При реконструкции существующих помещений допускается предусматривать длину ванн для оздоровительного плавания 12,5 м, а ширину - в соответствии с шириной реконструируемого помещения.

<**> При проектировании ванн в полносборных конструкциях уклон дна можно не предусматривать.

<***> Оздоровительное плавание, купание, общеразвивающие упражнения и игры в воде разрешается производить в одной общей ванне с предварительным понижением уровня воды на 20 см.

4.2.2 Ширина дорожки для оздоровительного плавания может приниматься не менее 1,6 м с уменьшением ширины свободных полос воды за крайними дорожками у стенок ванны до 0,25 м.

4.2.3 Расчетная пропускная способность ванны бассейна на одного обучаемого плаванию принимается 1 м2зеркала воды на 1 человека.

Если бассейн для неплавающих людей расположен около плавательного бассейна, то он должен находиться рядом с мелководной частью этого плавательного бассейна.

4.2.4 В каждом бассейне следует предусматривать ванны для обучения не умеющих плавать детей в возрасте от 7 до 14 лет и размещать эти ванны в отдельном отапливаемом помещении.

4.2.5 Для обучения детей плаванию следует принимать размеры и пропускную способность ванн, указанные в таблице 4.5.

Таблица 4.5

Вид занятий - обучение не умеющих плавать Размеры ванн, м Пропускная способность, чел.
длина ширина глубина воды
в мелкой части в глубокой части
Детей от 7 до 10 лет 10 или 12,5 6 0,6 Не более 0,85 20
Детей от 10 до 14 лет <*> 0,8 -"- -"- 1,05
Детей от 14 лет и взрослых 10 или 12,5 6 0,9 -"- -"- 1,25 20

<*> Допускается использование этой ванны и для обучения детей от 7 до 10 лет с понижением уровня воды на 20 см.

Размеры и глубину ванн для оздоровительных занятий и обучения не умеющих плавать до 7 лет следует принимать по нормам проектирования детских дошкольных учреждений.

4.2.6 Детские бассейны никогда не следует располагать рядом с глубокими бассейнами и подходы к ним не должны идти мимо глубоких бассейнов. Желательно располагать эти бассейны вблизи раздевалок, в нише, вблизи только мелких бассейнов и т.д., создавая наибольшую безопасность для маленьких детей.

При детских бассейнах рекомендуется устраивать край бассейна на 40 см выше пола в форме сидения для сопровождающих лиц.

4.2.7 Размеры и форма ванн для обучения не умеющих плавать детей от 7 до 14 лет могут быть произвольными, при этом пропускную способность следует принимать из расчета 4 м2 зеркала воды на занимающегося.

4.2.8 В комплексных бассейнах с крытыми и открытыми ваннами рекомендуется дополнительно предусматривать открытые ванны сезонного действия для обучения не умеющих плавать.

4.2.9 При проектировании ванн для физкультурно-оздоровительных занятий в них следует предусматривать переливной желоб для сброса воды и уступ для отдыха.

4.2.10 В ваннах для обучения не умеющих плавать обходную дорожку по трем сторонам ванны рекомендуется опускать ниже верха стенки на 0,9-1 м; при этом допускается уменьшение ширины дорожки до 0,75 м. В некоторых случаях пониженная обходная дорожка предусматривается только по продольным сторонам ванны, а в торцах не делается.

Пример плана зала с ванной для обучения не умеющих плавать размером 10 x 6 м приведен на рисунке 4.9. На рисунках 4.1, и, к, л показаны решения ванн школьных плавательных бассейнов.

4.2.11 Высота залов ванн (от поверхности воды до низа выступающих конструкций) для оздоровительного плавания, игр в воде и купания, как правило, принимается равной 5,4- 4,8 м.

Высота залов ванн для обучения плаванию принимается не менее 3,6 м от уровня воды. Ванны для обучения не умеющих плавать могут устраиваться напольными.

4.2.12 Кроме ванн для физкультурно-оздоровительных занятий, для детей и подростков целесообразно оборудовать водяные горки (тобоганы), показанные на рисунке 4.10.

Горки для скатывания в воду (тобоганы) в плескательных ванных для детей дошкольного возраста устраивают из пластика, железобетона или металла. Высота площадки 2-3,8 м, длина горки в плане 4-14 м. Ширина лестницы и наклонной дорожки для спуска в воду 50-60 см. Уклон дорожки 25-35°, а радиус закругления нижней части не менее 3 м. Нижний конец желоба располагается на 10-50 см выше уровня воды, глубина которой в этом месте не должна превышать 40-100 см.

Поверхность желоба тщательно отделывается пластиками, линолеумом, алюминием. Для лучшего скольжения на верхнюю площадку горки подводится вода, равномерно смачивающая желоб.

Тобоганы для взрослых используются и как декоративные элементы в открытых бассейнах.

4.3 Ванны для занятий инвалидов

4.3.1 Бассейны для спортивных занятий инвалидов должны проектироваться с соблюдением требований к конструктивным и планировочным решениям, а также к размещению оборудования, цветовому решению, акустике и освещению в соответствии с СНиП 35-01, СП 35-101 и СП 35-103.

4.3.2 Параметры и оборудование ванн бассейнов необходимо подбирать в зависимости от специфических особенностей нарушений здоровья у следующих основных групп инвалидов:

1) инвалиды с поражением органов двигательного аппарата - ПОДА, нуждающиеся в креслах-колясках;

2) инвалиды с ПОДА, не нуждающиеся в креслах-колясках;

3) инвалиды с недостатками зрения - НЗ, слепые и с ослабленным зрением;

4) инвалиды с дефектами слуха - ДС, глухие и с ослабленным слухом.

В физкультурно-спортивном комплексе для занятий инвалидов должно быть не менее двух ванн: для плавания (оздоровительного или спортивного) и для терапевтических занятий в воде.

4.3.3 Набор типов ванн бассейнов для инвалидов включает пять групп, начиная с ванн оздоровительно-терапевтического назначения и кончая ваннами для спортивного плавания. Хотя почти все типы ванн имеют стандартные размеры, все они требуют специальных планировочных решений и технических приспособлений для занятий инвалидов (таблица 4.6).

Таблица 4.6

Наименование типов ванн Назначение и размеры помещений, залов, м <*> Размеры ванн в плане, м <**> Единовременная пропускная способность, чел. <***> Глубина, м Примечания
Ванна оздоровительно-терапевтическая Восстановительное лечение, 9 x 12 3 x 7 (4) 0,25-1,32 Инвалиды с ПОДА, желательно регулирование уровня дна
Плескательная ванна Привыкание к воде, игры, 100 м2 Свободная форма площадью 15-35 м2 (3-8) 0,0-0,4 Для детей
Ванна для обучения не умеющих плавать Привыкание к воде, игры, обучение плаванию, упражнения в воде Для детей всех категорий инвалидности
А- 15 x 24 Aв - 8 x 16,6 20(10) 0,8-1,35
Б - 18 x 30 Бв - 6 x 10 0,6-1,35
Ванна для оздоровительного плавания Плавание, игры в воде, закрепление навыков А - для всех категорий, кроме паралича
А - 15 x 24 Aв - 8 x 16 24(12) 0,9-1,25
Б - 18 x 30 Бв - 6 x 10 1,2-1,45
Ванна для спортивного плавания Спортивное плавание, плавание, ныряние с тумбочек, игры Все категории
А- 18 x 30 Aв- 11 x 25 48(24) 1,8-2,05
Б - 24 x 30 Бв - 16,6 x 25 65(32)
В - 60 x 30 Bв - 50 x 21 1,8-2,3

<*> А, Б, В - варианты размеров помещений.

<**> Aв, Бв, Bв - варианты размеров ванн.

<***> В скобках указано число инвалидов.

4.3.4 Залы ванн бассейнов, доступных для инвалидов, как правило, должны быть увеличенными по сравнению со стандартными размерами за счет увеличения ширины обходных дорожек и за счет зон для размещения дополнительного вспомогательного оборудования.

4.3.5 Край ванны бассейна по всему периметру должен выделяться полосой, имеющей контрастную окраску по отношению к обходной дорожке.

В ваннах бассейнов, где возможны занятия слепых спортсменов, на обходных дорожках должны предусматриваться специальные полосы для информации и ориентации.

4.3.6 Ширина полос ориентации для ванн - не менее 1,2 м. За ней должно быть установлено предупреждающее ограждение с поручнем на высоте не менее 1 м.

Предупредительная цветовая маркировка должна быть на входах и выходах из бассейна, границе борта, на центровке трамплинов и стартовых тумбочек.

Для получения различимой звуковой информации и снижения уровня шума рекомендуется применять перфорированный или слоистый акустический потолок.

4.3.7 В мелком конце ванны следует устраивать пологую лестницу с размерами, не менее: подступенков - 0,14 м и проступей - 0,3 м.

Рекомендуется устраивать лестницу вне габаритов ванны. Лестница должна иметь стационарные поручни. Ширина лестницы для спуска в воду должна быть не менее 0,9 м.

4.3.8 Для безопасного спуска в воду инвалидов, чья подвижность целиком зависит от ортопедических устройств, следует предусмотреть установку желоба или специальных подъемников. Желоб может устанавливаться на высоте 0,5 м над уровнем обходной дорожки.

Подъемники для спуска инвалидов из кресла-коляски в воду могут устанавливаться на обходной дорожке, крепиться к потолку или стене.

Терапевтические ванны следует оборудовать двигающимися подвесными вспомогательными средствами.

4.3.9 Для спортивно-оздоровительного плавания рекомендуются ванны без бортов с переливной решеткой в уровне обходной дорожки.

В ваннах терапевтического и двигательно-оздоровительного назначения, как и в детских ваннах, с трех сторон устраивается борт высотой 0,65 м.

4.3.10 Обходная дорожка по периметру ванн должна быть шириной не менее 2 м в крытых и 2,5 м открытых ваннах.

Дорожка со стороны стартовых тумбочек и выходов из раздевальных должна быть шириной не менее 3,5 м.

Вместо ножных проходных ванн у выхода из раздевальных в зал бассейна рекомендуется применять коврики, пропитанные антисептиками.

4.3.11 По внешней границе обходной дорожки следует предусматривать стационарные скамьи высотой 0,5 м. На площади обходной дорожки следует предусматривать места для хранения кресел-колясок.

Вдоль стен бассейна по периметру обходной дорожки рекомендуется устраивать сплошной поручень на высоте 0,9 м от пола. Дополнительные требования см. в приложении А. На рисунке 4.11 приведены обходные дорожки и профили ванн, оборудованных для инвалидов.

4.3.12 Все рекомендации по планировочным размерам ванн закрытых бассейнов применимы к открытым бассейнам. Если из открытых бассейнов выходят через односторонние турникеты, то должен существовать обходной путь для инвалидов.

4.3.13 Средняя площадь, приходящаяся на каждую единицу оборудования в помещениях ОФП, складывается из площади, занимаемой тренажером или снарядом, размеров зон безопасности и площади для подходов. Два первых показателя являются стандартными. Третий показатель (площади для подходов к оборудованию) зависит от размеров проходов, которые увеличиваются для незрячих и "колясочников", в соответствии с характером их передвижений и необходимостью организации места, где происходит пересадка инвалида для последующих занятий. Таким образом, средняя площадь, приходящаяся на каждую единицу оборудования, составляет: для здоровых людей и глухих - 4 м2, для инвалидов по зрению и "колясочников" - не менее 6 м2.

4.3.14 Психологическая и физическая подготовка инвалидов к занятиям в воде может производиться в залах общей физической подготовки (ОФП) или в специальных залах подготовительных занятий. Размеры залов, предназначенных для подготовительных занятий, могут быть стандартными, рекомендуемыми для ванн бассейнов общего пользования (рисунок 4.12). Основное требование - правильная расстановка необходимого оборудования с учетом особенностей нарушений у инвалидов.

5. Помещения раздевальных

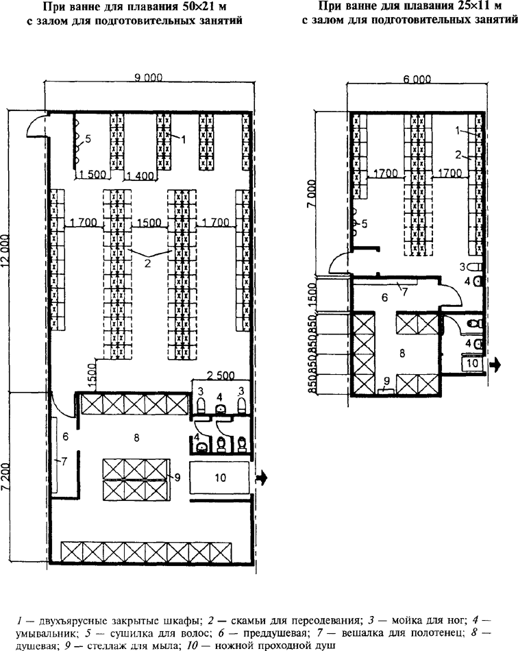
5.1 Раздевальные должны размещаться на одной отметке с обходными дорожками открытых и крытых ванн и сообщаться с ними только через душевые, а с залом или площадкой для подготовительных занятий - минуя душевые. Функциональные схемы раздевальных при бассейнах показаны на рисунке 5.1.

В бассейнах с несколькими ваннами рекомендуется предусматривать раздевальные для каждой ванны.

Раздевальные, душевые и санитарные узлы при ваннах для детей до 14-летнего возраста следует располагать отдельно от аналогичных помещений для взрослых.

5.2 Раздевальные для занимающихся рекомендуется предусматривать как для переодевания, так и для хранения домашней одежды. В раздевальных должно быть предусмотрено разделение помещений на зоны для посетителей в обуви и без обуви.

Для переодевания в помещении раздевальной устанавливаются скамьи из расчета 0,6 м длины скамьи на одно место. Площадь на одно место для переодевания (с учетом подхода к ним) составляет 1,2 м2при числе мест в одном помещении более 40 и 1,5 м2 - при числе мест 40 и менее.

Число мест для переодевания принимается на 100 % занимающихся в смену, а соотношение числа мест в мужской и женской раздевальных принимается, как правило, 1:1.

Хранение домашней одежды предусматривается в закрытых шкафах. Шкафы могут применяться двух типов:

а)двухъярусные (на два места) размером в плане 0,6 x 0,3 м (площадь на шкаф 0,18 м2);

б)одноярусные металлические трехъячеистые (трехместные) "шкафы индивидуального пользования" (далее - ШИП) размером в плане 1,1 x 0,5 м (площадь на шкаф 0,58 м2). ШИП, имеющий высоту 0,98 м, может устанавливаться в два яруса.

При оборудовании раздевальных шкафами типа "а" в бассейнах с помещениями для подготовительных занятий на каждые 4 места для переодевания предусматривается 9 двухъярусных шкафов; при отсутствии залов или площадок на каждые два места для переодевания предусматривается три двухъярусных шкафа. Каждый из шкафов, устанавливаемых в блоке со скамьями для переодевания и имеющих общие со скамьями подходы, занимает площадь 0,18 м2. "Избыточные" шкафы (не умещающиеся в погонаж скамей) устанавливаются отдельно и с учетом подходов занимают площадь 0,5 м2 на шкаф.

5.3 При оборудовании раздевальных ШИПами, размещаемыми в два яруса, все они устанавливаются отдельно от скамей и с учетом подходов занимают площадь 1,15 м2 на шкаф или 0,2 м2 на каждое место. В бассейнах с залами (площадками) для подготовительных занятий на каждые 4 места для переодевания предусматривается 3 двухъярусных ШИПа (18 мест для хранения одежды), а при отсутствии зала (площадки) - на каждые два места для переодевания предусматривается один двухъярусный ШИП (6 мест для хранения домашней одежды). Мебель и оборудование раздевальных показаны на рисунке 5.2.

В раздевальных для детей до 10-летнего возраста хранение домашней одежды предусматривается в одноярусных шкафах; при этом на одно место для переодевания предусматривается 3 места для хранения одежды (один трехъячеистый ШИП или три одноярусных шкафа площадью в плане 0,18 м2 каждый).

5.4 Площадь раздевальных можно определить, пользуясь удельными показателями площади на одного занимающегося:

в раздевальных с числом мест до 40 - 2,5 м2 при бассейнах с залами (площадками) подготовительных занятий; 2,1 м2 - при бассейнах без них;

с числом мест 40 и более - 2,1 м2при бассейнах с залами (площадками) подготовительных занятий; 1,7 м2- при бассейнах без них;

для детей до 10 лет - 2,9 м2.

5.5 Ширина проходов между элементами оборудования в раздевальных принимается по таблице 5.1 и по рисунку 5.3.

5.6 Душевые для занимающихся должны быть проходными и располагаться на пути движения из раздевальни к обходной дорожке.

Душевые при раздевальных устраиваются открытыми из расчета одна душевая сетка на трех одновременно занимающихся в ванне (ваннах). При душевых с числом сеток более 6 предусматриваются преддушевые из расчета 0,3-0,5 м2 на одну душевую сетку, оборудованные вешалками для полотенец и ячейками для хранения мыла и мочалок.

5.7 В месте выхода из душевой на обходную дорожку предусматривается проходной ножной душ длиной (по направлению движения из душевой) не менее 1,8 м и глубиной 0,1-0,15 м (рисунок 5.4, А). Дно поддона должно быть нескользким и иметь уклон в сторону душевой не менее 0,01. Допускается отсутствие ножных ванн при непосредственном выходе из душевых на обходную дорожку бассейна.

Таблица 5.1

Проход между элементами оборудования Размер, м
В раздевальных: Не менее 1,5
между рядами скамей при сидении лицом друг к другу
между рядом скамей и параллельной ему стеной или стоящими напротив рядом шкафов Не менее 1,1
боковые проходы Не менее 0,5
главные проходы Не менее 1
свободная зона перед фронтом проемов в гардеробную домашней одежды Из расчета 0,07 м2 на одно место для переодевания при ширине не менее 0,7 м (не считая ширины прохода)
В гардеробной домашней одежды - между рядами шкафов и перед фронтом проемов в раздевальные Не менее 0,7
В душевых: Не менее 1,3
между фронтом душевых кабин и противоположной стеной или перегородкой
между противоположными рядами душевых кабин Не менее 1,5

5.8 Выплывы при выходе из душевых в открытые ванны круглогодичного использования устраиваются в боковой части продольной стены с мелкой стороны ванны (рисунок 5.4, Б). Из мужских и женских раздевальных делаются раздевальные выплывы. Ширина выплыва 1,8- 2,2 м при глубине воды 0,9-1,0 м для взрослых и 0,6-0,7 м - для детей. Над выплывом предусматривается затвор, предохраняющий помещения от холодного воздуха. Нижняя кромка затвора должна быть обрамлена эластичными материалами, препятствующими поступлению холодного воздуха, и опускаться в воду на 10 - 15 см. Выплывы должны быть оборудованы в виде тамбура и защищены от возможного поступления воды из душевых.

На всю ширину обходной дорожки над выплывом устанавливается деревянный или металлический переходной мостик с подъемом в центральной части на 0,6-0,8 м над водой. Летом мостик заменяется плоскими съемными щитами.

5.9 В раздевальных следует предусматривать мойки для ног из расчета одна мойка на 20 мест для переодевания, но не менее одной.

5.10 В раздевальных или смежных с ними помещениях устанавливаются сушки для волос из расчета: один прибор на 10 мест для переодевания в женских раздевальных и один прибор на 20 мест - в мужских в смену.

5.11 Санитарные узлы для занимающихся должны размещаться при раздевальных и исключать возможность попадания из них к ваннам, минуя душевые.

Не допускается располагать санитарные узлы и душевые над помещениями для приготовления и хранения коагулирующих и дезинфицирующих растворов.

5.12 Расчетное число санитарных приборов во вспомогательных помещениях приведено в таблице 5.2.

Размеры кабин, проходов, а также расстояния между приборами приведены в таблице 5.3.

5.13 Схематические планы раздевальных с душевыми и санитарными узлами приведены на рисунке 5.5. Пропускная способность ванны 25 x 11 м (при оздоровительном плавании) - 48 человек в смену. В каждой из двух (женской и мужской) раздевален размещены 24 места для переодевания, 36 двухъярусных закрытых шкафов для хранения одежды, мойка для ног, сушки для волос, душевая на 8 сеток; санузел с умывальником в шлюзе. Пунктиром показана возможность установки дополнительных мест (скамеек) для переодевания. Пропускная способность ванны бассейна 50 x 21 м (при оздоровительном плавании) - 120 человек в смену. В каждой из двух (женской и мужской) раздевальных размещены 60 мест для переодевания, 90 двухъярусных закрытых шкафов для хранения одежды, 2 мойки для ног, сушки для волос, душевая на 20 сеток; санузел с умывальником в шлюзе.

5.14 Кабины душевых и раздевальных для инвалидов приведены на рисунке 5.6.

5.15 Вспомогательные помещения аквапарка (душевые, раздевальные, санитарные узлы) оборудуются в соответствии с требованиями по оборудованию помещений для плавательных бассейнов.

Таблица 5.2

Помещение, санитарные приборы Число санитарных приборов в помещении Дополнительные сведения
Санитарные узлы с умывальниками в шлюзе <*> при раздевальных:
для занимающихся:
женские Один унитаз на 30 мест для переодевания, но не менее одного -
мужские Один унитаз и один писсуар на 45 мест для переодевания, но не менее одного унитаза
отдельно размещенной бани сухого жара Один унитаз на помещение -
Для сотрудников инструкторского и тренерского состава:
женские Один унитаз на 15 единовременно работающих женщин, но не менее одного унитаза При числе менее 20 единовременно работающих мужчин и женщин предусматривается общий санитарный узел на один унитаз
мужские Один унитаз на 60 и один писсуар на 20 единовременно работающих мужчин, но не менее одного унитаза
Для зрителей:
женские Один унитаз на 40 зрителей-женщин Соотношение женщин и мужчин принимается, как правило, 2/5-3/5. Иные соотношения могут приниматься исходя из местных демографических условий. В каждом помещении санузла должно быть, как правило, не более 40 приборов (унитазов, писсуаров)
мужские Один унитаз и один писсуар на 330 зрителей-мужчин
Умывальники при санитарных узлах для зрителей:
женские Один умывальник на 4 унитаза в санитарном узле -
мужские Один умывальник на 8 приборов (унитазов, писсуаров) в санитарном узле -
Умывальники:
в раздевальных для занимающихся Один умывальник на 30 мест для переодевания в раздевальной, но не менее одного Допускается размещать дополнительно в шлюзах при санузлах
в комнатах инструкторского и тренерского состава, бытовых помещениях для рабочих, помещениях медицинского обслуживания, массажных, лабораториях анализа воды По одному умывальнику на каждое помещение -
Раковины в тамбурах хлораторных и склада хлора Одна раковина в тамбуре -
Мойки в помещениях уборочного инвентаря Одна мойка на помещение -

<*> Умывальники в шлюзах устанавливаются из расчета: один умывальник на каждые 5 приборов (унитазов и писсуаров), но не менее одного умывальника при каждом санитарном узле.

Таблица 5.3

Показатель Уборные Умывальники Душевые
Размеры кабин в плане, м, при открывании двери:
наружу 0,85 x 1,3 - 0,85 x 1,8 <**>
внутрь 0,85 x 1,5 <*> - -
без двери - - 0,85 x 1
Высота разделительных экранов (от пола), м 1,8 - 1,8
Расстояние от пола до низа экрана, м 0,2 - 0,2
Расстояние между приборами (в осях), м:
умывальниками - 0,65 -
писсуарами 0,7 - -
Ширина проходов, м <***>, между рядами кабин:
до 6 в ряду включительно 1,5 - 1,5
св. 6 в ряду 2 - 1,5
между рядами умывальников - 1,6 -
между рядами писсуаров:
до 6 в ряду включительно 1,5 - -
св. 6 в ряду 2 - -
между стеной (перегородкой) и рядом кабин 1,3 1,1 1 - при числе в ряду до 6
1,5 - при 7 и более приборах
между кабинами и рядом писсуаров 2 - -

<*> Принимаются для уборных, состоящих из одной кабины и шлюза.

<**> Включая преддушевую при открытых кабинах.

<***> Приведена минимальная ширина проходов; в зависимости от архитектурно-планировочного решения и шага строительных конструкций ширина проходов может быть увеличена.

6 Вспомогательные помещения

6.1 Состав вспомогательных помещений бассейна формируется из обязательных (по основной функции) и рекомендуемых дополнительных помещений (приложение А).

6.2 Высота вспомогательных помещений принимается, как правило, равной 3 м.

В зависимости от архитектурно-планировочного решения и технологических требований, а также при размещении вспомогательных помещений в подтрибунном пространстве высота помещений может быть уменьшена до:

2,1 м - в выделенной гардеробной верхней одежды;

2,7 м - в остальных помещениях, кроме вестибюлей.

6.3 Площадь вестибюля (без тамбура) определяется из расчета 0,5 м2 на одного занимающегося в смену (но не менее 20 м2) и 0,25 м2 на одно зрительское место. В демонстрационных бассейнах рекомендуется устройство раздельных вестибюлей для занимающихся (соревнующихся) и зрителей.

Пути движения занимающихся из вестибюля в раздевальни рекомендуется обособлять от путей движения зрителей.

В вестибюлях спортивных и оздоровительных бассейнов, работающих в зимнее время при расчетной температуре наружного воздуха ниже минус 15 °C, должно предусматриваться устройство тамбуров или воздушно-тепловых завес.

6.4 Площадь гардеробной верхней одежды для занимающихся и зрителей определяется из расчета 0,1 м2 на одно место, но не менее 10 м2 (в оздоровительных бассейнах - не менее 6 м2).

Расчетное число мест в гардеробной верхней одежды для занимающихся принимается на 300% пропускной способности смены. В бассейнах без залов или площадок подготовительных занятий площадь принимается 200 % численности смены.

Гардеробная для верхней одежды зрителей рассчитывается на 100 % зрительских мест. Глубина гардеробной не должна превышать 6 м.

В крытых бассейнах в расчетное число мест следует включать сотрудников, число которых определяется типовыми штатными расписаниями.

6.5 Помещение для родителей, ожидающих детей, площадью 16-20 м2 желательно размещать смежно с залом ванны для обучения, отделенное от зала остекленной перегородкой с автоматически или вручную управляемой шторкой со стороны зала ванны.

Допускается располагать ожидающих родителей в вестибюле на дополнительной площади 0,5 м2 на одно место на 100 % единовременной пропускной способности детской ванны (ванн). Места для верхней одежды родителей следует также учитывать при расчете гардеробных.

В бассейнах с общими вестибюлями для занимающихся и зрителей дополнительная площадь для ожидания и хранения верхней одежды родителей не предусматривается.

6.6 Регистратура площадью 4-6 м2выгораживается в вестибюле барьером или легкими перегородками; иногда на пути, ведущем в раздевальные, устанавливаются турникеты с автоматической регистрацией посетителей.

6.7 Фойе предусматривается в крытых бассейнах, имеющих места для зрителей. Площадь определяется из расчета 0,35 м2на 1 зрительское место.

При устройстве входов на трибуну с отметки вестибюля фойе обычно совмещается с ним и площадь не суммируется, а принимается по наибольшей.

6.8 Кассы проектируются в демонстрационных, а также во всех других бассейнах, где предусмотрено оказание платных услуг. Площадь кассовой кабины принимается 2,5-4 м2 и она располагается в вестибюле.

В крупных демонстрационных бассейнах две кабины и более целесообразно объединять в кассовый вестибюль, площадь которого определяется из расчета 4 м2 на каждую кабину. Кассовый вестибюль должен иметь самостоятельный наружный вход, сообщаться с вестибюлем для зрителей и помещением администратора площадью 8-10 м2.

6.9 При бассейнах общеобразовательных школ предусматриваются вспомогательные помещения, в том числе раздевальные для переодевания из расчета 2,6 м2 на одного занимающегося и не менее 15 мест в каждой раздевальной для мальчиков и девочек. Шкафы размером в плане 0,6 x 0,3 см, одноярусные из расчета 0,8 м2 на одно место и 15 мест в раздевальной.

В душевой одна душевая сетка предусматривается на трех занимающихся в смену с площадью 2 м2 на 1 сетку.

Помещение преподавателя физкультуры предусматривается с душевой и санузлом. Состав и площади технических помещений, связанных с обслуживанием бассейна, принимаются по справочному пособию "Проектирование бассейнов" (М.: Стройиздат, 1991).

6.10 Инвентарные для хранения переносного спортивного оборудования и инвентаря могут предусматриваться при открытых и крытых ваннах и залах для подготовительных занятий.

Инвентарные должны располагаться смежно с залами подготовительных занятий. Пол инвентарной следует предусматривать без порога, а двери - шириной не менее 1,8 м, допускаются и открытые проемы. Инвентарные при ваннах должны иметь выход на обходную дорожку. Примерная площадь инвентарных:

при залах ванн 50 x 21 и 25 x 11м - от 8 до 10 м2;

при зале подготовительных занятий 24 x 12 м - от 8 до 12 м2;

при зале подготовительных занятий 18 x 9 м - от 6 до 8 м2.

В отдельных случаях возможно размещение инвентаря в открытых нишах по одной в продольных и торцевых стенках зала ванн.

Кроме инвентарных, допускается предусматривать пункты проката формы и обуви в соответствии с заданием на проектирование.

6.11 Помещения для отдыха принимаются из расчета 3 м2 на занимающегося исходя из 15 % единовременной пропускной способности, но не менее 24 м2. В качестве помещений для отдыха возможно использование световых разрывов коридоров. Кроме того, желательно предусматривать помещения для занятий спортивных клубов по интересам, видеосалонов, детских игровых комнат и других форм досуга и общения. Состав и площади сферы досуга и общения устанавливаются в каждом отдельном случае заданием на проектирование.

6.12 Комнаты инструкторов и тренеров (тренерские) устраиваются, как правило, раздельными для женщин и мужчин. При шести и менее одновременно работающих тренеры могут размещаться в общей комнате с 1-2 кабинами для переодевания площадью не менее 1 м2 каждая.

Число мест определяется из расчета одно место на каждую дорожку в ваннах для плавания или на каждое устройство в ваннах для прыжков в воду. В универсальных ваннах - по наибольшему значению.

6.13 При раздельных тренерских соотношение женщин и мужчин принимается обычно 1:1, которое, исходя из местных условий, может быть изменено.

Площадь принимается из расчета 2,5 м2на одно место, но не менее 9 м2 в каждой тренерской. При более 10 работающих тренеров площадь может рассчитываться исходя из 1,8 м2 на одно место.

Тренерские оборудуются закрытыми душевыми кабинами со шлюзами для переодевания из расчета одна сетка на 12 одновременно работающих женщин и на 15одновременно работающих мужчин. В комнатах для четырех и менее тренеров душевые могут не предусматриваться.

6.14 Комната дежурного тренера (инструктора) предусматривается в случаях, когда комнаты тренеров расположены в отрыве от зала ванн. Комната дежурного тренера площадью 6- 8 м2должна иметь непосредственный выход на обходную дорожку и из нее должна хорошо просматриваться ванна. В отдельных случаях возможно совмещение комнаты дежурного тренера с помещением дежурной медицинской сестры.

6.15 Помещения для медицинского обслуживания могут размещаться в составе медико-восстановительного центра при бассейне или отдельно. Планировка и оборудование медико-восстановительного центра показаны на рисунке 6.1. Примерный состав помещений приведен в приложении Б.

Помещения для медицинского обслуживания:

кабинет врача площадью 14 м2;

ожидальная площадью 9 м2(может размещаться в расширенной части коридора);

комната дежурной медицинской сестры площадью 9-12 м2 с непосредственным выходом на обходную дорожку.

При нескольких ваннах, расположенных изолированно друг от друга, комнаты медицинской сестры предусматриваются при каждой ванне (кроме ванн для обучения детей).

В бассейнах с несколькими ваннами кабинет врача с ожидальной могут предусматриваться общими для всего бассейна.

6.16 Учебный класс (методический кабинет) площадью 30-40 м2 предусматривается обычно во всех бассейнах с одной основной и детской ваннами. В бассейнах с несколькими ваннами может предусматриваться большее число классов. В этом случае требуется помещение для хранения учебных пособий площадью 6 м2.

6.17 Массажные рассчитываются по 12 м2 на один стол, а при двух столах и более в одном помещении - по 8 м2на каждый стол. Массажные могут располагаться смежно с раздевальнями.

Массажная должна иметь раздевальню площадью из расчета 1,5 м2 на каждый стол, но не менее 5 м2, а также душевую кабину на каждые два стола. При расположении смежно с раздевальней отдельные раздевальня и душевая не предусматриваются.

6.18 Баня сухого жара (сауна) состоит из:

камеры сухого жара, площадь которой определяется из расчета 2 м2 на одно место, но не менее 10 м2 (не считая шлюза при входе в камеру); высота камеры 2,2-2,3 м; вместимость не должна превышать 10 чел.;

раздевальни из расчета 1,5 м2на одно место в камере, но не менее 12 м2 и уборной при ней на 1 унитаз;

душевой с одной сеткой на каждые 2 места;

комнаты отдыха из расчета 2 м2на одно место в камере, но не менее 12 м2;

контрастной ванны с зеркалом воды 2 x 2 м и глубиной 1,2 м, размещаемой обычно в одном помещении с душевой.

При размещении бани смежно с раздевальнями бассейна дополнительные раздевальни и душевая, а также комната отдыха и контрастная ванна не предусматриваются.

6.19 Стены и потолок камеры обшиваются сухим деревом без сучков. Шляпки гвоздей должны быть утоплены. Пропитка или покрытие древесины лаком не допускаются. В камере оборудуются ступенчатые полки. Расстояние между смежными полками по вертикали не менее 40 см, от верхней полки до потолка - не менее 140 см.

Мощность электрокаменки выбирается в соответствии с объемом камеры. Электрокаменка огораживается несгораемыми экранами. Электрощит каменки устанавливается в сухом помещении вблизи камеры сухого жара. Варианты решений и оборудования кабин саун показаны на рисунках 6.2 и 6.3.

Перед входом в камеру следует предусматривать шлюз.

6.20 Лабораторию химического и бактериологического анализа воды площадью 8-10 м2 желательно размещать в удобной коммуникационной связи с залом ванны (ванн).

6.21 Буфеты для занимающихся и зрителей должны предусматриваться во всех бассейнах.

В бассейнах при пропускной способности менее 48 человек в смену в отдельных случаях буфеты для занимающихся могут заменяться стойкой для электросамовара с подсобным помещением для хранения и мытья чайной посуды площадью 4-8 м2.

Число мест в буфетах рекомендуется принимать:

а) для занимающихся - из расчета одно посадочное место на 6 человек пропускной способности в смену;

б) для зрителей - из расчета 3 % числа зрительских мест.

Примечание - При числе зрительских мест менее 600 в крытых бассейнах буфеты для зрителей могут в отдельных случаях предусматриваться на площади фойе переносными, а при числе зрительских мест менее 1200 в открытых бассейнах - на прилегающей территории - привозными.

6.22 Площади обеденных залов буфетов (с раздаточной) для занимающихся принимаются из расчета 3,4 м2 на каждое посадочное место, при их числе до 8 включительно и по 1,25 м2на каждое место, сверх 8 и до 30. При общем числе мест в зале свыше 30 - не менее чем по 1,8 м2 на каждое место.

Площади обеденных залов буфетов для зрителей (без учета раздаточной) принимаются не менее 1,4 м2 на место.

Площади подсобных помещений буфетов определяются применительно к требованиям по проектированию предприятий общественного питания.

6.23 Буфет для зрителей рекомендуется располагать не далее 150 м от наиболее удаленного места на трибуне.

В открытых бассейнах стационарные буфеты для зрителей располагаются, как правило, в открытом подтрибунном пространстве, на верандах и т.п., а их подсобные - в помещениях.

6.24 Не допускается размещение мест приема пищи и напитков (баров, кафе и т.п.) непосредственно в воде бассейнов аквапарков.

6.25 Помещения для судей и пресс-центра предусматриваются в демонстрационных бассейнах, предназначенных для проведения всесоюзных и международных соревнований.

Помещения для судей включают: кабинет главного судьи - 10-12 м2; комнату судейской коллегии - 16-20 м2; комнату секретариата - 16-20 м2; машинописное бюро - 8-12 м2; комнату множительной техники - 10-12 м2.

Бригаде судей по награждению требуется холл для сбора победителей и призеров, рабочая комната гравера площадью 8 м2, кладовая для хранения призов площадью 6-8 м2.

6.26 Примерный состав пресс-центра, схема функциональных связей и площади помещений определяются в каждом отдельном случае.

В качестве помещений для судей и прессы могут использоваться учебные классы (методические кабинеты), комнаты администрации, тренерские, комнаты ДСО, спортивных школ и другие помещения, не используемые во время соревнований.

6.27 Служебные помещения административного и инженерно-технического персонала, а также бытовые помещения для рабочих определяются исходя из типовых штатных расписаний или по действующему аналогу.

В состав служебных помещений рекомендуется включать:

кабинет директора: при 100 сотрудниках и более площадью 24 м2, при меньшем числе - 12-18 м2;

кабинеты заместителя директора, главного инженера площадью 9-12 м2 каждый;

приемную (общую при кабинетах директора и главного инженера) площадью 8-12 м2;

кабинет начальника (заведующего) отдела (службы) площадью 9-12 м2;

рабочие помещения сотрудников отделов (служб) из расчета 4 м2 на человека;

комнату коменданта (заведующего хозяйством) площадью 8 м2;

зал заседаний площадью 72-96 м2(при 100 сотрудниках и более).

Кабинеты начальников инженерных служб (электротехнической, сантехнической и др.) рекомендуется располагать в удобной связи с соответствующими техническими помещениями.

6.28 Бытовые помещения для рабочих принимаются 50 % штатного числа из расчета 1,5 м2 на одно место. При этом места для хранения рабочей (домашней) одежды в шкафах предусматриваются на 100 % работающих.

Бытовые помещения должны быть раздельными для женщин и мужчин площадью каждого из них не менее 9 м2.

В бытовых помещениях следует предусматривать закрытые душевые кабины с преддушевой для переодевания из расчета одна кабина на 12 одновременно работающих женщин и 15 одновременно работающих мужчин. При числе мест 4 и менее - могут не предусматриваться.

6.29 Состав и площади мастерских по ремонту оборудования и инвентаря, а также для других эксплуатационных нужд определяются заданием на проектирование.

6.30 Помещения для уборочного инвентаря располагаются сосредоточенно, а их площади определяются из расчета 4 м2на каждые 1000 м2 площади пола.

6.31 В крытых бассейнах помещение для пожарного поста принимается площадью 24 м2 при вместимости трибун 2 тыс. мест и более, 15 м2 при вместимости трибун от 1 до 2 тыс. мест. При вместимости трибун менее 1 тыс. мест пожарный пост не предусматривается.

6.32 Помещение охраны общественного порядка из двух смежных комнат по 10-12 м2 предусматривается в демонстрационных бассейнах с трибунами вместимостью более 1,5 тыс. мест. Размещается в удобной связи с вестибюлем для зрителей и трибунами.

6.33 Состав, площадь и высота технических помещений определяются в зависимости от принятого инженерного оснащения бассейна.

6.34 Хлораторную площадью 8-10 м2и склад хлора (6 м2) для хранения не более двух наполненных баллонов вместимостью по 40 кг каждый допускается размещать у наружной стены здания бассейна, выше уровня земли, с отделением от других помещений ограждающими конструкциями из несгораемых материалов с пределом огнестойкости не менее 0,75 ч.

Помещения хлораторной и склада хлора должны иметь непосредственные или через тамбур выходы на улицу. Допускается устройство общего тамбура для выхода из обоих помещений наружу.

Над помещениями для приготовления дезинфицирующих и коагулирующих растворов не допускается располагать санитарные узлы и душевые.

6.35 В бассейнах с несколькими ваннами вестибюль, гардеробные верхней одежды, буфет для отдыха занимающихся, учебные классы (методические кабинеты), а также бытовые помещения для рабочих и служебные помещения административного персонала и технических служб предусматриваются, как правило, общими для всего бассейна.

6.36 В составе зданий оздоровительных бассейнов допускается дополнительно предусматривать помещения досугового и медицинского назначения. Состав и площади этих помещений определяются заданием на проектирование в зависимости от пропускной способности бассейна и местных условий (приложение Б).

7. Конструкции и отделка помещений с влажным и мокрым режимами

7.1 Ограждающие конструкции зданий и помещений с влажным режимом (раздевальные, помещения бассейнов, уборные) и с мокрым режимом (парильные, душевые и ванные помещения) должны быть из водостойких, невлагоемких и биостойких материалов без пустот и замкнутых воздушных прослоек или каналов. Допускается устройство вентилируемых воздушных прослоек и каналов в соответствии с расчетом.

7.2 При проектировании железобетонных и стальных конструкций следует предусматривать защиту их от коррозии в соответствии с требованиями СНиП 2.03.11; при проектировании деревянных конструкций - предусматривать меры, обеспечивающие их долговечность в соответствии с требованиями СНиП II-25.

7.3 Не допускается применение силикатного, пустотелого кирпича, легких и ячеистых бетонов и других влагоемких материалов.

7.4 Внутренние поверхности ограждающих конструкций помещений не должны иметь выступов и мест, где возможно скопление влаги и пыли. Сопряжения стен и колонн с полами помещений с влажным и мокрым режимами должны быть закругленными.

7.5 Ограждающие конструкции помещений с влажным и мокрым режимами в соответствии с расчетом должны иметь с внутренней стороны пароизоляцию или гидроизоляцию из биостойких материалов.

Пароизоляция или гидроизоляция наружных стен должны быть непрерывными по всей поверхности наружных ограждений и заходить на смежные конструкции не менее чем на толщину стены, а также на откосы оконных проемов до наружной поверхности наружного переплета.

7.6 В местах сопряжения наружных стен с покрытиями, перекрытиями и в углах наружных стен расчетное сопротивление пароизоляции паропроницанию на участках шириной, равной двойной толщине ограждения, следует увеличивать на 50 %.

7.7 Над помещениями с мокрым режимом следует предусматривать чердачные крыши с естественной вентиляцией по расчету. Над помещениями с влажным режимом допускаются вентилируемые бесчердачные покрытия. Сечение вентиляционных отверстий следует назначать по расчету, при этом наименьший размер воздушных прослоек или каналов должен быть 50 мм.

7.8 Для утепления покрытий и чердачных перекрытий следует принимать биостойкие и влагостойкие материалы. Пароизоляцию этих конструкций необходимо предусматривать по расчету.

7.9 В междуэтажных перекрытиях и полах первого этажа помещений с мокрым и влажным режимами следует предусматривать гидроизоляцию. Гидроизоляция должна быть заведена на стену, перегородки и колонны выше поверхности пола и за пределы дверных проемов на 300 мм.

Стыки между сборными элементами перекрытий должны иметь дополнительный слой гидроизоляции на 100 мм в каждую сторону.

Места соединений гидроизоляции с трапами и трубопроводами, проходящими через перекрытия и полы первого этажа, должны быть усилены дополнительно двумя слоями стеклоткани на мастике.

7.10 В помещениях с мокрым и влажным режимами стены и перегородки следует облицовывать на всю высоту керамическими, полимерными или стеклянными плитками. Допускается облицовка стен на высоту 1,8 м от уровня пола, а выше облицовки - окраска водостойкими красками. Для отделки помещений следует предусматривать материалы светлых тонов.

7.11 Полы в помещениях с влажным и мокрым режимами должны быть стойкими к воздействию влаги и дезинфицирующих щелочных растворов, а также легко очищаться от загрязнения.

Полы должны иметь уклон 0,01-0,02 в сторону лотков и трапов. Уровень чистого пола в помещениях с мокрым режимом должен быть на 30 мм ниже уровня пола других смежных помещений, поверхность пола должна быть нескользкой.

7.12 Обходные дорожки и борта ванны облицовываются керамическими, бетонными или мозаичными плитами с шероховатой, нескользкой, иногда рифленой поверхностью. Различные по форме (квадратные или многоугольные) плитки могут быть одноцветными или многоцветными. Следует выбирать водостойкие сорта плиток с тем, чтобы предохранить основание от увлажнения и отслаивания.

7.13 Во избежание порезов края бортов ванны должны быть закруглены, а швы между плитами - повсюду тщательно затерты.

Каменные полы - холодные и требуют подогрева циркулирующей горячей водой, что создает комфортные условия пребывания в ванне и предохраняет от простуды. Перспективны покрытия обходных дорожек полимерными рулонными материалами на теплой водостойкой основе.

7.14 Материал покрытия обходной дорожки, скамей, стенок и дна ванн должен быть устойчивым к применяемым для очистки воды и ванны химическим реагентам и легко поддаваться очистке и дезинфекции. Обходная дорожка, стенки и дно ванны должны быть водонепроницаемыми. Внутренняя поверхность стенок и дна ванн выполняется из материалов светлых тонов. Швы между облицовочными плитками тщательно затираются.

7.15 Заполнения оконных и дверных проемов в помещениях с влажным и мокрым режимами следует выполнять из водостойких и биостойких материалов. Допускается предусматривать оконные переплеты из антисептированной древесины хвойных пород, защищенные от увлажнения лакокрасочными или другими покрытиями.

7.16 Для проветривания помещений в оконных переплетах необходимо предусматривать открывающиеся фрамуги или форточки, расположенные в верхней части проемов. Фрамуги и форточки должны быть изолированы от пространства между оконными переплетами коробами.

7.17 Оконные проемы помещений с влажным и мокрым режимами вместо подоконных досок должны иметь откосы с уклоном, облицованные глазурованными или другими водостойкими плитками.

7.18 Строительные конструкции, отделочные материалы и покрытия, контактирующие с водой, а также используемые реагенты должны иметь санитарно-эпидемиологические заключения, выданные в установленном законом порядке.

8. Естественное освещение

8.1 Залы ванн и залы подготовительных занятий должны иметь прямое естественное освещение. Площадь световых проемов определяется в процентах от площади пола зала и составляет:

для залов ванн (включая площадь зеркала воды) при одностороннем боковом освещении - 14-16 %, при двух- и многостороннем боковом освещении - 12-13 %;

для залов подготовительных занятий при одностороннем боковом освещении - 17 %; при двух- и многостороннем боковом освещении - 14 %.

В помещениях и залах ванн для физкультурно-оздоровительных занятий, а также для обучения не умеющих плавать площадь световых проемов в зависимости от местных условий принимается в пределах 12-17 % площади пола всего помещения, включая площадь зеркала воды.

8.2 Световые проемы стен и потолка для обеспечения равномерности освещения рекомендуется проектировать ленточными; при двухстороннем боковом освещении световые проемы рекомендуется располагать равномерно вдоль каждой из стен. При этом площади световых проемов в противоположных стенах могут различаться не более чем вдвое.

Световые проемы не рекомендуется размещать ниже 2 м от уровня обходной дорожки. Пространство внутри витража должно позволять размещение стремянок и людей для мытья стекол.

8.3 Ориентацию световых проемов ванн и залов для подготовительных занятий при одностороннем боковом освещении рекомендуется принимать в районах севернее 48° северной широты на юго-восток. При наличии световых проемов с двух сторон и более стену с наибольшей площадью проемов ориентируют в районах севернее 48° северной широты на юго-восток, а в районах южнее 48° северной широты - на северо-восток.

Ориентация световых проемов помещений и залов ванн для физкультурно-оздоровительных занятий, а также для обучения не умеющих плавать не регламентируется.

8.4 Защитные меры от слепящего действия солнечных лучей следует предусматривать в случаях, если световые проемы размещаются напротив стационарной трибуны для зрителей или напротив устройств для прыжков в воду.

8.5 Площадь световых проемов во вспомогательных помещениях спортивных и физкультурно-оздоровительных бассейнов, в которых предусматривается естественное освещение, рекомендуется принимать по таблице 8.1.

Таблица 8.1

Наименование помещений Площадь световых проемов, % площади пола
Помещения для медицинского обслуживания <*> 20
Учебный класс (методический кабинет) 17
Мастерские 14
Служебные помещения для административного и инженерно-технического персонала, помещение пожарного поста, склады спортивного оборудования и мебели <**>, хозяйственные кладовые <**> 10-12

<*> Комната дежурной медицинской сестры при крытых ваннах может освещаться вторым светом.

<**> В этих помещениях может быть искусственное освещение, освещение вторым светом не допускается.

8.6 В помещениях, не приведенных в таблице 8.1, естественное освещение может не предусматриваться, а при его устройстве площадь световых проемов должна быть в пределах 10- 12 % площади пола.

9. Акустика

9.1 В помещениях ванн и подготовительных занятий время реверберации на частотах 500-2000 Гц следует принимать в пределах полосы, показанной на графике (рисунок 9.1). На частотах ниже 500 Гц время реверберации допускается увеличивать на 15-20 %. Для залов ванн с местами для зрителей график приведен при 75 %-ном заполнении зрительских мест.

Допустимые уровни звукового давления и эквивалентные уровни звука в дБА должны приниматься согласно таблице 9.1.

Уровень звука в залах при проведении занятий и во время соревнований допускается до 82 дБА и 110 дБА соответственно.

Расчет акустического благоустройства следует вести по СНиП 23-03.

9.2 Для предотвращения влияния внешних источников шума помещения для отдыха занимающихся, учебные классы (методические кабинеты), помещения для медицинского обслуживания, дикторские и комментаторские кабины рекомендуется располагать на удалении от вентиляционных камер, насосных и других источников шума. Стены и потолки дикторских и комментаторских кабин должны отделываться акустическими материалами.

9.3 В залах ванн бассейнов желательно устройство звукопоглощающих потолков.

Подвесные акустические (звукопоглощающие) потолки можно устраивать по нижнему поясу ферм балок или на относе не менее 10 см от конструкции покрытия.

Рисунок 9.1 - График времени реверберации

Таблица 9.1

Помещения Среднегеометрическая частота октавных полос, Гц Уровень звука, дБА
63 125 250 500 1000 2000 4000 8000
Уровень звукового давления, дБ
Залы ванн при использовании для синхронного плавания (с музыкальным сопровождением) 71 61 54 49 45 42 40 38 50
Залы ванн и залы подготовительных занятий 79 70 63 58 55 52 50 49 60

Звукопоглощающие материалы, рекомендуемые для применения в качестве акустических облицовок в залах ванн бассейнов, приведены в таблице 9.2.

Таблица 9.2

Наименование и марка материалов Плотность, кг/м3 Толщина слоя, мм
Супертонкое стекловолокно щелочное 15-20 50
Ультратонкое и супертонкое щелочное стекловолокно 8-10 50
Супертонкое штапельное базальтовое полотно 20-25 50
Холст СТВ 8-10 50

При проектировании зальных помещений с выпуклыми (купольными, сводчатыми, арочными) покрытиями для избежания концентраций звуковой энергии и фокусировки звука рекомендуется, чтобы радиус кривизны не менее чем в два раза был больше высоты помещения.

10. Водопровод и канализация

10.1 Спортивные и физкультурно-оздоровительные бассейны должны оборудоваться системами хозяйственно-питьевого и противопожарного водопровода и канализации, присоединяемыми к наружным сетям населенного пункта (СНиП 2.04.02).

10.2 При отсутствии в населенном пункте централизованного водоснабжения следует предусматривать устройство собственного водозаборного узла или использовать местные источники, вода в которых должна удовлетворять требованиям СанПиН 2.1.4.1074.

10.3 В сезонных бассейнах периодического наполнения при недостаточном дебите местных водопроводов для заполнения ванн бассейнов допускается использовать воду открытых водоемов, разрешенных для купания, при условии ежедневной смены воды. При заполнении ванн из таких источников возможно использование фильтровальных установок бассейна со скоростью фильтрации не более 9 м/ч.

10.4 Для бассейнов с морской водой выбор места водозабора должен проводиться с учетом санитарной ситуации и качества воды на участках моря, которые находятся вне влияния источников загрязнения, - выпусков ливневых и сточных вод, выносов рек, загрязнений от портов и причалов, пляжей и т.п. При этом оголовок водозабора должен быть на высоте не менее 2 м от донной поверхности с подачей морской воды из средних слоев.

10.5 Качество воды, поступающей в ванны спортивных и физкультурно-оздоровительных бассейнов, должно удовлетворять требованиям таблицы 3 СанПиН 2.1.2.1188, а качество воды в бассейнах аквапарков должно соответствовать данным приложения 2 СанПиН 2.1.2.1331.

Водные аттракционы всех типов должны снабжаться бассейновой или подготовленной водой.

10.6 Допустимая нагрузка и пропускная способность отдельных бассейнов (аквапарка в целом) должны определяться исходя из требований санитарных норм к площади водной поверхности на 1 посетителя (таблица 10.1).

Таблица 10.1

Виды бассейнов Площадь зеркала воды ванны, м2 Расчетная площадь водной поверхности, м2/чел., не менее
Спортивные До 1000 8,0
1000 и более 10,0
Оздоровительные До 400 5,0
Более 400 8,0
Детские учебные:
до 7 лет До 60 3,0
7 лет и старше -"- 100 4,0
Охлаждающие -"- 10 2,0
Ванны бассейнов аквапарков:
гидромассажные бассейны типа "джакузи" с сидячими местами 0,8
и не менее 0,4 м3/чел.
для окунаний 1,5
детские, глубиной до 60 см 2,0
развлекательные 2,5
для плавания 4,5

10.7 Устройство внутреннего хозяйственно-питьевого и противопожарного водопроводов и нормы расхода воды в сутки и часы максимального водопотребления, а также устройство канализации должны отвечать требованиям СНиП 2.04.01 с дополнительным учетом расходов воды потребителями согласно таблице 10.2.

При подсчете суточного и максимального часового расхода следует учитывать число и продолжительность смен.

Таблица 10.2

Наименование потребителя Норма расхода воды, л
в сутки наибольшего водопотребления в час наибольшего водопотребления
общее горячее общее горячее
Тренеры и инструкторы 100 60 9 5
Занимающиеся в бассейнах 100 60 100 <*> 60 <*>
Обучающиеся плаванию дети до 14 лет 60 35 60 <*> 35 <*>
Проходной ножной душ (1 душ) - - 720 360
Мытье обходных дорожек, м2 6 3 - -
Мытье трибун открытых бассейнов, м2 1 - - -
Промывка фильтров, м2 площади фильтрации 4000 - - -
Пополнение (подпитка) ванн бассейнов при сбросе перелива в канализацию 10 % объема воды в ванне Равномерно в течение рабочего времени
Пополнение (подпитка) ванн бассейнов при направлении перелива на очистку:
ванны объемом до 600 м3 5 % объема воды в ванне Тоже
-"- >> 600 м3 и более Не менее 50 л/чел. -"-

<*> Показан расход воды в смену.

10.8 При подсчете максимальных часовых и секундных расходов воды занимающимися допускается принимать следующие укрупненные показатели, учитывающие технологию водопотребления и продолжительность смен:

максимальные часовые расходы воды занимающимися (определяются нормами расхода в час, умноженными на число занимающихся в смену и деленными на продолжительность смены, если она меньше часа);

максимальное секундное потребление занимающихся исходя из одновременной работы всех сеток в душевых при раздевальнях;

максимальный секундный сброс воды в канализацию (принимается равным секундному водопотреблению при его величине более 8 л/с, а при меньшем водопотреблении к нему прибавляется 1,6 л/с).

10.9 Потребление воды на мытье трибун, обходных дорожек, а также персоналом и в буфетах учитывается отдельно. Расчет водопотребления в буфетах может быть выполнен как по числу отпускаемых блюд, так и по числу установленного технологического оборудования (моек).

Проходные ножные души следует предусматривать с непрерывным потоком воды.

10.10 Горячее водоснабжение следует предусматривать для обеспечения хозяйственно-бытовых и технологических нужд. Горячая вода для хозяйственно-бытовых нужд должна соответствовать требованиям СП 4723.

10.11 Расходы горячей воды следует определять согласно требованиям СНиП 2.04.01.

Отдельно следует учитывать расходы горячей воды на следующие нужды:

проходной ножной душ перед входом на обходную дорожку ванн с расходом 720 л/ч и температурой 30-35 °С (продолжительность работы - 30 мин в смену);

мытье обходных дорожек и душевых с расходом 6 л/м2 и температурой 30 °С (два раза в сутки).

Для сокращения потребления теплоты на нужды горячего водоснабжения объектов, расположенных в районах с большой солнечной активностью, рекомендуется предусматривать устройство солнечных аккумуляторов, рассчитывая их на максимальный расход горячей воды.

10.12 Подводку горячей воды следует предусматривать к душевым, кабинету врача, комнатам медицинской сестры и для оказания первой медицинской помощи, массажным, бытовым помещениям для рабочих, раздевальням для занимающихся, комнатам инструкторов и тренеров, буфетам, лаборатории анализа воды, помещениям для уборочного инвентаря, а также к другим помещениям в соответствии с технологическим заданием. На технологические нужды горячая вода должна подаваться для заполнения и подогрева воды ванн бассейнов, а также для эксплуатации буфетов.

10.13 В санитарных узлах и душевых с числом приборов более двух (унитазов, писсуаров, душевых сеток) и на обходных дорожках ванн следует предусматривать установку поливочных кранов диаметром 20 мм с подводкой холодной и горячей воды. Поливочные краны открытых ванн следует устанавливать в отапливаемых помещениях.

10.14 У ванн бассейнов допускается устраивать питьевые фонтанчики для занимающихся, устанавливаемые в пределах обходной дорожки.

10.15 Расчетную температуру воды в ваннах бассейнов следует принимать по таблице 10.3.

Таблица 10.3

Назначение ванн бассейнов Расчетная температура воды в ваннах, °С
Спортивные <*> 24-28
Оздоровительные <*> 26-29
Детские учебные:
до 7 лет 30-32
7 лет и старше 29-30
Охлаждающие До 12
Гидроаэромассажные бассейны типа "джакузи" с сидячими местами 35-39
Бассейны для окунаний (при саунах) До 15
Бассейны развлекательные в аквапарках 28-30
Прыжки в воду 28
Обучение не умеющих плавать 29

<*> В бассейнах с трибунами для зрителей следует во время проведения соревнований предусматривать снижение температуры воды в ванне по нижнему пределу.

Примечания

1. Температура воды, подаваемой в ванны, не должна превышать 35 °С. В ваннах при банях сухого жара температура воды, подаваемой через смеситель, принимается в пределах до 20 °С.

2. Температура воды в открытых бассейнах должна поддерживаться летом на уровне 27-28 °С.

10.16 Плавательные бассейны должны оборудоваться системами, обеспечивающими водообмен в ваннах бассейна. Пример организации водообмена приведен на рисунке 10.1.

По характеру водообмена допускаются к эксплуатации следующие типы бассейнов:

рециркуляционного (оборотного) типа;

проточного типа;

с периодической сменой воды.

10.17 Водоподготовка для бассейнов должна соответствовать условиям водообмена. Выбор метода водообмена определяется технико-экономическим расчетом. Система водоподготовки должна обеспечивать автоматическое дозирование реагентов. Систему водообмена непрерывным потоком рекомендуется применять, как правило, в ваннах с объемом воды не более 70 м3.

10.18 Водообмен в ваннах бассейнов следует предусматривать с рециркуляцией воды (многократное использование с очисткой, дезинфекцией и одновременным пополнением убыли свежей водопроводной водой в пределах до 10 % объема воды в ванне) или с непрерывным протоком свежей воды (разовое использование с дезинфекцией). При этом продолжительность полной смены воды (водообмена) в ваннах должна приниматься в часах, не более для бассейнов:

спортивных - 8,0;

оздоровительных - 6,0;

детских учебных:

до 7 лет - 0,5;

7 лет и старше - 2,0.

Указанное время полного водообмена не относится к бассейнам проточного типа с пресной водой.

При недостаточных дебитах источника воды и соответствующем технико-экономическом обосновании допускается увеличение времени наполнения ванн, оборудованных системами рециркуляции, до 48 ч. Система рециркуляции при этом должна работать постоянно.

10.19 Подача воды в ванны бассейнов может осуществляться через отверстия в стенках и дне ванн, расположение которых должно обеспечивать равномерное распределение ее по всему объему для поддержания постоянства ее температуры, а также равномерное распределение дезинфектанта.

Для подачи воды в ванны бассейнов допускается использование перфорированных труб, укладываемых в теле уступа для отдыха под облицовкой (без изменения отметки верха уступа).

Скорость выхода воды из подающих отверстий следует принимать 2-3 м/с.

10.20 Для бассейнов проточного типа и со сменой воды допускается использование исходной воды, поступающей из централизованной системы питьевого водоснабжения, без дополнительного обеззараживания при условии, что качество исходной воды по микробиологическим показателям соответствует требованиям приложения 2 СанПиН 2.1.2.1331.

10.21 Очистку технологической воды ванн бассейнов следует предусматривать фильтрами с предварительной коагуляцией в соответствии с требованиями СНиП 2.04.01 и СанПиН 2.1.2.1188.

Для очистки и обеззараживания воды должны использоваться только технологии, на которые имеются санитарно-эпидемиологические заключения.

Перед очистными сооружениями следует устанавливать сетчатые фильтры (волосоуловители).

Водосточные сооружения в бассейнах следует предусматривать раздельно для каждой ванны или для группы ванн одинакового назначения и возраста занимающихся в них.

10.22 Сооружения для очистки, обеззараживания и распределения воды могут располагаться в основном или отдельно стоящем здании. Последовательное включение в единую систему водоподготовки двух ванн или более не допускается.

Озонаторная установка должна иметь дегазатор для нейтрализации непрореагировавшего озона, выбрасываемого в атмосферу.

10.23 При расчете оборудования для создания в воде необходимой концентрации активного хлора (на уровне до 1 мг/л) рекомендуется исходить из следующих предварительных доз вводимых реагентов (в расчете на количество воды, подаваемой в ванны):

обеззараживание гипохлоритами - 1 мг/л (в пересчете на активный хлор);

обеззараживание дибромантином - 2 мг/л.

Склады для хранения реагентов в виде порошкообразных веществ должны рассчитываться на месячное потребление.

10.24 На технологических трубопроводах в бассейнах следует предусматривать установку:

расходомеров, показывающих количество воды, подаваемой в ванну;

расходомеров, показывающих количество свежей водопроводной воды, поступающей в рециркуляционную систему;

контрольных кранов для отбора проб воды для исследования по этапам водоподготовки:

поступающей - в бассейнах всех типов;

до и после фильтров - в бассейнах рециркулирующего типа;

после обеззараживания перед подачей воды в ванну.

Необходимо применять приборы, обеспечивающие автоматическую дозировку реагентов при любых способах водоподготовки.

10.25 Для насосно-фильтровальных установок, располагаемых ниже поверхности воды в ваннах, на технологических трубопроводах, подающих осветленную воду, следует устанавливать обратные клапаны, исключающие слив воды из ванн в технические помещения при разгерметизации фланцевых соединений у арматуры и оборудования.

10.26 Во всех ваннах, оснащенных устройствами для прыжков, на поверхности воды под ними следует предусматривать создание искусственной ряби.

Для создания ряби предусматривается обычно подача воздуха из перфорированных труб, укладываемых по дну или в теле дна ванн. Рекомендуется дублирование подачи воздуха для создания ряби устройством струйной подачи воды (из контура рециркуляции) на поверхность воды.

10.27 Отвод воды из ванн бассейнов на рециркуляцию может предусматриваться как через переливные желоба, так и через отверстия в дне, располагаемые в глубокой и мелкой частях ванн. Расчетную скорость входа воды в отводящие отверстия, перекрытые решетками, следует принимать 0,4 - 0,5 м/с.

Минимальное сечение переливного желоба S, проектируемого без уклона, определяется по формулам, м2:

во всех ваннах, кроме ванн для обучения не умеющих плавать:

в ваннах для обучения не умеющих плавать:

где N - число одновременно занимающихся;

L - длина переливного желоба, м;

Q - циркуляционный расход, м3/ч;

n - число сливных отверстий;

k - коэффициент, равный 1 при одностороннем подходе воды к сливному отверстию; k = 2 при двухстороннем подходе к сливным отверстиям.

При заборе воды из переливных желобов на рециркуляцию допускается, чтобы ее объем в открытых бассейнах составлял до 70 %, а в крытых - до 50 % общего рециркуляционного расхода.

Для хранения воды, периодически вытесняемой занимающимися и ее волновым переливом, устанавливается бак-аккумулятор. При этой схеме исключается образование поверхностной пленки загрязнений, а подача подпиточной воды осуществляется равномерно в течение суток.

10.28 Для сокращения общего расхода воды на технологические нужды в случае установки бака-аккумулятора избыток подпиточной воды (после потерь испарением, уноса пловцами и разбрызгивания) допускается использовать на нужды других технологических потребителей (полив, уборка помещений и другие технологические нужды).

Вода из рециркуляционного контура, прошедшая обеззараживание, коагуляцию и осветление, может использоваться для промывки фильтров, а после подогрева - для мытья обходных дорожек и полов душевых при ваннах, а также в проходных ножных душах. При этом объем подпитки равен сумме расходов всеми потребителями, но не менее 5 % объема для средних ванн (до 600 м3) и не менее чем 50 л на каждого занимающегося в сутки для ванн объемом более 600 м3.

10.29 Потери воды на испарение, унос и разбрызгивание в крытых ваннах Q могут определяться укрупнено по формулам:

во всех ваннах, кроме ванн для обучения не умеющих плавать:

Q = 0,0064F, м3/сут; q_ч = 0,0003F, м3/ч;

в ваннах для обучения не умеющих плавать:

Q = 0,0083F, м3/сут; q_ч = 0,0004F, м3/ч,

где F - площадь зеркала воды, м2.

Расход воды Q_1, м3/сут, на промывку фильтров определяется по формуле

Q_1 = 4,2F_ф n,

где F_ф - площадь фильтра, м2;

n - число промываемых фильтров в сутки.

Расход воды Q_2, м3/сут, на мытье обходных дорожек и душевых при ванне определяется по формуле (две уборки в сутки):

Q_2 = 0,012F_д n,

где F_д - площадь убираемых помещений, м2.

10.30 Для удаления загрязненного верхнего слоя воды в стенках ванн должны предусматриваться переливные желоба (пенные корытца) или другие технические переливные устройства (скиммеры).

Сброс воды из переливных желобов ванн (если он не осуществляется на рециркуляцию), от проходных ножных душей, с обходных дорожек и от мытья стенок и дна ванн бассейнов следует предусматривать в бытовую канализацию.

Вода от питьевых фонтанчиков или питьевых автоматов, от опорожнения ванн, от промывки фильтров должна удаляться в дождевую канализацию.

В отдельных случаях по согласованию с местными органами водопроводно-канализационного хозяйства допускается сброс воды в бытовую канализацию. При сбросе воды от промывки фильтров в бытовую канализацию в приемном колодце надлежит устраивать гидрозатвор высотой 400 мм.

В неканализированных районах в озонных бассейнах следует предусматривать местные очистные сооружения, состав которых и степень очистки должны быть согласованы с местными органами санитарного надзора. При сбросе сточных вод в водный объект следует соблюдать требования СанПиН 2.1.5.980 и СП 2.1.5.1059.

10.31 В ваннах со стенками, не выступающими над уровнем воды, для разделения воды от перелива через стенку ванны и стояков грязной воды от мытья обходной дорожки рекомендуется профиль борта ванны, приведенный на рисунке 4.3, а.

10.32 Продолжительность стока воды при опорожнении ванн бассейнов объемом 600 м3 и менее следует принимать не св. 12 ч, а при объеме воды более 600 м3 - не св. 24 ч.

При незначительной пропускной способности водосточных сетей и сооружений продолжительность опорожнения ванн объемом 600 м3 и менее может быть увеличена до 24 ч.

Необходимость опорожнения ванн определяется данными химико-биологических анализов и заключением органов ГСЭН.

10.33 Отвод воды из ванн плавательных бассейнов на рециркуляцию может осуществляться как через переливные технические устройства, так и через отверстия в дне, располагаемые в глубокой и мелкой частях ванн (см. рисунок 10.1). Расчетную скорость движения воды в отводящих отверстиях, перекрытых решетками, следует принимать 0,4-0,5 м/с.

10.34 Присоединение канализационных трубопроводов к ваннам бассейнов должно исключать возможность обратного попадания стока и запаха из канализации в ванны.

10.35 Выпуски, отводящие воду из переливных желобов ванн и проходных ножных душей бассейнов, должны иметь воздушные разрывы перед гидравлическим затвором.

10.36 В санитарных узлах для занимающихся и зрителей следует устанавливать напольные керамические унитазы или напольные чаши со смывным краном.

10.37 На обходных дорожках крытых и открытых ванн, а также в санитарных узлах и душевых для занимающихся, в которых предусмотрена установка поливочных кранов, для отвода стоков устраивают трапы диаметром 100 мм. Число трапов принимается в душевых и уборных из расчета один трап на 3 прибора.

В душевых при комнатах для инструкторского и тренерского состава, а также при бытовых помещениях для рабочих устанавливают душевые поддоны.

11. Отопление и вентиляция

11.1 Системы отопления, вентиляции и кондиционирования воздуха должны обеспечивать параметры микроклимата и воздухообмена помещений плавательных бассейнов, указанные в таблице 11.1.

Таблица 11.1

Помещения Расчетная температура воздуха, °С Кратность обмена воздуха в 1 ч
приток вытяжка
1. Залы ванн бассейнов (в том числе для оздоровительного плавания и обучения не умеющих плавать) с местами для зрителей или без них <*> На 1-2 °С выше температуры воды в ванне, приведенной в таблице 10.3 По расчету, но не менее 80 м3/ч наружного воздуха на одного занимающегося и не менее 20 м3/ч на одного зрителя
2. Залы для подготовительных занятий 18 По расчету, но не менее 80 м3/ч на одного занимающегося
3. Вестибюли для занимающихся 20 2 -
4. Гардеробная верхней одежды для занимающихся и зрителей (обособленная от вестибюля) 16 - 2
5. Раздевальные (в том числе при массажных и банях сухого жара) 25 По балансу с учетом душевых 2 (из душевых)
6. Душевые 25 5 10
7. Массажные 22 4 5
8. Камера бани сухого жара 120 <**> - 5 (периодического действия при отсутствии людей)
9. Учебные классы, методические кабинеты, комнаты инструкторского и тренерского состава, судей, прессы, административного и инженерно-технического состава 18 3 2
10. Помещения для отдыха занимающихся 22 3 3
11. Санитарные узлы:
общего пользования (для зрителей) 16 - 100 м3/ч на 1 унитаз или писсуар
для занимающихся (при раздевальных) 20 - 50 м3/ч на 1 унитаз или писсуар
индивидуального пользования 16 - 25 м3/ч на 1 унитаз
12. Умывальники при санитарных узлах общего пользования 16 - За счет санитарных узлов
13. Инвентарные при залах подготовительных занятий 15 - 1
14. Бытовые помещения для рабочих, комнаты охраны общественного порядка, лаборатории анализа воды 18 2 3 (в лаборатории местные отсосы по заданию на проектирование)
15. Мастерские, насосно-фильтровальные 16 2 3 (в мастерских местные отсосы по заданию на проектирование)
16. Кладовые и складские помещения:
с постоянным пребыванием обслуживающего персонала 16 - 2
с кратковременным пребыванием обслуживающего персонала 10 - 1
17. Хлораторные 16 10 12
18. Хлораторные с применением электролизных установок напорного типа (с электролизом циркуляционной воды) 16 2 2
19. Склады:
реагентов, хозяйственных химикатов и красок 10 - 2
хлора 5 10 12
20. Помещение для приготовления дезинфицирующих растворов (в том числе дибромантина) 16 3 3
21. Помещения для сушки спортивной одежды 22 2 2

<*> Решение системы воздухообмена в залах ванн бассейнов должно исключать образование застойных зон при преобладании вытяжки над притоком в объеме не более 0,5-кратного обмена. Расчетная температура в зоне нахождения зрителей может быть снижена до 20 °С.

<**> Обеспечивается технологическим оборудованием заводского изготовления от самостоятельного источника энергии.

Примечания

1. В помещениях, не указанных в таблице, температура воздуха и кратность воздухообмена принимаются по требованиям соответствующих норм.

2. Расчетное число зрителей в зале при проектировании систем вентиляции следует принимать исходя из 100 % заполнения зрительских мест.

3. Расчетная температура воздуха приведена для рабочего времени в холодный период года; в теплый период года температура в помещениях не должна выходить за пределы допустимой в соответствии с требованиями СНиП 41-01.

11.2 Подвижность воздуха в зонах нахождения занимающихся не должна превышать:

0,2 м/с - в залах ванн бассейнов (в том числе для оздоровительного плавания и обучения не умеющих плавать);

0,5 м/с - в залах для подготовительных занятий.

11.3 В залах ванн бассейнов с местами для зрителей расчет воздухообмена следует производить для двух режимов - со зрителями и без них.

11.4 Относительную влажность воздуха рекомендуется принимать:

50-65 % - в залах ванн бассейнов;

30-60 % - в залах для подготовительных занятий.

Нижние пределы относительной влажности приведены для холодного периода года при температурах, указанных в таблице 11.1.

При теплотехническом расчете ограждающих конструкций залов ванн бассейнов относительную влажность воздуха следует принимать 67 %, а температуру - плюс 27 °С.

При применении клеедеревянных конструкций в зоне их расположения должна круглосуточно и круглогодично обеспечиваться относительная влажность не менее 45 %, а температура не должна превышать плюс 35 °С.

11.5 Нагревательные приборы и трубопроводы в залах ванн бассейнов (в том числе для оздоровительного плавания и обучения не умеющих плавать) и залах для подготовительных занятий не должны выступать из плоскости стен на высоту до 2 м от пола. Кроме того, во всех помещениях, где пребывают люди с обнаженным телом, размещение нагревательных приборов и трубопроводов отопления должно исключать возможность получения ожогов. В помещениях с влажным и мокрым режимами устройство ниш в наружных стенах для размещения нагревательных приборов не допускается.

В случаях когда элементы вентиляционных систем (воздуховоды, решетки), а также нагревательные приборы и трубопроводы выступают из плоскости стен или вынужденно устанавливаются на высоте до 2 м от пола, они закрываются щитами или иными средствами, исключающими ожоги и другие возможные травмы занимающихся. Конструкция защитных устройств не должна снижать функциональные качества отопительно-вентиляционных систем.

11.6 Обходные дорожки и стационарные скамьи бассейнов, а также полы водной зоны аквапарка должны обогреваться.

11.7 Самостоятельные системы приточной и вытяжной вентиляции следует предусматривать в соответствии с СанПиН 2.1.2.1188 для:

залов ванн бассейнов (в том числе для оздоровительного плавания и обучения не умеющих плавать);

залов для подготовительных занятий;

для занимающихся, массажных и помещений для отдыха занимающихся;

для административного и инженерно-технического персонала, бытовых помещений для рабочих;

хлораторных и складов хлора;

технических помещений (насосно-фильтровальных, бойлерных и др.).

Пульты для включения систем вентиляции, обслуживающих хлораторную и озонаторную, должны быть вне этих помещений.

Для залов ванн рекомендуется подбирать вентиляционные установки из расчета их работы в двух режимах: самостоятельные приточные и вытяжные установки, предназначенные только для нерабочего периода бассейнов, и дополнительные установки, которые совместно с первыми должны в период работы бассейнов обеспечить расчетный воздухообмен.

11.8 Удаление воздуха из залов ванн бассейнов следует, как правило, предусматривать вытяжными системами с механическим побуждением, в залах подготовительных занятий допускаются системы с естественным побуждением.

Для удаления воздуха из залов подготовительных занятий с вытяжными системами с естественным побуждением рекомендуется использовать обычные вентиляционные шахты, устанавливаемые непосредственно на кровле зала. Вытяжные шахты оборудуются утепленными клапанами с электроподогревом и дистанционным управлением, а также поддонами для сбора и удаления конденсата. К клапанам и поддонам обеспечивается удобный доступ обслуживающего персонала. Размеры внутреннего сечения шахт определяют по расчету с учетом гравитационного и ветрового напора и давления, создаваемого приточной вентиляцией.

11.9 Систему вытяжной вентиляции из санитарных узлов допускается объединять с системой вытяжной вентиляции из душевых. Компенсация вытяжки из помещений душевых осуществляется за счет дополнительного притока воздуха из помещений раздевален, куда предусматривается организованная подача воздуха в пятикратном объеме душевых, но не менее двукратного объема раздевальни. Удаление воздуха из раздевален предусматривается в двукратном объеме через помещения душевых. В случаях когда количество воздуха, удаляемого из душевых (с учетом помещений раздевален), превышает десятикратный воздухообмен, разница объемов воздуха удаляется непосредственно из помещения раздевален.

11.10 Если раздевальни для занимающихся (с душевыми при них) объединены с другими помещениями общей системой приточной вентиляции с расчетной температурой приточного воздуха ниже 25 °С, то для них предусматривают отдельную ветвь воздуховодов, на которой устанавливают зональный подогреватель. Если же температура приточного воздуха в системе равна 25 °С (т.е. расчетной для раздевальни), то на воздуховоде в раздевальню зональный подогреватель не предусматривают, а для остальных помещений, требующих более низкой температуры воздуха в холодный период года, расчетную величину теплопотерь на отопление этих помещений уменьшают на величину перегрева приточного воздуха.

11.11 В залах ванн рекомендуются системы воздушного отопления, совмещенные с системами вентиляции воздуха. В таких системах допускается применение рециркуляции воздуха. При этом объем подаваемого наружного воздуха не должен быть менее указанного в таблице 11.1.

В бассейнах могут применять комбинированные системы центрального водяного и воздушного отопления.

11.12 Во избежание образования холодных потоков воздуха от окон приборы отопления следует располагать под ними и у наружных стен.

11.13 При температуре наружного воздуха зимой ниже -20 °С в тамбурах основных входов плавательных бассейнов рекомендуется устраивать воздушно-тепловые завесы. Воздушно-тепловую завесу допускается заменять тамбуром с тройными последовательно расположенными дверями.

11.14 Вентиляцию помещений хлораторных и складов хлора следует предусматривать периодического действия. Удаление воздуха осуществляется из двух зон: верхней в объеме 1/3 и нижней - 2/3 общего объема вытяжки. Вентиляционные агрегаты необходимо размещать вне этих помещений. Управление агрегатами осуществляют дистанционно от пусковых устройств, устанавливаемых непосредственно у входа в помещения.

11.15 Помещения приточных систем рекомендуется размещать в подвальных или цокольных этажах (на грунте) так, чтобы протяженность трасс воздуховодов была минимальной, в исключительных случаях, когда не представляется возможным разместить эти помещения в нижних этажах, допускается их размещение вне пределов основного здания (в том числе в отдельном или пристроенном помещении или в верхних этажах). В первом случае предусматривают переходы, соединяющие технические помещения с основным объемом здания (с прокладкой в них каналов), во втором - предусматривают мероприятия по вибро-, звуко- и гидроизоляции, а также устройство эксплуатационных проходов и проемов для демонтажа и замены оборудования.

В помещениях, предназначенных для оборудования приточных систем, допускается устройство вводов теплоносителя, бойлерных и водяных насосных.

12. Автоматическое и звуковое оборудование ванн бассейнов

12.1 На установленное автоматическое и полуавтоматическое оборудование, которое фиксирует время каждого пловца и определяет его место в заплыве, не должны влиять старты, поворотные толчки пловцов или работа системы сброса воды.

12.2 Применяемое оборудование должно:

приводиться в действие стартером;

по возможности, не иметь открытых проводов, выходящих на обходную дорожку;

иметь возможность показывать на дисплее всю записанную информацию по каждой дорожке и по занимаемому месту;

обеспечивать легко читаемый цифровой формат времени, показываемого пловцом.

12.3 Стартовые устройства должны соответствовать необходимым требованиям.

Стартер должен иметь микрофон для устных команд. Если используется пистолет, он должен быть снабжен датчиком. Как микрофон, так и датчик должны быть соединены с громкоговорителями возле каждой стартовой тумбочки для того, чтобы и команды стартера, и стартовый сигнал были слышны одинаково громко и одновременно каждому пловцу.

12.4 Сенсорные панели для автоматического оборудования должны иметь минимальные размеры: 2,4 м в ширину и 0,9 м в высоту, толщина должна быть 0,01 м ±0,002 м. Сенсорные панели должны устанавливаться в фиксированном положении по центру дорожки. Панели могут быть переносными, что позволит оператору убирать их, когда не проводятся соревнования. Они должны устанавливаться на 0,3 м выше и на 0,6 м ниже поверхности воды.

12.5 Оборудование на каждой дорожке должно подсоединяться независимо, так чтобы можно было осуществлять индивидуальный контроль. Поверхность панелей должна быть яркого цвета и иметь осевую маркировку, установленную для торцевых стенок.

Чувствительность панелей должна быть такой, чтобы они не смогли отреагировать на водное завихрение, но активировались бы от легкого касания рукой. Панели должны быть чувствительны по верхнему краю.

Разметка панелей должна соответствовать и переходить на существующую разметку бассейна. Периметр и края панели выделяются черной каемкой шириной 0,025 м.

Панели должны быть изолированы от поражения электрическим током и не должны иметь острые края.

12.6 В комплект автоматического оборудования должны входить, как минимум, следующие устройства:

принтер для всей информации, получаемой в ходе заплыва;

табло для зрителей;

устройство хронометража с точностью 1/100 секунды. При наличии установленных сверху видеокамер их можно рассматривать как дополнительное оборудование к устройству хронометража;

автоматический портативный счетчик;

считывающее устройство;

компьютерные сводки;

исправление ошибочных касаний;

возможность функционирования на автоматически заменяемых батарейках.

В случае полуавтоматического оборудования финиш записывается нажатием кнопки хронометристами в момент финишного касания пловца.

12.7 Полуавтоматическое оборудование может использоваться как дублирующее для автоматического оборудования на соревнованиях, проводимых Федерацией плавания, когда используются три кнопки на каждую дорожку и каждой кнопкой управляет отдельный официальный сотрудник (в этом случае прочие судьи на финише не потребуются). Для Олимпийских игр и Чемпионатов мира необходимы также следующие устройства:

электронное зрительское табло должно содержать не менее 12 строк по 32 знака, в каждой из которых могут показываться и буквы, и цифры, причем каждый знак должен иметь высоту минимум 200 мм, каждая строка должна перемещаться вверх и вниз с эффектом мерцания, а каждое табло должно быть программируемым и с возможностью показа анимации;

оборудованный воздушным кондиционированием центр управления, размерами не менее 6 x 3 м, на расстоянии 3-5 м от торцевой стенки, причем в течение всего времени заплыва от него должен открываться ничем не заслоняемый вид на торцевую стенку, а также во время соревнований судья должен иметь легкий доступ в центр управления, при этом в любое другое время вход в центр должен быть надежно закрыт;

система видеозаписи с таймером.

12.8 Звуковое оборудование залов ванн бассейнов включает как минимум:

систему усиления и микширования;

устройства для записи на кассету и воспроизведения;

микрофоны высокого качества и микрофонные станции для объявлений и церемоний;

высококачественные громкоговорители, число и размещение которых должно обеспечить равномерность и четкость звучания как в зоне соревнований, так и на зрительских трибунах;

ультразвуковые громкоговорители для обеспечения равномерности и четкости звука под водой, перекрывающие все посторонние шумы и имеющие уровень звука, приемлемый для участников соревнований;

для ультразвуковых громкоговорителей с металлическими оболочками применяются системы изоляции и подбора импедансов;

измеритель силы звука (в децибелах) для управления громкостью музыки;

соединительные шнуры для соответствующего соединения между собой элементов оборудования, а также линии подключения громкоговорителей с учетом их размещения для получения оптимального звучания;

систему плавких предохранителей для защиты громкоговорителей и другого оборудования;

линии заземления для всего оборудования;

специальные материалы, минимизирующие риск ранения людей или повреждения оборудования при наступании на провода или их обрывании;

секундомер;

инструменты и измерительные приборы, необходимые для отдельных монтажных работ и экстренного ремонта;

системы связи между официальными лицами и пультом звукорежиссера;

систему непрерывного мониторинга звука под водой.

13. Электроснабжение и электротехнические устройства

13.1 Искусственное освещение предусматривается во всех помещениях и на участках территории бассейнов, предназначаемых для прохода людей и движения транспорта, а также в открытых ваннах круглогодичного действия.

13.2 Уровень освещенности ванн бассейнов в зависимости от назначения по видам спорта принимается по таблице 13.1. Уровень освещенности территории бассейнов принимается по СНиП 23-05.

13.3 В крытых демонстрационных бассейнах с трибунами св. 3000 зрителей, а также в других случаях, когда предусматривают передачу цветного телевидения, осветительные установки должны обеспечивать уровень освещенности согласно таблице 13.2.

Таблица 13.1

Вид спорта, для которого предназначена ванна Наименьшая освещенность <*>, лк Плоскость или зона, в которой нормируется освещенность
Плавание (спортивное и оздоровительное), обучение не умеющих плавать 150(100) Горизонтальная, на поверхности воды
Прыжки в воду 150(100) Горизонтальная, на поверхности воды
75 Вертикальная, в зоне прыжков
Водное поло 200(100) Горизонтальная, на поверхности воды
100 Вертикальная, на высоту до 2 м от поверхности воды

<*> В скобках приведена норма для открытых ванн.

Примечания

1. При размещении в микрорайонах допускается понижение уровня освещенности открытых бассейнов на одну ступень по шкале значений освещенности.

2. Вертикальная освещенность должна быть обеспечена с обеих сторон плоскости, проходящей через продольную ось поля для водного поло или через продольные оси устройств для прыжков в воду.

3. Освещенность универсальных ванн принимается по наибольшим показателям.

4. В залах ванн с трибунами вместимостью до 800 зрителей уровень горизонтальной освещенности следует повышать на одну ступень. При большей вместимость трибун в крытых бассейнах горизонтальную освещенность рекомендуется принимать 400 лк, а вертикальную - 200 лк.

5. При освещении залов ванн лампами накаливания уровень освещенности может быть снижен на одну ступень.

Таблица 13.2

Освещаемый объект Наименьшая освещенность <*>, лк Плоскость или зона, в которой нормируется освещенность
Зеркало воды ванны 1000 Вертикальная по продольной и поперечной оси ванны
Над стартовыми тумбочками и над поворотными торцами 600 Горизонтальная <**>
Трибуна <***> 500 <****> Вертикальная в направлении телевизионной камеры, на высоте 1 м

<*> Коэффициент запаса осветительных установок следует принимать 1,2.

<**> Отношение горизонтальной освещенности к вертикальной должно приниматься не более 3:1.

<***> Неравномерность освещенности трибуны (с плавным переходом от одного уровня к другому) допускается не более 1:3 (в сторону снижения от приведенного в таблице).

<****> Освещенность зон показа зрителей крупным планом должна быть увеличена до 750 лк. Эти зоны определяются заданием на проектирование, но не должны превышать 20 % площади трибуны.

13.4 При проектировании осветительной установки, обеспечивающей уровни освещенности, требующиеся для проведения цветных телепередач, необходимо из общего числа светильников выделять приборы, обеспечивающие нормируемые уровни освещенности, предусмотренные в таблице 13.1. Эти приборы должны управляться отдельно от остальных приборов осветительной установки.

13.5 Электроприемники спортивных и оздоровительных бассейнов по надежности электроснабжения относятся к следующим категориям:

в крытых бассейнах без мест для зрителей (или при их численности менее 300):

а) при числе занимающихся 120 чел. и менее в смену все электроприемники - III категории;

б) при числе занимающихся более 120 чел. в смену: светильники аварийного и эвакуационного освещения, электродвигатели пожарных насосов, автоматическая пожарная сигнализация и система дымоудаления - II категории;

остальные электроприемники - III категории;

в открытых бассейнах:

а) при числе рядов трибун более 20, а также при вместимости стационарных трибун 3000 зрителей и более:

электроосвещение - II категории;

остальные электроприемники - III категории;

б) остальные открытые бассейны: все электроприемники - III категории.

В крытых бассейнах, предназначенных только для занятий с детьми, светильники аварийного и эвакуационного освещения, электродвигатели пожарных насосов, автоматическая пожарная сигнализация и система дымоудаления - I категории.

Надежность электроснабжения электроприемников крытых бассейнов с числом мест для зрителей 300 и более должна определяться согласно главе VII-2 ПУЭ.

13.6 Уровень средней горизонтальной освещенности трибун крытых бассейнов принимается 50 лк, а открытых - не менее 10 % уровня освещенности, предусмотренной таблицей 13.1 для соответствующих видов спорта и с учетом вместимости трибун.

Осевые лучи приборов, освещающих зеркало воды, не должны попадать на трибуны.

13.7 Уровень минимальной горизонтальной освещенности залов и открытых площадок для подготовительных занятий следует принимать на поверхности пола зала и поверхности площадки 150 и 50 лк соответственно.

13.8 Для освещения спортивных, оздоровительных и учебных бассейнов следует принимать, как правило, газоразрядные лампы. При этом максимально допустимый коэффициент пульсации освещенности не должен превышать 15%.

При необходимости плавного регулирования светового потока, а также в случаях невозможности или технико-экономической нецелесообразности применения газоразрядных источников света допускается, а при уровнях освещенности менее 30 лк следует использовать лампы накаливания.

13.9 В зданиях бассейнов следует предусматривать эвакуационное освещение в соответствии с требованиями СНиП 23-05. При этом на поверхности воды ванн крытых, а также открытых бассейнов, оборудованных осветительными установками, должна быть обеспечена аварийная освещенность не менее 5 лк.

13.10 Для освещения залов ванн (с местами для зрителей или без них) при высоте зала 8 м и менее рекомендуется применять систему верхнебокового освещения с установкой светильников на боковых стенках и потолке за пределами зеркала воды. Наиболее качественной системой освещения является система отраженного света, но она наименее экономична. При установке светильников на потолке зала необходимо обеспечивать защитный угол не менее 40° в продольной и поперечной плоскостях.

При верхнебоковом освещении зальных помещений светильниками прямого света концентрированного светораспределения оптическая ось светильника не должна иметь наклон более 40° к вертикали.

13.11 При высоте зала более 8 м и при меньшей высоте, если светильники расположены на потолке над зеркалом воды, осветительные приборы устанавливают на специальных мостках, располагаемых под потолком параллельно продольной оси ванны. Расположение осветительных приборов на мостках должно обеспечивать равномерное освещение зеркала воды при отклонении оптической оси прожектора от вертикали не более 45°. В отдельных случаях, в зависимости от расположения мостков, отклонение может быть увеличено в пределах до 50°.

Прожекторы концентрированного светораспределения должны иметь наклон не более 40°.

При размещении осветительных приборов над ванной предусматриваются устройства, исключающие падение в воду ламп или элементов осветительных приборов.

13.12 Светильники (за исключением светильников отраженного света) на торцевых стенах залов подготовительных занятий размещаться не должны. Применение светильников прямого света концентрированного светораспределения для освещения поверхности воды в ваннах возможно только при условии перекрытия их выходных отверстий светорассеивающими материалами.

При верхнебоковом или боковом освещении залов ванн и залов подготовительных занятий не менее 10 % суммарного светового потока осветительных приборов направляется вверх для освещения потолка.

13.13 Для ограничения слепящего действия светильников при освещении зальных помещений показатель ослепленности не должен превышать 60.

При применении газоразрядных источников света управление освещением осуществляется тремя-четырьмя ступенями.

13.14 На освещаемых открытых бассейнах следует предусматривать верхнебоковое освещение. Осветительные приборы верхнебокового освещения устанавливают на высоте не менее 10 м, обеспечивая условие, по которому перпендикуляр, опущенный из оптического центра прибора на продольную ось ванны, составит с ее поверхностью угол не менее 27°.

При прожекторном освещении прожекторные мачты располагаются по продольным сторонам ванны.

При наличии трибун зрителей прожекторные мачты размещаются позади трибун.

Конструкции мачт прожекторного освещения должны исключать возможность попадания на них посторонних лиц.

13.15 На территории и в зданиях бассейнов следует предусматривать:

а) радиофикацию от радиотрансляционной сети населенного пункта;

б) телефонизацию от АТС населенного пункта;

в) электрочасофикацию (при установке не менее десяти электровторичных часов).

13.16 В бассейнах, имеющих стационарные трибуны, следует дополнительно предусматривать звуковую передачу информации и звуковоспроизведение музыки для зрителей на трибуны, в отдельные помещения, а также озвучивание отдельных зон территории открытых бассейнов (в том числе перед главным входом на территорию бассейна). Отдельные помещения и зоны территории, подлежащие раздельному озвучиванию, определяются заданием на проектирование.

13.17 Звукоаппаратная в крытых бассейнах располагается так, чтобы из нее обеспечивалась видимость планшета зала ванны. Площадь звукоаппаратной в демонстрационных бассейнах принимают 20-25 м2, а окно в зальное помещение (с раздвижными стеклами) - размером 2,5 x 0,8 м; в остальных крытых бассейнах с местами для зрителей площадь звукоаппаратной - 10-12 м2, размер окна - не менее 1,5 x 0,8 м.

13.18 В бассейнах, оборудуемых светоинформационным табло, предусматривают помещение для размещения силового оборудования и аппаратную датчиков табло. Помещение с силовым электрооборудованием располагают как можно ближе к светоинформационному табло, а его размеры определяют в зависимости от принятого типа табло. Аппаратная датчиков табло располагается так, чтобы из нее была обеспечена видимость табло, а ее площадь принимается не менее 14 м2.

Требования к аппаратным, предназначаемым для осуществления телевизионных и радиопередач, устанавливаются в техническом задании местных органов Гостелерадио.

13.19 Распределительная сеть проводного вещания, как правило, подсоединяется к местным сетям связи, с установкой на кровле здания вводной трубостойки, оснащенной абонентским трансформатором необходимой мощности. В случае невозможности установки трубостойки предусматривается кабельный ввод с установкой абонентского трансформатора в ближайшем шкафу связи и сигнализации. Тип ввода определяется техническими условиями, выданными местными органами связи.

13.20 Распределительные телефонные сети сооружения подключаются к телефонным сетям населенного пункта в соответствии с общим проектом строительства телефонных сетей.

Телефонизация осуществляется с устройством кабельного или воздушного вводов. Емкость и тип ввода определяются техническими условиями, выданными местными органами связи.

13.21 Если в зданиях требуется устройство молниезащиты, то вводные трубостойки вещания, располагаемые на кровле, подсоединяются к молниезащитной сетке. Если молниезащита отсутствует, то трубостойки заземляются на самостоятельный контур. Нормы сопротивления защитных заземляющих устройств для трубостоек, расположенных на кровле, определяются по ГОСТ 464.

13.22 В крытых бассейнах предусматривается устройство автоматической пожарной сигнализации в соответствии с НПБ 104.

Установку извещателей пожарной сигнализации следует предусматривать по НПБ 88 во всех помещениях, кроме залов ванн, вентиляционных камер, душевых, умывальней, санитарных узлов и других помещений с мокрым режимом, а также помещений, оборудованных автоматическими системами пожаротушения.

13.23Все рекомендации по планировочным размерам и другим параметрам ванн закрытых бассейнов применимы к открытым бассейнам.

Приложение А
(рекомендуемое)

НАБОР ПОМЕЩЕНИЙ В БАССЕЙНЕ ПО КРИТЕРИЯМ НЕОБХОДИМОСТИ

Наименование помещения Критерий необходимости помещения
необходимое рекомендуется дополнительное
1 2 3 4
1. Входная зона
1.1. Площадка перед входом X
1.2. Стоянка автомашин посетителей X
1.3. Навес над входом X
1.4. Помещение охраны X
1.5. Входной тамбур X
1.6. Вестибюль X
1.7. Место для детских колясок X
1.8. Место для игр детей X
1.9. Конура для собак X
1.10. Туалеты X
1.11. Помещение с моющими средствами для посетителей X
2. Контрольная зона
2.1. Касса X
2.2. Расчетное помещение X
2.3. Регистратура и выдача ключей X
2.4. Выдача купальных принадлежностей X
2.5. Автоматический пропуск X
2.6. Место сушки волос X
3. Зона раздевальных
3.1. Проход, соединяющий вестибюль с раздевальными X
3.2. Раздевальные X
3.3. Хранение личных вещей (в гардеробе, личных шкафчиках и т.п.) X
3.4. Соединяющий проход раздевальной с душевой X
3.5. Место для мытья ног (ножная ванночка на выходе в зал бассейна) X
3.6. Место для сушки волос X
3.7. Место для причесывания волос X
3.8. Место для стирки купальных принадлежностей X
3.9. Место для сушки купальных принадлежностей X
4. Санитарная зона
4.1. Душевая X
4.2. Комната для умывания X
4.3. Комната для обсыхания X
4.4. Уборные X
4.5. Помещение с моющими средствами X
4.6. Дезинфекция ног X
5. Зона плавания
5.1. Зал с ваннами бассейна X
5.2. Холодная душевая X
5.3. Солярий X
5.4. Помещение (холл) для отдыха занимающихся X
5.5. Помещение для обогревания X
5.6. Выход на открытую площадку X
6. Зона помещений персонала
6.1. Обзорное и контрольное помещения X
6.2. Комната первой помощи (дежурная медсестра) X
6.3. Дежурный инструктор X
6.4. Тренерская X
6.5. Учебный класс X
6.6. Пункт медицинского контроля X
6.7. Методический кабинет X
6.8. Проходы к инженерным коммуникациям и обслуживающей технике X X
6.9. Бюро <*> X
 

<*> Бюро необходимо только тогда, когда назначается собственный управляющий бассейном.
 
6.10. Вестибюль бюро
6.11. Помещение для персонала, обслуживающего бассейн X
6.12. Гардероб для персонала X
6.13. Душевые для персонала X
6.14. Туалеты для персонала X
7. Зона дополнительных помещений
7.1. Сауна с массажной X
7.2. Буфет X
7.3. Зал дополнительных занятий X
7.4. Ванные оздоровительного бассейна, в которых не требуется присутствия врача при их использовании X
7.5. Открытый бассейн X
7.6. Выплыв из крытого бассейна в открытый X
7.7. Оборудование для проведения свободного времени X
7.8. Игровые площадки при открытом бассейне X
7.9. Радиоузел X
7.10. Комментаторские X
7.11. Пресс-центр X
8. Зона вспомогательных помещений
8.1. Аппаратная бассейна X
8.2. Помещения для уборочного инвентаря и оборудования X
8.3. Мастерская X
8.4. Помещение для отдыха персонала X
8.5. Место для мусорных контейнеров X
8.6. Хозяйственно-технический двор X
8.7. Стоянка личных машин персонала X
9. Зона технического обслуживания
9.1. Водоснабжение
9.1.1. Подача и замер X
9.1.2. Водораспределение X
9.1.3. Подготовка воды В зависимости от количества местной воды
9.1.4. Централизованная подготовка дезинфекционных растворов X
9.2. Электроснабжение
9.2.1. Помещение для трансформаторов В зависимости от местных условий подключения
9.2.2. Помещение высокого напряжения
9.2.3. Помещение или шкаф низкого напряжения X
9.2.4. Главный щит управления или пульт управления или контроля X
9.2.5. Источник аварийного освещения X
9.3. Подготовка воды в бассейне
9.3.1. Фильтры и насосы X
9.3.2. Место хранения и дозировка осадителя X
9.3.3. Хлорирование и дезинфекция X
9.3.4. Место хранения хлора или место хранения дезинфекционного средства X
9.3.5. Компенсирующий резервуар В зависимости от системы смены воды в ванне
9.4. Отопление
9.4.1. Теплоцентраль X
9.4.2. Повторное использование теплоты X
9.4.3. Подготовка и хранение теплой воды X
9.4.4. Распределитель теплоты X
9.5. Вентиляция
9.5.1. Фильтрация, подогрев X
9.5.2. Подача свежего воздуха X
9.5.3. Установка циркуляционного воздуха X
9.5.4. Установка для удаления отработанного воздуха X
9.6. Удаление использованной воды
9.6.1. Очистительные шахты X
9.6.2. Шиберные шахты В зависимости от местных условий
9.6.3. Подъемная установка
9.7. Волновая машина
9.7.1. Машинное помещение X
9.7.2. Камера возникновения волн X
9.8. Разделяющий ванны пол с регулируемой высотой
9.8.1. Встроенные в ванну приборы X
9.8.2. Машинное оборудование X

Примечание - Критерии необходимости:

"необходимые" помещения являются обязательными по технологическому процессу;

"рекомендуемые" помещения, наличие которых рационально и достойно рекомендаций;

"дополнительные" помещения, возникающие в зависимости от местных условий.

Приложение Б
(рекомендуемое)

СОСТАВ ПОМЕЩЕНИЙ МЕДИКО-ВОССТАНОВИТЕЛЬНЫХ ЦЕНТРОВ

Медико-восстановительные центры по согласованию с местными органами здравоохранения могут создаваться в бассейнах с пропускной способностью более 150 человек в смену.

Примерный состав и площади помещений медико-восстановительного центра приведены в таблице Б.1.

Таблица Б.1

Помещение Площадь, м2
Кабинет врача (заведующего центром) 12-14
Кабинет электро- и светолечения:
7 кабин по одной кушетке в каждой 42
помещение для обработки прокладок 8
Душевой зал:
кафедра на 5 душевых установок 25
раздевальная при зале 10
насосная кафедра 18
Подводный душ-массаж:
комната с ванной 18
кабина для раздевания 2
Кабинет для проведения тестов с физической нагрузкой (велоэргометрия, спироэргометрия и др.) 20
Процедурная для инъекций 12
Комната для отдыха (в креслах) 12
Кладовая предметов уборки и грязного белья 4
Комната персонала 12-15
Санитарный узел мужской (1 унитаз, 1 писсуар с умывальником в шлюзе) 6
Санитарный узел женский (2 унитаза с умывальником в шлюзе) 6

Примечание - При проектировании помещений центра следует руководствоваться требованиями, предъявляемыми к аналогичным помещениям лечебно-профилактических учреждений.

В состав медико-восстановительного центра могут включаться также массажные и бани сухого жара, предусматриваемые пп. 6.17 и 6.18.

Помещения медико-восстановительного центра располагают обособленной группой, удаленной от вентиляционных камер, насосных и других источников вибрации и шума. Возможно расположение медико-восстановительного центра в отдельном здании. В этом случае в составе помещений центра предусматривают вестибюль площадью 16-20 м2 и гардеробную верхней одежды площадью 10 м2.

Все процедурные кабинеты должны иметь естественное освещение. Ширина коридоров медико-восстановительного центра не менее 2 м.

Помещения медико-восстановительного центра рекомендуется объединять в два блока:

I - водолечебные помещения и баня сухого жара с контрастной ванной и душевой;

II - кабинеты электросветолечения, тестов с физической нагрузкой, процедурная.

Кабинет врача и массажная могут примыкать к любому из этих блоков.

Помещения блока водных процедур должны быть непроходными и располагаться по возможности дальше от наружного входа в здание. Кабинет электросветолечения должен быть отделен от водолечебных помещений "сухим" кабинетом.

Кабинет электросветолечения оборудуется кабинами размером 2,2 x 1,8-2 м, с перегородками высотой 2 м. В каждой кабине устанавливается кушетка с подъемным изголовьем и устройством для местного освещения и один стационарный физиотерапевтический аппарат. Кабинет должен быть оборудован самостоятельным контуром заземления.

Блок водных процедур желательно размещать на первом этаже. Полы помещений блока должны иметь уклон не менее 0,01 в сторону трапа. В душевом зале устанавливают душевую кафедру и питаемые от нее душевые установки для циркулярного, дождевого, восходящего и струевого душей. Душевую кафедру устанавливают так, чтобы при проведении струевого душа пациент находился от нее на расстоянии 3,5-4 м и на него падал прямой дневной свет. На высоте 1,2-1,5 м к стене прикрепляется металлический поручень. Душевые установки оборудуются в кабинах размером в плане не менее 1 x 1 м, разделяемых перегородками высотой 2 м, не доходящими до пола на 10-15 см. Душевая кафедра и установки для приема душа должны располагаться таким образом, чтобы медицинский персонал мог видеть пациентов.

Душевая кафедра должна иметь самостоятельную подводку горячей и холодной воды, при этом давление холодной и горячей воды должно быть одинаковым (2-2,5 атм.). Для поддержания постоянного давления в насосной необходимо предусматривать емкости для холодной и горячей воды объемом не менее 3 м3 каждая.

Помещение подводного душа-массажа должно иметь ширину не менее 3,5 м. К ванне размером 2,33 x 1,85 x 0,92(h) должен быть обеспечен подход с трех сторон. Установка для душа-массажа располагается в торце ванны.

Примеры планов расстановки оборудования помещений медико-восстановительных центров приведены на рисунке 6.1.

Приложение В

ИЛЛЮСТРАЦИИ

3.1 ФУНКЦИОНАЛЬНАЯ СХЕМА КОМПЛЕКСНОГО БАССЕЙНА

4.1 СХЕМЫ РЕШЕНИЯ ВАНН ПЛАВАТЕЛЬНЫХ БАССЕЙНОВ

4.2 ЗАКЛАДНЫЕ УСТРОЙСТВА И КОНСТРУКТИВНЫЕ ЭЛЕМЕНТЫ ВАНН

4.3 ТИПЫ БОРТОВ И ВАНН БАССЕЙНОВ

4.4 СТАРТОВЫЕ ТУМБОЧКИ И ЛЕСТНИЦЫ ДЛЯ ВАНН БАССЕЙНОВ

4.5 РАЗМЕРЫ ВАНН И РАССТОЯНИЯ МЕЖДУ УСТРОЙСТВАМИ ДЛЯ ПРЫЖКОВ В ВОДУ

4.6 СХЕМЫ РАССТАНОВКИ УСТРОЙСТВ ДЛЯ ПРЫЖКОВ В ВОДУ

4.7 РАЗМЕТКА ВАННЫ ДЛЯ ВОДНОГО ПОЛО

4.8 КОНСТРУКЦИИ ДЕТАЛЕЙ ВАНН БАССЕЙНОВ

4.9 БАССЕЙНЫ ДЛЯ ОБУЧЕНИЯ ДЕТЕЙ ПЛАВАНИЮ И ОЗДОРОВИТЕЛЬНОГО ПЛАВАНИЯ

4.10 ВОДНЫЕ ГОРКИ (ТОБОГАНЫ)

4.11 ОБХОДНЫЕ ДОРОЖКИ ВАНН ДЛЯ ПОЛЬЗОВАНИЯ ИНВАЛИДАМИ

4.12 СХЕМАТИЧЕСКИЕ ПЛАНЫ РАССТАНОВКИ ОБОРУДОВАНИЯ В ЗАЛАХ ПОДГОТОВИТЕЛЬНЫХ ЗАНЯТИЙ

5.1 ФУНКЦИОНАЛЬНЫЕ СХЕМЫ РАЗДЕВАЛЬНЫХ ПРИ БАССЕЙНАХ

5.2 МЕБЕЛЬ И ОБОРУДОВАНИЕ. ГАБАРИТНЫЕ СХЕМЫ

5.3 ПАРАМЕТРЫ ФУНКЦИОНАЛЬНЫХ ЗОН В РАЗДЕВАЛЬНЫХ

5.4 ОБОРУДОВАНИЕ НОЖНЫХ ВАНН И ВЫПЛЫВА ИЗ ДУШЕВЫХ В ОТКРЫТЫЙ БАССЕЙН

5.5 СХЕМЫ БЛОКОВ РАЗДЕВАЛЕН С ДУШЕВЫМИ И САНУЗЛАМИ

5.6 ПЛАНИРОВКА ДУШЕВЫХ, САНУЗЛОВ И КАБИН ДЛЯ ПЕРЕОДЕВАНИЯ ДЛЯ ИНВАЛИДОВ С ПОРАЖЕНИЕМ ОПОРНО-ДВИГАТЕЛЬНОГО АППАРАТА

6.1 ПОМЕЩЕНИЯ МЕДИКО-ВОССТАНОВИТЕЛЬНОГО ЦЕНТРА И САУНЫ

6.2 ВАРИАНТЫ РЕШЕНИЙ И ОБОРУДОВАНИЕ САУН

6.3 ПЛАНИРОВОЧНЫЕ СХЕМЫ САУН, ДОСТУПНЫХ ДЛЯ ИНВАЛИДОВ

10.1 ОРГАНИЗАЦИЯ ВОДООБМЕНА В ВАННЕ БАССЕЙНА