Лифты пассажирские. Основные параметры и размеры. ГОСТ 5746-2015

(утв. Приказом Росстандарта от 02.06.2016 N 486-СТ)
Редакция от 02.06.2016 — Действует с 01.01.2017

Данный документ не поддерживается в сервисе Норматив.


Данный документ приведен с учетом Поправки, опубликованной в "ИУС", N 7, 2023.


МЕЖГОСУДАРСТВЕННЫЙ СТАНДАРТ

ЛИФТЫ ПАССАЖИРСКИЕ

ОСНОВНЫЕ ПАРАМЕТРЫ И РАЗМЕРЫ

Passenger lifts. Basic parameters and dimensions

(ISO 4190-1:2010, Lift (Elevator) installation - Part 1: Class I, II, III and IV lifts, MOD)

ГОСТ 5746-2015
(ISO 4190-1:2010)

Дата введения
1 января 2017 года

Предисловие

Цели, основные принципы и основной порядок проведения работ по межгосударственной стандартизации установлены в ГОСТ 1.0-2015 "Межгосударственная система стандартизации. Основные положения" и ГОСТ 1.2-2015 "Межгосударственная система стандартизации. Стандарты межгосударственные, правила и рекомендации по межгосударственной стандартизации. Правила разработки, принятия, обновления и отмены".

Сведения о стандарте

1 ПОДГОТОВЛЕН Некоммерческим партнерством "Российское лифтовое объединение" (НП "РЛО"), Обществом с ограниченной ответственностью "Серпуховский лифтостроительный завод" (ООО "СЛЗ") на основе собственного перевода на русский язык англоязычной версии стандарта, указанного в пункте 5

2 ВНЕСЕН Федеральным агентством по техническому регулированию и метрологии (Росстандарт)

3 ПРИНЯТ Межгосударственным советом по стандартизации, метрологии и сертификации (протокол от 10 декабря 2015 г. N 48)

За принятие стандарта проголосовали:

Краткое наименование страны по МК (ИСО 3166) 004-97Код страны по МК (ИСО 3166) 004-97Сокращенное наименование национального органа по стандартизации
АзербайджанAZАзстандарт
АрменияAMМинэкономики Республики Армения
БеларусьBYГосстандарт Республики Беларусь
КазахстанKZГосстандарт Республики Казахстан
КиргизияKGКыргызстандарт
РоссияRUРосстандарт
ТаджикистанTJТаджикстандарт

4 Приказом Федерального агентства по техническому регулированию и метрологии от 2 июня 2016 г. N 486-ст межгосударственный стандарт ГОСТ 5746-2015 (ISO 4190-1:2010) введен в действие в качестве национального стандарта Российской Федерации с 1 января 2017 г.

5 Настоящий стандарт является модифицированным по отношению к международному стандарту ISO 4190-1:2010 "Лифтовая установка. Часть 1. Лифты классов I, II, III и IV" ("Lift (Elevator) installation - Part 1: Class I, II, III and IV lifts", MOD) путем изменения его структуры для приведения в соответствие с правилами, установленными в ГОСТ 1.5 (подразделы 4.2 и 4.3).

Сравнение структуры настоящего стандарта со структурой указанного международного стандарта приведено в дополнительном приложении ДА.

Наименование настоящего стандарта изменено относительно наименования указанного международного стандарта для приведения в соответствие с ГОСТ 1.5 (подраздел 3.6).

Дополнительные положения и требования, включенные в текст настоящего стандарта для учета потребностей национальной экономики указанных выше государств и/или особенностей межгосударственной стандартизации, выделены курсивом

6 Настоящий стандарт разработан на основе применения ГОСТ Р 53770-2010 (ИСО 4190-1:1999) <*>

<*> Приказом Федерального агентства по техническому регулированию и метрологии от 2 июня 2016 г. N 486-ст ГОСТ Р 53770-2010 (ИСО 4190-1:1999) отменен с 1 января 2017 г.

7 Настоящий стандарт может быть применен на добровольной основе для соблюдения требований технического регламента Таможенного союза "Безопасность лифтов"

8 ВЗАМЕН ГОСТ 5746-2003

Информация об изменениях к настоящему стандарту публикуется в ежегодном информационном указателе "Национальные стандарты", а текст изменений и поправок - в ежемесячном информационном указателе "Национальные стандарты". В случае пересмотра (замены) или отмены настоящего стандарта соответствующее уведомление будет опубликовано в ежемесячном информационном указателе "Национальные стандарты". Соответствующая информация, уведомление и тексты размещаются также в информационной системе общего пользования - на официальном сайте Федерального агентства по техническому регулированию и метрологии в сети Интернет (www.gost.ru).

1. Область применения

1.1 Настоящий стандарт распространяется на пассажирские лифты для зданий (сооружений) различного назначения.

1.2 Пассажирские лифты, включенные в настоящий стандарт, предназначены для установки в новые здания (сооружения).

Настоящий стандарт может быть использован в качестве нормативной базы при установке новых лифтов в существующие здания (сооружения).

1.3 Настоящий стандарт не распространяется на пассажирские лифты со скоростью движения кабины более 6,0 м/с.

1.4 Основные параметры и размеры лифтов могут отличаться от включенных в настоящий стандарт при условии соблюдения требований безопасности, установленных в техническом регламенте [1].

2. Нормативные ссылки

В настоящем стандарте использованы нормативные ссылки на следующие межгосударственные стандарты:

ГОСТ 8032-84 Предпочтительные числа и ряды предпочтительных чисел

ГОСТ 30471-96 Кресла-коляски. Максимальные габаритные размеры

Примечание - При пользовании настоящим стандартом целесообразно проверить действие ссылочных стандартов в информационной системе общего пользования - на официальном сайте Федерального агентства по техническому регулированию и метрологии в сети Интернет или по ежегодному информационному указателю "Национальные стандарты", который опубликован по состоянию на 1 января текущего года, и по выпускам ежемесячного информационного указателя "Национальные стандарты" за текущий год. Если ссылочный стандарт заменен (изменен), то при пользовании настоящим стандартом следует руководствоваться заменяющим (измененным) стандартом. Если ссылочный стандарт отменен без замены, то положение, в котором дана ссылка на него, применяется в части, не затрагивающей эту ссылку.

3. Термины и определения

В настоящем стандарте применены термины по техническому регламенту [1], а также следующие термины с соответствующими определениями:

3.1 дверь кабины (шахты) горизонтально-раздвижная: Дверь, створка (створки) которой перемещается(ются) в горизонтальном направлении.

3.2 дверь кабины (шахты) горизонтально-раздвижная телескопическая: Дверь, створки которой перемещаются в параллельных плоскостях, при открывании заходя одна за другую.

3.3 дверь кабины (шахты) горизонтально-раздвижная центрального открывания: Дверь, створки которой при движении перемещаются в противоположных направлениях от центра (к центру).

3.4 дверь кабины (шахты) горизонтально-раздвижная одностороннего открывания: Дверь, створка (створки) которой перемещается(ются) в одну сторону.

3.5 дверь кабины (шахты) распашная: Дверь кабины (шахты), створка (створки) которой перемещается(ются) вокруг шарнирного крепления к порталу двери.

3.6 дверь кабины (шахты) складчатая: Дверь кабины (шахты), створка (створки) которой состоит(ят) из двух и более панелей, соединенных между собой шарнирами с возможностью складывания при открывании, а крайние полотна перемещаются вокруг шарнирного крепления к порталу двери.

3.7 кабина пассажирского лифта: Грузонесущее устройство, предназначенное для размещения и транспортирования людей и/или людей и грузов, оборудованное ограждением в виде стен, пола, потолка и двери.

3.8 лифт пассажирский: Грузоподъемная машина периодического действия, предназначенная для транспортирования людей и/или людей и грузов в зданиях и сооружениях, перемещающаяся по жестким направляющим, угол наклона которых к вертикали не превышает 15°.

3.9 лифт пассажирский категории A: Пассажирский лифт, полезная площадь кабины которого не превышает указанную в таблице 1 настоящего стандарта для соответствующей номинальной грузоподъемности.

3.10 лифт пассажирский категории B: Пассажирский лифт, полезная площадь кабины которого превышает указанную в таблице 1 настоящего стандарта для соответствующей номинальной грузоподъемности.

3.11 лифт пассажирский для лечебно-профилактических зданий (больничный лифт): Пассажирский лифт, размеры и конструкция которого позволяют перевозить пациентов на средствах горизонтального транспортирования (каталках, кроватях и т.п.) и/или медицинское оборудование.

3.12 внутренние размеры кабины, шахты, машинного помещения: (см. рисунки 1 - 3).

3.12.1 ширина кабины b1: Расстояние по горизонтали между внутренними поверхностями стен кабины, измеренное параллельно передней стенке входа в кабину.

При наличии декоративных или защитных панелей, поручней они входят в этот размер.

3.12.2 глубина кабины d1: Расстояние по горизонтали между внутренними поверхностями передней и задней стен кабины, измеренное перпендикулярно к ширине кабины.

При наличии декоративных и защитных панелей, поручней они входят в этот размер.

3.12.3 высота кабины h4: Расстояние по вертикали между полом и конструктивным потолком кабины.

Устройства освещения кабины и декоративные потолки входят в этот размер.

3.12.4 ширина дверного проема b2: Ширина входа в свету, измеренная при полностью открытых дверях кабины и шахты.

3.12.5 высота дверного проема h3: Высота входа в свету, измеренная при полностью открытых дверях кабины и шахты.

3.12.6 ширина шахты b3: Расстояние по горизонтали между внутренними поверхностями боковых стен шахты, измеренное параллельно ширине кабины.

3.12.7 глубина шахты d2: Расстояние по горизонтали между внутренними поверхностями передней и задней стен шахты, измеренное перпендикулярно к ширине шахты.

3.12.8 глубина приямка d3: Расстояние по вертикали от уровня пола крайней нижней этажной площадки до пола шахты.

3.12.9 высота шахты от верхней этажной площадки h1: Расстояние по вертикали от уровня пола верхней этажной площадки до нижней части перекрытия шахты.

3.12.10 ширина машинного помещения b4: Расстояние по горизонтали между внутренними поверхностями стен машинного помещения, измеренное параллельно ширине кабины.

3.12.11 глубина машинного помещения d4: Расстояние по горизонтали между внутренними поверхностями стен машинного помещения, измеренное перпендикулярно к ширине машинного помещения.

3.12.12 высота машинного помещения h2: Расстояние по вертикали между уровнем пола машинного помещения, на котором размещено оборудование лифта, и потолком машинного помещения.

3.13 система управления лифта: Совокупность устройств управления, обеспечивающих работу лифта в соответствии с заданным алгоритмом.

3.14 система управления лифта внутренняя: Вид управления, при котором команда управления на пуск лифта подается только из кабины лифта.

4. Основные параметры лифтов

4.1 Ряд номинальных грузоподъемностей

Значения номинальных грузоподъемностей (кг) выбирают из ряда чисел, близких к ряду предпочтительных чисел R10 по ГОСТ 8032: 320; 400; 450; 500; 630; 800; 1000; 1275; 1600; 1800; 2000; 2500.

Значения номинальных грузоподъемностей являются рекомендуемыми.

Допускается использовать другие значения грузоподъемности, соответствующие требованиям рынка.

4.2 Ряд номинальных скоростей

Значения номинальных скоростей (м/с) выбирают из ряда чисел, близких к ряду предпочтительных чисел R5 по ГОСТ 8032: 0,4; 0,5; 0,63; 0,71; 1,0; 1,6; 2,0; 2,5; 3,0; 3,5; 4,0; 5,0; 6,0.

Скорость от 0,5 до 6,0 м/с - для электрических лифтов.

Скорость от 0,4 до 1,0 м/с - для гидравлических лифтов.

Значения номинальных скоростей являются рекомендуемыми. Допускается использовать другие значения скорости, соответствующие требованиям рынка.

5. Основные размеры

5.1. Внутренние размеры кабины пассажирского лифта

Полезная площадь кабины - это площадь кабины, измеренная при закрытых дверях на высоте 1 м от уровня пола кабины, используемая для размещения транспортируемых пассажиров и/или грузов.

Размеры (полезная площадь) кабины лифтов категории A не должны превышать значений, установленных в таблице 1 для соответствующих номинальных грузоподъемностей. Ограничение полезной площади имеет целью предотвратить перегрузку кабины пассажирского лифта пассажирами.

Таблица 1

Соотношение номинальной грузоподъемности и полезной площади кабины пассажирских лифтов категории A

Номинальная грузоподъемность, кгМаксимальная полезная площадь кабины, м2Номинальная грузоподъемность, кгМаксимальная полезная площадь кабины, м2
100 <*>0,379002,20
180 <**>0,589752,35
2250,7010002,40
3000,9010502,50
3751,1011252,65
4001,1712002,80
4501,3012502,90
5251,4512752,95
6001,6013503,10
6301,6614253,25
6751,7515003,40
7501,9016003,56
8002,0020004,20
8252,052500 <***>5,00

<*> Минимальное значение для лифта, рассчитанного на одного человека.

<**> Минимальное значение для лифта, рассчитанного на двух человек.

<***> После 2500 кг следует добавлять 0,16 м2 на каждые последующие 100 кг. Для промежуточных значений грузоподъемности площадь определяют методом интерполяции.

В пассажирских лифтах категории B, полезная площадь кабины которых превышает указанную в таблице 1 для соответствующих грузоподъемностей, предусматривается:

a) исключение возможности пуска лифтов из кабины или с посадочной площадки при нахождении в кабине груза, масса которого превышает номинальную грузоподъемность лифтов на 10 кг, но не менее чем на 75 кг;

b) оборудование кабины лифта сигнальным устройством о перегрузке (световое и/или звуковое);

c) применение средств, препятствующих опусканию кабины за нижнюю границу зоны отпирания дверей при нахождении в кабине груза, масса которого равна полуторной грузоподъемности лифта, определенной по фактической полезной площади кабины;

d) обеспечение прочности элементов при размещении в неподвижной кабине равномерно распределенного по площади ее пола груза, определенной по фактической полезной площади кабины;

e) обеспечение прочности элементов при посадке на буфера и на ловители кабины с грузом, масса которого равна номинальной грузоподъемности лифта, определенной по фактической полезной площади кабины.

В пассажирских лифтах для лечебно-профилактических учреждений (больничных лифтах) с внутренней системой управления, полезная площадь кабины которых превышает указанную в таблице 1 для соответствующих грузоподъемностей, предусматриваются:

a) внутренняя система управления (с проводником);

b) исключение возможности пуска лифта из кабины или с посадочной площадки при нахождении в кабине груза, масса которого превышает номинальную грузоподъемность лифта на 10%, но не менее чем на 75 кг;

c) оборудование кабины лифта сигнальным устройством о перегрузке (световое и/или звуковое);

d) допуск к управлению лифтом обученного и аттестованного персонала.

Размеры кабины лифтов, предназначенных для использования пожарными во время пожара, должны обеспечивать размещение и транспортирование в кабине пожарных с оборудованием для борьбы с пожаром и/или для спасения людей.

Размеры кабины лифтов, предназначенных для использования инвалидами и другими маломобильными группами населения на креслах-колясках, должны обеспечивать их въезд-выезд, размещение и транспортирование в кабине на кресле-коляске.

Размеры кабины лифтов для лечебно-профилактических учреждений (больничных лифтов) должны обеспечивать перевозку пациентов на средствах горизонтального транспорта (каталках, кроватях) с сопровождающим персоналом и/или медицинского оборудования.

Размеры кабины пассажирских лифтов приведены в таблицах 2, 3 и 5 и на рисунках 4, 5a, 5b, 6 и 8.

5.2. Размеры дверного проема пассажирских лифтов

Размеры дверного проема пассажирских лифтов должны обеспечивать безопасный вход в кабину и выход из нее пользователей.

Высота дверного проема пассажирских лифтов должна быть не менее 2000 мм.

Ширина дверного проема пассажирских лифтов, предназначенных для использования пожарными во время пожара, должна быть не менее 800 мм.

Ширина дверного проема пассажирских лифтов, предназначенных для использования инвалидами и другими маломобильными группами населения на креслах-колясках, должна быть не менее 800 мм.

Ширина дверного проема пассажирских лифтов для лечебно-профилактических учреждений (больничных лифтов) должна обеспечивать перевозку пациентов на средствах горизонтального транспорта (каталках, кроватях) с сопровождающим персоналом и/или медицинского оборудования.

Размеры дверного проема пассажирских лифтов приведены в таблицах 2, 3 и 5 и на рисунках 4, 5a, 5b, 7 и 8.

5.3. Внутренние размеры шахты лифта

5.3.1 Внутренние размеры шахты лифта должны обеспечивать размещение и безопасную работу лифтового оборудования, а также безопасность персонала при техническом обслуживании, ремонте и оценке соответствия лифта, предусмотренные техническим регламентом [1].

5.3.2 Высота шахты лифта от верхней посадочной площадки должна обеспечивать выполнение требований безопасности.

5.3.3 Глубина приямка шахты лифта должна обеспечивать выполнение требований безопасности.

5.4. Размеры машинного помещения лифта

Размеры машинного помещения лифта приведены в таблицах 3 и 4.

5.4.1 Размеры машинного помещения лифта должны обеспечивать размещение и безопасную работу лифтового оборудования, а также безопасность персонала при техническом обслуживании, ремонте и оценке соответствия лифта, предусмотренные техническим регламентом [1].

5.4.2 Площадь машинного помещения лифта (ширина и глубина машинного помещения) должна обеспечивать зону обслуживания устройств управления и подвижных частей механического оборудования, расположенных в машинном помещении.

5.4.3 Высота машинного помещения лифта должна обеспечивать безопасность персонала при проходе к зонам обслуживания устройств управления и механического оборудования и при работе в зонах обслуживания.

Таблица 2

Вертикальные размеры кабины и шахты пассажирских лифтов с машинным помещением

ПараметрНоминальная скорость движения лифта V, м/сНоминальная грузоподъемность лифта, кг
32040063080010001000; 12751275160018002000
Высота кабины h4, мм-2200/21002300/22002400/2200
Высота дверного проема h3, мм-20002100/20002100/2000
Глубина приямка d3, мм0,40 <*>> 750<**>
0,6313001400/1500<**>
1,00
1,601600/14001600
2,00<**>17501750
2,50<**>22002200
3,00<**>3200
3,503400
4,00 <***>3800
5,00 <***>3800
6,00 <***>4000
Высота шахты от верхней этажной площадки h1, мм0,40 <*>3600-<**>
0,633600--<**>
1,003700/350037004200
1,60<**>3800/37004000
2,00<**>43004400
2,50<**>500052005500
3,00<**>5500
3,505700
4,00 <***>5700
5,00 <***>5700
6,00 <***>6200

<*> Только для гидравлических лифтов.

<**> Размеры устанавливает изготовитель.

<***> Размеры с учетом применения буферов с уменьшенным ходом плунжера.

Таблица 3

Вертикальные размеры кабины и шахты пассажирских лифтов без машинного помещения

ПараметрНоминальная скорость движения лифта V, м/сНоминальная грузоподъемность лифта, кг
32040063080010001275160018002000
Высота кабины h4, мм 2200/21002400/2200
Высота дверного проема h3, мм 20002100/20002100/2200
Глубина приямка d3, мм1,01100<*>
1,61400
Высота шахты от верхней этажной площадки h1, мм1,003700/36004400/4300
1,603850/37504550/4450

<*> Размеры устанавливает изготовитель.

Таблица 4

Размеры машинного помещения

ПараметрНоминальная скорость V, м/сНоминальная грузоподъемность, кг
320 - 630
b4 x d4
800 - 1000
b4 x d4
1250 - 1600
b4 x d4
1800 - 2000
b4 x d4
Машинные помещения для электрических лифтов, мм, не менее0,63 - 1,62500 x 3200
(3000 x 3900)
3200 x 4900
(4800 x 4000)
3200 x 49003000 x 5000
2,0 - 3,0-2700 x 51003000 x 53003300 x 5700
3,5 - 6,0-3000 x 57003000 x 57003300 x 5700
Машинные помещения для гидравлических лифтов, мм, не менее0,4 - 1,0Ширина или глубина шахты x 2000 мм для лифтов в жилых зданиях. Размеры для зданий с интенсивным пассажиропотоком устанавливает изготовитель

Таблица 5

Вертикальные размеры кабины, шахты, размеры машинных помещений лифтов для лечебно-профилактических учреждений (больничных лифтов)

ПараметрНоминальная скорость VН, м/сНоминальная грузоподъемность, кг
50063010001275160020002500
Высота кабины h4, мм-21002300
Высота дверного проема кабины и шахты h3, мм-20002100
Глубина приямка d3, мм0,5013001400--
0,71-16001800
1,00-140017001900
1,60-19002100
2,00-21002300
2,50-2500
Высота шахты от верхней этажной площадки h1, мм0,503600-
0,63-44004600
1,00-44004600
1,60-44004600
2,00-46004800
2,50-54005600
Размеры машинного помещения, не менее, ммОт 0,50 до 2,50Площадь A, м2
10,8252729
Ширина <*> b4
270032003500
Глубина <*> d4
400055005800

<*> Размеры b4 и d4 - минимальные. Фактические размеры должны обеспечивать площадь машинного помещения не менее A.

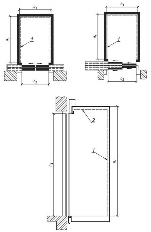
b1 - ширина кабины; b2 - ширина дверного проема; d1 - глубина кабины; h3 - высота дверного проема; h4 - высота кабины

1 - облицовка купе кабины; 2 - устройство освещения или декоративные элементы

Рисунок 1 - Пассажирские лифты. Обозначение размеров кабины и дверного проема

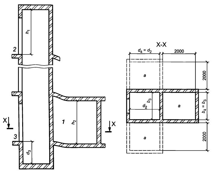
a - машинное помещение (вход в машинное помещение не показан); b3 - ширина шахты; b4 - ширина машинного помещения; d2 - глубина шахты; d3 - глубина приямка; d4 - глубина машинного помещения; h1 - высота шахты от верхней этажной площадки; h2 - высота машинного помещения

1 - машинное помещение; 2 - люк; 3 - верхняя остановка; 4 - нижняя остановка

Рисунок 2 - Электрические пассажирские лифты. Обозначения размеров шахты и машинного помещения

a - машинное помещение (вход в машинное помещение не показан); b3 - ширина шахты; b4 - ширина машинного помещения; d2 - глубина шахты; d3 - глубина приямка; d4 - глубина машинного помещения; h1 - высота шахты от верхней этажной площадки; h2 - высота машинного помещения

1 - машинное помещение; 2 - верхняя остановка; 3 - нижняя остановка

Рисунок 3 - Гидравлические пассажирские лифты. Обозначения размеров шахты и машинного помещения

b3 - ширина шахты; d2 - глубина шахты; d3 - глубина приямка; h1 - высота шахты от верхней этажной площадки

1 - верхняя остановка; 2 - нижняя остановка

Рисунок 4 - Электрические пассажирские лифты без машинного помещения. Обозначения размеров шахты

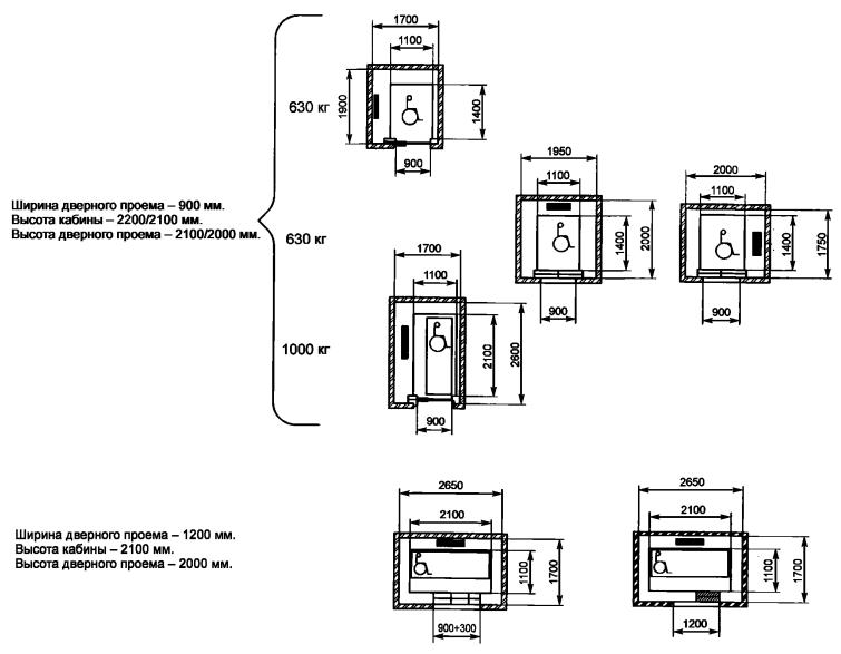
a

Рисунок 5 - Пассажирские лифты категории A, рекомендуемые для жилых зданий

b

Примечания

1 На рисунке представлены размеры для лифтов со скоростью до 2,5 м/с включительно.

2 Лифты с символом обеспечивают доступность для инвалидов на кресле-коляске по ГОСТ 30471.

3 Лифты с символом обеспечивают возможность транспортирования носилок размером 600 x 2000 мм.

Рисунок 5, лист 2

Примечания

1 На рисунке представлены размеры лифтов со скоростью до 2,5 м/с включительно.

2 Лифты с символом обеспечивают доступность для инвалидов в кресле-коляске по ГОСТ 30471.

3 Лифты с символом обеспечивают возможность транспортирования носилок размером 600 x 2000 мм.

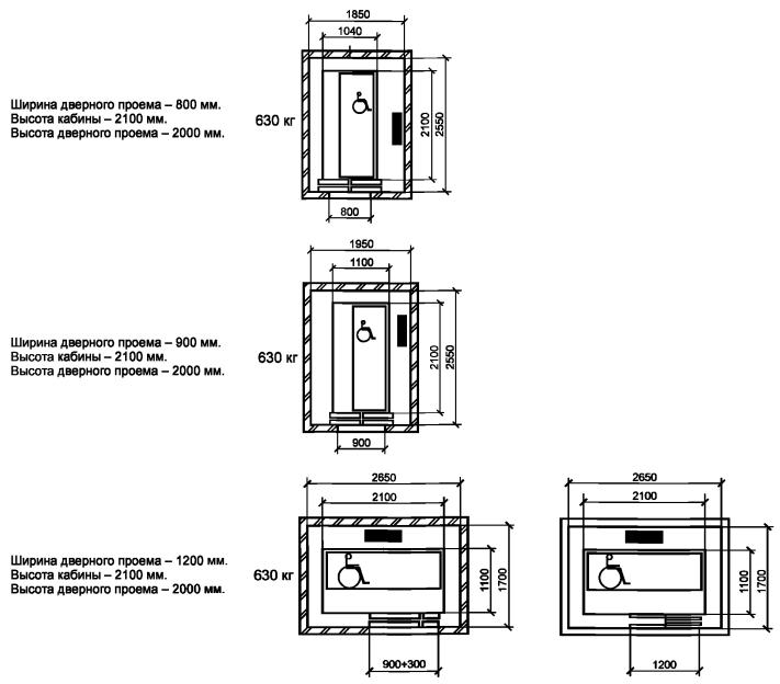
Рисунок 6 - Пассажирские лифты категории B, рекомендуемые для жилых зданий

Примечания

1 Лифты с символом обеспечивают доступность для инвалидов в кресле-коляске по ГОСТ 30471.

2 Лифты с символом обеспечивают возможность полного разворота кресла-коляски в кабине.

Рисунок 7 - Пассажирские лифты категории A, рекомендуемые для общественных зданий

Примечания

1 Размеры для лифтов со скоростью от 2,5 до 6,0 м/с включительно.

2 Лифты с символом обеспечивают возможность полного разворота кресла-коляски в кабине.

3 Обозначение "**" означает, что размер относится только к лифтам грузоподъемностью 1275 кг со скоростью 2,5 м/с.

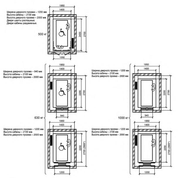
Рисунок 8 - Пассажирские лифты категории A, рекомендуемые для высотных зданий с интенсивными пассажиропотоками

Примечания

1 На рисунке представлены размеры для лифтов со скоростью до 2,5 м/с включительно.

2 Размеры в скобках указаны для гидравлических лифтов с боковым расположением гидроцилиндра.

3 Лифты с символом обеспечивают доступность для инвалидов на кресле-коляске.

4 Лифты с символом обеспечивают возможность полного разворота кресла-коляски в кабине.

5 Размеры кабин лифтов обеспечивают транспортирование больных на кроватях с максимальными габаритными размерами:

a - 900 x 2000 мм;

b - 1000 x 2300 мм;

c - 1000 x 2300 мм с дополнительным медицинским оборудованием.

Рисунок 9 - Пассажирские лифты категории A для лечебно-профилактических учреждений (больничные лифты)

<*> Размер для проходной кабины.

Примечания

1 Лифты с символом обеспечивают доступность для инвалидов в кресле-коляске.

2 Размеры кабин лифтов обеспечивают транспортирование больных на кроватях с максимальными габаритными размерами 900 x 2000 мм.

Рисунок 10 - Пассажирские лифты категории B для лечебно-профилактических учреждений (больничные лифты)

Приложение ДА
(справочное)

СОПОСТАВЛЕНИЕ СТРУКТУРЫ НАСТОЯЩЕГО СТАНДАРТА СО СТРУКТУРОЙ ПРИМЕНЕННОГО МЕЖДУНАРОДНОГО СТАНДАРТА

Структура настоящего стандартаСтруктура международного стандарта ISO 4190-1:2010
РазделРаздел
11
-2
23
34
45

БИБЛИОГРАФИЯ

[1]Технический регламент Таможенного союза ТР ТС 011/2011"Безопасность лифтов" (утвержден решением Комиссии Таможенного союза от 18 октября 2011 г. N 824)