Лифты грузовые. Основные параметры и размеры. ГОСТ 8823-2018

(утв. Приказом Росстандарта от 13.11.2018 N 983-СТ)
Редакция от 13.11.2018 — Действует с 01.05.2019

Текст данного документа приведен с учетом поправки, опубликованной в "ИУС", N 7, 2023.


МЕЖГОСУДАРСТВЕННЫЙ СТАНДАРТ

ЛИФТЫ ГРУЗОВЫЕ

ОСНОВНЫЕ ПАРАМЕТРЫ И РАЗМЕРЫ

Goods lifts. Basic parameters and dimensions (ISO 4190-2:2001, NEQ)

ГОСТ 8823-2018

Дата введения
1 мая 2019 года

Предисловие

Цели, основные принципы и основной порядок проведения работ по межгосударственной стандартизации установлены в ГОСТ 1.0-2015 "Межгосударственная система стандартизации. Основные положения" и ГОСТ 1.2-2015 "Межгосударственная система стандартизации. Стандарты межгосударственные, правила и рекомендации по межгосударственной стандартизации. Правила разработки, принятия, обновления и отмены"

Сведения о стандарте

1 РАЗРАБОТАН Ассоциацией "Российское лифтовое объединение" (Ассоциация "РЛО"), Публичным акционерным обществом "Карачаровский механический завод" (ПАО "КМЗ")

2 ВНЕСЕН Федеральным агентством по техническому регулированию и метрологии

3 ПРИНЯТ Межгосударственным советом по стандартизации, метрологии и сертификации (протокол от 30 октября 2018 г. N 113-П)

За принятие проголосовали:

Краткое наименование страны по МК (ИСО 3166) 004-97 Код страны по МК (ИСО 3166) 004-97 Сокращенное наименование национального органа по стандартизации
Азербайджан AZ Азстандарт
Беларусь BY Госстандарт Республики Беларусь
Киргизия KG Кыргызстандарт
Россия RU Росстандарт
Узбекистан UZ Узстандарт

4 Приказом Федерального агентства по техническому регулированию и метрологии от 13 ноября 2018 г. N 983-ст межгосударственный стандарт ГОСТ 8823-2018 введен в действие в качестве национального стандарта Российской Федерации с 1 мая 2019 г.

5 Настоящий стандарт разработан с учетом основных нормативных положений международного стандарта ISO 4190-2:2001 "Лифтовая (в США - элеваторная) установка. Часть 2. Лифты класса IV" ["Lift (US: Elevator) installation - Part 2: Class IV lifts", NEQ]

6 ВВЕДЕН ВПЕРВЫЕ

Информация об изменениях к настоящему стандарту публикуется в ежегодном информационном указателе "Национальные стандарты", а текст изменений и поправок - в ежемесячном информационном указателе "Национальные стандарты". В случае пересмотра (замены) или отмены настоящего стандарта соответствующее уведомление будет опубликовано в ежемесячном информационном указателе "Национальные стандарты". Соответствующая информация, уведомление и тексты размещаются также в информационной системе общего пользования - на официальном сайте Федерального агентства по техническому регулированию и метрологии в сети Интернет (www.gost.ru)

Введение

В соответствии с современной классификацией лифтов по назначению в область применения настоящего стандарта включены грузовые лифты, предназначенные для транспортирования грузов без сопровождения людьми, кабина которых доступна для людей и средств напольного транспорта при загрузке/разгрузке лифта.

Таким образом, в настоящий стандарт не включены лифты, предназначенные в основном для транспортирования грузов, которые обычно сопровождаются людьми - грузопассажирские лифты, требования безопасности к которым содержатся в ГОСТ 33984.1-2016 (EN 81-20:2014) "Лифты. Общие требования безопасности к устройству и установке. Лифты для транспортирования людей или людей и грузов".

В настоящий стандарт включены:

- номинальная грузоподъемность 3200 кг: параметры и размеры лифтов с горизонтально-раздвижными дверями кабины и распашными дверями шахты;

- требования безопасности, определяющие высоту шахты лифтов, глубину приямка лифтов, а также размеры машинного помещения.

1 Область применения

1.1 Настоящий стандарт распространяется на грузовые лифты, предназначенные для транспортирования грузов без сопровождения людьми, кабина которых доступна для людей и средств напольного транспорта.

1.2 Грузовые лифты, включенные в настоящий стандарт, предназначены для установки в новые здания (сооружения).

Настоящий стандарт может быть использован в качестве нормативной базы при установке новых лифтов в существующие здания (сооружения).

1.3 Настоящий стандарт устанавливает основные параметры и размеры грузовых лифтов следующих видов:

- электрические;

- гидравлические.

1.4 Основные параметры и размеры лифтов могут отличаться от включенных в настоящий стандарт при условии соблюдения требований безопасности, установленных в техническом регламенте [1].

2 Нормативные ссылки

В настоящем стандарте использованы нормативные ссылки на следующие межгосударственные стандарты:

ГОСТ 8032-84 Предпочтительные числа и ряды предпочтительных чисел

ГОСТ 33984.1-2016 (EN 81-20:2014) Лифты. Общие требования безопасности к устройству и установке. Лифты для транспортирования людей или людей и грузов

Примечание - При пользовании настоящим стандартом целесообразно проверить действие ссылочных стандартов в информационной системе общего пользования - на официальном сайте Федерального агентства по техническому регулированию и метрологии в сети Интернет или по ежегодному информационному указателю "Национальные стандарты", который опубликован по состоянию на 1 января текущего года, и по выпускам ежемесячного информационного указателя "Национальные стандарты" за текущий год. Если ссылочный стандарт заменен (изменен), то при пользовании настоящим стандартом следует руководствоваться заменяющим (измененным) стандартом. Если ссылочный стандарт отменен без замены, то положение, в котором дана ссылка на него, применяется в части, не затрагивающей эту ссылку.

3 Термины и определения

В настоящем стандарте применены следующие термины с соответствующими определениями:

3.1 номинальная грузоподъемность грузового лифта: Масса груза, для перевозки которого предназначен лифт.

Примечание - При использовании для загрузки лифта и транспортирования в нем средств напольного транспорта их масса должна быть учтена, но не входить в номинальную грузоподъемность лифта.

3.2

дверь кабины (шахты) горизонтально-раздвижная: Дверь, створка(и) которой перемещается(ются) по направляющей в горизонтальном направлении.
[ГОСТ 33605-2015, пункт 3.5.28]

3.3

дверь кабины (шахты) вертикально-раздвижная: Дверь, створка(и) которой перемещается(ются) по направляющей в вертикальном направлении.
[ГОСТ 33605-2015, пункт 3.5.30]

3.4 дверь кабины (шахты) телескопическая: Дверь, створки которой перемещаются в параллельных плоскостях, при открывании заходя одна за другую.

3.5

дверь кабины (шахты) центрального открывания: Дверь, створки которой при движении перемещаются в противоположные направления от центра (к центру).
[ГОСТ 33605-2015, пункт 3.5.31]

3.6

дверь кабины (шахты) горизонтально-раздвижная одностороннего открывания: Дверь, створки(а) которой перемещаются(ется) в одну сторону.
[ГОСТ 33605-2015, пункт 3.5.33]

3.7

дверь кабины (шахты) распашная: Дверь, створка(и) которой перемещается(ются) вокруг шарнирного крепления к порталу двери.
[ГОСТ 33605-2015, пункт 3.5.34]

3.8 кабина грузового лифта: Часть лифта, предназначенная для размещения и транспортирования груза, оборудованная ограждением в виде стен, пола, потолка и двери.

3.9 грузовой лифт: Лифт, предназначенный для транспортирования грузов без сопровождения людьми, кабина которого доступна для людей и средств напольного транспорта при загрузке и разгрузке.

Примечание - Лифт оборудован наружным управлением.

3.10

машинное помещение: Специальное помещение, имеющее стены, пол, потолок и дверь (двери) и/или люк и предназначенное для размещения одного или нескольких приводов лифтов и/или связанного с ним оборудования.
[ГОСТ 33605-2015, пункт 3.4.5]

3.11

приямок: Часть шахты лифта, расположенная ниже уровня нижней этажной (погрузочной) площадки.
[ГОСТ 33605-2015, пункт 3.4.6]

3.12 доступная площадь кабины: Площадь кабины лифта, измеренная и рассчитанная по результатам измерений при закрытых дверях на высоте 1 м от уровня пола кабины, которая используется для размещения транспортируемых грузов.

3.13

номинальная скорость: Скорость движения кабины лифта, на которую рассчитан лифт.
[ГОСТ 33605-2015, пункт 3.3.4]

3.14 шахта лифта: Пространство, в котором перемещается кабина, противовес и/или уравновешивающий груз (при их наличии), а также другое оборудование лифта.

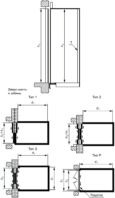
3.15 Внутренние размеры кабины, шахты машинного помещения (см. рисунки 1 - 6):

1 - элементы защиты купе кабины; - ширина кабины;
- ширина дверного проема;
- глубина кабины; - высота дверного проема;
- высота кабины
а - Горизонтально-раздвижные двери

Примечание - Типы дверей:

тип 1 - горизонтально-раздвижная телескопическая дверь одностороннего открывания;

тип 2 - горизонтально-раздвижная телескопическая дверь центрального открывания;

тип 3 - горизонтально-раздвижная телескопическая дверь центрального открывания. Ширина дверного проема меньше ширины кабины;

тип Р - распашные двери шахты и горизонтально-раздвижные решетчатые двери кабины центрального открывания.

Рисунок 1, лист 1 - Грузовые лифты. Обозначения размеров кабины и дверного проема

б - Вертикально-раздвижные двери
- ширина кабины; - ширина дверного проема;
- глубина кабины; - высота дверного проема;
- высота кабины; 1 - элементы защиты купе кабины;
2 - вертикально-раздвижные двери центрального открывания;
3 - вертикально-раздвижные двери центрального открывания;
4 - вертикально-раздвижные телескопические двери
(открывание вверх)

Рисунок 1, лист 2

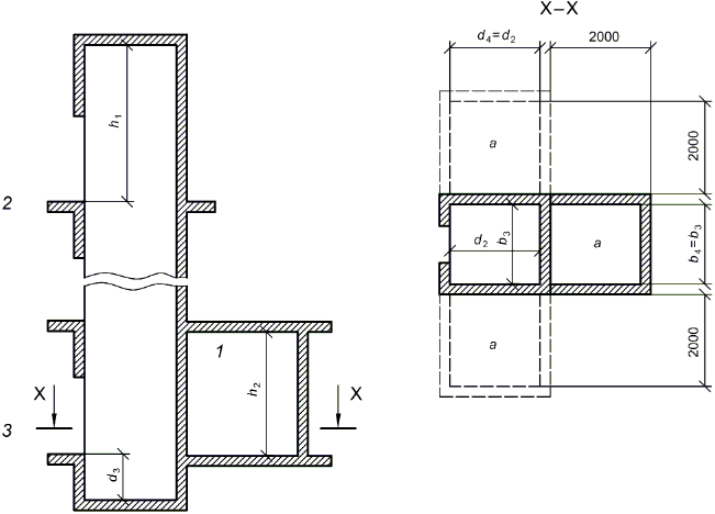
- ширина шахты; - ширина машинного помещения;
- глубина шахты; - глубина приямка; d4 - глубина машинного помещения; - расстояние от уровня верхней остановки;
- высота машинного помещения; a - двери шахты в соответствии с рисунком 1; b - дверь в машинное помещение (не показана);
1 - машинное помещение; 2 - люк; 3 - верхняя остановка; 4 - нижняя остановка

Рисунок 2 - Электрические грузовые лифты. Обозначения размеров шахты и машинного помещения

- ширина шахты; - ширина машинного помещения;
- глубина шахты; - глубина приямка; - глубина машинного помещения; - расстояние от уровня верхней остановки;
- высота машинного помещения; а - двери шахты в соответствии с рисунком 1; дверь в машинное помещение (не показана);
1 - машинное помещение; 2 - верхняя остановка; 3 - нижняя остановка

Рисунок 3 - Гидравлические грузовые лифты. Обозначения размеров шахты и машинного помещения

Рисунок 4, лист 1 - Грузовые лифты с дверями типов 1, 2 и Р
(проходные и непроходные кабины)

Примечания

1 В скобках указаны размеры шахты для проходных кабин.

2 Могут быть применены двери других конструкций. В этом случае размеры шахт могут отличаться от указанных на рисунке.

Рисунок 4, лист 2

<*> Размеры только для вертикально-раздвижных телескопических дверей типа 6.

Примечания

1 В скобках указаны размеры шахты для проходных кабин.

2 Могут быть применены двери других конструкций; в этом случае размеры шахт могут быть другими.

Рисунок 5 - Грузовые лифты с вертикально-раздвижными дверями типов 4, 5, 6 (проходные и непроходные кабины)

<*> Размеры для лифтов с канатоведущим приводом и гидравлических лифтов непрямого действия.

<**> Размеры для гидравлических лифтов прямого действия.

<***> Размеры для проходной кабины.

Примечания

1 Могут быть применены двери других конструкций; в этом случае размеры шахт могут отличаться от указанных на настоящем рисунке.

2 Лифты с дверями типа Р - электрические.

Рисунок 6, лист 1 - Грузовые лифты с дверями типов 3 и Р

<*> Размеры для лифтов с канатоведущим приводом и гидравлических лифтов непрямого действия.

<**> Размеры для гидравлических лифтов прямого действия.

<***> Размеры для проходной кабины.

Примечания

1 Могут быть применены двери других конструкций; в этом случае размеры шахт могут отличаться от указанных на настоящем рисунке.

2 Лифты с дверями типа Р - электрические.

Рисунок 6, лист 2

3.15.1

ширина кабины : Горизонтальное расстояние между внутренними поверхностями стен кабины лифта, измеренное параллельно передней стенке входа в кабину, без учета выступающих поручней.
[ГОСТ 33605-2015, пункт 3.3.18]

3.15.2

глубина кабины : Горизонтальное расстояние между внутренними поверхностями передней и задней стен кабины лифта, измеренное перпендикулярно к ширине кабины, без учета выступающих поручней.
[ГОСТ 33605-2015, пункт 3.3.13]

3.15.3

высота кабины : Расстояние по вертикали между полом и потолком (силовым или декоративным) кабины.
Примечание - Устройства освещения кабины могут находиться внутри этого размера.

[ГОСТ 33605-2015, пункт 3.3.10]

3.15.4

ширина дверного проема : Ширина входа в лифт в свету, измеренная при полностью открытых дверях кабины и шахты.
[ГОСТ 33605-2015, пункт 3.3.17]

3.15.5 высота дверного проема : Высота входа в свету, измеренная при полностью открытых дверях кабины и шахты.

3.15.6

ширина шахты : Расстояние по горизонтали между внутренними поверхностями боковых стен шахты, измеренное параллельно ширине кабины.
[ГОСТ 33605-2015, пункт 3.3.20]

3.15.7

глубина шахты : Расстояние по горизонтали между внутренними поверхностями передней и задней стен шахты, измеренное перпендикулярно к ширине шахты.
[ГОСТ 33605-2015, пункт 3.3.16]

3.15.8

глубина приямка : Минимальное расстояние по вертикали от уровня порога двери шахты крайней нижней этажной площадки до пола шахты.
[ГОСТ 33605-2015, пункт 3.3.15]

3.15.9

высота шахты от верхней этажной площадки (высота верхнего этажа) : Минимальное расстояние от уровня пола верхней этажной площадки до нижней части элементов перекрытия шахты.
[ГОСТ 33605-2015, пункт 3.3.12]

3.15.10

ширина машинного помещения : Расстояние по горизонтали между внутренними поверхностями стен машинного помещения, измеренное параллельно ширине кабины.
[ГОСТ 33605-2015, пункт 3.3.19]

3.15.11

глубина машинного помещения : Расстояние по горизонтали между внутренними поверхностями стен машинного помещения, измеренное перпендикулярно к ширине машинного помещения.
[ГОСТ 33605-2015, пункт 3.3.14]

3.15.12

высота машинного помещения : Расстояние по вертикали между уровнем пола машинного помещения, на котором размещено оборудование лифта, и потолком машинного помещения.
[ГОСТ 33605-2015, пункт 3.3.11]

3.16 система управления лифтом: Совокупность устройств управления, обеспечивающих работу лифта в соответствии с заданной программой.

3.17 наружная система управления лифтом: Совокупность устройств управления, реализующая вид управления, при котором команда управления на пуск лифта подается только с погрузочных площадок.

3.18

буфер: Устройство, предназначенное для ограничения величины замедления движущейся кабины, противовеса с целью снижения опасности получения травм или поломки оборудования при переходе кабиной, противовесом крайнего рабочего положения.
[ГОСТ 33605-2015, пункт 3.5.3]

3.19

ловители: Устройства, предназначенные для остановки и удержания кабины (противовеса) на направляющих при превышении установленной величины скорости и/или при обрыве тяговых элементов.
[ГОСТ 33605-2015, пункт 3.5.17]

4 Параметры лифтов

4.1 Ряд номинальных грузоподъемностей

Числовые значения номинальных грузоподъемностей грузовых лифтов выбирают из ряда чисел, близкого к ряду предпочтительных чисел по ГОСТ 8032: 500; 630; 1000; 1600; 2000; 2500; 3200; 3500; 5000.

Значения номинальных грузоподъемностей являются рекомендуемыми. Допускается использовать другие значения грузоподъемности, соответствующие требованиям рынка.

4.2 Ряд номинальных скоростей

Числовые значения номинальных скоростей движения кабины грузовых лифтов выбирают из ряда чисел, близких к ряду предпочтительных чисел R5 по ГОСТ 8032: 0,25; 0,40; 0,50; 0,63; 1,0; 1,60; 1,75; 2,5.

Значения номинальных скоростей являются рекомендуемыми. Допускается использовать другие значения скорости, соответствующие требованиям рынка.

5 Размеры

5.1 Внутренние размеры кабины

Ширина, глубина и высота грузового лифта определяются с учетом размеров грузов, для транспортирования которых он предназначен, включая размеры контейнеров, поддонов, а также средств напольного транспорта, используемых при загрузке и транспортировании грузов.

Расстояние от пола кабины до декоративного потолка (при его наличии) должно быть не менее 2000 мм на грузовых лифтах, в которые возможен вход людей.

Официальный источник электронного документа содержит неточность: таблицы 4 и 5 отсутствуют.

Размеры кабины грузовых лифтов приведены в таблицах 1, 2, 4 и 5 и на рисунках 4, 6 и 7.

Таблица 1

Вертикальные размеры кабины и шахты грузовых лифтов с горизонтально раздвижными дверями типов 1, 2, 3 и Р (см. рисунок 1)

Параметр Номинальная скорость V, м/с Номинальная грузоподъемность, кг
500 630 1000 1600 2000 2500 3200 <*> 3500 5000
Высота кабины - 2000 <*> 2100 2000 <*>
2100
2200 <*>
2100 2100
2200 <*>
2500
3000
2500
3000
2200 <*> 2500
3000
2400 <*>
2500
3000
Высота дверного проема кабины и шахты - 2000 <*> 2100 2000 <*>
2100
2200 <*>
2100 2100
2200 <*>
2100 <**>
2700 <***>
2500
2100 <**>
2700 <***>
2200 <*> 2100
2500
2700
2100
2400 <*>
2500
2700
Глубина приямка 0,25 1300 <*> 1400 1300 <*>
1400
1600 1300 <*>
1400
1600
1400
1600
1300 <*>
1700 <*>
1600 1300 <*>
1400
0,40
0,50
0,63
1,00 1400 1400 1600/
1800 <**>
1800 1800 1800 1800
1,6 1800 1800 1800 1800 1800
1,75
2,50 2400 2400 2400 2400 2400 2400 2400 2400 2400
Расстояние от уровня верхней остановки кабины до перекрытия шахты 0,25 3300 <*> 3700 3600 <*>
3700
4200 3600 <*>
4200
4600
4500 <**>
5000 <***>
3600 <*> 4600
4500 <**>
5000 <***>
4000 <*>
4600
4500 <**>
5000 <***>
0,40
0,50
0,63
1,00 3700 3700 4200
5000 <**>
5000 <***>
4600
5000 <**>
5500 <***>
4600 4600
5000 <**>
5500 <***>
4600
5000 <**>
5500 <***>
1,6 5100 <**>
5600 <***>
5100 <**>
5600 <***>
5100 <**>
5600 <***>
5100 <**>
5600 <***>
1,75 5200 <**>
5700 <***>
5200 <**>
5700 <***>
5200 <**>
5700 <***>
5200 <**>
5700 <***>
2,50 5650 5650 5650
6150
5650
6150
5650 <**>
6150 <***>
5650 <**>
6150 <***>
5650 5650 <**>
6150 <***>
5650 <**>
6150 <***>
<*> Размеры для дверей типа 3 и Р.
<**> Высота кабины 2500 мм.
<***> Высота кабины 3000 мм.

Примечание - Скорости 1,6; 1,75; 2,50 - только для электрических лифтов.

Таблица 2

Вертикальные размеры кабины и шахты грузовых лифтов с вертикально-раздвижными дверями

Параметр Номинальная скорость V, м/с Номинальная грузоподъемность, кг
1600 2000 2500 3500 5000
Высота кабины - 2100 2100
2500
3000
2500
3000
Высота дверного проема кабины и шахты - 2100 2100
2500 <**>
3000 <***>
2500 <**>
3000 <***>
Глубина приямка 0,25 1600 1600
1400 <**>
1850 <***>
0,40
0,50
0,63
1,00 1600
1800
1,6 <*> 1800 1800
1,75 <*>
2,50 <*> 2400 2400
Расстояние от уровня верхней остановки кабины до перекрытия шахты 0,25 4200 4200
4500 <**>
5250 <***>
4600
4500 <**>
5250 <***>
0,40
0,50
0,63
1,00 4200
5100 <**>
5600 <***>
4600
5100 <**>
5600 <***>
1,6 <*> 5100 5100 <**>
5600 <***>
1,75 <*> 5200 5200 <**>
5700 <***>
2,50 <*> 5600 5650 <**>
6150 <***>
<*> Скорость только для электрических лифтов.
<**> Высота кабины 2500 мм.
<***> Высота кабины 3000 мм.

Примечание - Минимальное допустимое расстояние между остановками определяется изготовителем с учетом применяемого типа вертикально-раздвижных дверей.

Таблица 3

Размеры машинных помещений грузовых лифтов с вертикально- и горизонтально-раздвижными дверями

Параметр Номинальная грузоподъемность, кг
500 630 1000 1600 2000 2500 3200 3500 5000
Машинное помещение для электрических лифтов x , не менее 3150 x 3700 2500 x 3700 3200 x 4900 3000 x 5000
3550 x 4700 <*>
3700 x 3200 <*>
Машинное помещение для гидравлических лифтов x <**>, не менее Ширина или глубина шахты x 2000
<*> Размеры для лифтов грузоподъемностью 3200 кг и дверей типа Р.
<**> Размер машинного помещения гидравлических лифтов с вертикально-раздвижными дверями грузоподъемностью 2500; 3200; 3500 и 5000 кг определяет изготовитель.

<*> Размеры для лифтов с канатоведущим приводом и гидравлических лифтов непрямого действия.

<**> Размеры для гидравлических лифтов прямого действия.

<***> Размеры только для вертикально-раздвижных телескопических дверей типа 6.

Примечание - Могут быть применены двери других конструкций; в этом случае размеры шахт могут быть другими.

Рисунок 7 - Грузовые лифты с вертикально-раздвижными дверями типов 4, 5, 6

5.2 Размеры дверного проема

Размеры дверного проема грузового лифта должны обеспечивать безопасную загрузку и выгрузку транспортируемых грузов, а также безопасный вход в кабину и выход из нее людей при загрузке/выгрузке груза.

Ширина в свету дверного проема двери шахты должна быть не более ширины в свету дверного проема дверей кабины.

Высота в свету проема дверей шахты и дверей кабины, в которую возможен вход людей, должна быть не менее 2000 мм.

Размеры дверного проема грузовых лифтов приведены в таблицах 1 и 2 и на рисунке 1.

5.3 Внутренние размеры шахты лифта

Внутренние размеры шахты лифта должны обеспечивать безопасность и работоспособность размещаемого в ней лифтового оборудования.

Рабочие зоны для обслуживания оборудования в шахте должны иметь размеры, достаточные для безопасного выполнения работ персонала.

Крайние допустимые положения кабины, противовеса и уравновешивающего груза в шахте должны соответствовать требованиям ГОСТ 33984.1 (подпункт 5.2.5.6), а пространства безопасности для персонала и зазоры в приямке - ГОСТ 33984.1 (подпункты 5.2.5.7 и 5.2.5.8).

5.3.1 Ширина и глубина шахты лифта

Глубина шахты лифта должна обеспечивать безопасное горизонтальное расстояние между порогами погрузочной площадки и кабины для входа людей в кабину и выхода из нее, для въезда в кабину средств напольного транспорта.

Расстояние между элементами конструкции кабины и шахты лифта должно исключать возможность проникновения человека в шахту при открытых дверях шахты и/или кабины при нахождении кабины в зоне погрузочной площадки.

При оборудовании противовеса ловителями ширина или глубина шахты должны быть увеличены.

5.3.2 Высота шахты лифта

Высота шахты лифта, оборудованного лебедкой с канатоведущим шкивом или барабаном трения, должна быть такой, чтобы при противовесе (кабине), находящемся(ейся) на полностью сжатых буферах, одновременно обеспечивались:

а) возможность перемещения кабины (противовеса) по направляющим без взаимодействия элементов лифта с нижней частью перекрытия шахты на расстояние не менее 0,1 + 0,035V2;

б) зазор между уровнем предназначенной для размещения обслуживающего персонала площадки на крыше кабины и расположенной в проекции кабины нижней частью перекрытия шахты, включая балки и размещенные под перекрытием элементы конструкции, не менее 1,0 + 0,0035V2 (м);

в) свободное пространство над кабиной, достаточное для размещения параллелепипеда размерами не менее 0,5 x 0,6 x 0,8 м, лежащего на одной из своих граней.

При оборудовании крыши кабины лифта перилами высота шахты должна определяться с учетом высоты перил.

5.3.3 Глубина приямка шахты лифта

При нахождении кабины лифта на полностью сжатых буферах должны быть обеспечены:

а) свободное пространство в приямке, достаточное для размещения прямоугольного параллелепипеда размерами не менее 0,5 x 0,6 x 1,0 м, лежащего на одной из своих граней;

б) зазор от пола приямка до нижних частей кабины не менее 0,5 м.

5.4 Размеры машинного помещения

Высота в свету зон обслуживания оборудования в машинном помещении должна быть не менее 2,0 м.

Высота в свету прохода к зонам обслуживания оборудования должна быть не менее 1,8 м, а ширина проходов - не менее 0,5 м.

Перед расположенными в машинном помещении устройствами управления должна быть предусмотрена зона обслуживания (свободная площадка) размерами:

а) глубина, измеренная от наружной поверхности шкафов или панелей, не менее 0,75 м;

б) ширина, равная полной ширине шкафа или панели, но не менее 0,5 м.

Для обслуживания подвижных частей механического оборудования, расположенного в машинном помещении, должна быть предусмотрена зона обслуживания (свободная площадка) размерами не менее 0,5 x 0,6 м.

В настоящем стандарте предусмотрено размещение машинного помещения электрических лифтов над шахтой лифта (см. рисунок 2).

Машинные помещения гидравлических лифтов должны быть расположены сбоку или сзади шахты в нижней части здания, в котором установлены лифты (см. рисунок 3).

Размеры машинного помещения грузовых лифтов приведены в таблице 3 и на рисунках 2 и 3.

БИБЛИОГРАФИЯ

[1] Технический регламент Таможенного союза ТР ТС 011/2011 Безопасность лифтов