Постановление Правительства Москвы от 25.12.2013 N 902-ПП

"О размещении информационных конструкций в городе Москве"
Редакция от 07.03.2017 — Не действует Перейти в действующую
Показать изменения

ПРАВИТЕЛЬСТВО МОСКВЫ

ПОСТАНОВЛЕНИЕ
от 25 декабря 2013 г. N 902-ПП

О РАЗМЕЩЕНИИ ИНФОРМАЦИОННЫХ КОНСТРУКЦИЙ В ГОРОДЕ МОСКВЕ

(в ред. Постановлений Правительства Москвы от 29.04.2014 N 234-ПП, от 27.08.2014 N 496-ПП, от 02.09.2014 N 500-ПП, от 28.11.2014 N 702-ПП, от 10.12.2014 N 753-ПП, от 20.04.2015 N 210-ПП, от 15.05.2015 N 275-ПП, от 21.05.2015 N 307-ПП, от 22.09.2015 N 609-ПП, от 03.11.2015 N 725-ПП, от 18.11.2015 N 765-ПП, от 19.07.2016 N 430-ПП, от 07.03.2017 N 85-ПП)

В целях упорядочения размещения информационных конструкций в городе Москве Правительство Москвы постановляет:

1. Утвердить:

1.1. Правила размещения и содержания информационных конструкций в городе Москве (приложение 1).

1.2. Административный регламент предоставления государственной услуги города Москвы "Согласование дизайн-проекта размещения вывески" (приложение 2).

2. Установить, что:

2.1. Вывески, указанные в пункте 3.5 приложения 1 к настоящему постановлению, подлежат приведению в соответствие с требованиями, установленными Правилами размещения и содержания информационных конструкций в городе Москве (далее - Правила размещения информационных конструкций), в следующие сроки (за исключением случаев, указанных в пунктах 2.2 и 2.4 настоящего постановления): (в ред. Постановления Правительства Москвы от 27.08.2014 N 496-ПП)

2.1.1. В срок до 1 мая 2014 г. - вывески, размещенные на внешних поверхностях зданий, строений, сооружений, расположенных на территории города Москвы в пределах внешних границ Садового кольца.

2.1.2. В срок до 1 января 2015 г. - вывески, размещенные на внешних поверхностях зданий, строений, сооружений, расположенных на территории города Москвы в пределах внешних границ Третьего транспортного кольца.

2.1.3. В срок до 1 июля 2017 г. - вывески, размещенные на внешних поверхностях зданий, строений, сооружений, расположенных на иной территории города Москвы. (в ред. Постановления Правительства Москвы от 20.04.2015 N 210-ПП)

2.1.4. В срок до 1 января 2016 г. - ценовые табло (стелы) автозаправочных станций. (в ред. Постановления Правительства Москвы от 15.05.2015 N 275-ПП)

2.2. В срок не позднее 10 дней со дня вступления в силу настоящего постановления Комитет по архитектуре и градостроительству города Москвы утверждает Программу разработки в 2014 году Архитектурно-художественных концепций внешнего облика улиц, магистралей и территорий города Москвы (далее - Архитектурно-художественные концепции), на которых вывески, указанные в пункте 3.5 приложения 1 к настоящему постановлению, размещаются в соответствии с требованиями данных Архитектурно-художественных концепций.

В срок до 1 октября 2016 г. Комитет по архитектуре и градостроительству города Москвы утверждает Программу разработки в 2016 году Архитектурно-художественных концепций в отношении улиц, магистралей и территорий города Москвы, расположенных за пределами внешних границ Третьего транспортного кольца, на которые Архитектурно-художественные концепции ранее не разрабатывались, на которых вывески, указанные в пункте 3.5 приложения 1 к настоящему постановлению, размещаются в соответствии с требованиями данных Архитектурно-художественных концепций. (в ред. Постановления Правительства Москвы от 19.07.2016 N 430-ПП)

Программа разработки Архитектурно-художественных концепций включает перечень улиц, магистралей и территорий города Москвы, на которые разрабатываются указанные концепции, а также сроки их разработки и утверждения.

Вывески, размещенные на внешних поверхностях зданий, строений, сооружений улиц, магистралей и территорий города Москвы, в отношении которых утверждены Архитектурно-художественные концепции, подлежат приведению в соответствие с требованиями соответствующих Архитектурно-художественных концепций в течение месяца со дня их утверждения. (в ред. Постановления Правительства Москвы от 27.08.2014 N 496-ПП)

Абзац - Утратил силу. (в ред. Постановления Правительства Москвы от 27.08.2014 N 496-ПП)

Вывески, указанные в пункте 3.5 приложения 1 к настоящему постановлению, размещенные на торговых, развлекательных центрах, кинотеатрах, театрах, цирках, а также на автозаправочных станциях, расположенных на улицах, магистралях и территориях города Москвы, в отношении которых утверждены Архитектурно-художественные концепции, указанные в абзацах первом и втором настоящего пункта, подлежат приведению в соответствие с требованиями, установленными Правилами размещения информационных конструкций, в срок до 1 июля 2017 г. (в ред. Постановления Правительства Москвы от 19.07.2016 N 430-ПП)

2.3. В случае неприведения вывесок в соответствие с требованиями Правил размещения информационных конструкций или Архитектурно-художественных концепций в сроки, указанные в пунктах 2.1 и 2.2 настоящего постановления, Объединение административно-технических инспекций города Москвы выявляет такие вывески и выдает Департаменту средств массовой информации и рекламы города Москвы предписания об их демонтаже. Департамент средств массовой информации и рекламы города Москвы осуществляет принудительный демонтаж вывесок на основании указанных предписаний. (в ред. Постановления Правительства Москвы от 27.08.2014 N 496-ПП)

2.4. До 1 июля 2016 г. не подлежат демонтажу:

2.4.1. Вывески, размещенные на день вступления в силу настоящего постановления в рамках реализации пилотного проекта по организации размещения информационных конструкций в городе Москве в соответствии с постановлением Правительства Москвы от 12 декабря 2012 г. N 714-ПП "О проведении пилотного проекта по организации размещения информационных конструкций в городе Москве".

2.4.2. Вывески, размещенные на основании разрешений на установку информационных конструкций или разрешений на установку объектов наружной рекламы и информации, выданных в установленном порядке Комитетом рекламы, информации и оформления города Москвы, Департаментом средств массовой информации и рекламы города Москвы до дня вступления в силу настоящего постановления в 2010 - 2013 годах и содержащих информацию о сроке действия указанных разрешений.

Вывески, указанные в абзаце первом настоящего пункта, размещенные на основании разрешений на установку информационных конструкций или разрешений на установку объектов наружной рекламы и информации, срок действия которых заканчивается до 1 июля 2016 г., подлежат приведению в соответствие с требованиями, установленными Правилами размещения информационных конструкций, в течение месяца со дня истечения срока действия указанных разрешений.

Вывески, указанные в абзаце первом настоящего пункта, размещенные на основании разрешений на установку информационных конструкций или разрешений на установку объектов наружной рекламы и информации, которые не содержат информацию о сроке их действия (бессрочные разрешения), подлежат приведению в соответствие с требованиями, установленными Правилами размещения информационных конструкций, в сроки, указанные в пунктах 2.1 и 2.2 настоящего постановления. (в ред. Постановления Правительства Москвы от 15.05.2015 N 275-ПП)

2.4.3. Вывески, размещенные на сооружениях, размещенных на основании разрешений на установку информационных конструкций или разрешений на установку объектов наружной рекламы и информации, выданных в установленном порядке Комитетом рекламы, информации и оформления города Москвы, Департаментом средств массовой информации и рекламы города Москвы до дня вступления в силу настоящего постановления в 2010 - 2013 годах, в границах земельного участка, на котором располагаются здания, строения, сооружения, являющиеся местом фактического нахождения, осуществления деятельности организации, индивидуального предпринимателя, сведения о которых содержатся в данных вывесках. (в ред. Постановления Правительства Москвы от 15.05.2015 N 275-ПП)

2.5. Документы, поданные до дня вступления в силу настоящего постановления юридическими лицами и индивидуальными предпринимателями в Департамент средств массовой информации и рекламы города Москвы в целях получения разрешений на установку информационных конструкций в соответствии с постановлением Правительства Москвы от 21 ноября 2006 г. N 908-ПП "О порядке установки и эксплуатации информационных конструкций в городе Москве и городской конкурсной комиссии по проведению открытых конкурсов (аукционов) на установку и эксплуатацию рекламных конструкций", со дня вступления в силу настоящего постановления не подлежат дальнейшему рассмотрению и возвращаются заявителю.

2.6. Комитет по архитектуре и градостроительству города Москвы обеспечивает разработку Архитектурно-художественных концепций и мониторинг градостроительной ситуации с целью актуализации Архитектурно-художественных концепций. (в ред. Постановления Правительства Москвы от 15.05.2015 N 275-ПП)

2.7. Разработку Архитектурно-художественных концепций осуществляет Государственное унитарное предприятие города Москвы "Главное архитектурно-планировочное управление Москомархитектуры".

2.8. Архитектурно-художественные концепции, разработанные и утвержденные в рамках реализации пилотного проекта по организации размещения информационных конструкций в городе Москве, проведенного в соответствии с постановлением Правительства Москвы от 12 декабря 2012 г. N 714-ПП "О проведении пилотного проекта по организации размещения информационных конструкций в городе Москве", признаются действующими и подлежат применению в части, не противоречащей Правилам размещения информационных конструкций. (в ред. Постановления Правительства Москвы от 15.05.2015 N 275-ПП)

Архитектурно-художественные концепции, разработанные и утвержденные в рамках реализации постановления Правительства Москвы от 12 декабря 2012 г. N 714-ПП "О проведении пилотного проекта по организации размещения информационных конструкций в городе Москве", подлежат актуализации после 1 июля 2016 г. с учетом положений Правил размещения информационных конструкций. (в ред. Постановления Правительства Москвы от 29.04.2014 N 234-ПП)

Размещение витринных конструкций на внешних поверхностях зданий, строений, сооружений, расположенных на улицах, магистралях и территориях города Москвы, в отношении которых разработаны и утверждены Архитектурно-художественные концепции в рамках реализации постановления Правительства Москвы от 12 декабря 2012 г. N 714-ПП "О проведении пилотного проекта по организации размещения информационных конструкций в городе Москве", осуществляется в соответствии с Правилами размещения информационных конструкций. (в ред. Постановления Правительства Москвы от 29.04.2014 N 234-ПП)

2.9. Вывески, размещаемые со дня вступления в силу настоящего постановления, в том числе в соответствии с Архитектурно-художественными концепциями, указанными в пункте 2.8 настоящего постановления, должны соответствовать требованиям Правил размещения информационных конструкций.

Вывески, не соответствующие требованиям Правил размещения информационных конструкций, подлежат демонтажу в установленном порядке. (в ред. Постановления Правительства Москвы от 29.04.2014 N 234-ПП)

2.10. С 1 мая 2014 г. подлежат демонтажу в установленном порядке следующие вывески, не соответствующие требованиям Правил размещения информационных конструкций (за исключением вывесок, указанных в пункте 2.4 настоящего постановления):

2.10.1. Вывески, размещенные на крышах зданий, строений, сооружений.

2.10.2. Вывески, в конструкции которых используется баннерная ткань (за исключением афиш, а также использования баннерной ткани в качестве лицевой поверхности световых коробов в случае размещения вывесок на внешних поверхностях зданий, строений, сооружений (кроме многоквартирных домов). (в ред. Постановления Правительства Москвы от 15.05.2015 N 275-ПП)

2.10.3. Вывески, размещенные в виде отдельно стоящих сборно-разборных (складных) конструкций - штендеров.

2.10.4. Вывески, размещенные на фасадах многоквартирных домов выше линии второго этажа (линии перекрытий между первым и вторым этажами).

2.10.5. Вывески, являющиеся настенными конструкциями, с общей длиной, включая элементы крепления, подложку, более 15 метров и (или) площадью конструкции более 10 кв. м (включительно) - для вывесок, расположенных на фасадах многоквартирных домов (за исключением вывесок, указанных в абзаце первом пункта 2.2 настоящего постановления).

2.10.6. Вывески, в конструкции которых используются мигающие (мерцающие) элементы.

2.10.7. Пункт утратил силу. (в ред. Постановления Правительства Москвы от 27.08.2014 N 496-ПП)

2.10.8. Вывески - витринные конструкции, размещенные в виде электронных носителей - экранов (телевизоров) на всю высоту и (или) длину остекления витрины.

В целях настоящего постановления под витринами понимается пространство, сформированное архитектурным проектом здания, ограниченное с внешней стороны остеклением и используемое исключительно для экспозиции товаров и услуг. (в ред. Постановления Правительства Москвы от 19.07.2016 N 430-ПП)

2.10.9. Вывески, размещенные с помощью демонстрации постеров на динамических системах смены изображений (роллерные системы, системы поворотных панелей - призматроны и др.) или с помощью изображения, демонстрируемого на электронных носителях (экраны (телевизоры), бегущая строка и т.д.) (за исключением вывесок, размещенных в витрине с использованием электронного носителя - экрана (телевизора).

2.10.10. Вывески, выявленные Департаментом средств массовой информации и рекламы города Москвы. (в ред. Постановления Правительства Москвы от 29.04.2014 N 234-ПП)

3. Внести изменения в правовые акты города Москвы согласно приложению 3 к настоящему постановлению.

4. Признать утратившими силу правовые акты (отдельные положения правовых актов) города Москвы согласно приложению 4 к настоящему постановлению.

5. Настоящее постановление вступает в силу со дня его официального опубликования.

6. Контроль за выполнением настоящего постановления возложить на заместителя Мэра Москвы в Правительстве Москвы по вопросам жилищно-коммунального хозяйства и благоустройства Бирюкова П.П., заместителя Мэра Москвы в Правительстве Москвы по вопросам градостроительной политики и строительства Хуснуллина М.Ш. и заместителя Мэра Москвы в Правительстве Москвы по вопросам региональной безопасности и информационной политики Горбенко А.Н.

Мэр Москвы
С.С. СОБЯНИН

Приложение 1
к постановлению
Правительства Москвы
от 25 декабря 2013 г. N 902-ПП

ПРАВИЛА РАЗМЕЩЕНИЯ И СОДЕРЖАНИЯ ИНФОРМАЦИОННЫХ КОНСТРУКЦИЙ В ГОРОДЕ МОСКВЕ

(в ред. Постановлений Правительства Москвы от 29.04.2014 N 234-ПП, от 27.08.2014 N 496-ПП,от 28.11.2014 N 702-ПП, от 10.12.2014 N 753-ПП, от 15.05.2015 N 275-ПП, от 22.09.2015 N 609-ПП, от 03.11.2015 N 725-ПП, от 18.11.2015 N 765-ПП, от 19.07.2016 N 430-ПП, от 07.03.2017 N 85-ПП)

I. Общие положения

1. Настоящие Правила размещения и содержания информационных конструкций в городе Москве (далее - Правила) определяют виды информационных конструкций, размещаемых в городе Москве, устанавливают требования к указанным информационным конструкциям, их размещению и содержанию. Неотъемлемой составной частью настоящих Правил является Графическое приложение к Правилам (приложение к настоящим Правилам).

2. Информационная конструкция - объект благоустройства, выполняющий функцию информирования населения города Москвы и соответствующий требованиям, установленным настоящими Правилами.

Для целей настоящих Правил к информационным конструкциям относятся в том числе информационные конструкции, размещенные в виде отдельно стоящих конструкций в соответствии с требованиями настоящих Правил. (в ред. Постановления Правительства Москвы от 29.04.2014 N 234-ПП)

Настоящие Правила не распространяются на знаки дорожного движения, в том числе на указатели в отношении объектов, расположенных на улично-дорожной сети города, а также на случаи применения декоративно-художественного оформления в отношении временных ограждений мест проведения работ по строительству, реконструкции объектов капитального строительства в городе Москве. (в ред. Постановления Правительства Москвы от 07.03.2017 N 85-ПП)

3. В городе Москве осуществляется размещение информационных конструкций следующих видов:

3.1. Указатели наименований улиц, площадей, проездов, переулков, проектируемых (номерных) проездов, проспектов, шоссе, набережных, скверов, тупиков, бульваров, просек, аллей, линий, мостов, путепроводов, эстакад, тоннелей, а также километровых участков автодорог (в том числе кольцевых) и трасс федерального значения, указатели номеров домов.

3.2. Указатели территориального деления города Москвы, указатели границ территорий внутригородских муниципальных образований в городе Москве, указатели картографической информации, а также указатели маршрутов (схемы) движения и расписания городского пассажирского транспорта.

3.3. Указатели местоположения органов государственной власти города Москвы и органов местного самоуправления внутригородских муниципальных образований в городе Москве, государственных предприятий и учреждений города Москвы, муниципальных предприятий и учреждений внутригородских муниципальных образований в городе Москве.

3.4. Указатели местоположения органов государственной власти Российской Федерации, федеральных государственных предприятий и учреждений.

3.5. Вывески - информационные конструкции, размещаемые на фасадах, крышах или иных внешних поверхностях (внешних ограждающих конструкциях) зданий, строений, сооружений, включая витрины и окна, внешних поверхностях нестационарных торговых объектов в месте фактического нахождения или осуществления деятельности организации или индивидуального предпринимателя, содержащие: (в ред. Постановлений Правительства Москвы от 29.04.2014 N 234-ПП, от 19.07.2016 N 430-ПП)

3.5.1. Сведения о профиле деятельности организации, индивидуального предпринимателя и (или) виде реализуемых ими товаров, оказываемых услуг и (или) их наименование (фирменное наименование, коммерческое обозначение, изображение товарного знака, знака обслуживания) в целях извещения неопределенного круга лиц о фактическом местоположении (месте осуществления деятельности) данной организации, индивидуального предпринимателя.

3.5.2. Сведения, размещаемые в случаях, предусмотренных Законом Российской Федерации от 7 февраля 1992 г. N 2300-1 "О защите прав потребителей".

3.6. Информационные стенды, размещенные в подъездах и на внешних поверхностях многоквартирных домов, жилых домов, - информационные конструкции, предназначенные для информирования населения города Москвы по вопросам, указанным в пункте 9(1) настоящих Правил, одного из следующих видов:

3.6.1. Информационные доски.

3.6.2. Навесные телевизионные жидкокристаллические или плазменные панели. (в ред. Постановления Правительства Москвы от 18.11.2015 N 765-ПП)

4. Информационные конструкции, указанные в пунктах 3.1 - 3.3, 3.6.1 настоящих Правил, размещаются за счет средств бюджета города Москвы, средств бюджетов внутригородских муниципальных образований в городе Москве, а также средств государственных предприятий и учреждений города Москвы, муниципальных предприятий и учреждений внутригородских муниципальных образований в городе Москве соответственно органами государственной власти города Москвы, органами местного самоуправления, государственными предприятиями и учреждениями города Москвы, муниципальными предприятиями и учреждениями внутригородских муниципальных образований в городе Москве. (в ред. Постановлений Правительства Москвы от 10.12.2014 N 753-ПП, от 18.11.2015 N 765-ПП)

Финансирование размещения информационных конструкций, указанных в пункте 3.4 настоящих Правил, осуществляется в соответствии с законодательством Российской Федерации.

Финансирование размещения и содержания информационных конструкций, указанных в пункте 3.6.2 настоящих Правил, включая выполнение работ по подключению таких информационных конструкций к электрическим сетям, информационно-телекоммуникационной сети Интернет, работ по организации канала связи для передачи видео- и мультимедиа информации, осуществляется за счет средств собственников таких информационных конструкций. (в ред. Постановления Правительства Москвы от 18.11.2015 N 765-ПП)

Для отдельных видов информационных конструкций, указанных в пунктах 3.1 - 3.4, 3.6 настоящих Правил, Правительством Москвы могут быть установлены типовые формы, а также принципы их размещения. (в ред. Постановления Правительства Москвы от 10.12.2014 N 753-ПП)

5. Содержание информационных конструкций, указанных в пунктах 3.1 и 3.2 настоящих Правил, размещенных на внешних поверхностях зданий, строений, сооружений (далее - объекты), осуществляется собственниками (правообладателями) данных объектов.

Содержание информационных конструкций, указанных в пунктах 3.1 - 3.3 настоящих Правил, размещенных в виде отдельно стоящих конструкций, а также информационных конструкций, указанных в пункте 3.6.1 настоящих Правил, осуществляется органами государственной власти города Москвы, органами местного самоуправления, государственными предприятиями и учреждениями города Москвы, муниципальными предприятиями и учреждениями внутригородских муниципальных образований в городе Москве соответственно за счет средств бюджета города Москвы, средств бюджетов внутригородских муниципальных образований в городе Москве, а также средств указанных государственных и муниципальных предприятий и учреждений. (в ред. Постановлений Правительства Москвы от 10.12.2014 N 753-ПП, от 18.11.2015 N 765-ПП)

Содержание информационных конструкций, указанных в пункте 3.4 настоящих Правил, осуществляется органом государственной власти Российской Федерации, федеральным учреждением, предприятием, сведения о котором содержатся в данных информационных конструкциях.

Содержание информационных конструкций, указанных в пункте 3.5 настоящих Правил (далее - вывески), осуществляется организацией, индивидуальным предпринимателем, которые являются собственниками (правообладателями) конструкции, сведения о которых содержатся в данных информационных конструкциях и в месте фактического нахождения (осуществления деятельности) которых данные информационные конструкции размещены (далее - владельцы вывесок).

Содержание информационных конструкций, указанных в пункте 3.6.2 настоящих Правил, осуществляется собственниками таких информационных конструкций. (в ред. Постановления Правительства Москвы от 18.11.2015 N 765-ПП)

Выполнение работ по подключению информационных конструкций, указанных в пункте 3.6.2 настоящих Правил, к информационно-телекоммуникационной сети Интернет обеспечивается в рамках исполнения государственных контрактов на оказание услуг по предоставлению информации, заключаемых между поставщиками информации и оператором государственной информационной системы "Единый центр хранения и обработки данных" в соответствии с Положением о государственной информационной системе "Единый центр хранения и обработки данных", утвержденным постановлением Правительства Москвы от 7 февраля 2012 г. N 24-ПП "Об утверждении Положения о государственной информационной системе "Единый центр хранения и обработки данных", в случае если место размещения информационной конструкции, указанной в пункте 3.6.2 настоящих Правил, соответствует месту размещения технических средств, с помощью которых осуществляется предоставление информации в государственную систему "Единый центр хранения и обработки данных", и при наличии соответствующих условий в указанных государственных контрактах. (в ред. Постановления Правительства Москвы от 18.11.2015 N 765-ПП)

6. В случае утверждения Комитетом по архитектуре и градостроительству города Москвы Архитектурно-художественных концепций внешнего облика улиц, магистралей и территорий города Москвы (далее - Архитектурно-художественные концепции) размещение вывесок на внешних поверхностях зданий, строений, сооружений данных улиц, магистралей и территорий города Москвы осуществляется согласно соответствующей Архитектурно-художественной концепции. Действие Архитектурно-художественных концепций не распространяется на случаи размещения вывесок на торговых, развлекательных центрах, кинотеатрах, театрах, цирках, а также на автозаправочных станциях. (в ред. Постановлений Правительства Москвы от 29.04.2014 N 234-ПП, от 15.05.2015 N 275-ПП)

Архитектурно-художественные концепции могут содержать требования к типам размещаемых вывесок, их параметрам, колористическому решению, используемому на них шрифту, а также месту размещения вывесок на внешних поверхностях зданий, строений, сооружений. Архитектурно-художественные концепции включают графические материалы, в том числе схемы и чертежи. (в ред. Постановления Правительства Москвы от 29.04.2014 N 234-ПП)

Комитет по архитектуре и градостроительству города Москвы утверждает перечень улиц, магистралей и территорий города Москвы, на которых вывески размещаются в соответствии с требованиями Архитектурно-художественных концепций. (в ред. Постановления Правительства Москвы от 03.11.2015 N 725-ПП)

Абзац - Утратил силу. (в ред. Постановления Правительства Москвы от 03.11.2015 N 725-ПП)

Архитектурно-художественные концепции, в соответствии с которыми размещаются вывески на зданиях, строениях, сооружениях, являющихся объектами культурного наследия, выявленными объектами культурного наследия, утверждаются по согласованию с Департаментом культурного наследия города Москвы. (в ред. Постановления Правительства Москвы от 03.11.2015 N 725-ПП)

Срок рассмотрения Департаментом культурного наследия города Москвы поступившего проекта Архитектурно-художественной концепции, включая срок направления принятого по результатам его рассмотрения решения в Комитет по архитектуре и градостроительству города Москвы, составляет 10 рабочих дней с даты получения указанного проекта Департаментом культурного наследия города Москвы. В случае неполучения Комитетом по архитектуре и градостроительству города Москвы решения Департамента культурного наследия города Москвы, принятого по результатам рассмотрения поступившего проекта, по истечении установленного для согласования срока разработанный проект Архитектурно-художественной концепции считается согласованным. (в ред. Постановления Правительства Москвы от 03.11.2015 N 725-ПП)

Архитектурно-художественные концепции подлежат обязательному применению. Официальное опубликование Архитектурно-художественных концепций осуществляется путем их размещения (опубликования) на официальном сайте Комитета по архитектуре и градостроительству города Москвы в информационно-телекоммуникационной сети Интернет. (в ред. Постановления Правительства Москвы от 29.04.2014 N 234-ПП)

В случае изменения градостроительной ситуации на улицах, магистралях и территориях Москвы, на которые были разработаны и утверждены Архитектурно-художественные концепции, в связи со строительством нового объекта или изменением архитектурно-градостроительного решения существующего объекта в рамках проведения его реконструкции размещение вывесок на указанных объектах осуществляется в соответствии с требованиями пунктов 10 - 33 настоящих Правил. (в ред. Постановления Правительства Москвы от 29.04.2014 N 234-ПП)

Размещение вывесок на улицах, магистралях и территориях города Москвы, в отношении которых разработаны и утверждены соответствующие Архитектурно-художественные концепции, с нарушением требований к размещению вывесок, установленных указанными Архитектурно-художественными концепциями, не допускается.

На вывески, размещаемые в соответствии с требованиями утвержденных Архитектурно-художественных концепций, могут быть разработаны дизайн-проекты размещения вывесок в соответствии с требованиями раздела III настоящих Правил.

7. Размещение информационных конструкций, указанных в пункте 3.5.1 настоящих Правил, в виде отдельно стоящих конструкций допускается только при условии их установки в границах земельного участка, на котором располагаются здания, строения, сооружения, являющиеся местом фактического нахождения, осуществления деятельности организации, индивидуального предпринимателя, сведения о которых содержатся в данных информационных конструкциях и которым указанные здания, строения, сооружения и земельный участок принадлежат на праве собственности или ином вещном праве либо обязательственном праве (за исключением размещения ценовых табло (стел) автозаправочных станций (далее - ценовые табло АЗС) за пределами границ земельных участков, занимаемых автозаправочными станциями). (в ред. Постановлений Правительства Москвы от 29.04.2014 N 234-ПП, от 15.05.2015 N 275-ПП, от 19.07.2016 N 430-ПП)

При этом установка указанных отдельно стоящих конструкций осуществляется при условии соблюдения требований законодательства о градостроительной деятельности, включая получение градостроительного плана земельного участка, а также свидетельства об утверждении архитектурно-градостроительного решения объекта капитального строительства, и законодательства о благоустройстве.

Внешний вид информационных конструкций, указанных в пункте 3.5.1 настоящих Правил, в виде отдельно стоящих конструкций, размещаемых в соответствии со свидетельством об утверждении архитектурно-градостроительного решения объекта капитального строительства, определяется указанным свидетельством.

Внешний вид информационных конструкций, указанных в пункте 3.5.1 настоящих Правил, в виде отдельно стоящих конструкций, виды, параметры и характеристики которых относятся к установленным Правительством Москвы видам, параметрам и характеристикам объектов благоустройства территории, для размещения которых не требуется получение разрешения на строительство, определяется в соответствии с дизайн-проектом размещения вывески, разработанным и согласованным в соответствии с требованиями раздела III настоящих Правил.

Допускается размещение не более одного ценового табло АЗС в границах земельного участка, занимаемого автозаправочной станцией, и одного ценового табло АЗС за пределами границ земельного участка, занимаемого автозаправочной станцией. При этом ценовые табло АЗС за пределами границ земельных участков, занимаемых автозаправочными станциями, размещаются в попутном направлении на расстоянии не более 100 м от границ указанных земельных участков. (в ред. Постановления Правительства Москвы от 15.05.2015 N 275-ПП)

Ценовые табло АЗС могут содержать сведения о наименовании (фирменное наименование, коммерческое обозначение) автозаправочной станции, месте фактического нахождения (месте осуществления деятельности) автозаправочной станции, видах, экологических классах реализуемого ими топлива и ценах на него, предоставляемых услугах, системах оплаты. (в ред. Постановления Правительства Москвы от 15.05.2015 N 275-ПП)

8. При формировании архитектурно-градостроительного решения зданий, строений, сооружений в рамках их строительства или реконструкции, предусматривающей изменение внешнего облика, в составе указанного решения, утверждаемого соответствующим свидетельством, в том числе определяются места размещения информационных конструкций, указанных в пункте 3.5 настоящих Правил, на внешних поверхностях данных объектов, а также их типы и параметры (размеры). (в ред. Постановления Правительства Москвы от 29.04.2014 N 234-ПП)

9. Информационные конструкции, размещаемые в городе Москве, должны быть безопасны, спроектированы, изготовлены и установлены в соответствии с требованиями технических регламентов, строительных норм и правил, государственных стандартов, требованиями к конструкциям и их размещению, в том числе на внешних поверхностях зданий, строений, сооружений, иными установленными требованиями, а также не нарушать внешний архитектурно-художественный облик города Москвы и обеспечивать соответствие эстетических характеристик информационных конструкций стилистике объекта, на котором они размещаются. (в ред. Постановления Правительства Москвы от 29.04.2014 N 234-ПП)

Использование в текстах (надписях), размещаемых на информационных конструкциях (вывесках), указанных в пункте 3.5 настоящих Правил, товарных знаков и знаков обслуживания, в том числе на иностранных языках, осуществляется только при условии их предварительной регистрации в установленном порядке на территории Российской Федерации или в случаях, предусмотренных международным договором Российской Федерации. При указании в вывеске фирменного наименования, коммерческого обозначения, изображения товарного знака, знака обслуживания организации, индивидуального предпринимателя допускается не указывать в данной вывеске сведения о профиле деятельности организации, индивидуального предпринимателя, виде реализуемых ими товаров, оказываемых услуг. (в ред. Постановления Правительства Москвы от 29.04.2014 N 234-ПП)

9(1). Информационные конструкции, указанные в пункте 3.6 настоящих Правил, могут размещаться в подъездах, а также на расстоянии не более двух метров от входных дверей подъездов на внешних поверхностях многоквартирных домов.

Данные информационные конструкции используются для информирования жителей города Москвы:

- об основных направлениях социально-экономического развития города Москвы;

- о состоянии экономики города Москвы, достижении показателей социально-экономического развития города Москвы;

- о целях, задачах, ходе выполнения государственных программ города Москвы;

- о мероприятиях, проводимых органами государственной власти города Москвы;

- о взаимодействии жителей города Москвы с органами государственной власти города Москвы, а также с негосударственными некоммерческими организациями;

- о контактной информации органов государственной власти и должностных лиц таких органов, адресах размещения органов государственной власти, подведомственных им организаций, многофункциональных центров предоставления государственных услуг;

- о предоставлении государственных и муниципальных услуг;

- о строительстве объектов социальной и инженерной инфраструктуры;

- о ходе и результатах осуществления мероприятий по благоустройству территории города Москвы, выполнения комплексных программ развития районов города Москвы;

- о содержании и ремонте дворовых территорий, объектов благоустройства, многоквартирных домов и жилых домов;

- о реализации программ профилактики заболеваний и санитарно-гигиеническом обучении населения;

- о предоставлении социальной помощи нуждающимся лицам и о формах социального обслуживания населения;

- о предоставлении коммунальных услуг, о плате за жилые помещения и коммунальные услуги;

- о решениях общего собрания собственников помещений в многоквартирном доме;

- об угрозе возникновения чрезвычайных ситуаций природного и техногенного характера, о возникновении таких чрезвычайных ситуаций, правилах поведения населения и необходимости проведения мероприятий по защите. (в ред. Постановления Правительства Москвы от 18.11.2015 N 765-ПП)

9(2). Размещение информационных конструкций, указанных в пункте 3.6.1 настоящих Правил, обеспечивается префектурами административных округов города Москвы в порядке, установленном префектурами административных округов города Москвы. Данные информационные конструкции могут использоваться для размещения рекламы в порядке, установленном префектурой административного округа города Москвы, на территории которого размещается соответствующая информационная конструкция.

Максимальные размеры информационных конструкций, указанных в пункте 3.6.1 настоящих Правил, составляют:

- высота - 1,05 м;

- длина - 0,75 м. (в ред. Постановления Правительства Москвы от 18.11.2015 N 765-ПП)

9(3). Информационные конструкции, указанные в пункте 3.6.2 настоящих Правил, размещаются собственниками таких конструкций при условии соответствия таких информационных конструкций следующим требованиям:

- размер диагонали информационной конструкции от 15 до 55 дюймов;

- наличие антивандального, пыле- и влагозащищенного корпуса;

- наличие возможности использования имеющейся инфраструктуры многоквартирного дома, жилого дома, где предполагается установка информационной конструкции. (в ред. Постановления Правительства Москвы от 18.11.2015 N 765-ПП)

9(4). Размещение и содержание информационных конструкций, указанных в пункте 3.6.2 настоящих Правил, осуществляется собственниками таких информационных конструкций, признанными победителями конкурса на право размещения указанных информационных конструкций. Порядок проведения такого конкурса, дополнительные требования к размещению и содержанию данных информационных конструкций, а также к организации информирования жителей города Москвы с их использованием, включающие в том числе требования к объему рекламы, размещаемой на данных информационных конструкциях, утверждаются Департаментом информационных технологий города Москвы.

Размещение информации на указанных информационных конструкциях осуществляется с использованием специализированной информационной системы города Москвы, созданной Департаментом информационных технологий города Москвы.

Размещение и содержание информационных конструкций, указанных в пункте 3.6.2 настоящих Правил, осуществляется в соответствии с условиями соглашения, заключаемого собственниками информационных конструкций, признанными победителями конкурса на право размещения таких информационных конструкций, с государственным бюджетным учреждением города Москвы Жилищник района, на территории которого осуществляется размещение информационной конструкции.

Условиями указанного соглашения предусматриваются в том числе порядок размещения информации, указанной в пункте 9(1) настоящих Правил, порядок информационного взаимодействия собственника информационной конструкции с органами исполнительной власти города Москвы и подведомственными им государственными учреждениями города Москвы при размещении такой информации, условия размещения рекламы на такой информационной конструкции.

Денежные средства, полученные от победителя конкурса в качестве платы за право размещения информационных конструкций, направляются государственным бюджетным учреждениям города Москвы Жилищник районов и используются для обеспечения содержания и ремонта общего имущества в многоквартирном доме, жилом доме в порядке, установленном жилищным законодательством. (в ред. Постановления Правительства Москвы от 18.11.2015 N 765-ПП)

9(5). В случае неисполнения собственником информационной конструкции, указанной в пункте 3.6.2 настоящих Правил, требований настоящих Правил, иных правовых актов города Москвы, условий соглашения, указанного в пункте 9(4) настоящих Правил, при условии неустранения собственником информационной конструкции соответствующих замечаний в установленные сроки, информационная конструкция, в отношении которой выявлено нарушение, подлежит демонтажу в порядке и на условиях, установленных указанным соглашением. (в ред. Постановления Правительства Москвы от 18.11.2015 N 765-ПП)

10. При размещении в городе Москве информационных конструкций (вывесок), указанных в пункте 3.5 настоящих Правил, запрещается:

10.1. В случае размещения вывесок на внешних поверхностях многоквартирных домов:

- нарушение геометрических параметров (размеров) вывесок;

- нарушение установленных требований к местам размещения вывесок;

- вертикальный порядок расположения букв на информационном поле вывески;

- размещение вывесок выше линии перекрытий между первым и вторым этажами, включая крыши; (в ред. Постановления Правительства Москвы от 19.07.2016 N 430-ПП)

- размещение вывесок на козырьках зданий;

- полное перекрытие (закрытие) оконных и дверных проемов, а также витражей и витрин;

- размещение вывесок в границах жилых помещений, в том числе на глухих торцах фасада;

Дефис - Утратил силу. (в ред. Постановления Правительства Москвы от 19.07.2016 N 430-ПП)

- размещение вывесок на кровлях, кровлях лоджий и балконов и (или) на лоджиях и балконах; (в ред. Постановления Правительства Москвы от 19.07.2016 N 430-ПП)

- размещение вывесок на архитектурных деталях фасадов объектов (в том числе на колоннах, пилястрах, орнаментах, лепнине);

- размещение вывесок на расстоянии ближе чем 1 м от мемориальных досок;

- перекрытие (закрытие) указателей наименований улиц и номеров домов;

- размещение настенных вывесок одна над другой;

- размещение консольных вывесок на расстоянии менее 10 м друг от друга, а также одной консольной вывески над другой;

- размещение вывесок (за исключением уникальных информационных конструкций) путем непосредственного нанесения на поверхность фасада декоративно-художественного и (или) текстового изображения (методом покраски, наклейки и иными методами); (в ред. Постановления Правительства Москвы от 15.05.2015 N 275-ПП)

- размещение вывесок с помощью демонстрации постеров на динамических системах смены изображений (роллерные системы, системы поворотных панелей - призматроны и др.) или с помощью изображения, демонстрируемого на электронных носителях (экраны (телевизоры), бегущая строка и т.д.) (за исключением вывесок, размещаемых в витрине с использованием электронного носителя - экрана (телевизора);

- окраска и покрытие декоративными пленками поверхности остекления витрин (за исключением размещения непосредственно на поверхности остекления витрины вывесок, указанных в пункте 3.5.1 настоящих Правил, в виде отдельных букв и декоративных элементов из декоративных пленок); (в ред. Постановления Правительства Москвы от 19.07.2016 N 430-ПП)

- замена остекления витрин световыми коробами;

- устройство в витрине конструкций электронных носителей-экранов (телевизоров) на всю высоту и (или) длину остекления витрины;

- размещение вывесок с использованием картона, ткани, баннерной ткани (за исключением афиш);

- размещение вывесок с использованием неоновых светильников, мигающих (мерцающих) элементов. (в ред. Постановления Правительства Москвы от 29.04.2014 N 234-ПП)

10.2. В случае размещения вывесок на внешних поверхностях иных зданий, строений, сооружений (кроме многоквартирных домов):

- нарушение геометрических параметров (размеров) вывесок (за исключением случаев размещения вывесок на торговых, развлекательных центрах, кинотеатрах, театрах, цирках, автозаправочных станциях); (в ред. Постановления Правительства Москвы от 15.05.2015 N 275-ПП)

- нарушение установленных требований к местам размещения вывесок;

- вертикальный порядок расположения букв на информационном поле вывески;

- размещение вывесок выше линии перекрытий между первым и вторым этажами (за исключением крышных конструкций, а также случаев размещения вывесок в соответствии с дизайн-проектом); (в ред. Постановления Правительства Москвы от 19.07.2016 N 430-ПП)

- размещение вывесок на козырьках зданий, строений, сооружений;

- полное перекрытие (закрытие) оконных и дверных проемов, а также витражей и витрин;

- размещение вывесок на глухих торцах фасада (за исключением случаев размещения вывесок на торговых, развлекательных центрах, кинотеатрах, театрах, цирках, автозаправочных станциях); (в ред. постановления Правительства Москвы от 15.05.2015 N 275-ПП)

Дефис - Утратил силу. (в ред. Постановления Правительства Москвы от 19.07.2016 N 430-ПП)

- размещение вывесок на кровлях лоджий и балконов и (или) на лоджиях и балконах; (в ред. Постановления Правительства Москвы от 19.07.2016 N 430-ПП)

- размещение вывесок на архитектурных деталях фасадов объектов (в том числе на колоннах, пилястрах, орнаментах, лепнине);

- размещение вывесок на расстоянии ближе чем 1 м от мемориальных досок;

- перекрытие (закрытие) указателей наименований улиц и номеров домов;

- размещение настенных вывесок одна над другой (за исключением случаев размещения вывесок в соответствии с дизайн-проектом);

- размещение консольных вывесок на расстоянии менее 10 м друг от друга, а также одной консольной вывески над другой;

- размещение вывесок (за исключением уникальных информационных конструкций) путем непосредственного нанесения на поверхность фасада декоративно-художественного и (или) текстового изображения (методом покраски, наклейки и иными методами); (в ред. Постановления Правительства Москвы от 15.05.2015 N 275-ПП)

- размещение вывесок с помощью демонстрации постеров на динамических системах смены изображений (роллерные системы, системы поворотных панелей - призматроны и др.) или с помощью изображения, демонстрируемого на электронных носителях (экраны (телевизоры), бегущая строка и т.д.) (за исключением вывесок, размещаемых в витрине с использованием электронного носителя - экрана (телевизора);

- окраска и покрытие декоративными пленками поверхности остекления витрин (за исключением размещения непосредственно на поверхности остекления витрины вывесок, указанных в пункте 3.5.1 настоящих Правил, в виде отдельных букв и декоративных элементов из декоративных пленок); (в ред. Постановления Правительства Москвы от 19.07.2016 N 430-ПП)

- замена остекления витрин световыми коробами;

- устройство в витрине конструкций электронных носителей - экранов (телевизоров) на всю высоту и (или) длину остекления витрины;

- размещение вывесок с использованием картона, ткани, баннерной ткани (за исключением афиш, а также использования баннерной ткани в качестве лицевой поверхности световых коробов); (в ред. Постановления Правительства Москвы от 15.05.2015 N 275-ПП)

- размещение вывесок с использованием неоновых светильников, мигающих (мерцающих) элементов. (в ред. Постановления Правительства Москвы от 29.04.2014 N 234-ПП)

10.3. Размещение вывесок на ограждающих конструкциях (заборах, шлагбаумах, ограждениях, перилах и т.д.) (за исключением случая, предусмотренного пунктом 27 настоящих Правил). (в ред. Постановления Правительства Москвы от 29.04.2014 N 234-ПП)

10.4. Размещение вывесок в виде отдельно стоящих сборно-разборных (складных) конструкций - штендеров.

10.5. Размещение вывесок на сезонных кафе при стационарных предприятиях общественного питания (за исключением случаев, предусмотренных пунктом 23 настоящих Правил). (в ред. Постановления Правительства Москвы от 29.04.2014 N 234-ПП)

10.6. Использование мест размещения вывесок, определенных в согласованном дизайн-проекте в соответствии с разделом III настоящих Правил, для размещения рекламных конструкций. (в ред. Постановления Правительства Москвы от 29.04.2014 N 234-ПП)

10.7. Размещение вывесок на внешних поверхностях объектов незавершенного строительства. (в ред. Постановления Правительства Москвы от 29.04.2014 N 234-ПП)

10.8. Размещение вывесок, в том числе надписей, на маркизах (за исключением случаев, предусмотренных пунктом 23 настоящих Правил). (в ред. Постановления Правительства Москвы от 19.07.2016 N 430-ПП)

II. Требования к размещению информационных конструкций (вывесок), указанных в пункте 3.5.1 настоящих Правил

11. Информационные конструкции (вывески), указанные в пункте 3.5.1 настоящих Правил, размещаются на фасадах, крышах, на (в) витринах, на (в) окнах или на иных внешних поверхностях зданий, строений, сооружений.

На (в) окнах информационные конструкции (вывески), указанные в пункте 3.5.1 настоящих Правил, размещаются в соответствии с требованиями, установленными настоящими Правилами к размещению информационных конструкций (вывесок) на (в) витринах. (в ред. Постановления Правительства Москвы от 19.07.2016 N 430-ПП)

12. На внешних поверхностях одного здания, строения, сооружения организация, индивидуальный предприниматель вправе установить не более одной информационной конструкции, указанной в пункте 3.5.1 настоящих Правил, каждого из следующих типов (за исключением случаев, предусмотренных настоящими Правилами):

- настенная конструкция (конструкция вывесок располагается параллельно к поверхности фасадов объектов и (или) их конструктивных элементов непосредственно на плоскости фасада объекта);

- консольная конструкция (конструкция вывесок располагается перпендикулярно к поверхности фасадов объектов и (или) их конструктивных элементов), в том числе табло обмена валют с технологией смены изображения с помощью электронных носителей;

- витринная конструкция (конструкция вывесок располагается в витрине на внешней и (или) с внутренней стороны остекления витрины объектов);

- подвесная конструкция (конструкция вывесок размещается в пешеходном галерейном пространстве зданий, строений, сооружений). (в ред. Постановления Правительства Москвы от 15.05.2015 N 275-ПП)

12(1). Организации, индивидуальные предприниматели, осуществляющие деятельность по оказанию услуг общественного питания, дополнительно к информационной конструкции, указанной в пункте 12 настоящих Правил, вправе разместить не более одной информационной конструкции, указанной в пункте 3.5.1 настоящих Правил, содержащей сведения об ассортименте блюд, напитков и иных продуктов питания, предлагаемых при предоставлении ими указанных услуг, в том числе с указанием их массы/объема и цены (меню), в виде настенной конструкции.

На фасадах здания, строения, сооружения нежилого назначения организация, индивидуальный предприниматель вправе разместить более одной консольной информационной конструкции (но не более одной консольной конструкции на одном фасаде) при условии, если единственным собственником (правообладателем) указанного здания, строения, сооружения является организация, индивидуальный предприниматель, сведения о котором содержатся в данных информационных конструкциях и в месте фактического нахождения (месте осуществления деятельности) которого размещаются указанные информационные конструкции. (в ред. Постановления Правительства Москвы от 15.05.2015 N 275-ПП)

12(2). Размещение подвесных информационных конструкций осуществляется в соответствии с дизайн-проектом, разработанным и согласованным в соответствии с требованиями раздела III настоящих Правил. Внешний вид, габариты подвесных информационных конструкций, а также количество подвесных информационных конструкций, размещаемых в одной галерее здания, строения, сооружения, определяются указанным дизайн-проектом.

Размещение информационных конструкций, указанных в пункте 3.5.1 настоящих Правил, на внешних поверхностях торговых, развлекательных центров, кинотеатров, театров, цирков, автозаправочных станций осуществляется в соответствии с дизайн-проектом, разработанным и согласованным в соответствии с требованиями раздела III настоящих Правил. При этом указанный дизайн-проект должен содержать информацию и определять размещение всех информационных конструкций, размещаемых на внешних поверхностях указанных торговых, развлекательных центров, кинотеатров, театров, цирков, автозаправочных станций, в том числе вывесок, соответствующих пункту 2.4.3 настоящего постановления.

Размещение ценовых табло АЗС за пределами границ земельных участков, занимаемых автозаправочными станциями, осуществляется в соответствии с дизайн-проектом размещения ценовых табло АЗС, разработанным и согласованным в соответствии с требованиями раздела III настоящих Правил. (в ред. Постановления Правительства Москвы от 15.05.2015 N 275-ПП)

13. Настенные, витринные и подвесные информационные конструкции, указанные в пункте 3.5.1 настоящих Правил, могут быть размещены в виде единичной конструкции и (или) комплекса идентичных и (или) взаимосвязанных элементов одной информационной конструкции, указанных в пункте 16 настоящих Правил. Консольные информационные конструкции, указанные в пункте 3.5.1 настоящих Правил, могут быть размещены только в виде единичной конструкции. (в ред. Постановления Правительства Москвы от 19.07.2016 N 430-ПП)

Для целей настоящих Правил витринные конструкции, размещаемые организацией, индивидуальным предпринимателем в витрине на внешней и (или) с внутренней стороны остекления витрины, признаются комплексом идентичных и (или) взаимосвязанных элементов единой информационной конструкции в случае их размещения в соответствии с требованиями настоящих Правил в более чем одной витрине. (в ред. Постановления Правительства Москвы от 29.04.2014 N 234-ПП)

14. Организации, индивидуальные предприниматели осуществляют размещение информационных конструкций, указанных пункте 12 настоящих Правил, на плоских участках фасада, свободных от архитектурных элементов, исключительно в пределах площади внешних поверхностей объекта, соответствующей физическим размерам занимаемых данными организациями, индивидуальными предпринимателями помещений на праве собственности, ином вещном праве или обязательственном праве. Требование настоящего абзаца о размещении информационных конструкций, указанных в пункте 12 настоящих Правил, исключительно в пределах площади внешних поверхностей объекта, соответствующей физическим размерам занимаемых организациями, индивидуальными предпринимателями помещений, не распространяется на случаи размещения информационных конструкций на торговых, развлекательных центрах организациями, индивидуальными предпринимателями, местом фактического нахождения или осуществления деятельности которых являются указанные торговые, развлекательные центры. (в ред. Постановления Правительства Москвы от 29.04.2014 N 234-ПП)

Информационные конструкции, указанные в абзаце первом пункта 12(1) настоящих Правил (меню), размещаются на плоских участках фасада, свободных от архитектурных элементов, непосредственно у входа (справа или слева) в помещение, указанное в абзаце первом настоящего пункта, или на входных дверях в него, не выше уровня дверного проема. (в ред. Постановления Правительства Москвы от 19.07.2016 N 430-ПП)

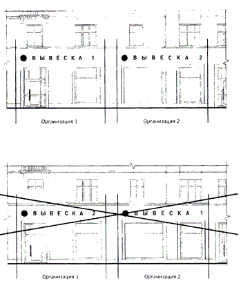
15. При размещении на одном фасаде объекта одновременно вывесок нескольких организаций, индивидуальных предпринимателей указанные вывески размещаются в один высотный ряд на единой горизонтальной линии (на одном уровне, высоте).

16. Вывески могут состоять из следующих элементов:

- информационное поле (текстовая часть) - буквы, буквенные символы, аббревиатура, цифры;

- декоративно-художественные элементы - логотипы, знаки и т.д.;

- элементы крепления;

- подложка.

Высота вывески не должна превышать 0,50 м, за исключением случаев, предусмотренных настоящими Правилами.

В случае если вывеска представляет собой объемные символы без использования подложки, высота вывески не должна превышать 0,75 м (с учетом высоты выносных элементов строчных и прописных букв за пределами размера основного шрифта (не более 0,50 м), а также высоты декоративно-художественных элементов). (в ред. Постановления Правительства Москвы от 29.04.2014 N 234-ПП)

17. На вывеске может быть организована подсветка.

Подсветка вывески должна иметь немерцающий, приглушенный свет, не создавать прямых направленных лучей в окна жилых помещений.

18. Настенные конструкции, размещаемые на внешних поверхностях зданий, строений, сооружений, должны соответствовать следующим требованиям:

18.1. Настенные конструкции размещаются над входом или окнами (витринами) помещений, указанных в пункте 14 настоящих Правил, на единой горизонтальной оси с иными настенными конструкциями, установленными в пределах фасада, на уровне линии перекрытий между первым и вторым этажами либо ниже указанной линии.

В случае если помещения, указанные в пункте 14 настоящих Правил, располагаются в подвальных или цокольных этажах объектов и отсутствует возможность размещения информационных конструкций (вывесок) в соответствии с требованиями абзаца первого настоящего пункта, вывески могут быть размещены над окнами подвального или цокольного этажа, но не ниже 0,60 м от уровня земли до нижнего края настенной конструкции. При этом вывеска не должна выступать от плоскости фасада более чем на 0,10 м.

18.2. Максимальный размер настенных конструкций, размещаемых организациями, индивидуальными предпринимателями на внешних поверхностях зданий, строений, сооружений, не должен превышать:

- по высоте - 0,50 м, за исключением размещения настенной вывески на фризе;

- по длине - 70 процентов от длины фасада, соответствующей занимаемым данными организациями, индивидуальными предпринимателями помещениям, но не более 15 м для единичной конструкции.

При размещении настенной конструкции в пределах 70 процентов от длины фасада в виде комплекса идентичных взаимосвязанных элементов (информационное поле (текстовая часть) и декоративно-художественные элементы) максимальный размер каждого из указанных элементов не может превышать 10 м в длину.

Максимальный размер информационных конструкций, указанных в абзаце втором пункта 12 настоящих Правил (меню), не должен превышать:

- по высоте - 0,80 м;

- по длине - 0,60 м.

Крайняя точка элементов настенной конструкции не должна находиться на расстоянии более чем 0,20 м от плоскости фасада. (в ред. Постановления Правительства Москвы от 29.04.2014 N 234-ПП)

При наличии на внешних поверхностях здания, строения, сооружения в месте размещения вывески элементов систем газоснабжения и (или) водоотведения (водосточных труб) размещение настенных конструкций осуществляется при условии обеспечения безопасности указанных систем. (в ред. Постановления Правительства Москвы от 29.04.2014 N 234-ПП)

В случае расположения на одном фасаде здания, строения, сооружения нескольких информационных конструкций указанные конструкции должны быть расположены в одной плоскости относительно вертикальной плоскости фасада, на котором они размещены. (в ред. Постановления Правительства Москвы от 29.04.2014 N 234-ПП)

18.3. При наличии на фасаде объекта фриза настенная конструкция размещается исключительно на фризе в соответствии со следующими требованиями:

18.3.1. Конструкции настенных вывесок, допускаемых к размещению на фризе, представляют собой объемные символы (без использования подложки либо с использованием подложки), а также световые короба (в случаях, установленных пунктом 18.3.3).

18.3.2. При использовании в настенной конструкции, размещаемой на фризе, подложки указанная подложка размещается на фризе на длину, соответствующую физическим размерам занимаемых соответствующими организациями, индивидуальными предпринимателями помещений. Высота подложки, используемой для размещения настенной конструкции на фризе, должна быть равна высоте фриза. Общая высота информационного поля (текстовой части), а также декоративно-художественных элементов настенной конструкции, размещаемой на фризе в виде объемных символов, не может быть более 70 процентов высоты фриза (с учетом высоты выносных элементов строчных и прописных букв за пределами размера основного шрифта, а также высоты декоративно-художественных элементов), а их длина - не более 70 процентов длины фриза. Объемные символы, используемые в настенной конструкции на фризе, должны размещаться на единой горизонтальной оси. В случае размещения на одном фризе несколько настенных конструкций для них может быть организована единая подложка для размещения объемных символов.

18.3.3. Размещение настенной конструкции (настенных конструкций) в виде светового короба (световых коробов) на фризе допускается только при условии организации данного светового короба (световых коробов) на всю высоту соответствующего фриза.

18.3.4. При наличии на фасаде объекта козырька настенная конструкция может быть размещена на фризе козырька строго в габаритах указанного фриза.

Запрещается размещение настенной конструкции непосредственно на конструкции козырька. (в ред. Постановления Правительства Москвы от 29.04.2014 N 234-ПП)

18.4. Информационное поле настенных конструкций, размещаемых на фасадах объектов культурного наследия, выявленных объектов культурного наследия и объектов, расположенных в границах территорий объектов культурного наследия, выявленных объектов культурного наследия, а также объектов, построенных до 1952 г. включительно, должно выполняться из отдельных элементов (букв, обозначений, декоративных элементов и т.д.), без использования подложки в виде непрозрачной основы для их крепления. Возможность использования подложки в виде прозрачной основы определяется дизайн-проектом размещения вывески, разработанным и согласованным в соответствии с требованиями раздела III настоящих Правил по согласованию с Департаментом культурного наследия города Москвы. (в ред. Постановления Правительства Москвы от 19.07.2016 N 430-ПП)

18.5. В дополнение к настенной конструкции, размещаемой непосредственно на фасадах зданий, строений, сооружений, допускается размещение вывесок на дверях входных групп, в том числе методом нанесения трафаретной печати или иными аналогичными методами на остекление дверей.

Максимальный размер данных вывесок не должен превышать:

- по высоте - 0,40 м;

- по длине - 0,30 м. (в ред. Постановления Правительства Москвы от 29.04.2014 N 234-ПП)

19. Консольные конструкции располагаются в одной горизонтальной плоскости фасада, в том числе у арок, на границах и внешних углах зданий, строений, сооружений в соответствии со следующими требованиями: (в ред. Постановления Правительства Москвы от 29.04.2014 N 234-ПП)

19.1. Расстояние между консольными конструкциями не может быть менее 10 м.

Расстояние от уровня земли до нижнего края консольной конструкции должно быть не менее 2,50 м.

19.2. Консольная конструкция не должна находиться на расстоянии более чем 0,20 м от плоскости фасада, а крайняя точка ее лицевой стороны - на расстоянии более чем 1 м от плоскости фасада. Консольная конструкция не может превышать 1 м в высоту и 0,20 м в ширину.

Максимальные параметры консольных конструкций, выполненных в виде объемно-пространственной композиции, не должны превышать 0,50 м - по высоте, 0,50 м - по ширине и 0,50 м - в глубину. (в ред. Постановления Правительства Москвы от 15.05.2015 N 275-ПП)

19.3. Максимальные параметры (размеры) консольных конструкций, размещаемых на фасадах объектов, являющихся объектами культурного наследия, выявленными объектами культурного наследия и объектов, расположенных в границах территорий объектов культурного наследия, выявленных объектов культурного наследия, а также объектов, построенных до 1952 г. включительно, не должны превышать 0,50 м - по высоте и 0,50 м - по ширине. (в ред. Постановления Правительства Москвы от 19.07.2016 N 430-ПП)

19.4. При наличии на фасаде объекта настенных конструкций консольные конструкции располагаются с ними на единой горизонтальной оси.

19.5. Консольные конструкции, размещаемые в соответствии с дизайн-проектом, не могут быть расположены выше линии третьего этажа (линии перекрытий между вторым и третьим этажами). (в ред. Постановления Правительства Москвы от 29.04.2014 N 234-ПП)

19.6. Демонстрация изображений на электронных носителях табло обмена валют должна производиться с использованием технологии статичного изображения без использования динамических эффектов. Смена изображения должна производиться не чаще одного раза в 30 секунд, скорость смены изображения не должна превышать 2 секунды. (в ред. Постановления Правительства Москвы от 15.05.2015 N 275-ПП)

20. Витринные конструкции являются одним из способов внутреннего оформления витрин. Размещение витринных конструкций при оформлении витрин осуществляется в соответствии с требованиями, установленными настоящими Правилами. Витринные конструкции размещаются в витрине на внешней и (или) с внутренней стороны остекления витрины в соответствии со следующими требованиями: (в ред. Постановлений Правительства Москвы от 29.04.2014 N 234-ПП, от 19.07.2016 N 430-ПП)

20.1. Максимальный размер витринных конструкций (включая электронные носители-экраны (телевизоры), размещаемых в витрине, а также с внутренней стороны остекления витрины, не должен превышать половины размера остекления витрины (при наличии переплетов (импостов) половины размера остекления в границах переплетов (импостов) по высоте и половины размера остекления витрины (при наличии переплетов (импостов) половины размера остекления в границах переплетов (импостов) по длине. При этом витринные конструкции должны размещаться строго в границах переплетов (импостов). (в ред. Постановления Правительства Москвы от 15.05.2015 N 275-ПП)

20.2. Информационные конструкции (вывески), размещенные на внешней стороне витрины, не должны выходить за плоскость фасада объекта. Параметры (размеры) вывески, размещаемой на внешней стороне витрины, не должны превышать в высоту 0,40 м, в длину - длину остекления витрины.

20.3. Непосредственно на остеклении витрины допускается размещение информационной конструкции (вывески), указанной в пункте 3.5.1 настоящих Правил, в виде отдельных букв и декоративных элементов, в том числе методом нанесения трафаретной печати или иными аналогичными методами. При этом максимальный размер вывески, размещаемой на остеклении витрины, не должен превышать в высоту 0,15 м. (в ред. Постановления Правительства Москвы от 29.04.2014 N 234-ПП)

При этом допускается размещение информации об акционных мероприятиях (акциях) с внутренней стороны витрины (не более трех строк по 0,15 м). (в ред. Постановления Правительства Москвы от 15.05.2015 N 275-ПП)

20.4. При размещении вывески в витрине (с ее внутренней стороны) расстояние от остекления витрины до витринной конструкции должно составлять не менее 0,15 м.

20.5. Применение непрозрачных материалов, а также жалюзи и рулонных штор возможно только для второго ряда остекления витрины со стороны торгового зала при одновременном соблюдении следующих условий:

- витринное пространство оформлено с использованием товаров и услуг (экспозиция товаров и услуг);

- витринное пространство освещено в темное время суток;

- глубина витринного пространства от первого ряда остекления со стороны улицы (внешней поверхности витрины) до второго ряда остекления со стороны торгового зала (внутренней поверхности витрины) составляет не менее 0,6 м. (в ред. Постановления Правительства Москвы от 19.07.2016 N 430-ПП)

21. Организации, индивидуальные предприниматели дополнительно к информационной конструкции, указанной в пункте 12 настоящих Правил, размещенной на фасаде здания, строения, сооружения, вправе разместить информационную конструкцию (вывеску), указанную в пункте 3.5.1 настоящих Правил, на крыше указанного здания, строения, сооружения в соответствии со следующими требованиями: (в ред. Постановления Правительства Москвы от 19.07.2016 N 430-ПП)

21.1. Размещение информационных конструкций (вывесок) на крышах зданий, строений, сооружений допускается при условии, если единственным собственником (правообладателем) указанного здания, строения, сооружения является организация, индивидуальный предприниматель, сведения о котором содержатся в данной информационной конструкции и в месте фактического нахождения (месте осуществления деятельности) которого размещается указанная информационная конструкция.

21.2. На крыше одного объекта может быть размещена только одна информационная конструкция, за исключением случаев размещения крышных конструкций на торговых, развлекательных центрах, кинотеатрах, театрах, цирках.

На торговых, развлекательных центрах, кинотеатрах, театрах, цирках допускается размещение более одной крышной конструкции (но не более одной крышной конструкции относительно каждого фасада, по отношению к которому они размещены). При этом крышные конструкции, размещаемые на торговых, развлекательных центрах, кинотеатрах, театрах, цирках, должны быть идентичны друг другу. (в ред. Постановления Правительства Москвы от 29.04.2014 N 234-ПП)

21.3. Информационное поле вывесок, размещаемых на крышах объектов, располагается параллельно к поверхности фасадов объектов, по отношению к которым они установлены, выше линии карниза, парапета объекта или его стилобатной части.

21.4. Конструкции вывесок, допускаемых к размещению на крышах зданий, строений, сооружений, представляют собой объемные символы (без использования подложки), которые могут быть оборудованы исключительно внутренней подсветкой. (в ред. Постановления Правительства Москвы от 29.04.2014 N 234-ПП)

21.5. Высота информационных конструкций (вывесок), размещаемых на крышах зданий, строений, сооружений, с учетом всех используемых элементов (пункт 16 настоящих Правил) должна быть:

а) не более 1,80 м для 1-3-этажных объектов;

б) не более 3 м для 4-7-этажных объектов;

в) не более 4 м для 8-12-этажных объектов;

г) не более 5 м для 13-17-этажных объектов;

д) не более 6 м для объектов, имеющих 18 и более этажей. (в ред. Постановления Правительства Москвы от 29.04.2014 N 234-ПП)

21.5(1). В случае если информационная конструкция (вывеска), размещаемая на крыше здания, строения, сооружения, содержит изображение товарного знака, знака обслуживания, высота отдельных элементов информационного поля или художественных элементов указанной информационной конструкции, входящих в изображение указанного товарного знака, знака обслуживания, может превышать параметры, указанные в пункте 21.5 настоящих Правил, но не более чем на 1/5. (в ред. Постановления Правительства Москвы от 19.07.2016 N 430-ПП)

21.6. Длина вывески, устанавливаемой на крыше объекта, не может превышать:

а) 80 процентов длины фасада, вдоль которого она размещена, при длине фасада до 35 м (включительно);

б) половины длины фасада, вдоль которого она размещена, при длине фасада свыше 35 м. (в ред. Постановления Правительства Москвы от 19.07.2016 N 430-ПП)

21.7. Параметры (размеры) информационных конструкций (вывесок), размещаемых на стилобатной части объекта, определяются в зависимости от этажности стилобатной части объекта в соответствии с требованиями пунктов 21.5 и 21.6 настоящих Правил.

21.8. Запрещается размещение информационных конструкций (вывесок) на крышах зданий, строений, сооружений, являющихся объектами культурного наследия, выявленными объектами культурного наследия, объектами, расположенными в границах территорий объектов культурного наследия, выявленных объектов культурного наследия, а также объектов, построенных до 1952 г. включительно, за исключением случаев восстановления ранее существовавших информационных конструкций (вывесок) на крышах зданий, строений, сооружений, являющихся объектами культурного наследия, выявленными объектами культурного наследия, при наличии утвержденного в установленном порядке проекта реставрации и приспособления объекта культурного наследия, предусматривающего размещение указанных информационных конструкций (вывесок). (в ред. Постановления Правительства Москвы от 19.07.2016 N 430-ПП)

21.9. Внешний вид информационных конструкций (вывесок), размещаемых на крыше здания, строения, сооружения, определяется в соответствии с дизайн-проектом размещения вывески, разработанным и согласованным в соответствии с требованиями раздела III настоящих Правил. (в ред. Постановления Правительства Москвы от 29.04.2014 N 234-ПП)

22. При наличии на фасадах объектов архитектурно-художественных элементов, препятствующих размещению информационных конструкций (вывесок), указанных в пункте 3.5.1 настоящих Правил, в соответствии с требованиями, установленными настоящими Правилами, а также в случае, если параметры информационной конструкции, размещаемой на внешних поверхностях нежилых объектов, не могут быть соблюдены без нарушения пропорциональности информационного поля и архитектурно-художественных элементов при размещении данной информационной конструкции (вывески) в соответствии с требованиями, установленными настоящими Правилами (за исключением пунктов 9 и 10.2 настоящих Правил), размещение данных конструкций осуществляется согласно дизайн-проекту размещения вывески. (в ред. Постановлений Правительства Москвы от 29.04.2014 N 234-ПП, от 15.05.2015 N 275-ПП)

Разработка и согласование дизайн-проекта размещения вывески осуществляется в соответствии с требованиями раздела III настоящих Правил.

22(1). К уникальным информационным конструкциям, указанным в пункте 3.5.1 настоящих Правил, относятся:

- вывески, являющиеся объектом монументально-декоративного искусства (барельефы, горельефы, скульптура и т.п.);

- вывески, выполненные в технике росписи, мозаичного панно;

- вывески, исторический облик которых определен архитектурным проектом здания, реализованным до дня вступления в силу настоящего постановления;

- вывески, являющиеся архитектурными элементами и декором внешних поверхностей объекта. (в ред. Постановления Правительства Москвы от 15.05.2015 N 275-ПП)

22(2). Размещение уникальных информационных конструкций (вывесок), указанных в пункте 3.5.1 настоящих Правил, осуществляется согласно дизайн-проекту размещения вывески. (в ред. Постановления Правительства Москвы от 15.05.2015 N 275-ПП)

23. Местоположение и параметры (размеры) информационных конструкций, указанных в пункте 3.5.1 настоящих Правил, устанавливаемых на нестационарных торговых объектах площадью до 12 кв. м (включительно), определяются типовыми архитектурными решениями нестационарных торговых объектов, являющимися неотъемлемой частью аукционной документации на право заключения договора на размещение нестационарного торгового объекта, либо типовыми требованиями (для передвижных торговых объектов).

Размещение информационных конструкций, указанных в пункте 3.5.1 настоящих Правил, на внешних поверхностях нестационарных торговых объектов площадью более 12 кв. м, а также иных сооружений осуществляется в соответствии с пунктами 10 - 22 настоящих Правил.

На период размещения сезонного кафе при стационарном предприятии общественного питания допускается размещение информационных конструкций (вывесок), указанных в пункте 3.5.1 настоящих Правил, путем нанесения надписей на маркизы и зонты, используемые для обустройства данного сезонного кафе. При этом высота размещаемых вывесок должна быть не более 0,20 м. В случае использования в вывесках, размещаемых на маркизах и зонтах сезонного кафе, изображения товарного знака, знака обслуживания высота указанного изображения не должна превышать 0,30 м, а информационное поле (текстовая часть) и декоративно-художественные элементы вывески должны быть размещены на единой горизонтальной оси. (в ред. Постановления Правительства Москвы от 29.04.2014 N 234-ПП)

III. Особенности размещения информационных конструкций (вывесок) в соответствии с дизайн-проектом размещения вывески

24. Дизайн-проект размещения вывески, в том числе отдельно стоящих конструкций, подлежит согласованию с Комитетом по архитектуре и градостроительству города Москвы в порядке, установленном Правительством Москвы. (в ред. Постановления Правительства Москвы от 19.07.2016 N 430-ПП)

Дизайн-проект должен содержать информацию о размещении всех информационных конструкций, в том числе отдельно стоящих конструкций. При наличии на объекте рекламной конструкции, размещенной в соответствии с требованиями Правил установки и эксплуатации рекламных конструкций в городе Москве, утвержденных Правительством Москвы, информация о размещении указанной конструкции также отражается в соответствующем дизайн-проекте. (в ред. Постановлений Правительства Москвы от 29.04.2014 N 234-ПП, от 19.07.2016 N 430-ПП)

В дизайн-проекте также отражается информация о рекламных конструкциях, планируемых к размещению на внешних поверхностях объекта. При этом размещение рекламных конструкций осуществляется в порядке, установленном Правительством Москвы. (в ред. Постановления Правительства Москвы от 15.05.2015 N 275-ПП)

Дизайн-проект размещения вывесок при размещении ценовых табло АЗС подлежит согласованию с Департаментом транспорта и развития дорожно-транспортной инфраструктуры города Москвы в рамках межведомственного информационного взаимодействия при предоставлении Комитетом по архитектуре и градостроительству города Москвы государственной услуги "Согласование дизайн-проекта размещения вывески". (в ред. Постановления Правительства Москвы от 19.07.2016 N 430-ПП)

25. Критериями оценки дизайн-проекта размещения вывески на соответствие внешнему архитектурно-художественному облику города Москвы являются:

- обеспечение сохранности внешнего архитектурно-художественного облика города Москвы;

- соответствие местоположения и эстетических характеристик информационной конструкции (вывески) (форма, параметры (размеры), пропорции, цвет, масштаб и др.) стилистике объекта (классика, ампир, модерн, барокко и т.д.), на котором она размещается;

- привязка настенных конструкций к композиционным осям конструктивных элементов фасадов объектов;

- соблюдение единой горизонтальной оси размещения настенных конструкций с иными настенными конструкциями в пределах фасада объекта;

- обоснованность использования прозрачной основы (подложки) для крепления отдельных элементов настенной конструкции при размещении настенных конструкций на объектах культурного наследия, выявленных объектах культурного наследия либо объектах, построенных до 1952 г. включительно;

- обоснованность использования вертикального формата в вывесках;

- обоснованность количества и местоположения информационных конструкций, в том числе отдельно стоящих информационных конструкций;

- обоснованность использования предлагаемого типа конструкций;

- обоснованность параметров (размеров) отдельно стоящих информационных конструкций, их сомасштабность окружающей застройке;

- учет колористического решения внешних поверхностей объекта при размещении информационной конструкции (вывески);

- соответствие используемых в вывесках изображений товарных знаков, в том числе на иностранных языках, зарегистрированным в установленном порядке на территории Российской Федерации товарным знакам.

Оценка дизайн-проекта размещения вывески на внешних поверхностях здания, строения, сооружения осуществляется с учетом ранее согласованных дизайн-проектов размещения вывесок на данном объекте (место размещения вывесок, их параметры (размеры) и тип), вывесок, размещенных в соответствии с требованиями настоящих Правил, а также рекламных конструкций, установленных в соответствии с Правилами установки и эксплуатации рекламных конструкций в городе Москве, утвержденными Правительством Москвы. (в ред. Постановления Правительства Москвы от 19.07.2016 N 430-ПП)

25(1). Критериями оценки дизайн-проекта размещения ценовых табло АЗС Департаментом транспорта и развития дорожно-транспортной инфраструктуры города Москвы являются:

- обеспечение видимости на автомобильной дороге;

- обеспечение видимости дорожных знаков, светофоров и других технических средств организации дорожного движения;

- отсутствие сходства ценовых табло АЗС с дорожными знаками или техническими средствами организации дорожного движения;

- отсутствие возможности отвлечения внимания и ослепления участников дорожного движения. (в ред. Постановления Правительства Москвы от 19.07.2016 N 430-ПП)

26. Согласование в установленном порядке с Комитетом по архитектуре и градостроительству города Москвы дизайн-проекта размещения вывески не накладывает обязательств на собственника (правообладателя) объекта, на внешней поверхности которого осуществляется размещение указанной вывески, по ее размещению.

При согласовании Комитетом по архитектуре и градостроительству города Москвы дизайн-проекта размещения вывески предыдущее согласование дизайн-проекта размещения такой вывески прекращает действие. (в ред. Постановления Правительства Москвы от 19.07.2016 N 430-ПП)

IV. Требования к размещению информационных конструкций (вывесок), указанных в пункте 3.5.2 настоящих Правил, в соответствии с Законом Российской Федерации от 7 февраля 1992 г. N 2300-1 "О защите прав потребителей"

27. Информационные конструкции (вывески), указанные в пункте 3.5.2 настоящих Правил, размещаются на доступном для обозрения месте плоских участков фасада, свободных от архитектурных элементов, непосредственно у входа (справа или слева) в здание, строение, сооружение или помещение или на входных дверях в помещение, в котором фактически находится (осуществляет деятельность) организация или индивидуальный предприниматель, сведения о котором содержатся в данной информационной конструкции.

Дополнительно к информационной конструкции, указанной в абзаце первом настоящего пункта, организации, индивидуальные предприниматели вправе разместить информационную конструкцию (вывеску), указанную в пункте 3.5.2 настоящих Правил, на ограждающей конструкции (заборе) непосредственно у входа на земельный участок, на котором располагается здание, строение, сооружение, являющиеся местом фактического нахождения, осуществления деятельности организации, индивидуального предпринимателя, сведения о которых содержатся в данной информационной конструкции и которым указанное здание, строение, сооружение и земельный участок принадлежат на праве собственности или ином вещном праве. Размеры (параметры) данных информационных конструкций определяются в соответствии с пунктом 30 настоящих Правил. (в ред. Постановления Правительства Москвы от 29.04.2014 N 234-ПП)

28. Для одной организации, индивидуального предпринимателя на одном объекте может быть установлена одна информационная конструкция (вывеска), указанная в пункте 3.5.2 настоящих Правил.

29. Расстояние от уровня земли (пола входной группы) до верхнего края информационной конструкции (вывески) не должно превышать 2 м.

Вывеска размещается на единой горизонтальной оси с иными аналогичными информационными конструкциями в пределах плоскости фасада.

30. Информационная конструкция (вывеска), указанная в пункте 3.5.2 настоящих Правил, состоит из информационного поля (текстовой части).

Допустимый размер вывески составляет:

- не более 0,60 м по длине;

- не более 0,40 м по высоте.

При этом высота букв, знаков, размещаемых на данной информационной конструкции (вывеске), не должна превышать 0,10 м.

Вывеска, указанная в пункте 3.5.2 настоящих Правил, может быть размещена на дверях входных групп, в том числе методом нанесения трафаретной печати или иными аналогичными методами на остекление дверей. Максимальный размер данных вывесок не должен превышать:

- по высоте - 0,40 м;

- по длине - 0,30 м. (в ред. Постановления Правительства Москвы от 29.04.2014 N 234-ПП)

При наличии на дверях входных групп вывески, указанной в пункте 3.5.1 настоящих Правил, вывеска, указанная в пункте 3.5.2 настоящих Правил, размещается на данных дверях входных групп в один ряд на едином горизонтальном или вертикальном уровне (на одном уровне, высоте, длине) с указанной вывеской (пункт 3.5.1 настоящих Правил). (в ред. Постановления Правительства Москвы от 29.04.2014 N 234-ПП)

31. В случае размещения в одном объекте нескольких организаций, индивидуальных предпринимателей общая площадь информационных конструкций (вывесок), указанных в пункте 3.5.2 настоящих Правил, устанавливаемых на фасадах объекта перед одним входом, не должна превышать 2 кв. м.

При этом параметры (размеры) вывесок, размещаемых перед одним входом, должны быть идентичными и не превышать размеры, установленные в абзаце втором пункта 30 настоящих Правил, а расстояние от уровня земли (пола входной группы) до верхнего края информационной конструкции, расположенной на наиболее высоком уровне, не должно превышать 2 м.

32. Информационные конструкции (вывески), указанные в пункте 3.5.2 настоящих Правил, могут быть размещены на остеклении витрины методом нанесения трафаретной печати или иными аналогичными методами. (в ред. Постановления Правительства Москвы от 29.04.2014 N 234-ПП)

При этом размеры указанных вывесок не могут превышать 0,30 м - по длине и 0,20 м - по высоте.

Размещение на остеклении витрин нескольких вывесок в случае, указанном в абзаце первом пункта 31 настоящих Правил, допускается при условии наличия между ними расстояния не менее 0,15 м и общего количества указанных вывесок - не более четырех.

33. Размещение информационных конструкций (вывесок), указанных в пункте 3.5.2 настоящих Правил, на оконных проемах не допускается.

Информационные конструкции (вывески), указанные в пункте 3.5.2 настоящих Правил, могут иметь внутреннюю подсветку.

V. Контроль за выполнением требований к размещению информационных конструкций (вывесок). Демонтаж информационных конструкций (вывесок)

34. Контроль за выполнением требований к размещению вывесок, а также выявление вывесок, не соответствующих требованиям настоящих Правил, осуществляется Объединением административно-технических инспекций города Москвы в рамках полномочий по контролю в сфере благоустройства.

При осуществлении контроля за выполнением требований к размещению вывесок Объединение административно-технических инспекций города Москвы выдает Департаменту средств массовой информации и рекламы города Москвы предписания о демонтаже вывесок, не соответствующих установленным требованиям. (в ред. Постановления Правительства Москвы от 27.08.2014 N 496-ПП)

Объединение административно-технических инспекций города Москвы вправе направлять запросы об оценке соблюдения требований к организации искусственного освещения при размещении вывесок в Департамент топливно-энергетического хозяйства города Москвы. Департамент топливно-энергетического хозяйства города Москвы в срок не позднее 10 рабочих дней проводит оценку соблюдения требований к организации искусственного освещения при размещении вывесок. (в ред. Постановления Правительства Москвы от 27.08.2014 N 496-ПП)

При выявлении Департаментом топливно-энергетического хозяйства города Москвы нарушений соблюдения требований к организации искусственного освещения при размещении вывесок указанные вывески подлежат демонтажу. (в ред. Постановления Правительства Москвы от 19.07.2016 N 430-ПП)

Департамент топливно-энергетического хозяйства города Москвы в случае выявления вывесок, не соответствующих установленным требованиям, в семидневный срок направляет информацию о выявлении указанных вывесок в Объединение административно-технических инспекций города Москвы. (в ред. Постановления Правительства Москвы от 19.07.2016 N 430-ПП)

35. Выявление вывесок, не соответствующих установленным требованиям, осуществляется Департаментом средств массовой информации и рекламы города Москвы. (в ред. Постановления Правительства Москвы от 29.04.2014 N 234-ПП)

Департамент средств массовой информации и рекламы города Москвы в случае выявления вывесок, не соответствующих установленным требованиям, в семидневный срок направляет информацию о выявлении указанных вывесок в Объединение административно-технических инспекций города Москвы. (в ред. Постановлений Правительства Москвы от 29.04.2014 N 234-ПП, от 27.08.2014 N 496-ПП)

36. Объединение административно-технических инспекций города Москвы проводит проверку сведений о выявлении вывески, не соответствующей установленным требованиям, и в случае их подтверждения выдает Департаменту средств массовой информации и рекламы города Москвы предписание о демонтаже такой вывески в следующих случаях: (в ред. Постановлений Правительства Москвы от 29.04.2014 N 234-ПП, от 27.08.2014 N 496-ПП)

- на основании информации Департамента средств массовой информации и рекламы города Москвы; (в ред. Постановления Правительства Москвы от 29.04.2014 N 234-ПП)

- на основании информации иных органов исполнительной власти города Москвы о выявлении вывесок, не соответствующих установленным требованиям;

- на основании обращений граждан и организаций о выявлении вывесок, не соответствующих установленным требованиям, в том числе поданных с использованием подсистемы Единой городской автоматизированной системы обеспечения поддержки деятельности Открытого правительства города Москвы - портала "Наш город" (www.gorod.mos.ru). (в ред. Постановлений Правительства Москвы от 29.04.2014 N 234-ПП, от 28.11.2014 N 702-ПП)

Абзац - Утратил силу. (в ред. Постановления Правительства Москвы от 27.08.2014 N 496-ПП)

37. Демонтаж вывески представляет собой разборку информационной конструкции (вывески) на составляющие элементы, в том числе с нанесением ущерба конструкции вывески и другим объектам, с которыми демонтируемая вывеска конструктивно связана, ее снятие с внешних поверхностей зданий, строений, сооружений, на которых указанная вывеска размещена.

38. Пункт утратил силу. (в ред. Постановления Правительства Москвы от 27.08.2014 N 496-ПП)

39. Приведение вывески в соответствие с установленными требованиями осуществляется владельцем указанной вывески за счет его собственных средств.

Демонтаж вывески в добровольном порядке осуществляется владельцем вывески с последующим восстановлением внешних поверхностей объекта, на которых она была размещена, в том виде, который был до установки конструкции, и с использованием аналогичных материалов и технологий. (в ред. Постановления Правительства Москвы от 27.08.2014 N 496-ПП)

40. Если вывеска не была демонтирована ее владельцем в добровольном порядке в установленный срок, организация демонтажа данной информационной конструкции в принудительном порядке осуществляется Департаментом средств массовой информации и рекламы города Москвы за счет средств бюджета города Москвы по предписанию Объединения административно-технических инспекций города Москвы в двухнедельный срок со дня получения указанного предписания. (в ред. Постановления Правительства Москвы от 27.08.2014 N 496-ПП)

41. Департамент средств массовой информации и рекламы города Москвы организует демонтаж, перемещение на специально организованные для хранения места, хранение, а также утилизацию или продажу демонтированных вывесок.

Демонтаж в принудительном порядке вывесок, не соответствующих установленным требованиям, осуществляется Департаментом средств массовой информации и рекламы города Москвы на основании выданного ему предписания Объединения административно-технических инспекций города Москвы.

Работы по демонтажу, вывозу, хранению и утилизации или продаже демонтированных вывесок осуществляются Государственным казенным учреждением города Москвы "Городская реклама и информация" (ГКУ "Горинфор") по поручению Департамента средств массовой информации и рекламы города Москвы.

Департамент средств массовой информации и рекламы города Москвы после проведения работ по демонтажу информационных конструкций, не соответствующих установленным требованиям, в семидневный срок направляет информацию о проведенном демонтаже в Объединение административно-технических инспекций города Москвы. Форма предоставления информации о проведенном демонтаже информационной конструкции, не соответствующей установленным требованиям, утверждается Объединением административно-технических инспекций города Москвы.

ГКУ "Горинфор" после проведения работ по демонтажу информационных конструкций, не соответствующих установленным требованиям, в семидневный срок направляет информацию о проведенном демонтаже в соответствующую управу района города Москвы.

Хранение демонтированных информационных конструкций (вывесок), не соответствующих установленным требованиям, производится на специально организованных Департаментом средств массовой информации и рекламы города Москвы для их хранения местах в течение не более 30 рабочих дней со дня демонтажа с составлением акта вывоза материальных ценностей и акта передачи их на хранение. По истечении указанного срока демонтированная вывеска утилизируется или продается как невостребованная либо бесхозная в случае если собственник или иной ее законный владелец не был установлен.

Расходы на выполнение работ по демонтажу подлежат возмещению за счет собственника или иного законного владельца информационной конструкции (вывески) по требованию Департамента средств массовой информации и рекламы города Москвы либо за счет средств, полученных от продажи информационных конструкций, собственник или иной законный владелец которой не был установлен.

Средства, взимаемые в порядке возмещения затрат на принудительный демонтаж, хранение, утилизацию или организацию торгов по продаже, подлежат перечислению в доход бюджета города Москвы на лицевой счет администратора доходов бюджета - Департамента средств массовой информации и рекламы города Москвы, открытый в Управлении Федерального казначейства по г. Москве.

После оплаты собственником или иным законным владельцем вывески затрат, связанных с демонтажем в принудительном порядке, транспортировкой и хранением вывески, демонтированные информационные конструкции в установленном порядке возвращаются указанному лицу.

Порядок утилизации или продажи демонтированной информационной конструкции утверждается Департаментом средств массовой информации и рекламы города Москвы. (в ред. Постановления Правительства Москвы от 19.07.2016 N 430-ПП)

41(1). В случае если в течение 30 рабочих дней с даты демонтажа информационной конструкции (вывески) собственник или иной законный владелец информационной конструкции не забрал информационную конструкцию с места хранения, то Департамент средств массовой информации и рекламы города Москвы продает информационную конструкцию с соблюдением требований законодательства.

Вырученная от продажи сумма за вычетом расходов на демонтаж, хранение и организацию торгов по продаже информационной конструкции подлежит перечислению собственнику или иному законному владельцу информационной конструкции после обращения собственника или иного законного владельца информационной конструкции. В случае если обращения от собственника или иного законного владельца информационной конструкции не поступит, вырученная от продажи сумма за вычетом расходов на демонтаж, хранение и продажу информационной конструкции подлежит перечислению в бюджет города Москвы на лицевой счет администратора доходов бюджета - Департамента средств массовой информации и рекламы города Москвы, открытый в Управлении Федерального казначейства по г. Москве.

Порядок обращения собственника или иного законного владельца информационной конструкции и срок перечисления денежных средств определяются Департаментом средств массовой информации и рекламы города Москвы. (в ред. Постановления Правительства Москвы от 19.07.2016 N 430-ПП)

42. Департамент средств массовой информации города Москвы и ГКУ "Горинфор" не несут ответственности за состояние и сохранность конструкции вывески, оборудования или иного имущества, находящихся на вывеске, при ее демонтаже в принудительном порядке и (или) перемещении на специально организованные места для хранения демонтированных вывесок, не соответствующих установленным требованиям. (в ред. Постановления Правительства Москвы от 29.04.2014 N 234-ПП)

43. Восстановление внешних поверхностей объекта, на которых была размещена демонтированная информационная конструкция (вывеска), в том виде, который существовал до установки конструкции, и с использованием аналогичных материалов и технологий в случае, предусмотренном пунктом 40 настоящих Правил, а также в случае непроведения владельцем вывески, демонтированной в добровольном порядке, работ по восстановлению внешних поверхностей объекта в соответствии с пунктом 39 настоящих Правил организуется управой района города Москвы за счет средств бюджета города Москвы. (в ред. Постановления Правительства Москвы от 29.04.2014 N 234-ПП)

Расходы на выполнение работ по восстановлению внешних поверхностей объекта, на которых была размещена демонтированная информационная конструкция (вывеска), подлежат возмещению за счет владельца информационной конструкции (вывески) по требованию управы района города Москвы. (в ред. Постановления Правительства Москвы от 29.04.2014 N 234-ПП)

Средства, взимаемые в порядке возмещения затрат на выполнение работ по восстановлению внешних поверхностей объекта, на которых была размещена демонтированная информационная конструкция (вывеска), подлежат перечислению в доход бюджета города Москвы на лицевой счет администратора доходов бюджета - управы района города Москвы, открытый в Управлении Федерального казначейства по г. Москве. (в ред. Постановления Правительства Москвы от 29.04.2014 N 234-ПП)

44. Пункт утратил силу. (в ред. Постановления Правительства Москвы от 29.04.2014 N 234-ПП)

VI. Требования к содержанию информационных конструкций в городе Москве

45. Информационные конструкции должны содержаться в технически исправном состоянии, быть очищенными от грязи и иного мусора.

Не допускается наличие на информационных конструкциях механических повреждений, прорывов размещаемых на них полотен, а также нарушение целостности конструкции.

Металлические элементы информационных конструкций должны быть очищены от ржавчины и окрашены.

Размещение на информационных конструкциях объявлений, посторонних надписей, изображений и других сообщений, не относящихся к данной информационной конструкции, запрещено (за исключением случаев размещения рекламы на информационных конструкциях, указанных в пункте 3.6 настоящих Правил). (в ред. Постановления Правительства Москвы от 10.12.2014 N 753-ПП)

46. Информационные конструкции подлежат промывке и очистке от грязи и мусора.

Очистка информационных конструкций от грязи и мусора проводится по мере необходимости (по мере загрязнения информационной конструкции), но не реже:

- двух раз в месяц - в отношении информационных конструкций, указанных в пунктах 3.1-3.4, 3.6 настоящих Правил, а также информационных конструкций, указанных в пункте 3.5.1 настоящих Правил, размещаемых на внешних поверхностях нестационарных торговых объектов; (в ред. Постановления Правительства Москвы от 10.12.2014 N 753-ПП)

- одного раза в два месяца - в отношении информационных конструкций, указанных в пункте 3.5.2 настоящих Правил;

- двух раз в год (в марте - апреле и августе - сентябре) - для информационных конструкций, указанных в пункте 3.5.1 настоящих Правил, размещаемых на внешних поверхностях зданий, строений, сооружений, включая витрины.

VII. Ответственность за нарушение требований Правил размещения и содержания информационных конструкций в городе Москве

47. Ответственность за нарушение требований настоящих Правил к размещению и содержанию информационных конструкций несут:

- в отношении информационных конструкций, указанных в пунктах 3.1 и 3.2 настоящих Правил, размещенных на внешних поверхностях зданий, строений, сооружений, - собственники (правообладатели) указанных зданий, строений, сооружений;

- в отношении информационных конструкций, указанных в пунктах 3.1 и 3.2 настоящих Правил, размещенных в виде отдельно стоящих конструкций, а также информационных конструкций, указанных в пунктах 3.3 и 3.6.1 настоящих Правил, - органы государственной власти города Москвы, органы местного самоуправления, государственные предприятия, учреждения города Москвы, муниципальные предприятия, учреждения внутригородских муниципальных образований, уполномоченные в установленном порядке на осуществление мероприятий по размещению и содержанию указанных информационных конструкций; (в ред. Постановлений Правительства Москвы от 10.12.2014 N 753-ПП, от 18.11.2015 N 765-ПП)

- в отношении информационных конструкций, указанных в пункте 3.4 настоящих Правил, - орган государственной власти Российской Федерации, федеральное государственное учреждение, предприятие, сведения о котором содержатся в данных информационных конструкциях;

- в отношении информационных конструкций, указанных в пункте 3.6.2 настоящих Правил, - собственники таких информационных конструкций. (в ред. Постановления Правительства Москвы от 18.11.2015 N 765-ПП)

48. Ответственность за нарушение требований настоящих Правил к содержанию и размещению информационных конструкций (вывесок), указанных в пункте 3.5 настоящих Правил, несут владельцы данных вывесок, в том числе в части безопасности размещаемых конструкций и проведения работ по их размещению. (в ред. Постановления Правительства Москвы от 29.04.2014 N 234-ПП)

Приложение
к Правилам размещения
и содержания информационных
конструкций в городе Москве

ГРАФИЧЕСКОЕ ПРИЛОЖЕНИЕ К ПРАВИЛАМ РАЗМЕЩЕНИЯ И СОДЕРЖАНИЯ ИНФОРМАЦИОННЫХ КОНСТРУКЦИЙ В ГОРОДЕ МОСКВЕ

(в ред. Постановлений Правительства Москвы от 29.04.2014 N 234-ПП, от 15.05.2015 N 275-ПП, от 19.07.2016 N 430-ПП)

1. Пункт 3.5 Правил:

2. Пункт 10.1 Правил:

1) Запрещается нарушение геометрических параметров (размеров) вывесок.

2) Запрещается нарушение установленных требований к местам размещения вывесок, в том числе размещение вывесок выше линии перекрытий между первым и вторым этажами. (в ред. Постановления Правительства Москвы от 19.07.2016 N 430-ПП)

3) Запрещается вертикальный порядок расположения букв на информационном поле вывески.

4) Запрещается размещение вывесок на козырьках зданий.

5) Запрещается полное перекрытие (закрытие) оконных и дверных проемов, а также витражей и витрин. (в ред. Постановления Правительства Москвы от 19.07.2016 N 430-ПП)

6) Запрещается размещение вывесок в границах жилых помещений, в том числе на глухих торцах фасада.

7) Запрещается размещение вывесок на кровлях, лоджиях и балконах.

8) Запрещается размещение вывесок на архитектурных деталях фасадов объектов (в том числе на колоннах, пилястрах, орнаментах, лепнине).

9) Запрещается размещение вывесок на расстоянии ближе чем 1 м от мемориальных досок.

10) Запрещается перекрытие (закрытие) указателей наименований улиц и номеров домов.

11) Запрещается размещение настенных вывесок одна над другой.

12) Запрещается размещение консольных вывесок на расстоянии менее 10 м друг от друга, а также одной консольной вывески над другой.

13) Запрещается окраска и покрытие декоративными пленками поверхности остекления витрин.

14) Запрещается размещение вывесок с использованием картона, ткани, баннерной ткани.

15) Запрещается размещение вывесок с использованием неоновых светильников, мигающих (мерцающих) элементов.

3. Пункт 10.3 Правил:

4. Пункт 10.4 Правил:

5. Пункт 10.5 Правил:

6. Пункт 12 Правил:

Подвесная конструкция (конструкция вывесок размещается в пешеходном галерейном пространстве зданий, строений, сооружений)

(в ред. Постановления Правительства Москвы от 15.05.2015 N 275-ПП)

7. Пункт 13 Правил:

1) Вывеска - комплекс взаимосвязанных элементов без подложки.

2) Вывеска - единичная конструкция на подложке.

Вариант 1

Вариант 2

Вариант 3

3) Вывеска - комплекс взаимосвязанных элементов на подложке.

4) Вывеска - витринная конструкция.

8. Пункты 14, 15 Правил:

9. Пункт 16 Правил:

1) Возможные элементы вывески.

2) Вывеска без подложки.

3) Вывеска на подложке.

10. Пункт 18.1 Правил:

1) Вывеска без подложки.

2) Вывеска на подложке.

11. Пункт 18.2 Правил:

1) Вывески без подложки.

2) Вывеска на подложке.

3) Вывеска - меню.

12. Пункт 18.3.2 Правил.

1) Вывеска - настенная конструкция на фризе без подложки.

2) Вывеска - настенная конструкция на фризе на подложке.

3) Организация единой подложки для настенных конструкций, размещаемых на фризе.

13. Пункт 18.3.4 Правил:

14. Пункт 18.4 Правил:

15. Пункт 18.5 Правил:

16. Пункты 19.1, 19.2, 19.4 Правил:

Максимальные параметры консольных конструкций, размещаемых на фасадах объектов, являющихся объектами культурного наследия, выявленными объектами культурного наследия, объектов, расположенных в границах территорий объектов культурного наследия, выявленных объектов культурного наследия, а также объектов, построенных до 1952 г. включительно. (в ред. Постановления Правительства Москвы от 19.07.2016 N 430-ПП)

(в ред. Постановления Правительства Москвы от 15.05.2015 N 275-ПП)

17. Пункты 20.1 - 20.4 Правил:

При наличии переплетов (импостов)

(в ред. Постановления Правительства Москвы от 15.05.2015 N 275-ПП)

18. Пункт 21.3, 21., 21.6 Правил:

19. Пункт 21.3 Правил:

20. Пункт 21.5 Правил:

21. Пункт 21.7 Правил:

22. Пункт 21.8 Правил:

22(1). Пункт 22(1) Правил:

Вывески, являющиеся объектом монументально-декоративного искусства (барельефы, горельефы, скульптура)

Вывески, выполненные в технике росписи, мозаичное полотно

Вывески, исторический облик которых определен архитектурным проектом здания

Вывески, являющиеся элементами декора внешних поверхностей объекта

(в ред. Постановления Правительства Москвы от 15.05.2015 N 275-ПП)

23. Пункт 23 Правил:

Приложение 2
к постановлению
Правительства Москвы
от 25 декабря 2013 г. N 902-ПП

АДМИНИСТРАТИВНЫЙ РЕГЛАМЕНТ ПРЕДОСТАВЛЕНИЯ ГОСУДАРСТВЕННОЙ УСЛУГИ ГОРОДА МОСКВЫ "СОГЛАСОВАНИЕ ДИЗАЙН-ПРОЕКТА РАЗМЕЩЕНИЯ ВЫВЕСКИ"

(в ред. Постановлений Правительства Москвы от 29.04.2014 N 234-ПП, от 28.11.2014 N 702-ПП, от 15.05.2015 N 275-ПП, от 21.05.2015 N 307-ПП, от 19.07.2016 N 430-ПП)

1. Общие положения

1.1. Настоящий Административный регламент предоставления государственной услуги города Москвы "Согласование дизайн-проекта размещения вывески" устанавливает состав, последовательность и сроки выполнения административных процедур (действий) и (или) принятия решений по предоставлению государственной услуги, осуществляемых по запросу (заявлению) юридического лица, индивидуального предпринимателя либо их уполномоченных представителей (далее - Регламент).

1.2. Административные процедуры и (или) действия, установленные настоящим Регламентом, осуществляются с использованием сведений Базового регистра информации, необходимой для предоставления государственных услуг в городе Москве (далее - Базовый регистр), и в соответствии с Едиными требованиями к предоставлению государственных услуг в городе Москве, установленными Правительством Москвы (далее - Единые требования).

1.3. Предоставление государственной услуги осуществляется только в электронном виде с использованием Портала государственных и муниципальных услуг (функций) города Москвы. (в ред. Постановления Правительства Москвы от 15.05.2015 N 275-ПП)

1.4. Пункт утратил силу. (в ред. Постановления Правительства Москвы от 15.05.2015 N 275-ПП)

2. Стандарт предоставления государственной услуги

2.1. Наименование государственной услуги

Согласование дизайн-проекта размещения вывески (далее государственная услуга).

2.2. Правовые основания предоставления государственной услуги

Предоставление государственной услуги осуществляется в соответствии с:

- Федеральным законом от 27 июля 2010 г. N 210-ФЗ "Об организации предоставления государственных и муниципальных услуг";

- постановлением Правительства Москвы от 15 ноября 2011 г. N 546-ПП "О предоставлении государственных и муниципальных услуг в городе Москве";

- постановлением Правительства Москвы от 7 ноября 2012 г. N 633-ПП "Об утверждении Положения о Комитете по архитектуре и градостроительству города Москвы".

2.3. Наименование органа исполнительной власти города Москвы, предоставляющего государственную услугу, иных органов исполнительной власти, участвующих в предоставлении государственной услуги

2.3.1. Полномочия по предоставлению государственной услуги осуществляются Комитетом по архитектуре и градостроительству города Москвы (далее - Комитет).

2.3.2. В целях, связанных с предоставлением государственной услуги, используются документы и информация, получаемые в процессе межведомственного информационного взаимодействия с:

- Федеральной налоговой службой;

- Федеральной службой государственной регистрации, кадастра и картографии;

- Департаментом культурного наследия города Москвы;

- Департаментом городского имущества города Москвы;

- Федеральной службой охраны Российской Федерации (далее - ФСО России) - при размещении вывески на крыше зданий, строений, сооружений, расположенных по трассам проезда (передвижения) и в местах постоянного и временного пребывания объектов государственной охраны в городе Москве; (в ред. Постановления Правительства Москвы от 29.04.2014 N 234-ПП)

- Департаментом транспорта и развития дорожно-транспортной инфраструктуры города Москвы; (в ред. Постановления Правительства Москвы от 15.05.2015 N 275-ПП)

- Департаментом средств массовой информации и рекламы города Москвы; (в ред. Постановления Правительства Москвы от 15.05.2015 N 275-ПП)

2.4. Заявители

2.4.1. В качестве заявителей могут выступать юридические лица и индивидуальные предприниматели, являющиеся собственниками или иными законными владельцами зданий, строений, сооружений или помещений, на внешних поверхностях которых предусматривается размещение вывески.

В случае размещения информационных конструкций в виде отдельно стоящих конструкций в качестве заявителей выступают юридические лица и индивидуальные предприниматели, которым здания, строения, сооружения и земельный участок, на котором предусматривается размещение вывески, принадлежат на праве собственности или ином вещном праве либо обязательственном праве (за исключением размещения ценовых табло АЗС за пределами границ земельных участков, занимаемых автозаправочными станциями).

В случае размещения ценовых табло АЗС в качестве заявителей выступают юридические лица и индивидуальные предприниматели, являющиеся собственниками или иными законными владельцами автозаправочных станций.

В случае размещения вывесок на внешних поверхностях торговых, развлекательных центров, кинотеатров, театров, цирков в качестве заявителей выступают юридические лица, индивидуальные предприниматели, которым указанные торговые, развлекательные центры, кинотеатры, театры, цирки принадлежат на праве собственности или ином вещном праве. (в ред. Постановления Правительства Москвы от 19.07.2016 N 430-ПП)

2.4.2. Интересы заявителей, указанных в пункте 2.4.1 настоящего Регламента, могут представлять иные лица, уполномоченные заявителем в установленном порядке.

Интересы заявителей - юридических лиц или индивидуальных предпринимателей могут представлять иные лица, уполномоченные заявителями, являющиеся юридическими лицами или индивидуальными предпринимателями.

Прием запросов и иных документов, необходимых для предоставления государственной услуги, от уполномоченных заявителем представителей, являющихся физическими лицами, не предусмотрен. (в ред. Постановления Правительства Москвы от 19.07.2016 N 430-ПП)

2.4.3. Государственная услуга в электронной форме с использованием Портала государственных и муниципальных услуг (функций) города Москвы (далее - Портал) индивидуальным предпринимателям и юридическим лицам предоставляется после получения ими стандартного или полного доступа к подсистеме Портала "личный кабинет" в качестве физического лица и обеспечения регистрации усиленной квалифицированной электронной подписи индивидуального предпринимателя или юридического лица в подсистеме "личный кабинет" в соответствии с приложением 4 к постановлению Правительства Москвы от 7 февраля 2012 г. N 23-ПП "О доступе физических лиц, в том числе зарегистрированных в качестве индивидуальных предпринимателей, и юридических лиц к подсистеме "личный кабинет" государственной информационной системы "Портал государственных и муниципальных услуг (функций) города Москвы".

Для получения доступа к подсистеме "личный кабинет" физические лица, зарегистрированные в качестве индивидуальных предпринимателей, и юридические лица используют сертифицированные средства электронной подписи в соответствии с требованиями, установленными приказом Федеральной службы безопасности Российской Федерации от 27 декабря 2011 г. N 796 "Об утверждении Требований к средствам электронной подписи и Требований к средствам удостоверяющего центра".

От имени юридического лица получение доступа к подсистеме "личный кабинет" и авторизация в подсистеме "личный кабинет" осуществляется пользователем - уполномоченным представителем юридического лица.

Доступ к подсистеме "личный кабинет" (далее - "личный кабинет") обеспечивается при наличии у физических лиц, зарегистрированных в качестве индивидуальных предпринимателей, и юридических лиц квалифицированного сертификата ключа проверки электронной подписи, выданного аккредитованным удостоверяющим центром в порядке, установленном Федеральным законом от 6 апреля 2011 г. N 63-ФЗ "Об электронной подписи". (в ред. Постановления Правительства Москвы от 19.07.2016 N 430-ПП)

2.5. Документы, необходимые для предоставления государственной услуги

Предоставление государственной услуги осуществляется на основании следующих документов (сведений):

2.5.1. Документы, представляемые заявителем:

2.5.1.1. Запрос (заявление) на предоставление государственной услуги (далее - запрос).

Абзац - Утратил силу. (в ред. Постановления Правительства Москвы от 19.07.2016 N 430-ПП)

2.5.1.1(1). Доверенность, оформленная в установленном порядке, подтверждающая полномочия представителя действовать от имени заявителя (при обращении лица, уполномоченного заявителем). (в ред. Постановления Правительства Москвы от 19.07.2016 N 430-ПП)

2.5.1.2-2.1.5.3. Пункты утратили силу. (в ред. Постановления Правительства Москвы от 15.05.2015 N 275-ПП)

2.5.1.4. Правоустанавливающие документы, подтверждающие имущественные права заявителя на:

- занимаемое здание, строение, сооружение, помещение, которое является местом фактического нахождения (местом осуществления деятельности) организации, индивидуального предпринимателя, размещающих вывеску (при наличии документов, не подлежащих государственной регистрации, а также в случае отсутствия указанных документов в Едином государственном реестре прав на недвижимое имущество и сделок с ним (далее - ЕГРП), а также в случае отсутствия указанных документов и сведений в органе исполнительной власти города Москвы, уполномоченном на управление и распоряжение земельными участками, находящимися в государственной собственности города Москвы, и земельными участками, находящимися на территории города Москвы, государственная собственность на которые не разграничена);

- весь объект (все помещения объекта) в случае размещения вывесок на внешних поверхностях торговых, развлекательных центров, кинотеатров, театров, цирков;

- земельный участок, на котором расположены здание, строение, сооружение, которые являются местом фактического нахождения (местом осуществления деятельности) организации, индивидуального предпринимателя, размещающих отдельно стоящую вывеску, в случае если право на земельный участок в соответствии с законодательством Российской Федерации признается возникшим независимо от его регистрации в Едином государственном реестре прав на недвижимое имущество и сделок с ним, а также в случае отсутствия сведений о правах на земельный участок в Едином государственном реестре прав на недвижимое имущество и сделок с ним, а также правоустанавливающие документы, подтверждающие имущественные права на здания, строения, сооружения и земельный участок, на котором предусматривается размещение отдельно стоящей информационной конструкции, за исключением размещения ценовых табло АЗС за пределами границ земельных участков, занимаемых автозаправочными станциями;

- автозаправочные станции в случае размещения ценовых табло АЗС за пределами границ земельных участков, занимаемых автозаправочными станциями. (в ред. Постановления Правительства Москвы от 19.07.2016 N 430-ПП)

2.5.1.5. Пункт утратил силу. (в ред. Постановления Правительства Москвы от 19.07.2016 N 430-ПП)

2.5.1.6. Документы технической инвентаризации - поэтажный план помещения, выданный уполномоченной организацией, кроме случаев подачи запроса в отношении дизайн-проекта размещения отдельно стоящих информационных конструкций, в том числе ценовых табло АЗС. (в ред. Постановления Правительства Москвы от 19.07.2016 N 430-ПП)

2.5.1.7. Утвержденный собственником или иным правообладателем здания, строения, сооружения, помещения, земельного участка дизайн-проект размещения вывески, в том числе в случае размещения отдельно стоящей конструкции, подготовленный и оформленный в соответствии с требованиями согласно приложению 2 к настоящему Регламенту. (в ред. Постановления Правительства Москвы от 19.07.2016 N 430-ПП)

2.5.1.8-2.5.1.9. Пункты утратили силу. (в ред. Постановления Правительства Москвы от 19.07.2016 N 430-ПП)

2.5.1.10. В случае установки информационной конструкции (вывески) на крыше здания, строения, сооружения:

- заключение о несущих способностях крыши здания, строения, сооружения, оформленное уполномоченной проектной организацией;

- проект информационной конструкции и заключение экспертной организации о его соответствии требованиям технических регламентов, строительных норм и правил (СНиП), Правилам устройства электроустановок (ПУЭ), стандартам Единой конструкторской документации (ЕСКД) и другим нормативным требованиям;

- проект электроустановки конструкции и заключение экспертной организации о его соответствии требованиям технических регламентов, СНиП, ПУЭ, стандартам ЕСКД и другим нормативным требованиям (для информационных конструкций, предполагающих наличие электроустановки). (в ред. Постановления Правительства Москвы от 19.07.2016 N 430-ПП)

2.5.1.11-2.5.1.12. Пункты утратили силу. (в ред. Постановления Правительства Москвы от 19.07.2016 N 430-ПП)

2.5.1.13. Информация (фото, архивные данные и т.п.), подтверждающая отношение вывески к информационным конструкциям, исторический облик которых определен архитектурным проектом здания (для уникальных информационных конструкций, исторический облик которых определен архитектурным проектом здания). (в ред. Постановления Правительства Москвы от 15.05.2015 N 275-ПП)

2.5.1.14. Сведения о регистрации в установленном порядке на территории Российской Федерации товарного знака или о наличии международного договора Российской Федерации (в случаях использования в вывесках изображений товарных знаков, в том числе на иностранных языках). (в ред. Постановления Правительства Москвы от 19.07.2016 N 430-ПП)

2.5.2. Документы, получаемые уполномоченным должностным лицом Комитета с использованием межведомственного информационного взаимодействия, в том числе посредством доступа к сведениям Базового регистра:

2.5.2.1. Выписка из Единого государственного реестра юридических лиц (для юридических лиц).

2.5.2.2. Выписка из Единого государственного реестра индивидуальных предпринимателей (для индивидуальных предпринимателей).

2.5.2.3. Документ, подтверждающий зарегистрированное право заявителя на здание, строение, сооружение, помещение, которое является местом фактического нахождения (местом осуществления деятельности) организации, индивидуального предпринимателя, размещающих вывеску (в случае если такой документ подлежит государственной регистрации). (в ред. Постановления Правительства Москвы от 29.04.2014 N 234-ПП)

2.5.2.4. Документы, удостоверяющие (устанавливающие) права заявителя на земельный участок, на котором расположены здание, строение, сооружение, которые являются местом фактического нахождения (местом осуществления деятельности) организации, индивидуального предпринимателя, размещающих вывеску (в случае если сведения о правах на земельный участок содержатся в Едином государственном реестре прав на недвижимое имущество и сделок с ним). (в ред. Постановления Правительства Москвы от 29.04.2014 N 234-ПП)

2.5.2.5. Договор аренды здания, строения, сооружения в случае, если указанный документ выдан Департаментом городского имущества города Москвы.

2.5.2.6. Согласование/мотивированный отказ Департамента транспорта и развития дорожно-транспортной инфраструктуры города Москвы в согласовании дизайн-проекта размещения ценовых табло АЗС. (в ред. Постановления Правительства Москвы от 15.05.2015 N 275-ПП)

2.5.2.7. Разрешение на установку и эксплуатацию рекламной конструкции, выданное Комитетом рекламы, информации и оформления города Москвы, Департаментом средств массовой информации и рекламы города Москвы. (в ред. Постановления Правительства Москвы от 15.05.2015 N 275-ПП)

2.5.2.8. Кадастровый паспорт на здание, строение, сооружение (при размещении вывесок на внешних поверхностях зданий, строений, сооружений). (в ред. Постановления Правительства Москвы от 19.07.2016 N 430-ПП)

2.5.2.9. Кадастровая выписка (сведения) о земельном участке (при размещении отдельно стоящих информационных конструкций). (в ред. Постановления Правительства Москвы от 19.07.2016 N 430-ПП)

2.5.2.10. Согласование или мотивированный отказ в согласовании Департаментом культурного наследия города Москвы дизайн-проекта (при размещении вывесок на внешних поверхностях зданий, строений, сооружений, являющихся объектами культурного наследия, выявленными объектами культурного наследия, объектами, расположенными в границах территорий объектов культурного наследия, выявленных объектов культурного наследия, а также объектами, расположенными в границах территорий объектов культурного наследия, выявленных объектов культурного наследия, а также при размещении вывесок на внешних поверхностях торговых, развлекательных центров, кинотеатров, театров, цирков, расположенных в границах территорий зон охраны объектов культурного наследия). (в ред. Постановления Правительства Москвы от 19.07.2016 N 430-ПП)

2.5.2.11. Информационное письмо Департамента культурного наследия города Москвы о соответствии проекту реставрации и приспособления объекта культурного наследия, предусматривающему размещение информационных конструкций (вывесок) на крышах зданий, строений, сооружений, являющихся объектами культурного наследия, выявленными объектами культурного наследия. (в ред. Постановления Правительства Москвы от 19.07.2016 N 430-ПП)

2.5.2.12. Согласование или отрицательное заключение Федеральной службы охраны Российской Федерации (при размещении вывески на крышах зданий, строений, сооружений, расположенных по трассам проезда (передвижения) и в местах постоянного и временного пребывания объектов государственной охраны в городе Москве). (в ред. Постановления Правительства Москвы от 19.07.2016 N 430-ПП)

2.5.3. Заявитель имеет право представить документы, указанные в пункте 2.5.2 настоящего Регламента, по собственной инициативе.

2.5.4. Перечень документов, необходимых для предоставления государственной услуги, является исчерпывающим.

2.5.5. Заявителем к интерактивной форме запроса прикрепляются электронные копии (электронные образы) документов, указанных в пунктах 2.5.1.4, 2.5.1.6, 2.5.1.7 и 2.5.1.10, 2.5.1.13, 2.5.1.14 настоящего Регламента, в формате PDF, ZIP, подписанные в установленном порядке электронной подписью. (в ред. Постановления Правительства Москвы от 19.07.2016 N 430-ПП)

2.5.6. Пункт утратил силу. (в ред. Постановления Правительства Москвы от 19.07.2016 N 430-ПП)

2.6. Услуги, необходимые и обязательные для предоставления государственной услуги

Услугой, необходимой и обязательной для предоставления государственной услуги, является предоставление документов технической инвентаризации - поэтажного плана помещения.

2.7. Срок предоставления государственной услуги

2.7.1. Общий срок предоставления государственной услуги включает срок межведомственного информационного взаимодействия органов исполнительной власти и организаций в процессе предоставления государственной услуги и не может превышать 15 рабочих дней.

2.7.2. Срок предоставления государственной услуги начинает исчисляться со дня регистрации запроса Комитетом в соответствующей информационной системе города Москвы. (в ред. Постановления Правительства Москвы от 19.07.2016 N 430-ПП)

2.7.3. Срок регистрации запроса и документов, необходимых для предоставления государственной услуги, не может превышать одного рабочего дня с момента поступления запроса в Комитет. (в ред. Постановления Правительства Москвы от 19.07.2016 N 430-ПП)

2.7.4. Срок рассмотрения Департаментом транспорта и развития дорожно-транспортной инфраструктуры города Москвы поступивших документов, включая срок направления согласования/мотивированного отказа в согласовании дизайн-проекта размещения ценовых табло АЗС в Комитет, составляет 10 рабочих дней со дня направления указанных документов Комитетом на рассмотрение в Департамент транспорта и развития дорожно-транспортной инфраструктуры города Москвы. (в ред. Постановления Правительства Москвы от 15.05.2015 N 275-ПП)

2.7.5. Срок рассмотрения Департаментом культурного наследия города Москвы поступивших документов, включая срок направления согласования или мотивированного отказа в согласовании дизайн-проекта размещения вывесок в Комитет, составляет 7 рабочих дней со дня направления указанных документов Комитетом на рассмотрение в Департамент культурного наследия города Москвы. (в ред. Постановления Правительства Москвы от 19.07.2016 N 430-ПП)

2.8. Отказ в приеме документов, необходимых для предоставления государственной услуги

2.8.1. Основаниями для отказа в приеме документов, необходимых для предоставления государственной услуги, являются:

- обращение за предоставлением государственной услуги лица, не являющегося получателем государственной услуги в соответствии с настоящим Регламентом;

- представление заявителем неполного комплекта документов, предусмотренного пунктом 2.5.1 настоящего Регламента;

- представление запроса и иных документов, необходимых для предоставления государственной услуги, не соответствующих требованиям, установленным правовыми актами Российской Федерации, правовыми актами города Москвы, Едиными требованиями, настоящим Регламентом;

- представление заявителем документов, утративших силу, если срок действия документа указан в самом документе либо определен законодательством Российской Федерации и (или) города Москвы, в иных случаях, предусмотренных правовыми актами Российской Федерации и (или) города Москвы;

- представление заявителем документов, содержащих недостоверные и (или) противоречивые сведения;

- подача запроса от имени заявителя не уполномоченным на то лицом;

- некорректное заполнение обязательных полей в интерактивной форме запроса;

- наличие противоречивых сведений в интерактивной форме запроса и (или) прикрепленных к нему электронных копиях (электронных образах) документов;

- представление заявителем документов, не подписанных в установленном порядке;

- запрос и документы в электронной форме подписаны с использованием электронной подписи, не принадлежащей заявителю;

- электронные копии (электронные образы) документов, необходимых для предоставления государственной услуги, не поддаются прочтению и (или) не соответствуют требованиям к форматам их предоставления. (в ред. Постановления Правительства Москвы от 19.07.2016 N 430-ПП)

2.8.2. Пункт утратил силу. (в ред. Постановления Правительства Москвы от 19.07.2016 N 430-ПП)

2.8.3. Перечень оснований для отказа в приеме документов, необходимых для предоставления государственной услуги, установленный пунктами 2.8.1 и 2.8.2 настоящего Регламента, является исчерпывающим.

2.8.4. Пункт утратил силу. (в ред. Постановления Правительства Москвы от 15.05.2015 N 275-ПП)

2.8.5. Уведомление об отказе в приеме запроса и документов подписывается уполномоченным должностным лицом с использованием электронной подписи и направляется заявителю с указанием причин отказа в "личный кабинет" заявителя на Портале не позднее одного рабочего дня с даты регистрации запроса. (в ред. Постановления Правительства Москвы от 19.07.2016 N 430-ПП)

2.9. Приостановление предоставления государственной услуги (в ред. Постановления Правительства Москвы от 29.04.2014 N 234-ПП)

2.9.1. Основанием для приостановления предоставления государственной услуги является необходимость получения согласования ФСО России при размещении вывески на крышах зданий, строений, сооружений, расположенных по трассам проезда (передвижения) и в местах постоянного и временного пребывания объектов государственной охраны в городе Москве.

2.9.2. Иные основания для приостановления предоставления государственной услуги отсутствуют.

2.9.3. Срок приостановления предоставления государственной услуги не превышает 60 рабочих дней.

Срок приостановления исчисляется в рабочих днях с даты принятия решения о приостановлении предоставления государственной услуги. (в ред. Постановления Правительства Москвы от 15.05.2015 N 275-ПП)

2.9.4. Пункт утратил силу. (в ред. Постановления Правительства Москвы от 15.05.2015 N 275-ПП)

2.9.5. Сведения о приостановлении предоставления государственной услуги вносятся в соответствующую информационную систему города Москвы.

Заявитель информируется о приостановлении предоставления государственной услуги через "личный" кабинет заявителя на Портале в срок не позднее рабочего дня, следующего за днем приостановления предоставления государственной услуги. (в ред. Постановления Правительства Москвы от 19.07.2016 N 430-ПП)

2.9.6. Пункт утратил силу. (в ред. Постановления Правительства Москвы от 19.07.2016 N 430-ПП)

2.9.7. В случае устранения оснований для приостановления предоставления государственной услуги в течение срока приостановления предоставления государственной услуги предоставление государственной услуги возобновляется.

Заявитель информируется о возобновлении предоставления государственной услуги через "личный кабинет" на Портале в срок не позднее рабочего дня, следующего за днем возобновления предоставления государственной услуги. (в ред. Постановления Правительства Москвы от 19.07.2016 N 430-ПП)

2.10. Отказ в предоставлении государственной услуги

2.10.1. Основаниями для отказа в предоставлении государственной услуги являются:

- представление запроса и иных документов, необходимых для предоставления государственной услуги, не соответствующих требованиям, установленным правовыми актами Российской Федерации, правовыми актами города Москвы, Едиными требованиями, настоящему Регламенту, если указанные обстоятельства были установлены Комитетом в процессе обработки представленных заявителем запроса и иных документов; (в ред. Постановления Правительства Москвы от 19.07.2016 N 430-ПП)

- утрата силы представленных документов (если срок действия документа указан в самом документе либо определен законодательством Российской Федерации и (или) города Москвы, в иных случаях, предусмотренных правовыми актами Российской Федерации и (или) города Москвы), если указанные обстоятельства были установлены Комитетом в процессе обработки документов и (или) информации, необходимых для предоставления государственной услуги; (в ред. Постановления Правительства Москвы от 19.07.2016 N 430-ПП)

- представление документов, содержащих противоречивые и (или) недостоверные сведения, если указанные обстоятельства были установлены Комитетом в процессе обработки документов и (или) информации, необходимых для предоставления государственной услуги; (в ред. Постановления Правительства Москвы от 19.07.2016 N 430-ПП)

- несоответствие представленного заявителем дизайн-проекта размещения вывески требованиям, установленным приложением 2 к настоящему Регламенту;

- несоответствие представленного заявителем дизайн-проекта размещения вывески требованиям Правил размещения и содержания информационных конструкций в городе Москве, установленных Правительством Москвы;

- несоответствие представленного заявителем дизайн-проекта размещения вывески внешнему архитектурно-художественному облику города Москвы в соответствии с критериями оценки дизайн-проекта размещения вывески, утвержденными Правительством Москвы;

- место размещения вывески, а также ее тип и параметры определены Архитектурно-художественной концепцией внешнего облика улиц, магистралей и территорий города Москвы;

- противоречие документов или сведений, полученных с использованием межведомственного информационного взаимодействия, включая использование сведений Базового регистра, представленным заявителем документам или сведениям; (в ред. Постановления Правительства Москвы от 19.07.2016 N 430-ПП)

Дефис - Утратил силу. (в ред. Постановления Правительства Москвы от 19.07.2016 N 430-ПП)

- несоответствие представленных документов требованиям законодательства об объектах культурного наследия, подтвержденных мотивированным отказом Департамента культурного наследия города Москвы в согласовании представленных заявителем документов, - при размещении вывесок на внешних поверхностях зданий, строений, сооружений, являющихся объектами культурного наследия, выявленными объектами культурного наследия, объектами, расположенными в границах территорий объектов культурного наследия, выявленных объектов культурного наследия; (в ред. Постановления Правительства Москвы от 19.07.2016 N 430-ПП)

- отсутствие на фасадах объектов архитектурно-художественных элементов, препятствующих размещению вывесок в соответствии с Правилами размещения и содержания информационных конструкций в городе Москве, утвержденными настоящим постановлением Правительства Москвы; (в ред. Постановления Правительства Москвы от 19.07.2016 N 430-ПП)

- получение отрицательного заключения ФСО России - при размещении вывесок на крышах зданий, строений, сооружений, расположенных по трассам (маршрутам) проезда и в местах постоянного и временного пребывания объектов государственной охраны в городе Москве;

- получение мотивированного отказа Департамента транспорта и развития дорожно-транспортной инфраструктуры города Москвы в согласовании дизайн-проекта размещения ценовых табло АЗС; (в ред. Постановлений Правительства Москвы от 29.04.2014 N 234-ПП, от 15.05.2015 N 275-ПП, в ред. от 19.07.2016 N 430-ПП)

- получение мотивированного отказа Департамента культурного наследия города Москвы в согласовании дизайн-проекта (при размещении вывесок на внешних поверхностях зданий, строений, сооружений, являющихся объектами культурного наследия, выявленными объектами культурного наследия, объектами, расположенными в границах территорий объектов культурного наследия, выявленных объектов культурного наследия, а также объектами, расположенными в границах территорий объектов культурного наследия, выявленных объектов культурного наследия, а также при размещении вывесок на внешних поверхностях торговых, развлекательных центров, кинотеатров, театров, цирков, расположенных в границах территорий зон охраны объектов культурного наследия). (в ред. Постановления Правительства Москвы от 19.07.2016 N 430-ПП)

2.10.2. Перечень оснований для отказа в предоставлении государственной услуги, установленный пунктом 2.10.1 настоящего Регламента, является исчерпывающим.

2.10.3. Пункт утратил силу. (в ред. Постановления Правительства Москвы от 15.05.2015 N 275-ПП)

2.10.4. Решение об отказе в предоставлении государственной услуги с указанием причин отказа подписывается председателем Комитета или уполномоченным им должностным лицом с использованием электронной подписи и направляется в "личный кабинет" заявителя на Портале не позднее следующего рабочего дня со дня принятия решения об отказе в предоставлении государственной услуги. (в ред. Постановления Правительства Москвы от 19.07.2016 N 430-ПП)

2.11. Результат предоставления государственной услуги

2.11.1. Результатом предоставления государственной услуги является:

- уведомление о согласовании дизайн-проекта размещения вывески;

- решение об отказе в предоставлении государственной услуги. (в ред. Постановления Правительства Москвы от 19.07.2016 N 430-ПП)

2.11.2. Документ и (или) информация, подтверждающие предоставление государственной услуги (в том числе отказ в предоставлении государственной услуги), могут быть:

- выданы заявителю (представителю заявителя) в форме документа на бумажном носителе при личной явке заявителя в Комитет;

- направлены заявителю в форме электронного документа, подписанного в установленном порядке, в "личный кабинет" заявителя на Портале. (в ред. Постановления Правительства Москвы от 19.07.2016 N 430-ПП)

2.11.3. Форма и способ получения документа и (или) информации, подтверждающих результат предоставления государственной услуги, в том числе отказ в предоставлении государственной услуги, указываются заявителем в запросе.

Выдача результата предоставления государственной услуги в форме электронного документа с использованием Портала не лишает заявителя права получить указанный результат в форме документа на бумажном носителе.

2.11.4. Сведения о конечных результатах предоставления государственной услуги вносятся в Базовый регистр в следующем составе: (в ред. Постановления Правительства Москвы от 19.07.2016 N 430-ПП)

- заявитель (юридическое лицо - наименование организации, ОГРН, ИНН; индивидуальный предприниматель - фамилия, имя, отчество, ОГРНИП, ИНН);

- дата выдачи согласования;

- адрес объекта;

- дизайн-проект.

2.11.5. Пункт утратил силу. (в ред. Постановления Правительства Москвы от 19.07.2016 N 430-ПП)

2.11.6. Информация, содержащаяся в Реестре, является открытой и доступной для ознакомления с ней заинтересованных лиц и подлежит размещению в информационно-телекоммуникационной сети Интернет с использованием Единой городской автоматизированной системы обеспечения поддержки деятельности Открытого правительства города Москвы, за исключением случаев, когда в интересах сохранения государственной, служебной или иной охраняемой законом тайны такой доступ должен быть ограничен в соответствии с законодательством Российской Федерации. (в ред. Постановления Правительства Москвы от 28.11.2014 N 702-ПП)

2.12. Плата за предоставление государственной услуги. Плата за предоставление услуг, которые являются необходимыми и обязательными для предоставления государственной услуги

2.12.1. Предоставление государственной услуги осуществляется бесплатно.

2.12.2. Услуги, необходимые и обязательные для предоставления государственной услуги, предоставляются за счет средств заявителя (постановление Правительства Москвы от 15 августа 2011 г. N 359-ПП "Об услугах, которые являются необходимыми и обязательными для предоставления государственных услуг").

2.13. Показатели доступности и качества государственной услуги (в ред. Постановления Правительства Москвы от 15.05.2015 N 275-ПП)

Качество и доступность государственной услуги характеризуются следующими показателями:

- срок предоставления государственной услуги - 15 рабочих дней;

- срок регистрации запроса заявителя - не более 1 рабочего дня; (в ред. Постановления Правительства Москвы от 19.07.2016 N 430-ПП)

- время ожидания в очереди при получении результата предоставления государственной услуги - не более 15 минут.

2.14. Порядок информирования о предоставлении государственной услуги

2.14.1. Информация о предоставлении государственной услуги размещается:

- на Портале;

- на официальном сайте Комитета в информационно-телекоммуникационной сети "Интернет";

- на стендах в помещениях Комитета.

2.14.2. Заявитель имеет возможность получать информацию о ходе выполнения запроса в подсистеме "личный кабинет" Портала. (в ред. Постановления Правительства Москвы от 19.07.2016 N 430-ПП)

3. Состав, последовательность и сроки выполнения административных процедур, требования к порядку их выполнения, особенности выполнения административных процедур в электронной форме

Последовательность административных процедур

3.1. Предоставление государственной услуги включает в себя следующие административные процедуры:

3.1.1. Прием (получение) и регистрация запроса и иных документов, необходимых для предоставления государственной услуги.

3.1.2. Обработка документов (информации), необходимых для предоставления государственной услуги.

3.1.3. Формирование результата предоставления государственной услуги с внесением сведений о конечном результате предоставления государственной услуги в состав сведений Реестра.

3.1.4. Выдача (направление) заявителю документов и (или) информации, подтверждающих результат предоставления государственной услуги, в том числе отказ в предоставлении государственной услуги.

3.2. Прием (получение) и регистрация запроса и иных документов (информации), необходимых для предоставления государственной услуги:

3.2.1. Основанием для начала выполнения административной процедуры является поступление запроса в Комитет. (в ред. Постановления Правительства Москвы от 19.07.2016 N 430-ПП)

3.2.2. Должностным лицом, ответственным за выполнение административной процедуры, является специалист структурного подразделения Комитета (далее - должностное лицо, ответственное за прием документов).

3.2.3. Должностное лицо, ответственное за прием документов:

- регистрирует полученный запрос в соответствующей информационной системе города Москвы и направляет информацию о регистрации запроса в "личный кабинет" заявителя на Портале в срок не позднее окончания первого рабочего дня, следующего за днем поступления запроса в Комитет;

- проверяет корректность, полноту введенной информации и читабельность электронных копий (электронных образов) представленных документов;

- при наличии оснований для отказа в приеме документов, указанных в пункте 2.8 настоящего Регламента, вносит сведения об отказе в приеме документов, необходимых для предоставления государственной услуги, в соответствующую информационную систему города Москвы и направляет уведомление об отказе в приеме документов в "личный кабинет" заявителя на Портале;

- при отсутствии оснований для отказа в приеме документов, необходимых для предоставления государственной услуги, установленных настоящим Регламентом, комплектует запрос и представленные документы и осуществляет их передачу должностному лицу Комитета, ответственному за обработку документов (информации), необходимых для предоставления государственной услуги, для дальнейшей организации работы по предоставлению государственной услуги в установленном настоящим Регламентом порядке. (в ред. Постановления Правительства Москвы от 19.07.2016 N 430-ПП)

3.2.4. Максимальный срок выполнения административной процедуры составляет один рабочий день.

3.2.5. Результатом выполнения административной процедуры является:

- прием и регистрация запроса и иных документов, необходимых для предоставления государственной услуги;

- отказ в приеме документов, необходимых для предоставления государственной услуги. (в ред. Постановления Правительства Москвы от 19.07.2016 N 430-ПП)

3.3. Обработка документов (информации), необходимых для предоставления государственной услуги:

3.3.1. Основанием начала выполнения административной процедуры является получение должностным лицом, уполномоченным на выполнение административной процедуры, принятых от заявителя документов.

3.3.2. Должностным лицом, ответственным за выполнение административной процедуры, является специалист структурного подразделения Комитета (далее - должностное лицо, ответственное за обработку документов (информации).

3.3.3. Должностное лицо, ответственное за обработку документов (информации):

- осуществляет проверку запроса и документов, прикрепленных к запросу, электронных копий (электронных образов) документов на соответствие требованиям, предъявляемым к содержанию и оформлению таких документов нормативными правовыми актами;

- анализирует дизайн-проект размещения вывески на предмет соответствия установленным требованиям;

- анализирует сведения о регистрации в установленном порядке на территории Российской Федерации товарного знака или о наличии международного договора Российской Федерации (в случаях использования в вывесках изображений товарных знаков, в том числе на иностранных языках);

- осуществляет межведомственное информационное взаимодействие с указанными в пункте 2.3.2 настоящего Регламента органами исполнительной власти с целью получения документов и информации, необходимых для предоставления государственной услуги, в том числе получает согласование/мотивированный отказ Департамента транспорта и развития дорожно-транспортной инфраструктуры города Москвы в согласовании дизайн-проекта размещения ценовых табло АЗС, получает согласование Департамента культурного наследия города Москвы при согласовании дизайн-проекта размещения информационных конструкций (вывесок) на внешних поверхностях здания, строения, сооружения, являющегося объектом культурного наследия, выявленным объектом культурного наследия, объектами, расположенными в границах территорий объектов культурного наследия, выявленных объектов культурного наследия, а также при размещении вывесок на внешних поверхностях торговых, развлекательных центров, кинотеатров, театров, цирков в границах территорий зон охраны объектов культурного наследия, а также получает информационное письмо Департамента культурного наследия города Москвы о соответствии проекту реставрации и приспособления объекта культурного наследия, предусматривающему размещение информационных конструкций (вывесок) на крышах зданий, строений, сооружений, являющихся объектами культурного наследия, выявленными объектами культурного наследия. В случае неполучения Комитетом решения Департамента культурного наследия города Москвы, принятого по результатам рассмотрения поступивших документов, по истечении установленного для согласования срока представленные заявителем документы считаются согласованными Департаментом культурного наследия города Москвы. В случае неполучения Комитетом согласования/мотивированного отказа в согласовании Департамента транспорта и развития дорожно-транспортной инфраструктуры города Москвы по истечении установленного для направления срока представленные заявителем документы считаются согласованными Департаментом транспорта и развития дорожно-транспортной инфраструктуры города Москвы;

- в случае размещения вывески на крыше зданий, строений, сооружений, расположенных вдоль трасс проезда (передвижения) и в местах постоянного и временного пребывания объектов государственной охраны в городе Москве, формирует и направляет комплект полученных документов на согласование в ФСО России;

- в течение одного рабочего дня готовит и передает проект решения о направлении документов на согласование в ФСО России на подпись уполномоченному должностному лицу Комитета. Срок подписания проекта решения о направлении документов на согласование в ФСО России уполномоченным должностным лицом Комитета не может превышать одного рабочего дня с даты направления указанного проекта решения на подпись;

- направляет документы на согласование в ФСО России в срок не позднее следующего рабочего дня с даты подписания уполномоченным должностным лицом указанного решения;

- направляет в "личный кабинет" заявителя на Портале информацию о приостановлении предоставления государственной услуги в срок не позднее рабочего дня, следующего за днем приостановления предоставления государственной услуги;

- направляет в "личный кабинет" заявителя на Портале информацию о возобновлении предоставления государственной услуги в срок не позднее рабочего дня, следующего за днем возобновления предоставления государственной услуги;

- при наличии оснований для предоставления государственной услуги формирует уведомление о согласовании дизайн-проекта и вместе с комплектом документов передает должностному лицу Комитета, ответственному за формирование результата предоставления государственной услуги;

- при наличии оснований для отказа в предоставлении услуги готовит проект решения об отказе в предоставлении государственной услуги и вместе со сформированным комплектом документов передает должностному лицу Комитета, ответственному за формирование результата предоставления государственной услуги. (в ред. Постановления Правительства Москвы от 19.07.2016 N 430-ПП)

3.3.4. Максимальный срок выполнения административной процедуры составляет 10 рабочих дней.

3.3.5. Результатом выполнения административной процедуры является передача проекта уведомления о рассмотрении на предмет соответствия установленным требованиям дизайн-проекта размещения вывески или проекта решения об отказе в предоставлении государственной услуги (при наличии оснований для отказа в предоставлении государственной услуги) должностному лицу Комитета, ответственному за формирование результата предоставления государственной услуги. (в ред. Постановления Правительства Москвы от 19.07.2016 N 430-ПП)

3.4. Формирование результата предоставления государственной услуги с внесением сведений о конечном результате услуги в состав сведений Реестра:

3.4.1. Основанием начала выполнения административной процедуры является получение должностным лицом, ответственным за формирование результата предоставления государственной услуги (далее - должностное лицо, ответственное за формирование результата), проекта соответствующего решения.

3.4.2. Должностным лицом, ответственным за формирование результата, является уполномоченный специалист структурного подразделения Комитета.

3.4.3. Должностное лицо, ответственное за формирование результата:

- передает на согласование уполномоченному должностному лицу Комитета проект уведомления о согласовании дизайн-проекта размещения вывески либо проект решения об отказе в предоставлении государственной услуги; (в ред. Постановления Правительства Москвы от 19.07.2016 N 430-ПП)

- обеспечивает внесение сведений о конечном результате предоставления государственной услуги в состав сведений Реестра;

- передает уведомление о согласовании дизайн-проекта размещения вывески либо решение об отказе в предоставлении государственной услуги в установленном порядке в соответствующее структурное подразделение Комитета.

3.4.4. Максимальный срок выполнения административной процедуры составляет три рабочих дня. (в ред. Постановления Правительства Москвы от 19.07.2016 N 430-ПП)

3.4.5. Результатом выполнения административной процедуры является направление уведомления о согласовании дизайн-проекта размещения вывески либо решения об отказе в предоставлении государственной услуги в установленном порядке специалисту структурного подразделения Комитета для выдачи заявителю и внесения соответствующих сведений в Реестр.

3.5. Выдача (направление) заявителю документов, подтверждающих результат предоставления государственной услуги, в том числе отказ в предоставлении государственной услуги:

3.5.1. Основанием начала выполнения административной процедуры является получение должностным лицом, ответственным за выполнение административной процедуры, уведомления о согласовании дизайн-проекта размещения вывески либо подписанного решения об отказе в предоставлении государственной услуги. (в ред. Постановления Правительства Москвы от 19.07.2016 N 430-ПП)

3.5.2. Должностным лицом, ответственным за выполнение административной процедуры, является специалист структурного подразделения Комитета, уполномоченный на выдачу документов (далее - должностное лицо, ответственное за выдачу документов).

3.5.3. Должностное лицо, ответственное за выдачу (направление) документов, выдает (направляет) заявителю уведомление о согласовании дизайн-проекта размещения вывески либо решение об отказе в предоставлении государственной услуги в личный кабинет заявителя на Портале. (в ред. Постановления Правительства Москвы от 19.07.2016 N 430-ПП)

3.5.4. Максимальный срок выполнения административной процедуры составляет один рабочий день. (в ред. Постановления Правительства Москвы от 19.07.2016 N 430-ПП)

3.5.5. Результатом административной процедуры является выдача (направление) либо предоставление с использованием Портала заявителю документов, подтверждающих результат предоставления государственной услуги, в том числе отказ в предоставлении государственной услуги.

4. Формы контроля за исполнением настоящего Регламента

4.1. Контроль за исполнением настоящего Регламента осуществляется Комитетом и Главным контрольным управлением города Москвы в формах, установленных Правительством Москвы.

4.2. Текущий контроль за соблюдением и исполнением должностными лицами Комитета положений настоящего Регламента и иных правовых актов, устанавливающих требования к предоставлению государственной услуги, а также принятием ими решений осуществляется председателем Комитета и уполномоченными им должностными лицами.

4.3. Перечень должностных лиц, осуществляющих текущий контроль, устанавливается правовым актом Комитета.

5. Досудебный (внесудебный) порядок обжалования решений и (или) действий (бездействия) Комитета, его должностных лиц, государственных гражданских служащих (в ред. Постановления Правительства Москвы от 21.05.2015 N 307-ПП)

5.1. Заявитель имеет право подать в досудебном (внесудебном) порядке жалобу на принятые (совершенные) при предоставлении государственной услуги решения и (или) действия (бездействие) Комитета, его должностных лиц, государственных гражданских служащих.

5.2. Подача и рассмотрение жалоб осуществляется в порядке, установленном главой 2.1 Федерального закона от 27 июля 2010 г. N 210-ФЗ "Об организации предоставления государственных и муниципальных услуг", Положением об особенностях подачи и рассмотрения жалоб на нарушение порядка предоставления государственных услуг города Москвы, утвержденным постановлением Правительства Москвы от 15 ноября 2011 г. N 546-ПП "О предоставлении государственных и муниципальных услуг в городе Москве", настоящим Регламентом.

5.3. Заявители могут обратиться с жалобами в случаях:

5.3.1. Нарушения срока регистрации запроса (заявления) и иных документов, необходимых для предоставления государственных услуг, а также порядка оформления и выдачи расписки в получении запроса и иных документов (информации) от заявителя.

5.3.2. Требования от заявителя:

5.3.2.1. Документов, представление которых заявителем для предоставления государственной услуги не предусмотрено нормативными правовыми актами Российской Федерации и города Москвы, в том числе документов, получаемых с использованием межведомственного информационного взаимодействия.

5.3.2.2. Обращения за предоставлением услуг, не включенных в утвержденный Правительством Москвы перечень услуг, которые являются необходимыми и обязательными для предоставления государственных услуг.

5.3.2.3. Внесения платы за предоставление государственной услуги, не предусмотренной нормативными правовыми актами Российской Федерации и города Москвы.

5.3.3. Нарушения срока предоставления государственной услуги.

5.3.4. Отказа заявителю:

5.3.4.1. В приеме документов, представление которых предусмотрено нормативными правовыми актами Российской Федерации и города Москвы для предоставления государственной услуги, по основаниям, не предусмотренным нормативными правовыми актами Российской Федерации и города Москвы.

5.3.4.2. В предоставлении государственной услуги по основаниям, не предусмотренным нормативными правовыми актами Российской Федерации и города Москвы.

5.3.4.3. В исправлении допущенных опечаток и ошибок в выданных в результате предоставления государственной услуги документах либо в случае нарушения установленного срока таких исправлений.

5.3.5. Иных нарушений порядка предоставления государственной услуги, установленного нормативными правовыми актами Российской Федерации и города Москвы.

5.4. Жалобы на решения и (или) действия (бездействие) должностных лиц, государственных гражданских служащих Комитета рассматриваются председателем (уполномоченным заместителем председателя) Комитета.

Жалобы на решения и (или) действия (бездействие) председателя Комитета, в том числе на решения, принятые им или его заместителем по поступившим в досудебном (внесудебном) порядке жалобам, рассматриваются вышестоящим органом исполнительной власти города Москвы в соответствии с пунктами 5.6, 6 приложения 6 к постановлению Правительства Москвы от 15 ноября 2011 г. N 546-ПП "О предоставлении государственных и муниципальных услуг в городе Москве".

5.5. Жалобы могут быть поданы в органы исполнительной власти города Москвы, уполномоченные на их рассмотрение в соответствии с настоящим Регламентом (далее - органы, уполномоченные на рассмотрение жалоб), в письменной форме на бумажном носителе, в электронной форме одним из следующих способов:

5.5.1. При личном обращении заявителя (представителя заявителя).

5.5.2. Почтовым отправлением.

5.5.3. При наличии технической возможности с использованием Портала. (в ред. Постановления Правительства Москвы от 19.07.2016 N 430-ПП)

5.5.4. С использованием официальных сайтов органов, уполномоченных на рассмотрение жалоб, в информационно-телекоммуникационной сети Интернет.

5.6. Жалоба должна содержать:

5.6.1. Наименование уполномоченного на рассмотрение жалобы органа либо должность и (или) фамилию, имя и отчество (при наличии) соответствующего должностного лица, которому направляется жалоба.

5.6.2. Наименование органа исполнительной власти города Москвы либо должность и (или) фамилию, имя, отчество (при наличии) должностного лица, государственного гражданского служащего, решения и (или) действия (бездействие) которых обжалуются.

5.6.3. Сведения о заявителе (фамилию, имя, отчество (при наличии) индивидуального предпринимателя либо наименование юридического лица, сведения о месте жительства (месте нахождения) заявителя, номер (номера) контактного телефона, адрес (адреса) электронной почты (при наличии) и почтовый адрес, по которым должен быть направлен ответ заявителю).

5.6.4. Дату подачи и регистрационный номер запроса (заявления) на предоставление государственной услуги (за исключением случаев обжалования отказа в приеме запроса и его регистрации).

5.6.5. Сведения о решениях и (или) действиях (бездействии), являющихся предметом обжалования.

5.6.6. Доводы, на основании которых заявитель не согласен с обжалуемыми решениями и (или) действиями (бездействием). Заявителем могут быть представлены документы (при наличии), подтверждающие доводы заявителя, либо их копии.

5.6.7. Требования заявителя.

5.6.8. Перечень прилагаемых к жалобе документов (при наличии).

5.6.9. Дату составления жалобы.

5.7. Жалоба должна быть подписана заявителем (его представителем). В случае подачи жалобы при личном обращении заявитель (представитель заявителя) должен представить документ, удостоверяющий личность.

Полномочия представителя на подписание жалобы должны быть подтверждены доверенностью, оформленной в соответствии с законодательством Российской Федерации.

Полномочия лица, действующего от имени организации без доверенности на основании закона, иных нормативных правовых актов и учредительных документов, подтверждаются документами, удостоверяющими его служебное положение, а также учредительными документами организации.

5.8. Поступившая жалоба подлежит регистрации в срок не позднее рабочего дня, следующего за днем поступления.

5.9. Максимальный срок рассмотрения жалобы составляет 15 рабочих дней со дня ее регистрации. Срок рассмотрения жалобы составляет 5 рабочих дней со дня ее регистрации в случаях обжалования заявителем:

5.9.1. Отказа в приеме документов.

5.9.2. Отказа в исправлении опечаток и ошибок, допущенных в документах, выданных в результате предоставления государственной услуги.

5.9.3. Нарушения срока исправлений опечаток и ошибок.

5.10. По результатам рассмотрения жалобы принимается решение об удовлетворении жалобы (полностью или в части) либо об отказе в удовлетворении жалобы.

5.11. Решение должно содержать:

5.11.1. Наименование органа, рассмотревшего жалобу, должность, фамилию, имя, отчество (при наличии) должностного лица, принявшего решение по жалобе.

5.11.2. Реквизиты решения (номер, дату, место принятия).

5.11.3. Фамилию, имя, отчество (при наличии) и сведения о месте жительства заявителя - индивидуального предпринимателя либо наименование заявителя - юридического лица и сведения о его месте нахождения.

5.11.4. Фамилию, имя, отчество (при наличии), сведения о месте жительства представителя заявителя, подавшего жалобу от имени заявителя.

5.11.5. Способ подачи и дату регистрации жалобы, ее регистрационный номер.

5.11.6. Предмет жалобы (сведения об обжалуемых решениях, действиях, бездействии).

5.11.7. Установленные при рассмотрении жалобы обстоятельства и доказательства, их подтверждающие.

5.11.8. Правовые основания для принятия решения по жалобе со ссылкой на подлежащие применению нормативные правовые акты Российской Федерации и города Москвы.

5.11.9. Принятое по жалобе решение (вывод об удовлетворении жалобы или об отказе в ее удовлетворении).

5.11.10. Меры по устранению выявленных нарушений и сроки их выполнения (в случае удовлетворения жалобы).

5.11.11. Порядок обжалования решения.

5.11.12. Подпись уполномоченного должностного лица.

5.12. Решение оформляется в письменном виде с использованием официальных бланков.

5.13. К числу указываемых в решении мер по устранению выявленных нарушений в том числе относятся:

5.13.1. Отмена ранее принятых решений (полностью или в части).

5.13.2. Обеспечение приема и регистрации запроса, оформления и выдачи заявителю расписки (при уклонении или необоснованном отказе в приеме документов и их регистрации).

5.13.3. Обеспечение оформления и выдачи заявителю результата предоставления государственной услуги (при уклонении или необоснованном отказе в предоставлении государственной услуги).

5.13.4. Исправление опечаток и ошибок, допущенных в документах, выданных в результате предоставления государственной услуги.

5.13.5. Возврат заявителю денежных средств, взимание которых не предусмотрено нормативными правовыми актами Российской Федерации и города Москвы.

5.14. Орган, уполномоченный на рассмотрение жалобы, отказывает в ее удовлетворении в случаях:

5.14.1. Признания обжалуемых решений и (или) действий (бездействия) законными, не нарушающими прав и свобод заявителя.

5.14.2. Подачи жалобы лицом, полномочия которого не подтверждены в порядке, установленном нормативными правовыми актами Российской Федерации и города Москвы.

5.14.3. Отсутствия у заявителя права на получение государственной услуги.

5.14.4. Наличия:

5.14.4.1. Вступившего в законную силу решения суда по жалобе заявителя с тождественными предметом и основаниями.

5.14.4.2. Решения по жалобе, принятого ранее в досудебном (внесудебном) порядке в отношении того же заявителя и по тому же предмету жалобы (за исключением случаев обжалования ранее принятых решений в вышестоящий орган).

5.15. Жалоба подлежит оставлению без ответа по существу в случаях:

5.15.1. Наличия в жалобе нецензурных либо оскорбительных выражений, угроз жизни, здоровью и имуществу должностных лиц, а также членов их семей.

5.15.2. Если текст жалобы (его часть), фамилия, почтовый адрес и адрес электронной почты не поддаются прочтению.

5.15.3. Если в жалобе не указаны фамилия заявителя (представителя заявителя) или почтовый адрес и адрес электронной почты, по которым должен быть направлен ответ.

5.15.4. Если в орган, уполномоченный на рассмотрение жалобы, поступило ходатайство заявителя (представителя заявителя) об отзыве жалобы до вынесения решения по жалобе.

5.16. Решение об удовлетворении жалобы или об отказе в удовлетворении жалобы направляется заявителю (представителю заявителя) в срок не позднее рабочего дня, следующего за днем его принятия, по почтовому адресу, указанному в жалобе. По желанию заявителя решение также направляется на указанный в жалобе адрес электронной почты (в форме электронного документа, подписанного электронной подписью уполномоченного должностного лица). В таком же порядке заявителю (представителю заявителя) направляется решение по жалобе, в которой для ответа указан только адрес электронной почты, а почтовый адрес отсутствует или не поддается прочтению.

5.17. В случае оставления жалобы без ответа по существу заявителю (его представителю) направляется в срок не позднее рабочего дня, следующего за днем регистрации жалобы, письменное мотивированное уведомление с указанием оснований (за исключением случаев, когда в жалобе не указаны почтовый адрес и адрес электронной почты для ответа или они не поддаются прочтению). Уведомление направляется в порядке, установленном для направления решения по жалобе.

5.18. Жалоба, поданная с нарушением правил о компетенции, установленных пунктом 5.4 настоящего Регламента, направляется в срок не позднее рабочего дня, следующего за днем ее регистрации, в орган, уполномоченный на рассмотрение жалобы, с одновременным письменным уведомлением заявителя (его представителя) о переадресации жалобы (за исключением случаев, когда в жалобе не указаны почтовый адрес и адрес электронной почты для ответа или они не поддаются прочтению). Уведомление направляется в порядке, установленном для направления решения по жалобе.

5.19. Подача жалобы в досудебном (внесудебном) порядке не исключает права заявителя (представителя заявителя) на одновременную или последующую подачу жалобы в суд.

5.20. Информирование заявителей о судебном и досудебном (внесудебном) порядке обжалования решений и (или) действий (бездействия), совершенных при предоставлении государственной услуги, должно осуществляться путем:

5.20.1. Размещения соответствующей информации на Портале и стендах в местах предоставления государственной услуги.

5.20.2. Консультирования заявителей, в том числе по телефону, электронной почте, при личном приеме.

5.21. В случае установления в ходе или по результатам рассмотрения жалобы признаков состава административного правонарушения или преступления должностное лицо, наделенное полномочиями по рассмотрению жалобы, незамедлительно направляет имеющиеся материалы в органы прокуратуры.

При выявлении нарушений порядка предоставления государственных услуг города Москвы, ответственность за совершение которых установлена Кодексом города Москвы об административных правонарушениях, должностное лицо, наделенное полномочиями по рассмотрению жалобы, также должно направить копии имеющихся материалов в Главное контрольное управление города Москвы в течение двух рабочих дней, следующих за днем вынесения решения по жалобе (но не позднее рабочего дня, следующего за днем истечения установленного федеральным законодательством срока рассмотрения жалоб на нарушения порядка предоставления государственных услуг).

ПРИЛОЖЕНИЕ 1. - Утратило силу. (в ред. Постановления Правительства Москвы от 19.07.2016 N 430-ПП)

Приложение 2
к Административному регламенту
предоставления государственной
услуги города Москвы
"Согласование дизайн-проекта
размещения вывески"

ТРЕБОВАНИЯ К ДИЗАЙН-ПРОЕКТУ РАЗМЕЩЕНИЯ ВЫВЕСКИ В ГОРОДЕ МОСКВЕ

(в ред. Постановлений Правительства Москвы от 29.04.2014 N 234-ПП, от 15.05.2015 N 275-ПП, от 19.07.2016 N 430-ПП)

1. Дизайн-проект размещения вывески включает текстовые и графические материалы.

Дизайн-проект размещения вывески на крыше здания, строения, сооружения должен быть разработан организациями, индивидуальными предпринимателями, имеющими выданные саморегулируемой организацией свидетельства о допуске к таким видам работ. (в ред. Постановления Правительства Москвы от 29.04.2014 N 234-ПП)

2. Текстовые материалы оформляются в виде пояснительной записки и включают:

- сведения об адресе объекта, годе его постройки; (в ред. Постановления Правительства Москвы от 29.04.2014 N 234-ПП)

- сведения о типе конструкции вывески, месте ее размещения, способе крепления; (в ред. Постановления Правительства Москвы от 19.07.2016 N 430-ПП)

- сведения о способе освещения вывески;

- параметры вывески;

- сведения о площади каждого фасада здания, строения, сооружения, на котором планируется размещение информационных конструкций (при размещении вывесок на внешних поверхностях торговых, развлекательных центров, кинотеатров, театров, цирков в границах территорий зон охраны объектов культурного наследия). (в ред. Постановления Правительства Москвы от 19.07.2016 N 430-ПП)

3. Графические материалы дизайн-проекта при размещении вывески на внешних поверхностях зданий, строений, сооружений включают:

- фотофиксацию (фотографии) всех внешних поверхностей объекта (фасады, крыши и иные поверхности). Фотографии должны обеспечить в полном объеме четкую демонстрацию предполагаемого места размещения вывески и всех иных конструкций, размещенных на всей плоскости всех внешних поверхностей здания, строения, сооружения (в том числе на крыше), а также не содержать иных объектов, в том числе автомобильный транспорт, препятствующих указанной демонстрации. Фотографии должны быть выполнены не более чем за два месяца до обращения за получением государственной услуги. Фотографии объекта должны быть напечатаны с разрешением не менее 300 точек на дюйм, с соблюдением контрастности и цветопередачи;

- чертежи всех фасадов объекта (ортогональные, в М 1:200, М 1:100, М 1:50 (в зависимости от габаритных размеров объекта), на которых (относительно которых) предполагается размещение вывесок, с указанием мест размещения и порядковых номеров (сквозная нумерация) вывесок, их параметров (длина, ширина, высота) и типа конструкций;

- фотомонтаж (графическая врисовка вывески в месте ее предполагаемого размещения в существующую ситуацию с указанием размеров). Выполняется в виде компьютерной врисовки конструкции вывески на фотографии с соблюдением пропорций размещаемого объекта. При размещении крышных конструкций графическая врисовка включает изображение информационного поля конструкции (буквы, буквенные символы, аббревиатура, цифры), декоративно-художественных элементов - логотипов, знаков и т.д., элементов крепления. Фотомонтаж должен обеспечить в полном объеме четкую демонстрацию места размещения вывески и всех иных конструкций, размещенных на всей плоскости всех внешних поверхностей здания, строения, сооружения (в том числе на крыше).

При размещении крышных конструкций графические материалы включают также ортогональный чертеж крышной конструкции (основной вид, вид сбоку, вид сверху - при криволинейной форме конструкции).

При размещении информационных конструкций на объектах культурного наследия, выявленных объектах культурного наследия, объектах, расположенных в границах территорий объектов культурного наследия, выявленных объектов культурного наследия, а также при размещении вывесок на внешних поверхностях торговых, развлекательных центров, кинотеатров, театров, цирков в границах территорий зон охраны объектов культурного наследия графические материалы дизайн-проекта включают также эскизы информационных конструкций, колористическое решение конструкций и схему крепления на фасаде.

При размещении информационных конструкций на объектах культурного наследия, стеклянных поверхностях фасадов зданий, строений, сооружений, витринных конструкций графические материалы дизайн-проекта включают также чертежи узлов крепления вывески к фасаду здания, крышных конструкций - чертежи узлов крепления вывески к крыше здания.

При размещении информационных конструкций на внешних поверхностях объектов культурного наследия, на внешних поверхностях торговых, развлекательных центров, кинотеатров, театров, цирков, расположенных в границах территорий зон охраны объектов культурного наследия, на чертежах отображаются габаритные размеры и высотные отметки каждого фасада, на котором размещаются вывески.

При размещении вывесок на внешних поверхностях торговых, развлекательных центров, кинотеатров, театров, цирков в границах территорий зон охраны объектов культурного наследия на чертежах также указывается совокупная площадь всех информационных конструкций, планируемых к размещению на каждом фасаде, и процентное соотношение их по отношению к фасаду, на котором они размещаются.

Графические материалы дизайн-проекта при размещении отдельно стоящей информационной конструкции (вывески) включают:

- фотофиксацию (фотографии) предполагаемого места размещения вывески. Фотографии должны обеспечить в полном объеме четкую демонстрацию предполагаемого места размещения вывески и давать представление о взаимном расположении размещаемой вывески относительно здания, строения, сооружения, расположенного в границах земельного участка и/или относительно других отдельно стоящих вывесок с обозначением соответствующих границ земельного участка. Фотографии должны быть выполнены не более чем за два месяца до обращения за получением государственной услуги. Фотографии объекта должны быть выполнены с разрешением не менее 300 точек на дюйм, с соблюдением контрастности и цветопередачи;

- чертежи всех плоскостей всех отдельно стоящих информационных конструкций (ортогональные, в М 1:200, М 1:100, М 1:50 (в зависимости от габаритных размеров объекта). На чертежах должны быть отражены места размещения и порядковые номера (сквозная нумерация) вывесок с указанием параметров вывесок (длина, ширина, высота) и глубина заглубления;

- фотомонтаж (графическая врисовка вывески в месте ее предполагаемого размещения в существующую ситуацию с указанием размеров). Выполняется в виде компьютерной врисовки конструкции вывески на фотографии с соблюдением пропорций размещаемого объекта. (в ред. Постановления Правительства Москвы от 19.07.2016 N 430-ПП)

3(1). Дизайн-проект размещения ценовых табло АЗС (для ценовых табло АЗС, размещаемых за пределами границ земельных участков, занимаемых автозаправочными станциями) включает:

3(1).1. Текстовые материалы:

- адресные ориентиры;

- сведения о субъекте, осуществляющем розничную реализацию нефтепродуктов;

- сведения о типах вывесок, габаритных размерах, местах их размещения;

- сведения о способе освещения вывесок;

- сведения о материалах конструкции и используемых технических решениях, в том числе о заглублении ценового табло АЗС.

3(1).2. Графические материалы:

- чертежи всех внешних поверхностей ценового табло АЗС (ортогональные, в М 1:200, М 1:100, М 1:50 (в зависимости от габаритных размеров ценового табло АЗС) с указанием параметров (длина, ширина, высота), план объекта;

- фотофиксацию;

- указание местоположения ценовых табло АЗС на ситуационном плане в М 1:2000;

- указание местоположения ценовых табло АЗС на генеральном плане в М 1:500 с указанием разметок до края проезжей части и знаков дорожного движения;

- сведения о привязке ценового табло АЗС по высоте к поверхности проезжей части, расстоянию от края информационной конструкции до проезжей части;

- фотомонтаж (графическая врисовка ценового табло АЗС в месте его предполагаемого размещения в существующую ситуацию с указанием размеров). Выполняется в виде компьютерной врисовки конструкции вывески на фотографии с соблюдением пропорций размещаемого объекта. Фотомонтаж должен обеспечить в полном объеме четкую демонстрацию места размещения вывески и всех иных конструкций, размещенных на всей плоскости всех внешних поверхностей здания, строения, сооружения (в том числе на крыше). Фотографии должны обеспечить в полном объеме четкую демонстрацию предполагаемого места размещения ценового табло АЗС и не содержать иных объектов, в том числе автомобильный транспорт, препятствующих указанной демонстрации. Фотографии должны быть выполнены не более чем за два месяца до обращения за получением государственной услуги. Фотографии объекта должны быть с разрешением не менее 300 точек на дюйм, с соблюдением контрастности и цветопередачи. (в ред. Постановления Правительства Москвы от 19.07.2016 N 430-ПП)

4. Требования к дизайн-проекту размещения вывески, предоставляемому в электронной форме (далее - электронный документ):

4.1. Формирование электронного документа должно осуществляться с использованием:

- единого файлового формата PDF (версия 1.7) для буклета дизайн-проекта;

- форматов DWG, PLA для рабочих материалов. (в ред. Постановления Правительства Москвы от 19.07.2016 N 430-ПП)

4.2. Электронный документ готовится путем сохранения из векторных программ, при этом необходимо использование AutoCAD версии не выше 2012, ArchiCAD версии не выше 15.

4.3. Состав материалов сформированного электронного документа и форма их предоставления (дизайн книг и чертежей) должны быть такими, чтобы при их распечатке было обеспечено изготовление полной бумажной версии документа с сохранением качества изображения - без каких-либо дополнительных действий со стороны пользователя.

4.4. Электронные образы сохраняются в цветном режиме с разрешением не менее 300 точек на дюйм (для файлов большого объема возможно разрешение не менее 150 точек на дюйм). (в ред. Постановления Правительства Москвы от 19.07.2016 N 430-ПП)

4.5. В сохраненном электронном образе должен отсутствовать эффект деформации изображения.

4.6. Поворот изображений производится до горизонтального уровня. Изображение очищается от мусора, выравнивается, убираются тени, проводится обрезка краев.

4.7. Количество образов должно соответствовать количеству листов в исходном документе. Не допускается наличие на электронных образах черных полей по краям изображения больше 1 мм, полос, пятен, размытость изображения, влияющих на читаемость и отсутствующих на оригинале, нарушение порядка следования страниц документа. (в ред. Постановления Правительства Москвы от 15.05.2015 N 275-ПП)

ПРИЛОЖЕНИЕ 3. - Утратило силу. (в ред. Постановления Правительства Москвы от 19.07.2016 N 430-ПП)

Приложение 3
к постановлению
Правительства Москвы
от 25 декабря 2013 г. N 902-ПП

ВНЕСЕНИЕ ИЗМЕНЕНИЙ В ПРАВОВЫЕ АКТЫ ГОРОДА МОСКВЫ

(в ред. Постановлений Правительства Москвы от 29.04.2014 N 234-ПП, от 02.09.2014 N 500-ПП)

1. Внести изменения в постановление Правительства Москвы от 24 февраля 2010 г. N 157-ПП "О полномочиях территориальных органов исполнительной власти города Москвы" (в редакции постановлений Правительства Москвы от 18 мая 2010 г. N 403-ПП, от 12 октября 2010 г. N 938-ПП, от 7 июня 2011 г. N 254-ПП, от 16 июня 2011 г. N 269-ПП, от 28 июня 2011 г. N 285-ПП, от 19 июля 2011 г. N 330-ПП, от 2 августа 2011 г. N 347-ПП, от 30 августа 2011 г. N 396-ПП, от 25 октября 2011 г. N 491-ПП, от 15 мая 2012 г. N 208-ПП, от 15 мая 2012 г. N 209-ПП, от 22 мая 2012 г. N 233-ПП, от 15 июня 2012 г. N 272-ПП, от 18 июня 2012 г. N 274-ПП, от 3 июля 2012 г. N 303-ПП, от 25 октября 2012 г. N 597-ПП, от 7 ноября 2012 г. N 632-ПП, от 13 ноября 2012 г. N 636-ПП, от 26 декабря 2012 г. N 848-ПП, от 15 февраля 2013 г. N 76-ПП, от 28 марта 2013 г. N 179-ПП, от 16 апреля 2013 г. N 242-ПП, от 13 июня 2013 г. N 377-ПП, от 13 августа 2013 г. N 530-ПП, от 20 августа 2013 г. N 552-ПП, от 6 сентября 2013 г. N 587-ПП, от 13 сентября 2013 г. N 606-ПП, от 2 октября 2013 г. N 661-ПП, от 15 октября 2013 г. N 684-ПП, от 22 октября 2013 г. N 701-ПП, от 26 ноября 2013 г. N 758-ПП, от 11 декабря 2013 г. N 819-ПП):

1.1. Приложение 1 к постановлению дополнить пунктом 2.1.25 в следующей редакции:

"2.1.25. Координирует работу управ районов по вопросам демонтажа вывесок, не соответствующих установленным требованиям, их перемещению и хранению, включая организацию специальных мест для указанного хранения.".

1.2. Приложение 2 к постановлению дополнить пунктами 2.1.33 - 2.1.35 в следующей редакции:

"2.1.33. Выявляет вывески, не соответствующие установленным требованиям.

2.1.34. Организует работы по демонтажу, перемещению и хранению вывесок, не соответствующих установленным требованиям. Организует места для хранения вывесок, не соответствующих установленным требованиям.

2.1.35. Организует работы по восстановлению внешних поверхностей зданий, строений, сооружений, на которых были размещены демонтированные вывески, в случаях, установленных правовыми актами города Москвы.".

2. Пункт утратил силу. (в ред. Постановления Правительства Москвы от 02.09.2014 N 500-ПП)

3. Внести изменения в постановление Правительства Москвы от 16 февраля 2011 г. N 38-ПП "О расходных обязательствах префектур административных округов города Москвы по финансовому обеспечению мероприятий, не включенных в государственные программы города Москвы" (в редакции постановлений Правительства Москвы от 4 мая 2011 г. N 172-ПП, от 16 мая 2011 г. N 202-ПП, от 19 февраля 2013 г. N 85-ПП, от 26 ноября 2013 г. N 758-ПП):

3.1. Пункт утратил силу. (в ред. Постановления Правительства Москвы от 29.04.2014 N 234-ПП)

3.2. Пункт 1.24 постановления считать пунктом 1.25.

3.3. В пункте 2 постановления слова "в соответствии с пунктом 1.24" заменить словами "в соответствии с пунктом 1.25".

4. Внести изменения в постановление Правительства Москвы от 22 февраля 2011 г. N 45-ПП "О Департаменте средств массовой информации и рекламы города Москвы" (в редакции постановлений Правительства Москвы от 20 ноября 2012 г. N 657-ПП, от 12 декабря 2012 г. N 714-ПП, от 11 июня 2013 г. N 373-ПП, от 25 июня 2013 г. N 405-ПП):

4.1. В пунктах 4.2.1, 4.2.22, 4.2.27, 4.2.29 приложения 1 к постановлению слова "и информационных" исключить.

4.2. Дополнить пунктом 4.2.39 в следующей редакции:

"4.2.39. Об осуществлении мониторинга реализации управами районов города Москвы функций по организации демонтажа вывесок, не соответствующих установленным требованиям.".

4.3. Пункт 4.2.39 считать пунктом 4.2.40.

5. Внести изменения в постановление Правительства Москвы от 7 ноября 2012 г. N 633-ПП "Об утверждении Положения о Комитете по архитектуре и градостроительству города Москвы" (в редакции постановлений Правительства Москвы от 12 декабря 2012 г. N 714-ПП, от 24 июня 2013 г. N 400-ПП, от 14 августа 2013 г. N 531-ПП), исключив в пункте 4.2.15.7 приложения к постановлению слова ", а также согласование Единых концепций наружного информационного оформления торговых, развлекательных центров, кинотеатров, театров, цирков в городе Москве".

6. Внести изменения в постановление Правительства Москвы от 14 марта 2013 г. N 146-ПП "О проведении эксперимента по оптимизации деятельности отдельных государственных учреждений города Москвы и государственных унитарных предприятий города Москвы, осуществляющих деятельность в сфере городского хозяйства города Москвы" (в редакции постановлений Правительства Москвы от 4 июня 2013 г. N 354-ПП, от 28 августа 2013 г. N 562-ПП, от 2 октября 2013 г. N 661-ПП, от 10 октября 2013 г. N 672-ПП, от 25 ноября 2013 г. N 746-ПП, от 3 декабря 2013 г. N 790-ПП), дополнив постановление пунктом 2.2.1.15 в следующей редакции:

"2.2.1.15. Демонтаж, перемещение и хранение вывесок, не соответствующих установленным требованиям. Проведение работ по восстановлению внешних поверхностей зданий, строений, сооружений, на которых были размещены демонтированные вывески, в случаях, установленных правовыми актами города Москвы.".

ПРИЛОЖЕНИЕ К ПРИЛОЖЕНИЮ 3 - Утратило силу. (в ред. Постановления Правительства Москвы от 02.09.2014 N 500-ПП)

Приложение 4
к постановлению
Правительства Москвы
от 25 декабря 2013 г. N 902-ПП

ПРИЗНАНИЕ УТРАТИВШИМИ СИЛУ ПРАВОВЫХ АКТОВ (ОТДЕЛЬНЫХ ПОЛОЖЕНИЙ ПРАВОВЫХ АКТОВ) ГОРОДА МОСКВЫ

1. Постановление Правительства Москвы от 21 ноября 2006 г. N 908-ПП "О порядке установки и эксплуатации объектов наружной рекламы и информации в городе Москве и Регламенте подготовки документов Комитетом рекламы, информации и оформления города Москвы заявителям в режиме "одного окна".

2. Постановление Правительства Москвы от 16 октября 2007 г. N 900-ПП "О внесении изменений и дополнений в постановление Правительства Москвы от 21 ноября 2006 г. N 908-ПП".

3. Постановление Правительства Москвы от 25 декабря 2007 г. N 1142-ПП "О внесении изменений в постановление Правительства Москвы от 21 ноября 2006 г. N 908-ПП".

4. Постановление Правительства Москвы от 12 февраля 2008 г. N 109-ПП "О внесении изменений в постановления Правительства Москвы от 21 ноября 2006 г. N 908-ПП, от 5 декабря 2006 г. N 955-ПП, от 30 января 2007 г. N 51-ПП".

5. Пункт 11 постановления Правительства Москвы от 12 февраля 2008 года N 111-ПП "О Городской целевой программе развития рекламы, информации и оформления города Москвы на 2008 - 2010 гг.".

6. Постановление Правительства Москвы от 25 марта 2008 г. N 213-ПП "О внесении изменений в постановление Правительства Москвы от 21 ноября 2006 г. N 908-ПП".

7. Постановление Правительства Москвы от 11 августа 2009 г. N 773-ПП "О внесении изменений в постановление Правительства Москвы от 21 ноября 2006 г. N 908-ПП".

8. Постановление Правительства Москвы от 13 октября 2009 г. N 1085-ПП "О внесении изменений в постановление Правительства Москвы от 21 ноября 2006 г. N 908-ПП".

9. Постановление Правительства Москвы от 10 ноября 2009 г. N 1235-ПП "О внесении изменений в постановление Правительства Москвы от 21 ноября 2006 г. N 908-ПП".

10. Постановление Правительства Москвы от 17 ноября 2009 г. N 1279-ПП "О внесении изменений в постановление Правительства Москвы от 21 ноября 2006 г. N 908-ПП".

11. Постановление Правительства Москвы от 2 февраля 2010 г. N 94-ПП "О внесении изменений в постановление Правительства Москвы от 21 ноября 2006 г. N 908-ПП".

12. Постановление Правительства Москвы от 16 февраля 2010 г. N 128-ПП "О внесении изменений в постановление Правительства Москвы от 21 ноября 2006 г. N 908-ПП".

13. Постановление Правительства Москвы от 30 марта 2010 г. N 262-ПП "О внесении изменений в постановление Правительства Москвы от 21 ноября 2006 г. N 908-ПП".

14. Постановление Правительства Москвы от 20 апреля 2010 г. N 324-ПП "О внесении изменений в постановление Правительства Москвы от 21 ноября 2006 г. N 908-ПП".

15. Постановление Правительства Москвы от 27 июля 2010 г. N 630-ПП "О внесении изменений в постановление Правительства Москвы от 21 ноября 2006 г. N 908-ПП".

16. Постановление Правительства Москвы от 10 августа 2010 г. N 688-ПП "О внесении изменений в постановление Правительства Москвы от 21 ноября 2006 г. N 908-ПП".

17. Постановление Правительства Москвы от 31 мая 2011 г. N 233-ПП "О внесении изменений в постановление Правительства Москвы от 21 ноября 2006 г. N 908-ПП".

18. Постановление Правительства Москвы от 19 июля 2011 г. N 319-ПП "О внесении изменений в постановление Правительства Москвы от 21 ноября 2006 г. N 908-ПП".

19. Постановление Правительства Москвы от 4 октября 2011 г. N 465-ПП "О внесении изменений в постановление Правительства Москвы от 21 ноября 2006 г. N 908-ПП".

20. Постановление Правительства Москвы от 26 сентября 2012 г. N 512-ПП "Об изменении порядка расчета размера платы за установку и эксплуатацию объектов наружной рекламы и информации на имуществе города Москвы и о внесении изменений в постановление Правительства Москвы от 21 ноября 2006 г. N 908-ПП".

21. Пункты 2 и 3 постановления Правительства Москвы от 12 декабря 2012 г. N 712-ПП "Об утверждении Правил установки и эксплуатации рекламных конструкций".

22. Пункты 1 - 3 постановления Правительства Москвы от 12 декабря 2012 г. N 714-ПП "О проведении пилотного проекта по организации размещения информационных конструкций в городе Москве".

23. Постановление Правительства Москвы от 19 декабря 2012 г. N 761-ПП "О внесении изменений в постановление Правительства Москвы от 21 ноября 2006 г. N 908-ПП".

24. Постановление Правительства Москвы от 29 июля 2013 г. N 492-ПП "О внесении изменения в постановление Правительства Москвы от 21 ноября 2006 г. N 908-ПП".

25. Пункт 4 постановления Правительства Москвы от 13 сентября 2013 г. N 606-ПП "О пешеходных зонах общегородского значения города Москвы".